
kbt09
So, irgendwann am Anfang hatte jemand, ich glaube, Yvonne, mal Splitlevel angeregt.
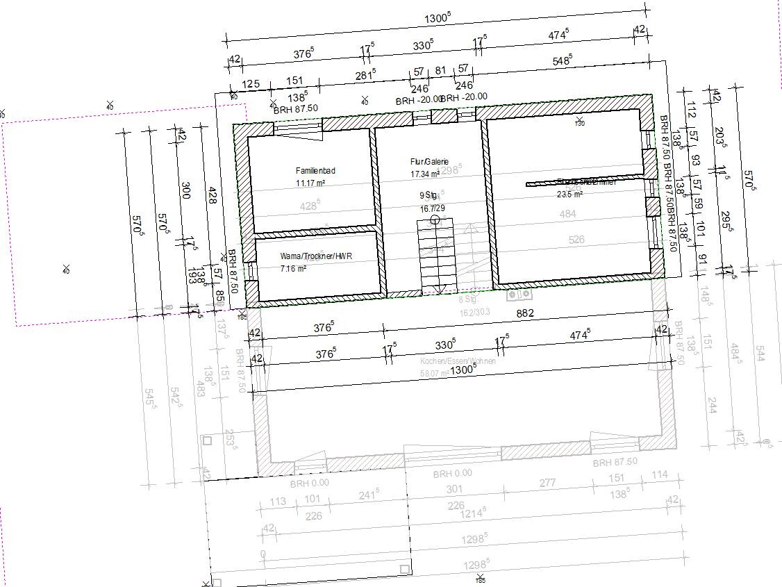
Das habe ich jetzt mal laienhaft versucht umzusetzen.
Planunten im Grundstück halbes Haus als Keller richtig eingebuddelt. Dann ca. 130 cm Höhe EG-Level 1 mit Eingangsebene von der Straße und auch Einfahrt für die Garage. Dort dann ein Kombinationszimmer Arbeiten/Gästeschlafen, Gästebad, viel Platz für die Garderobe und, wenn man mag noch den Durchgang von der Garage.
Mit Höhenversatz von ca. 150 cm geht es dann zu EG-Level2 .. dem Ess-/Koch/Wohnbereich.
Von dort wieder mit Höhenversatz von ca. 130 cm in den OG-Level 1, angedacht für Elternschlafzimmer, Familienbad und einem Hauswirtschaftsraum für Waschmaschine, Trockner, Staubsauger und Konsorten.
Und zum Schluss wieder mit Höhenversatz von ca. 150 cm in den OG-Level 2 für die Kinder. 2 große Südkinderzimmer.
Auch hier sind einige Erdarbeiten notwendig, um Terrasse ebenerdig werden zu lassen und die Einfahrt ebenerdig zu gewährleisten. Das sollte aber in einem wesentlich kleinerem Bereich liegen, als deine aktuellen Erdumschichtungen .
Vielleicht ist das ja ein Ansatz. Evtl. ist das alles einen Hauch zu groß geraten. Es gibt auch relativ viel Flurflächen, die können aber gut genutzt werden.
Man sieht auf jeden Fall, welche Höhenunterschiede da so sind.
Das habe ich jetzt mal laienhaft versucht umzusetzen.
Planunten im Grundstück halbes Haus als Keller richtig eingebuddelt. Dann ca. 130 cm Höhe EG-Level 1 mit Eingangsebene von der Straße und auch Einfahrt für die Garage. Dort dann ein Kombinationszimmer Arbeiten/Gästeschlafen, Gästebad, viel Platz für die Garderobe und, wenn man mag noch den Durchgang von der Garage.
Mit Höhenversatz von ca. 150 cm geht es dann zu EG-Level2 .. dem Ess-/Koch/Wohnbereich.
Von dort wieder mit Höhenversatz von ca. 130 cm in den OG-Level 1, angedacht für Elternschlafzimmer, Familienbad und einem Hauswirtschaftsraum für Waschmaschine, Trockner, Staubsauger und Konsorten.
Und zum Schluss wieder mit Höhenversatz von ca. 150 cm in den OG-Level 2 für die Kinder. 2 große Südkinderzimmer.
Auch hier sind einige Erdarbeiten notwendig, um Terrasse ebenerdig werden zu lassen und die Einfahrt ebenerdig zu gewährleisten. Das sollte aber in einem wesentlich kleinerem Bereich liegen, als deine aktuellen Erdumschichtungen .
Vielleicht ist das ja ein Ansatz. Evtl. ist das alles einen Hauch zu groß geraten. Es gibt auch relativ viel Flurflächen, die können aber gut genutzt werden.
Man sieht auf jeden Fall, welche Höhenunterschiede da so sind.