ᐅ Grundriss EFH165 qm erster Entwurf - Architekt unzufrieden
Erstellt am: 27.10.24 14:06
K
KirschsaftladyK
Kirschsaftlady27.10.24 14:06Hallo zusammen,
da wir mit dem ersten Entwurf unseres Architekten nicht ganz glücklich sind, uns aber schwer tun unsere Wünsche selbst in einen Entwurf umzusetzen bzw. manches vllt gar nicht miteinander vereinbar ist, sind wir über Anregungen und Tipps dankbar.
Bebauungsplan/Einschränkungen
Größe des Grundstücks: 954 qm
Hang: von der Straße her auf die gesamte Länge ca. 1 m abfallend
Grundflächenzahl: 0,4
Baufenster, Baulinie und -grenze: s. Plan Architekt
Es gibt zwar einen Bebauungsplan, jedoch werden alle Ausnahmen, die wir auch haben wollen, problemlos genehmigt bzw sind für unsere Straße bereits genehmigt worden
Anforderungen der Bauherren
Stilrichtung, Dachform, Gebäudetyp: Satteldach, Einfamilienhaus eventuell mit Erker
Keller, Geschosse: Bodenplatte, 2 Vollgeschosse durch entsprechend hohen Kniestock, unter dem Dach kleine Lagerfläche
Anzahl der Personen, Alter: aktuell 2 Erwachsene und ein Kleinkind, geplant ein weiteres Kind
Raumbedarf im EG, OG: EG: Technik und Hauswirtschaftsraum kombiniert, Eingangsbereich, Garderobennische, Gästebad mit Dusche, Büro, Wohn-Ess-Kochbereich. Speisekammer, Abstellraum unter der Treppe
OG: 2 Kinderzimmer mindestens 15 qm, Schlafzimmer mit Ankleide, Familienbad mit ebener Dusche und 2 Waschbecken, Flur mit Tageslicht am liebsten Platz für Sessel oder kleinen Tisch für Nähmaschine
Büro: Familiennutzung oder Homeoffice? Homeoffice fast täglich
Schlafgäste pro Jahr: kaum
offene oder geschlossene Architektur: halboffen
konservativ oder moderne Bauweise: modern
offene Küche, Kochinsel: halboffen (sichtgeschützt) mit angedockter Insel
Anzahl Essplätze: 6
Kamin: nein
Musik/Stereowand: nein
Balkon, Dachterrasse: nein
Garage, Carport: entweder Doppelgarage oder Garage mit Carport
weitere Wünsche:
Treppe entweder geradläufig oder Podest, nicht gewendelt
Wohn-Ess-Kochbereich nicht (ohne Sichtschutz) als I-Anordnung, alle Bereiche mit Blick in den Garten
gerne zusätzlicher Zugang von Garage/ Carport über Hauswirtschaftsraum
Elternschlafzimmer planobenlinks ausgerichtet, Bett mit Blick aus bodentiefem Fenster in den Garten. Zugang zum Schlafzimmer am liebsten durch Ankleide bzw Ankleide hinter Wand hinter dem Bett (Kopfende).
Kinderzimmer am liebsten nicht Wand an Wand mit Elternschlafzimmer
Küche verlinke ich einen Plan, in dem uns die Küche im Musterhaus sehr gut gefallen hat
Treppe am liebsten belichtet
Wohnzimmer mind. so groß wie im aktuellen Plan
Hausentwurf
Von wem stammt die Planung: Architekt
Was gefällt besonders? Warum? Das EG bis auf Küche und Essbereich, v.a. Wohnzimmer gut "abgetrennt" und ohne direkten Blick auf Küche. Essbereich erscheint uns etwas beengt, Küche sollte mehr breit als lang sein, so wie es aktuell ist, sieht die angedockte Insel sehr verloren aus
Was gefällt nicht? Warum? Küche und Essbereich, Ankleide in der Nische eingepfercht, Bad zu groß, Flur oben ohne Fenster. Fensterfläche im Schlafzimmer und auch im Ess-Kochbereich zu groß, Garderobennische zu klein
Preisschätzung laut Architekt/Planer: noch keine, Gespräch mit Vorstellung des Entwurfs steht noch aus.
Persönliches Preislimit fürs Haus, inkl. Ausstattung: ohne Grundstück mit allen Nebenkosten, Vermessung und Bodengutachten haben wir noch ein Budget von 600.000. Es soll ein Fertighaus werden, evtl Malerarbeiten und teilweise Böden in Eigenleistung, Außenanlagen ebenfalls überwiegend in Eigenleistung und nicht sofort
favorisierte Heiztechnik: Luft-Wasser-Wärmepumpe mit Photovoltaikanlage
Wenn Ihr verzichten müsst, auf welche Details/Ausbauten
-könnt Ihr verzichten: Kinderzimmer kann neben Schlafzimmer, Abstellraum und Büro könnten notfalls nach oben wandern, Hauswirtschaftsraum und Technikraum getrennt werden, zweiter Zugang nicht zwingend, Zugang Speisekammer direkt von Küche sowie über Hauswirtschaftsraum nicht zwingend, Erker nicht zwingend, wenn es trotzdem nicht zu offen wird
-könnt Ihr nicht verzichten: Treppenform, Raumprogramm, Lage des Schlafzimmers, "halboffener" Wohn-Ess-Kochbereich, Garderobe in Nische untergebracht
Warum ist der Entwurf so geworden, wie er jetzt ist?
Es gab einen Ortstermin, bei dem anschließend auf dem Papier zusammen gebrainstormed wurde. Dabei kam mehr oder weniger der aktuelle Entwurf raus, allerdings noch nicht endgültig mit Maßen, Größe usw, sodass zb das Problem mit Küche und Essbereich nicht zu erkennen war. Über die Negativpunkte bzgl OG haben wir vor ORt noch informiert, haben dann egtl eine neue Alternative erwartet
Ich denke die relevanten Infos sind alle oben enthalten, wenn was fehlt liefere ich gerne nach.
Esstisch soll/ muss nicht vor der Küche sein, es geht rein um die Anordnung der Küche als solche
Vielen Dank schon einmal für alle Tipps!



da wir mit dem ersten Entwurf unseres Architekten nicht ganz glücklich sind, uns aber schwer tun unsere Wünsche selbst in einen Entwurf umzusetzen bzw. manches vllt gar nicht miteinander vereinbar ist, sind wir über Anregungen und Tipps dankbar.
Bebauungsplan/Einschränkungen
Größe des Grundstücks: 954 qm
Hang: von der Straße her auf die gesamte Länge ca. 1 m abfallend
Grundflächenzahl: 0,4
Baufenster, Baulinie und -grenze: s. Plan Architekt
Es gibt zwar einen Bebauungsplan, jedoch werden alle Ausnahmen, die wir auch haben wollen, problemlos genehmigt bzw sind für unsere Straße bereits genehmigt worden
Anforderungen der Bauherren
Stilrichtung, Dachform, Gebäudetyp: Satteldach, Einfamilienhaus eventuell mit Erker
Keller, Geschosse: Bodenplatte, 2 Vollgeschosse durch entsprechend hohen Kniestock, unter dem Dach kleine Lagerfläche
Anzahl der Personen, Alter: aktuell 2 Erwachsene und ein Kleinkind, geplant ein weiteres Kind
Raumbedarf im EG, OG: EG: Technik und Hauswirtschaftsraum kombiniert, Eingangsbereich, Garderobennische, Gästebad mit Dusche, Büro, Wohn-Ess-Kochbereich. Speisekammer, Abstellraum unter der Treppe
OG: 2 Kinderzimmer mindestens 15 qm, Schlafzimmer mit Ankleide, Familienbad mit ebener Dusche und 2 Waschbecken, Flur mit Tageslicht am liebsten Platz für Sessel oder kleinen Tisch für Nähmaschine
Büro: Familiennutzung oder Homeoffice? Homeoffice fast täglich
Schlafgäste pro Jahr: kaum
offene oder geschlossene Architektur: halboffen
konservativ oder moderne Bauweise: modern
offene Küche, Kochinsel: halboffen (sichtgeschützt) mit angedockter Insel
Anzahl Essplätze: 6
Kamin: nein
Musik/Stereowand: nein
Balkon, Dachterrasse: nein
Garage, Carport: entweder Doppelgarage oder Garage mit Carport
weitere Wünsche:
Treppe entweder geradläufig oder Podest, nicht gewendelt
Wohn-Ess-Kochbereich nicht (ohne Sichtschutz) als I-Anordnung, alle Bereiche mit Blick in den Garten
gerne zusätzlicher Zugang von Garage/ Carport über Hauswirtschaftsraum
Elternschlafzimmer planobenlinks ausgerichtet, Bett mit Blick aus bodentiefem Fenster in den Garten. Zugang zum Schlafzimmer am liebsten durch Ankleide bzw Ankleide hinter Wand hinter dem Bett (Kopfende).
Kinderzimmer am liebsten nicht Wand an Wand mit Elternschlafzimmer
Küche verlinke ich einen Plan, in dem uns die Küche im Musterhaus sehr gut gefallen hat
Treppe am liebsten belichtet
Wohnzimmer mind. so groß wie im aktuellen Plan
Hausentwurf
Von wem stammt die Planung: Architekt
Was gefällt besonders? Warum? Das EG bis auf Küche und Essbereich, v.a. Wohnzimmer gut "abgetrennt" und ohne direkten Blick auf Küche. Essbereich erscheint uns etwas beengt, Küche sollte mehr breit als lang sein, so wie es aktuell ist, sieht die angedockte Insel sehr verloren aus
Was gefällt nicht? Warum? Küche und Essbereich, Ankleide in der Nische eingepfercht, Bad zu groß, Flur oben ohne Fenster. Fensterfläche im Schlafzimmer und auch im Ess-Kochbereich zu groß, Garderobennische zu klein
Preisschätzung laut Architekt/Planer: noch keine, Gespräch mit Vorstellung des Entwurfs steht noch aus.
Persönliches Preislimit fürs Haus, inkl. Ausstattung: ohne Grundstück mit allen Nebenkosten, Vermessung und Bodengutachten haben wir noch ein Budget von 600.000. Es soll ein Fertighaus werden, evtl Malerarbeiten und teilweise Böden in Eigenleistung, Außenanlagen ebenfalls überwiegend in Eigenleistung und nicht sofort
favorisierte Heiztechnik: Luft-Wasser-Wärmepumpe mit Photovoltaikanlage
Wenn Ihr verzichten müsst, auf welche Details/Ausbauten
-könnt Ihr verzichten: Kinderzimmer kann neben Schlafzimmer, Abstellraum und Büro könnten notfalls nach oben wandern, Hauswirtschaftsraum und Technikraum getrennt werden, zweiter Zugang nicht zwingend, Zugang Speisekammer direkt von Küche sowie über Hauswirtschaftsraum nicht zwingend, Erker nicht zwingend, wenn es trotzdem nicht zu offen wird
-könnt Ihr nicht verzichten: Treppenform, Raumprogramm, Lage des Schlafzimmers, "halboffener" Wohn-Ess-Kochbereich, Garderobe in Nische untergebracht
Warum ist der Entwurf so geworden, wie er jetzt ist?
Es gab einen Ortstermin, bei dem anschließend auf dem Papier zusammen gebrainstormed wurde. Dabei kam mehr oder weniger der aktuelle Entwurf raus, allerdings noch nicht endgültig mit Maßen, Größe usw, sodass zb das Problem mit Küche und Essbereich nicht zu erkennen war. Über die Negativpunkte bzgl OG haben wir vor ORt noch informiert, haben dann egtl eine neue Alternative erwartet
Ich denke die relevanten Infos sind alle oben enthalten, wenn was fehlt liefere ich gerne nach.
Esstisch soll/ muss nicht vor der Küche sein, es geht rein um die Anordnung der Küche als solche
Vielen Dank schon einmal für alle Tipps!
K
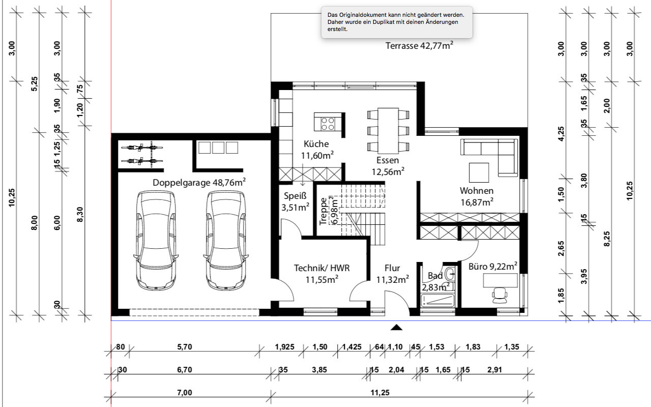
Kirschsaftlady27.10.24 16:38Danke für den Hinweis! Hier kommt das EG. Das mit dem Nordpfeil ist leider nicht so einfach, da der genau über dem Logo des Architekten ist, das ich natürlich nicht zeigen möchte. Habe den Lageplan noch einmal mit Pfeil, aber dafür leider unten abgeschnitten hochgeladen.
Als Info noch, Nachbarbebauung gibt es bisher nicht


Als Info noch, Nachbarbebauung gibt es bisher nicht
Oha! !
Darf ich fragen, auf welcher Idee dieser Entwurf beruht? Eure Wünsche sehe ich nicht beachtet, noch dazu kommen grundsätzliche Planungssachen, die hier ja völlig daneben liegen. Was gab es sonst noch für Vorgaben?
Ist das Budget so niedrig, dass es für eine Planung nicht ausreicht?
Wie macht man aus einem schönen Technik-/Hauswirtschaftsraum-Raum einen Durchgangsraum ohne Mehrwert? Gib ihm drei Türen und setze diese so, dass man mit einer Wand nix mehr anfangen kann.
Und wie quetscht man Sanitärobjekte ins Bad, die man auch noch benutzen will?
Puuh! !
Darf ich fragen, auf welcher Idee dieser Entwurf beruht? Eure Wünsche sehe ich nicht beachtet, noch dazu kommen grundsätzliche Planungssachen, die hier ja völlig daneben liegen. Was gab es sonst noch für Vorgaben?
Ist das Budget so niedrig, dass es für eine Planung nicht ausreicht?
Wie macht man aus einem schönen Technik-/Hauswirtschaftsraum-Raum einen Durchgangsraum ohne Mehrwert? Gib ihm drei Türen und setze diese so, dass man mit einer Wand nix mehr anfangen kann.
Und wie quetscht man Sanitärobjekte ins Bad, die man auch noch benutzen will?
Puuh! !
K
Kirschsaftlady27.10.24 18:27Danke schon mal für deine Rückmeldung! Das mit dem Hauswirtschaftsraum/ Technikraum hatten wir bisher gar nicht so auf dem Schirm, aber stimmt, durch die Laufwege und zusätzlich das Fenster, kann man da ja gar nichts stellen.
Wie gesagt, der Entwurf entstand nach dem Ortstermin als Brainstorming vom Architekten und uns. Er hatte an Hand unseres Raumprogrammes mit ca. qm-Angaben, das wir vorher abgegeben haben, eine erste Skizze vorbereitet. Da haben wir dann geäußert, was uns gefällt und was nicht und davon ausgehend hat er los gezeichnet und wir immer wieder interveniert, wenn etwas gar nicht gepasst hat oder eigene Vorschläge eingebracht. So ist das EG entstanden, das uns egtl ( in Grobzeichung) ganz gut gefallen hat, das OG haben wir da schon bemängelt. Wir sind davon ausgegangen, dass er das ganze nochmal deutlich überarbeitet, auf Plausibilität prüft und ggf an Hand der ganzen Wünsche und Abneigungen, die er in dem Gespräch erfahren hat (und die auch von der Sekretärin mitnotiert wurden) noch einmal neu überlegt, wenn das Ganze doch nicht passen sollte.
Fixe Vorgaben sind eigentlich nur das Raumprogramm, das Budget, Firstrichtung parallel zur Straße, Treppenform geradläufig oder Podest, Position des Elternschlafzimmers, Wohn-Ess-Kochbereich Richtung Garten und zumindest das Wohnzimmer etwas abgetrennt bzw ohne Blick auf die Küche, Küche mit angedockter Insel, von der man in den Garten schauen kann.
Wir haben vieles gesehen in Musterhäusern oder im Katalog, was uns gefallen hat, was aber teilweise auch nicht kompatibel ist, und von dem wir auch nicht wissen, was es preislich bedeutet, sodass wir uns schwer getan haben, konkretere Wünsche zu äußern.
Meinst du mit Planung eine Planung nach HOIA? Wir haben eine Entwurfsplanung mit 2 Änderungen zum Fixpreis vereinbart. Dieses nach HOIA wollten wir uns sparen bzw war uns das auch zu undurchsichtig, vielleicht ein Fehler.
Wie gesagt, der Entwurf entstand nach dem Ortstermin als Brainstorming vom Architekten und uns. Er hatte an Hand unseres Raumprogrammes mit ca. qm-Angaben, das wir vorher abgegeben haben, eine erste Skizze vorbereitet. Da haben wir dann geäußert, was uns gefällt und was nicht und davon ausgehend hat er los gezeichnet und wir immer wieder interveniert, wenn etwas gar nicht gepasst hat oder eigene Vorschläge eingebracht. So ist das EG entstanden, das uns egtl ( in Grobzeichung) ganz gut gefallen hat, das OG haben wir da schon bemängelt. Wir sind davon ausgegangen, dass er das ganze nochmal deutlich überarbeitet, auf Plausibilität prüft und ggf an Hand der ganzen Wünsche und Abneigungen, die er in dem Gespräch erfahren hat (und die auch von der Sekretärin mitnotiert wurden) noch einmal neu überlegt, wenn das Ganze doch nicht passen sollte.
Fixe Vorgaben sind eigentlich nur das Raumprogramm, das Budget, Firstrichtung parallel zur Straße, Treppenform geradläufig oder Podest, Position des Elternschlafzimmers, Wohn-Ess-Kochbereich Richtung Garten und zumindest das Wohnzimmer etwas abgetrennt bzw ohne Blick auf die Küche, Küche mit angedockter Insel, von der man in den Garten schauen kann.
Wir haben vieles gesehen in Musterhäusern oder im Katalog, was uns gefallen hat, was aber teilweise auch nicht kompatibel ist, und von dem wir auch nicht wissen, was es preislich bedeutet, sodass wir uns schwer getan haben, konkretere Wünsche zu äußern.
Meinst du mit Planung eine Planung nach HOIA? Wir haben eine Entwurfsplanung mit 2 Änderungen zum Fixpreis vereinbart. Dieses nach HOIA wollten wir uns sparen bzw war uns das auch zu undurchsichtig, vielleicht ein Fehler.
Ich kann mich @ypg nur anschließen.
Da kann man aus der vorhandenen Fläche deutlich mehr herausholen.
Für mich persönlich wären es auch zu viele Ecken (sowohl innen wie auch außen). Wenn man die eine zurückgezogene Wand vom Wohnzimmer streicht und das Haus rechteckig macht, kommen einige QM dazu und die Unterteilung wird ebenfalls einfacher.
Da kann man aus der vorhandenen Fläche deutlich mehr herausholen.
Für mich persönlich wären es auch zu viele Ecken (sowohl innen wie auch außen). Wenn man die eine zurückgezogene Wand vom Wohnzimmer streicht und das Haus rechteckig macht, kommen einige QM dazu und die Unterteilung wird ebenfalls einfacher.
Ähnliche Themen