ᐅ Grundrissplanung Wohnzimmer und Flur zu schmal?
Erstellt am: 20.04.19 08:34
Marius8920.04.19 08:34
Hallo,
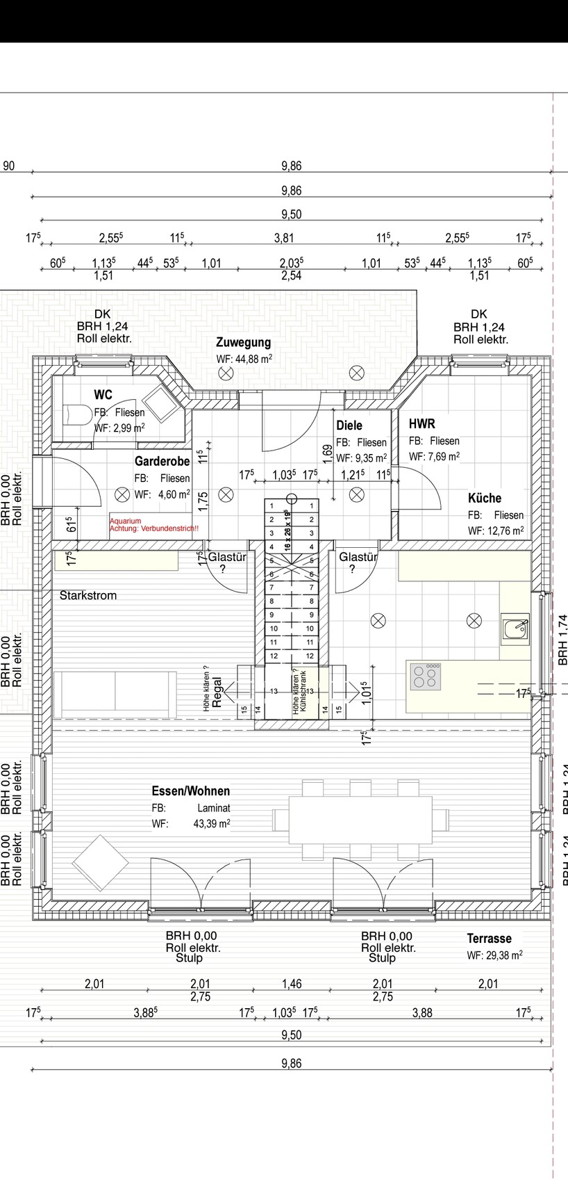
Mein Name ist Marius bin 30 Jahre alt und werde mit meiner Familie in einem Neubaugebiet (Braunschweig) bauen.
Nach langer und anstrengender Planung habe ich nun das Gefühl, dass wir bei der Breite des Wohnzimmers 3,88m Rohmaß etwas zu sparsam waren.
Wer hat ebenfalls ein Wohnzimmer unter 4m Breite und kann hier seine Erfahrung mit solch einen Raum teilen.
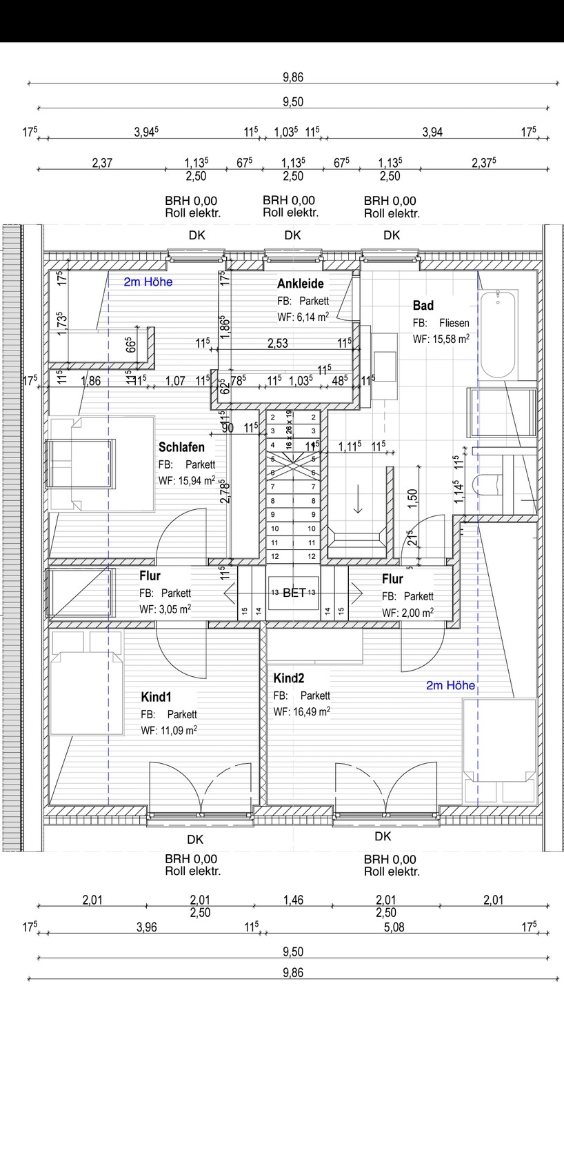
Dadurch, dass wir unbedingt eine mittige Treppe haben wollen haben wir im OG einen kurzen aber nur 1m (Treppenbreite) breiten Flur.
Vielleicht sehe ich das auch alles viel zu dramatisch ?!
Eine Vergrößerung der Außenmaße passt leider nicht mehr ins Budget.
Über neue Denkanstöße im Grundriss würde ich mich sehr freuen, danke.


Mein Name ist Marius bin 30 Jahre alt und werde mit meiner Familie in einem Neubaugebiet (Braunschweig) bauen.
Nach langer und anstrengender Planung habe ich nun das Gefühl, dass wir bei der Breite des Wohnzimmers 3,88m Rohmaß etwas zu sparsam waren.
Wer hat ebenfalls ein Wohnzimmer unter 4m Breite und kann hier seine Erfahrung mit solch einen Raum teilen.
Dadurch, dass wir unbedingt eine mittige Treppe haben wollen haben wir im OG einen kurzen aber nur 1m (Treppenbreite) breiten Flur.
Vielleicht sehe ich das auch alles viel zu dramatisch ?!
Eine Vergrößerung der Außenmaße passt leider nicht mehr ins Budget.
Über neue Denkanstöße im Grundriss würde ich mich sehr freuen, danke.
ypg20.04.19 09:24
Ja, der Entwurf hat einige Kröten zu schlucken.
Ich würde das WZ wohl immer wieder umgestalten, weil dort hinten und vorn nichts passt.
Dafür kannst Du 3 von den eingezeichneten Ess-Tischen dort hinstellen, ist doch auch was
In der Garderobe ist ein Aquarium? Seitlich eine Tür? Wo lasst ihr eure Saisonalgarderobe? Jacken, Schuhe, Taschen? Der einzig sinnvolle Raum beim Jette war diese großzügige Garderobe. Der fällt jetzt weg
Oben würde ich mir Gedanken der Stolperfalle „Treppe“ machen. Über QM braucht man sich dort keine Gedanken zu machen - hier sind einige ohne Nutzen.
Ein Doppelflügelfenster über dem Bett. Schlechter geht es nicht. Da schwebt Euch sicherlich vor, die Sterne anzuschauen? Ich würde wenigstens die Ecke vor der Ankleide wegmachen, dass im Schlafzimmer ein 3 Meter langer schrank hinpasst - tz, die Ankleide kann weniger Schrankmeter aufnehmen als das Schlafzimmer selbst... vielleicht sollte man die Arbeitsecke nach vorn legen und nach planoben das Bett? Vielleicht vielleicht... die Treppe gehört da nicht hin. Mal ganz ehrlich: wenn man nicht ü 11 x 11 Meter bauen kann, muss man auf ne Protz-Treppe verzichten. Dann bekommt man auch ein großes WZ und eine schicke Ankleide hin, die ihren Namen Ehre macht. Man muss nicht alles bauen, was man bestaunt.
Warum ist das eine Kinderzimmer nur 11qm klein? Gibt es dafür einen Grund?
Aus dem anderen Zipfel da sollte man zumindest einen Abstellraum machen, Abstellfläche braucht ihr, habt ihr aber nicht.
Was kommt neben das Haus? Ein Carport?
Zeichnet mal einfach Eure möbel ein, dann sehr ihr die Mankos.
Ich würde das WZ wohl immer wieder umgestalten, weil dort hinten und vorn nichts passt.
Dafür kannst Du 3 von den eingezeichneten Ess-Tischen dort hinstellen, ist doch auch was
In der Garderobe ist ein Aquarium? Seitlich eine Tür? Wo lasst ihr eure Saisonalgarderobe? Jacken, Schuhe, Taschen? Der einzig sinnvolle Raum beim Jette war diese großzügige Garderobe. Der fällt jetzt weg
Oben würde ich mir Gedanken der Stolperfalle „Treppe“ machen. Über QM braucht man sich dort keine Gedanken zu machen - hier sind einige ohne Nutzen.
Ein Doppelflügelfenster über dem Bett. Schlechter geht es nicht. Da schwebt Euch sicherlich vor, die Sterne anzuschauen? Ich würde wenigstens die Ecke vor der Ankleide wegmachen, dass im Schlafzimmer ein 3 Meter langer schrank hinpasst - tz, die Ankleide kann weniger Schrankmeter aufnehmen als das Schlafzimmer selbst... vielleicht sollte man die Arbeitsecke nach vorn legen und nach planoben das Bett? Vielleicht vielleicht... die Treppe gehört da nicht hin. Mal ganz ehrlich: wenn man nicht ü 11 x 11 Meter bauen kann, muss man auf ne Protz-Treppe verzichten. Dann bekommt man auch ein großes WZ und eine schicke Ankleide hin, die ihren Namen Ehre macht. Man muss nicht alles bauen, was man bestaunt.
Warum ist das eine Kinderzimmer nur 11qm klein? Gibt es dafür einen Grund?
Aus dem anderen Zipfel da sollte man zumindest einen Abstellraum machen, Abstellfläche braucht ihr, habt ihr aber nicht.
Was kommt neben das Haus? Ein Carport?
Zeichnet mal einfach Eure möbel ein, dann sehr ihr die Mankos.
haydee20.04.19 09:41
Bitte füllt den Fragebogen aus
https://www.hausbau-forum.de/threads/grundrissplanung-unbedingt-vor-Beitrag-Erstellung-lesen.11714/
Ich würde die Treppe rauswerfen und neu planen
Die Treppe schränkt euch ein und ist eine Stolperfalle. Hatten so ein Konstrukt letztes Jahr im Ferienhaus nie wieder
Ansonsten hat Ypg alles geschrieben
https://www.hausbau-forum.de/threads/grundrissplanung-unbedingt-vor-Beitrag-Erstellung-lesen.11714/
Ich würde die Treppe rauswerfen und neu planen
Die Treppe schränkt euch ein und ist eine Stolperfalle. Hatten so ein Konstrukt letztes Jahr im Ferienhaus nie wieder
Ansonsten hat Ypg alles geschrieben
Tego1220.04.19 10:15
Sehe das ähnlich... Das Haus ist für diese Treppe zu klein. Das OG sieht wirr aus, viel Platzverschwendung, im EG hat man den Haupt Dreck-Bereich direkt vor der Treppe, was ziemlich unpraktisch ist, ...ist die Haustür auf sieht weiterhin alles beengt aus....
Ich würde diesen Entwurf ebenfalls Nullen und neu planen.
Ich würde diesen Entwurf ebenfalls Nullen und neu planen.
hanse98720.04.19 11:08
Sorry wenn ich es so hart sage, aber bei dem Grundriss ist die Wohnzimmerbreite das kleinste Übel.
Das OG gleicht einem Labyrinth. Das eine Kind hat leider verloren. Der Elternbereich ist sehr groß, aber die Nutzbarkeit des ganzen stelle ich mal in Frage. Zu den Obern Stufen der Treppe sage ich mal nichts.
Wenn man von der Haustüre rein kommt, steht man direkt vor diesem “Treppenmonster”. Dafür gibt es zwei eher Miniglastüren (mehr wie 80RBM werden die nicht haben) in die Küche und Wohnzimmer. Da muss man dann auch immer durch wenn zum Essbereich will. Was macht ihr mit dem Platz im Essbereich?
Es sieht einfach aus als hättet ihr euer Haus um eine Treppe drum herum geplant. Wo ist eigentlich der Lagerplatz für dies und das wie Weihnachtsdeko, Reisekoffer, Sport- bzw. Hobbysachen, ...
Das OG gleicht einem Labyrinth. Das eine Kind hat leider verloren. Der Elternbereich ist sehr groß, aber die Nutzbarkeit des ganzen stelle ich mal in Frage. Zu den Obern Stufen der Treppe sage ich mal nichts.
Wenn man von der Haustüre rein kommt, steht man direkt vor diesem “Treppenmonster”. Dafür gibt es zwei eher Miniglastüren (mehr wie 80RBM werden die nicht haben) in die Küche und Wohnzimmer. Da muss man dann auch immer durch wenn zum Essbereich will. Was macht ihr mit dem Platz im Essbereich?
Es sieht einfach aus als hättet ihr euer Haus um eine Treppe drum herum geplant. Wo ist eigentlich der Lagerplatz für dies und das wie Weihnachtsdeko, Reisekoffer, Sport- bzw. Hobbysachen, ...
CoolCat20.04.19 11:11
Was spricht gegen ein klassisches L.
Wir planen im EG bei einem ähnlichen Grundriss etwa wie folgt - linke Seite bei uns Südseite.
Links unten Küche, geht offen in den Essbereich im linken Eck und dann vorne in den Wohnbereich.
Wird dieser zu weit, kann man an der Stirnseite rechtes Eck noch ein Gäste-Bürozimmer ansetzen.
Vorne rechts Htr und dahinter Duschbad und dann Gästezimmer oder weiterer Wohnbereich.
Eingang mittig, Treppe gerade an die Wand zu Küche gesetzt.
Unterhalb der Treppe dann noch eine Abstellkammer oder Garderobe.
Wir planen im EG bei einem ähnlichen Grundriss etwa wie folgt - linke Seite bei uns Südseite.
Links unten Küche, geht offen in den Essbereich im linken Eck und dann vorne in den Wohnbereich.
Wird dieser zu weit, kann man an der Stirnseite rechtes Eck noch ein Gäste-Bürozimmer ansetzen.
Vorne rechts Htr und dahinter Duschbad und dann Gästezimmer oder weiterer Wohnbereich.
Eingang mittig, Treppe gerade an die Wand zu Küche gesetzt.
Unterhalb der Treppe dann noch eine Abstellkammer oder Garderobe.
Ähnliche Themen