ᐅ Grundriss Landhausneubau in großem Garten nach §34 (mit Abriss)
Erstellt am: 19.01.25 18:39
M
marcobluHallo liebe Community,
wir haben im letzten Jahr ein Haus in Brandenburg gekauft. Ursprünglich wollten wir den Bestand renovieren und umbauen.
Nachdem die ersten Angebote jenseits von 500k€ lagen haben wir uns umentschieden und planen nun einen Neubau.
Wir haben dann eine erste Runde mit Fertighausanbietern gedreht, waren aber mit dem erhaltenen Planungen nicht zufrieden.
Wir haben uns dann die App Home Home Design 3D geholt und damit so lange geplant, bis wir ein ganz überzeugendes Ergebnis erreichet haben.
Wir würden uns nun über jegliches Feedback, Ideen und Kritik sehr freuen.
Als nächstes würden wir mit dem Grundriss dann gerne einen passenden Anbieter finden.
Anbei der Fragebogen sowie ein paar weitere Gedanken die der Planung zugrunde liegen.
Bebauungsplan/Einschränkungen
Größe des Grundstücks 3000qm
weitere Vorgaben §34, weitere Details kennen wir noch nicht
Anforderungen der Bauherren
Stilrichtung, Dachform, Gebäudetyp eher Landhaus, Satteldach
Keller, Geschosse Kein Keller, 1.5 Etagen
Anzahl der Personen, Alter 2 Erwachsene, 1 Kind, evtl +1 Kind
Raumbedarf im EG, OG -
Büro: Familiennutzung oder Homeoffice? Homeoffice
Schlafgäste pro Jahr Gelegentlich
offene oder geschlossene Architektur eher geschlossen
konservativ oder moderne Bauweise eher konservativ
offene Küche, Kochinsel geschlossene Küche
Anzahl Essplätze 6
Kamin ja
Musik/Stereowand nein
Balkon, Dachterrasse Balkon
Garage, Carport aktuelle Garage bleibt, Carport für Camper
Nutzgarten, Treibhaus großer Garten
Hausentwurf
Von wem stammt die Planung: Selbst Erstellt mit IPad App
-Planer eines Bauunternehmens
-Architekt
-Do-it-Yourself
Was gefällt besonders? Warum? Ausrichtung aller wesentlichen Räume nach Süden
Was gefällt nicht? Warum? Eingang ins Schlafzimmer
Preisschätzung laut Architekt/Planer: In Arbeit
Persönliches Preislimit fürs Haus, inkl. Ausstattung 500.000€:
favorisierte Heiztechnik: Wärmepumpe
Wenn Ihr verzichten müsst, auf welche Details/Ausbauten
-könnt Ihr verzichten: Balkon
-könnt Ihr nicht verzichten: Terrasse, einfacher Zugang zum Garten
Warum ist der Entwurf so geworden, wie er jetzt ist?
ZB Standardentwurf vom Planer? Wir haben so lange gefeilt, bis wir ihn gut finden.
Entsprechende/Welche Wünsche wurden vom Architekten umgesetzt?
Ein Gemisch aus vielen Beispielen aus div. Magazinen...
Was macht ihn in Euren Augen besonders gut oder schlecht?
Maximale Raumoptimierung
Weitere Notizen von uns:
Generell
Allgemein
Allgemein:










wir haben im letzten Jahr ein Haus in Brandenburg gekauft. Ursprünglich wollten wir den Bestand renovieren und umbauen.
Nachdem die ersten Angebote jenseits von 500k€ lagen haben wir uns umentschieden und planen nun einen Neubau.
Wir haben dann eine erste Runde mit Fertighausanbietern gedreht, waren aber mit dem erhaltenen Planungen nicht zufrieden.
Wir haben uns dann die App Home Home Design 3D geholt und damit so lange geplant, bis wir ein ganz überzeugendes Ergebnis erreichet haben.
Wir würden uns nun über jegliches Feedback, Ideen und Kritik sehr freuen.
Als nächstes würden wir mit dem Grundriss dann gerne einen passenden Anbieter finden.
Anbei der Fragebogen sowie ein paar weitere Gedanken die der Planung zugrunde liegen.
Bebauungsplan/Einschränkungen
Größe des Grundstücks 3000qm
weitere Vorgaben §34, weitere Details kennen wir noch nicht
Anforderungen der Bauherren
Stilrichtung, Dachform, Gebäudetyp eher Landhaus, Satteldach
Keller, Geschosse Kein Keller, 1.5 Etagen
Anzahl der Personen, Alter 2 Erwachsene, 1 Kind, evtl +1 Kind
Raumbedarf im EG, OG -
Büro: Familiennutzung oder Homeoffice? Homeoffice
Schlafgäste pro Jahr Gelegentlich
offene oder geschlossene Architektur eher geschlossen
konservativ oder moderne Bauweise eher konservativ
offene Küche, Kochinsel geschlossene Küche
Anzahl Essplätze 6
Kamin ja
Musik/Stereowand nein
Balkon, Dachterrasse Balkon
Garage, Carport aktuelle Garage bleibt, Carport für Camper
Nutzgarten, Treibhaus großer Garten
Hausentwurf
Von wem stammt die Planung: Selbst Erstellt mit IPad App
-Planer eines Bauunternehmens
-Architekt
-Do-it-Yourself
Was gefällt besonders? Warum? Ausrichtung aller wesentlichen Räume nach Süden
Was gefällt nicht? Warum? Eingang ins Schlafzimmer
Preisschätzung laut Architekt/Planer: In Arbeit
Persönliches Preislimit fürs Haus, inkl. Ausstattung 500.000€:
favorisierte Heiztechnik: Wärmepumpe
Wenn Ihr verzichten müsst, auf welche Details/Ausbauten
-könnt Ihr verzichten: Balkon
-könnt Ihr nicht verzichten: Terrasse, einfacher Zugang zum Garten
Warum ist der Entwurf so geworden, wie er jetzt ist?
ZB Standardentwurf vom Planer? Wir haben so lange gefeilt, bis wir ihn gut finden.
Entsprechende/Welche Wünsche wurden vom Architekten umgesetzt?
Ein Gemisch aus vielen Beispielen aus div. Magazinen...
Was macht ihn in Euren Augen besonders gut oder schlecht?
Maximale Raumoptimierung
Weitere Notizen von uns:
Generell
- Satteldach mit ost-west Solaranlage
- Analog zur Nachbarbebauung
Allgemein
- Breite Türen im Erdgeschoss, mindestens 1 m
- das Erdgeschoss ist rollstuhlgerecht
- Terrassendach vor Küche und halbes Wohnzimmer
- eingangsbereich bietet Nische für Garderobe
- Platz unter der Treppe als Abstellfläche nutzbar
- Treppenhaus und Flur im ersten Obergeschoss werden mit natürlichen Licht versorgt
- Großer Hauswirtschaftsraum, mit mindestens 12 m² geplant
- Nordost, damit die Wärmepumpe hinterm Carport stehen kann
- grenzt an Hauswirtschaftsraum
- Außenwasserhahn
- kurze Laufwege:
- Küche von Eingangstür als auch Esszimmer erreichbar
- Speisekammer an Küche, durch Schrank begehbar
- Terrassentür an Küche mit Zutritt zum Garten
- mit Schiebetür akustisch und geruchstechnisch vom Wohnzimmer abtrennbar
- kleine Sitzecke in Küche mit genug Platz um auch schnell in der Küche essen zu können (realisierbar durch ein Sitzfenster?)
- Außenwasserhahn
- bodentiefe Glasfenster im Wohn und Essbereich
- Kamin ist vorgesehen
- Platz für den Fernseher in Nische
- Stellfläche für Schränke
- eine Hebe-Schiebetür
- Möglichkeit ein Schlafzimmer unterzubringen.
- mindestens 12 m² haben.
Allgemein:
- Balkon im ersten OG ist nach Süden ausgerichtet
- von zwei Zimmern betretbar
- WC und Badezimmer getrennt
- das Bad hat eine Badewanne
- Einbauschrank hinter den Waschbecken
- bodentiefe Glasfenster im Wohn und Essbereich beziehungsweise Schlafzimmer, also allen Räumen, die nach Süden ausgerichtet sind
- grenzt nicht direkt an die Toilette beziehungsweise das Badezimmer
- zwei nahezu gleich große Zimmer im ersten OG dienen als Arbeitszimmer
- ein weiteres Zimmer im OG kann als Gäste- oder Hobbyraum dienen
K
K a t j a19.01.25 18:49marcoblu schrieb:
Wir haben dann eine erste Runde mit Fertighausanbietern gedreht, waren aber mit dem erhaltenen Planungen nicht zufrieden.Nur, dass ich das richtig verstehe: Ihr habt schon Grundrisse erhalten und fandet die so schlecht, dass Ihr das hier selbst zusammen gebastelt habt und jetzt besser findet?Ja, genau.
Wir hatten eine Liste mit Dingen geschickt, die uns wichtig sind.
Die wurden aber von den Anbietern nicht berücksichtigt, bzw. waren wir von den Angebotenen Ideen nicht überzeugt.
Besonders wichtig ist uns die Ausrichtung nach Süden in Richtung Garten.
Wir hatten zunächst auch die Idee das Wohnzimmer mit offener Decke zu bauen sind jetzt aber in eine "praktischere" Richtung gegangen.
Wir hatten eine Liste mit Dingen geschickt, die uns wichtig sind.
Die wurden aber von den Anbietern nicht berücksichtigt, bzw. waren wir von den Angebotenen Ideen nicht überzeugt.
Besonders wichtig ist uns die Ausrichtung nach Süden in Richtung Garten.
Wir hatten zunächst auch die Idee das Wohnzimmer mit offener Decke zu bauen sind jetzt aber in eine "praktischere" Richtung gegangen.
N
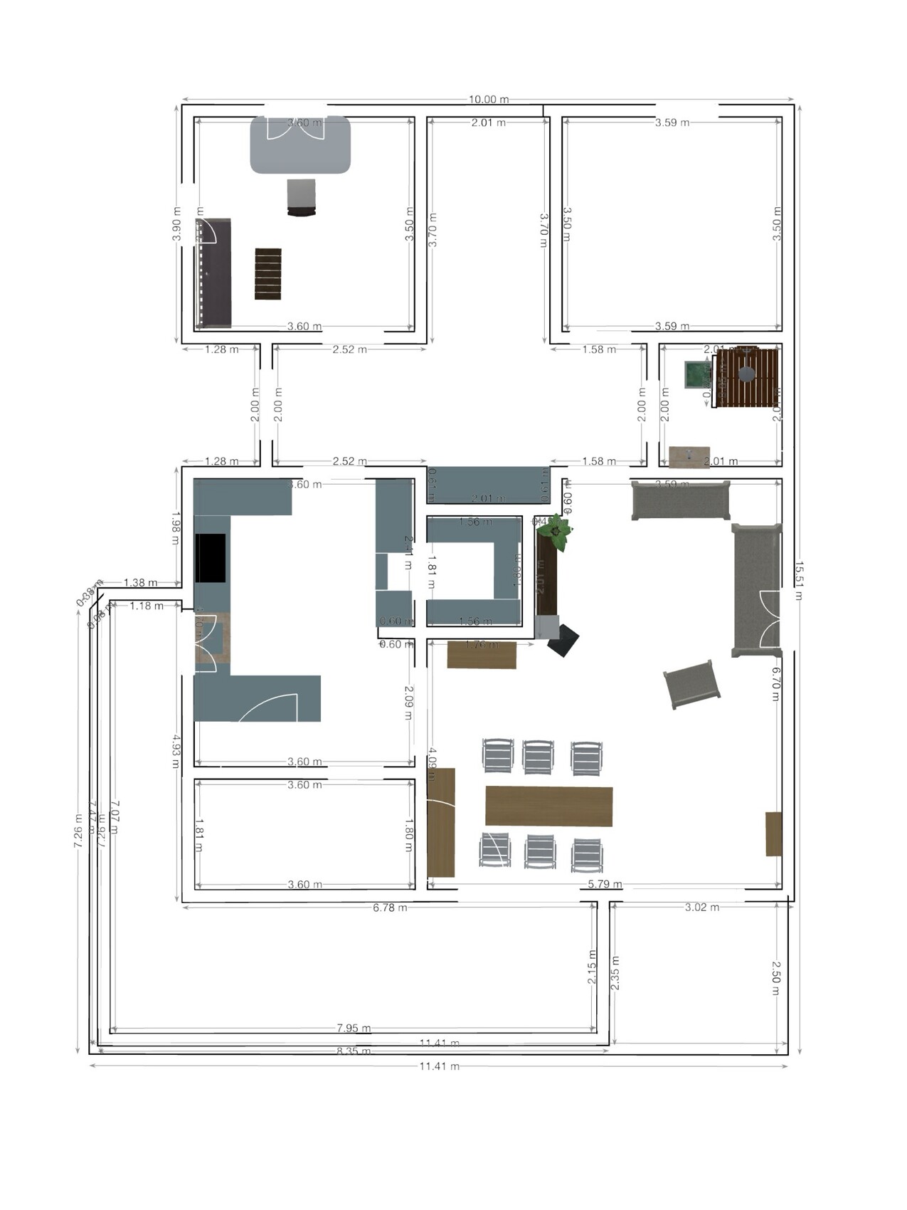
nordanney19.01.25 19:56Den Grundriss sollen andere bewerten (finde ich nicht gut), aber bei 10x13m Außenmaßen wird das Haus mit Nebenkosten (ohne Garage, Terrasse, Außenanlagen) wohl das Budget um 50% überstehen. Das ist ja ein kleiner Palast.
marcoblu schrieb:
Keller, Geschosse Kein Keller, 1.5 EtagenZur Information: Das ist ein 2-Geschosser.marcoblu schrieb:
das Erdgeschoss ist rollstuhlgerechtNein, ist es nicht. Noch nicht einmal ein gesunder Mensch kann die Toi im EG nutzen, geschweige denn Senioren oder jemand im Rollstuhl.Wenn das Schlafzimmer erst einmal mit Doppelbett möbliert ist, kann er auch dort nicht rein.
marcoblu schrieb:
Maximale RaumoptimierungNein, es ist verwinkelt und dadurch aufgebläht.Ich zähle um die 200qm plus dieser teure Mammutsanbau ohne jetzt sichtbaren Mehrwert zu einem 160er Haus.
Das sind Minimum 600000€ plus Baunebenkosten plus Carport plus Mammutsanbau.
marcoblu schrieb:
Raumbedarf im EG, OG -marcoblu schrieb:
Wir hatten eine Liste mit Dingen geschickt, die uns wichtig sind.Ich denke, ein Raumprogramm ist wichtiger, wenn man (sorry: nur) 500000€ zur Verfügung hat. Wenn die Barrierefreiheit wichtig ist, weil aktuell, dann sollte man so schnörkellos wie geht bauen. Wintergärten, Kamin und Balkone sind Kostenfresser.
Grosse Süd-Fenster im Schlafzimmer braucht man nicht.
Ich mag ihn persönlich nicht. Der Flur ist sehr unruhig, weil überall eine Tür ist. Quasi zerklüftet. Es gibt keine ruhige Wand für ein Sideboard oder Spiegel. Es wurde eher auf unwichtige Vogelperspektivensymmetrie geachtet als auf anderes. Carport ist nicht am Eingang, Sofa-Bereich ist Durchgangsraum. Auch wenn das Büro seine 12 qm hat, so kann man es nicht als Schlafzimmer möblieren.
Usw.
Mit den Maßen kann man fast nichts anfangen. Wichtige Maße fehlen.
Ähnliche Themen