Hausbau - Ratgeber
Bauherrenhilfe
- Bauherrenhilfe vor Vertragsabschluss
-- Warum einen unabhängigen Baubetreuer?
-- Vertragsgrundlagen
-- Bausumme
-- Zahlungsplan zur Kostenkontrolle
-- Pflichten des Bauherren vor Vertragsabschluss
-- Unterlagen beim Hausbau vor Vertragsabschluss
- Bauherrenhilfe nach Vertragsabschluss
-- Bauantrag bei Behörden
-- Bau-Genehmigungsverfahren bei Baubehörden
-- Bauspezifische Versicherungen
-- Bauzeitenplan
-- Baubeginn - die Letzten Pflichten der Bauherrschaft
- Bauherrenhilfe während der Bauzeit
- Gewährleistungsansprüche
- Bauabnahme
Baufinanzierung
- Baufinanzierung - Allgemeine Fragen
- Kreditarten
- Kredit-Konditionen
- Bausparen
- Staatliche Förderungen
- Verkehrswert
- Haushaltsrechnung und Bonität
Hausbau Planung
- Haustypen
- Hausbau Vorbereitungsarbeiten
- Das Baugrundstück
- Baugrund beim Hausbau
- Baurecht
- Gebäudeschutz
- Erdarbeiten und Wasserhaltung
- Stützmauern
- Einfriedung
- Untergeschoss
- Kanalisation
- Tragende Elemente
- Nichttragende Innenwände
- Fundation / Fundament
- Deckenkonstruktionen
- Dächer
- Kaminanlagen
- Treppen Rampen Leitern
- Dachbeläge und Spengler
- Fenster
- Sonnen und Wetterschutz
- Aussenputze
- Einbauten, Küchen, Türen
- Bodenbeläge und Unterlagsböden
- Parkett
- Gips, Wand, Decke
Haustechnik und Energie
- Heiztechnik
- Lüftung und Klimatechnik
- Sanitärtechnik
- Elektrotechnik
- Erneuerbare Energie
Whirlpools / Jacuzzi
Hausbau Magazin
- Baufinanzierung trotz Krise?
- Das Blockhaus
- Moderne Dämmstoffe im Vergleich
- Erker Vor- und Nachteile
- Glasflächen beim Hausbau
- Günstig ein Haus Bauen
- Mediterraner Hausbaustil
- Mehrgenerationenhaus
- Moderne Architektur
- Gartengestaltung leicht gemacht
- Traditioneller Ziegelbau
- Villa als höchster Traum
- Im Eigenheim Ruhestand geniessen
- Altbau sanieren
- Kauf einer Holzgarage
- Immobilienmakler
- Arbeitshandschuhe für den Winter
- Zuhause verschönern
- Outdoor-Plissees
- Schlafzimmer planen
- Terrassenüberdachung
- Wohngebäudeversicherung
- Zaunarten und Eigenschaften
- Hauseingang gestalten
- Der perfekte Grundriss
- Sparsamer heizen im Altbau
- Einfamilienhaus smart finanzieren
- Planung einer PV-Anlage
- Neues Haus
- Immobilienfinanzierung
- Installation einer Photovoltaikanlage
- Asbest erkennen und entfernen
- Gartenpflege im Frühling – worauf achten
- Sauna im Fokus - Wellness zuhause
- Erfolgreich vermieten
- Die perfekte Winterbekleidung
- Das Niedrigenergiehaus
- Der April und seine Stürme
- Architektonische Vielfalt
- Ökologisch und nachhaltig bauen
- Das perfekte Schlafzimmer
- Nachhaltige Energieversorgung
- Zukunftsorientiert bauen
- Nachhaltigkeit beim Hausbau
- Tiny Houses
- Wärmepumpen als nachhaltige Heizvariante
- Maßgeschneiderten Kleiderschrank
- Der richtige Baukredit
- Ratgeber für erfolgreichen Hausbau
- Haus als Altersvorsorge
Do-it-yourself Anleitungen
- Verlegeanleitung für Bodenbeläge und Parkett
- Bodenbeläge und Parkett reinigen und pflegen
- Malerarbeiten am Haus
- Garten Tipps
- Umzug und Reinigung

ᐅ Erster Entwurf des Grundrisses für 150m2 Haus

Erstellt am: 20.02.17 21:53
G
Goldi09111
G
Goldi09111
20.02.17 21:53
Hallo Zusammen,

wir haben heute unseren ersten Entwurf vorzuzeigen und würden gern eure Meinungen dazu hören bzw. lesen.

Ich schreibe erst mal nix weiter dazu und lasse lieber die beiden Grundrisse für sich sprechen.



danke
Goldi

Grundriss eines Einfamilienhausplans mit Wohnbereich, Küche, Gästezimmer, Flur und Garage


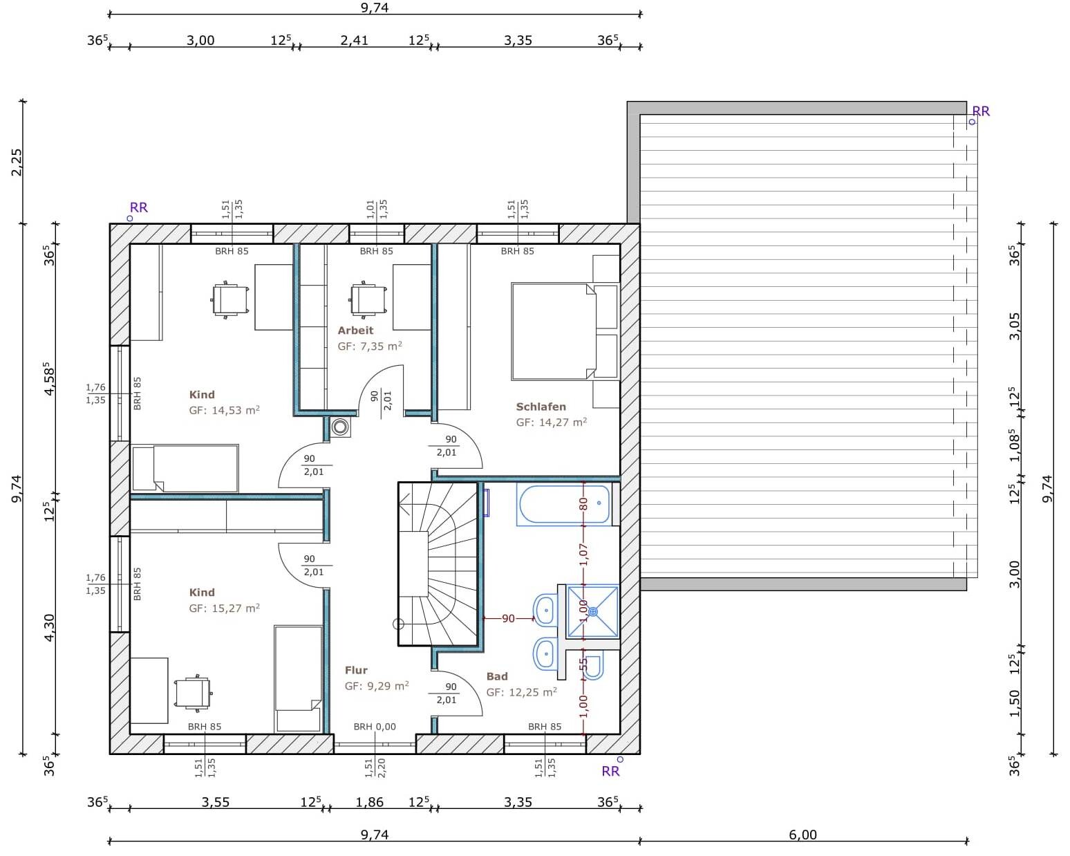
2D-Grundriss eines Hauses mit Schlafzimmer, Kinderzimmern, Bad, Flur und Treppe
K
Knallkörper
20.02.17 22:13
Hallo,

mir gefällt der Grundriss ganz gut. Ich nehme an, rechts ist Norden? Meine Anmerkungen wären:

-Der Platz in der Küche ist recht eng, könntet ihr den Schenkel mit der Halbinsel nicht verlängern? Oder müssen die Fenster symmetrisch bleiben?
-Den Kamin würde ich 90 Grad drehen, sonst ist der Durchgang zu eng und der Mindestabstand zu brennbarem Material wird nicht eingehalten.
-Im Badezimmer oben wird der Badewanne ganz schön viel Platz zugestanden, der Rest ist ziemlich gedrängt. Die Dusche würde ich mit Blick zum Fenster bauen.
-Habt ihr die Steigung der Treppe geprüft?
-Wie groß ist der schreibtisch im Arbeitszimmer, sieht bisschen eng aus.
-Gibt's das Haus vielleicht auch 1 Meter breiter? 😉
1
11ant
20.02.17 23:17
Der Entwurf sieht ungewöhnlich gelungen aus, dafür daß er wohl nicht von einem Architekten stammt (was man aber nur an einigen Maßen en detail sieht, konzeptionell wirkt er ausgereift). Was ich hier sonst sehe, wirkt häufig ungelenker in Konzeption und Dimension. Allerdings gefällt mir das Bad überhaupt nicht, das scheint mir sehr unglücklich layoutet. Da dächte ich auch über ein Fenster an der garagenzugewandten Seite nach.
https://www.instagram.com/11antgmxde/
https://www.linkedin.com/company/bauen-jetzt/
K
kbt09
21.02.17 05:47
Es ist ja schön und gut, dass du dir die Worte sparst ... es wäre aber SEHR sinnvoll, sich an die Hinweise aus
https://www.hausbau-forum.de/threads/grundrissplanung-unbedingt-vor-beitrag-erstellung-lesen.11714/
zu halten.

Du hast keinen Lageplan, keinen Nordpfeil etc. eingestellt. Man kennt den Rest auch nicht. Man weiß auch nichts zum Dach, sieht wie Walmdach aus und OG als Vollgeschoss, aber man vermutet nur.

Zum Grundriss:
Küche / Essen / Kamin halte ich auch für zu eng bzw. schlecht möblierbar. Bei Küche scheint ihr keinen hohen Ansprüche zu haben, da läßt sich nämlich nicht viel unterbringen.
G
Goldi09111
21.02.17 06:01
Knallkörper schrieb:
Hallo,

mir gefällt der Grundriss ganz gut. Ich nehme an, rechts ist Norden? Meine Anmerkungen wären:

-Der Platz in der Küche ist recht eng, könntet ihr den Schenkel mit der Halbinsel nicht verlängern? Oder müssen die Fenster symmetrisch bleiben?
-Den Kamin würde ich 90 Grad drehen, sonst ist der Durchgang zu eng und der Mindestabstand zu brennbarem Material wird nicht eingehalten.
-Im Badezimmer oben wird der Badewanne ganz schön viel Platz zugestanden, der Rest ist ziemlich gedrängt. Die Dusche würde ich mit Blick zum Fenster bauen.
-Habt ihr die Steigung der Treppe geprüft?
-Wie groß ist der Schreibtisch im Arbeitszimmer, sieht bisschen eng aus.
-Gibt's das Haus vielleicht auch 1 Meter breiter? 😉

Ja Rechts ist Norden, sorry der Pfeil fehlt.

Die Fenster müssen m. E. eh nochmal geändert werden. Ich finde es ggf. sinnvoller den Bereich der Küche weiter nach Links außen zu ziehen, sodass eine Art Vorbau entsteht. Muss natürlich in Abhängigkeit der Kosten betrachtet werden.

Das mit dem Kamin war eigentlich ein Wunsch von uns, damit dies wie eine Art Raumteiler fungiert aber sieht auf dem Plan schon sehr eng aus.

Zum Thema Bad habe ich auch noch keine gute Idee aber ein bis zwei Fenster auf der Nordseite würde m. E. auch gut passen, da die Nordansicht vom Haus sehr "kahl" ausschaut.

Die Treppe haben wir nicht geprüft aber ich gebe den Tipp gern weiter.

Der Schreibtisch im Arbeitszimmer sieht im Verhältnis zur Tür ca. 80cm tief aus. Dieses Arbeitszimmer ist mein "nice to have", das große Arbeitszimmer ist das u. g. Gästezimmer.


11ant schrieb:
Der Entwurf sieht ungewöhnlich gelungen aus, dafür daß er wohl nicht von einem Architekten stammt (was man aber nur an einigen Maßen en detail sieht, konzeptionell wirkt er ausgereift). Was ich hier sonst sehe, wirkt häufig ungelenker in Konzeption und Dimension. Allerdings gefällt mir das Bad überhaupt nicht, das scheint mir sehr unglücklich layoutet. Da dächte ich auch über ein Fenster an der garagenzugewandten Seite nach.

Er stammt von einem Architekten. Ja wie gesagt, dass Bad ist uns auch ein Dorn im Auge.



Hier mal ein paar Punkte die mir/uns aufgefallen sind:

EG
1. Türen besser 1m/2,10m
2. Küche zu klein (wenig Stauraum) - ggf. über eine Art Anbau/Vorbau erweiterbar
3. Fenster in der Küche besser länger gezogen
4. die beiden Bodentiefen Fenster direkt am bzw. hinter dem Sofa halte ich für nicht besonders sinnvoll, oder wie seht ihr dies?
5. Positionierung Kamin ggf. überdenken
6. ggf. zusätzl. ein kleines Fenster an der Nordwand im WC
7. Macht es Sinn den Hauswirtschaftsraum zu verkleinern und dafür besser Heizung und Kontrollierte-Wohnraumlüftung auf den Dachboden zu verstauen?
8. durch einen kleinen Hauswirtschaftsraum Raum könnte das Arbeits- bzw. Gästezimmer versetzt werden und der Wohn- und Essbereich "entspannt" sich ein wenig
9. Unterhalb der Treppe (wahrscheinlich Beton) sollte die Fläche als eine Art Abstellraum dienen
10. Integration von 2 Fenstern in die Garage (1x Nord & 1x Westseite)

OG
1. Größe der Kinderzimmer passen sehr gut, ggf. die Wand vom Arbeitszimmer noch in Richtung Schlafzimmer versetzen
2. Schlafzimmer ausreichend groß, ggf. noch ein Fenster in Nordwand
3. Bzgl. dem Fenster im Flur bin ich mir noch unschlüssig was a) am besten aussieht und b) was am meisten an Licht bringt und natürlich auch sauber gemacht werden kann
4. Wie schon erwähnt ist das Badezimmer noch ein größeres Thema, auf jeden Fall würde ich hier noch ein bis zwei Fenster integrieren. Weiterhin finde ich den Bereich um die Waschbecken herum sehr beengend gerade wenn hier Früh oder Abends die Kids im Bad sind.

Allgemein
1. Ich/Wir würden das Dach auf min. 22° erweitern zu Gunsten der nutzbaren Fläche auf dem Dachboden (die Dachneigung erkennt man auf den Bildern nicht ;-))
G
Goldi09111
21.02.17 06:03
kbt09 schrieb:
Es ist ja schön und gut, dass du dir die Worte sparst ... es wäre aber SEHR sinnvoll, sich an die Hinweise aus
https://www.hausbau-forum.de/threads/grundrissplanung-unbedingt-vor-beitrag-erstellung-lesen.11714/
zu halten.

Du hast keinen Lageplan, keinen Nordpfeil etc. eingestellt. Man kennt den Rest auch nicht. Man weiß auch nichts zum Dach, sieht wie Walmdach aus und OG als Vollgeschoss, aber man vermutet nur.

Zum Grundriss:
Küche / Essen / Kamin halte ich auch für zu eng bzw. schlecht möblierbar. Bei Küche scheint ihr keinen hohen Ansprüche zu haben, da läßt sich nämlich nicht viel unterbringen.

Danke für den Hinweis, werde ich noch nachholen, wird aber frühestens heute Abend werden.
fensterküchearbeitszimmerkamindachbodentreppeentwurfgrundrissbadezimmerschreibtisch