Servus Hausbau-Forum,
zunächst ist ein Wort der Entschuldigung angebracht. Vielleicht erinnern sich manche an meinen letzten Thread mit einer fast fertigen Planung. Leider ist dieser aus verschiedenen Gründen nie realisiert worden, die ich hier nicht ausbreiten will. Ich bitte um Verzeihung, dass ich dies nicht mehr in dem Forenbeitrag kommentiert habe, will den Thread jetzt aber auch nicht mehr durch einen neuen Post hochschieben. Ich habe viel von Euren Kommentaren gelernt. Die gute Nachricht: Eure Unterstützung war nicht umsonst, viel Feedback ist in eine neue Planung eingeflossen!
Mittlerweile sind wir in der Planung eines quadratisches Einfamilienhaus auf einem etwas kleineren Grundstück. Die Werkplanung wird in den nächsten Wochen abgeschlossen, hier besteht also Sicherheit, dass der Entwurf realisiert wird. Ich will Euch also durch neue Bilder/Entwürfe entschädigen und freue mich natürlich wieder auf konstruktives Feedback!
Bebauungsplan/Einschränkungen
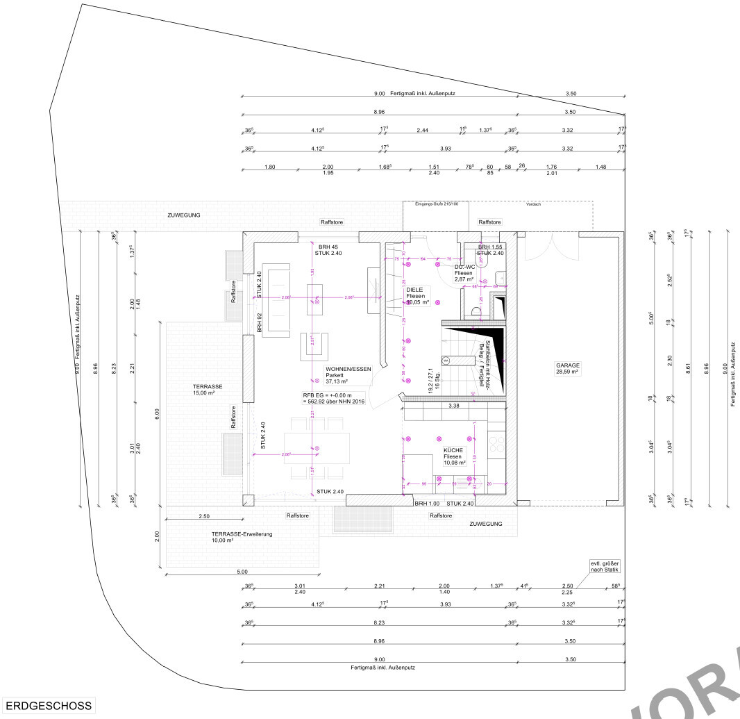
Größe des Grundstücks | 364 qm, Eckgrundstück, Ecke zur Straßenkreuzung zeigt direkt nach Süden
Anzahl Stellplatz | 1
Dachform | Walmdach
Maximale Höhen/Begrenzungen| 2H, Baugrenzen, im aktuellen Entwurf ausgereizt
Anforderungen der Bauherren
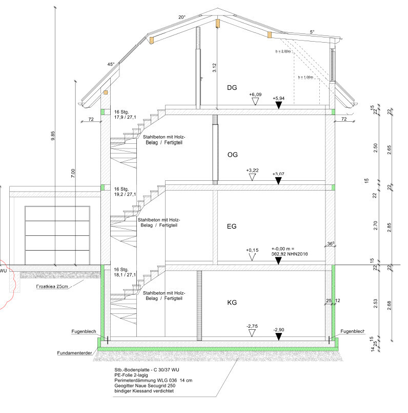
Stilrichtung, Dachform, Gebäudetyp | Einfamilienhaus Walmdach mit Gauben
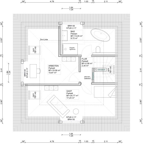
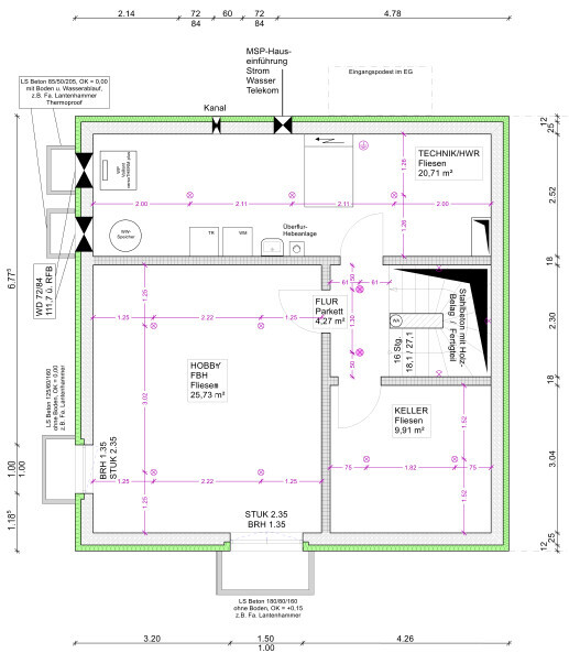
Keller, Geschosse | EG, OG, ausgebautes DG, Wohnkeller
Anzahl der Personen, Alter| Zielgröße: 2 Eltern, 2 Kinder
Raumbedarf im EG, DG, OG | Ca. 150-160 qm
Büro | 1,5 Büros notwendig für Homeoffice
Schlafgäste pro Jahr | Einige Familie im Ausland, daher relevant
offene oder geschlossene Architektur | eher offen, jedoch mit entsprechendem Schallschutz in die Schlafräume (abends Kammermusik unten, während Kinder oben schlafen)
konservativ oder moderne Bauweise | dazwischen, ein bisschen besonders soll es sein
offene Küche, Kochinsel | große offene Küche
Anzahl Essplätze | 2x3m Tisch ist vorhanden, ausziehbar auf 2x4m
Kamin | nein
Musik/Stereowand | nein
Balkon, Dachterrasse | nein
Garage, Carport | Garage mit Holzwerkstatt und Unterstellmöglichkeit für Rasenmäher oder Fahrräder
Nutzgarten, Treibhaus | Ersatzpflanzung von 3-5 Bäumen Klasse 2 vorgeschrieben
Hausentwurf
Von wem stammt die Planung? | Architektenentwurf in der n-ten Iteration mit vielen eigenen Ideen
Was gefällt besonders? Warum? | Treppe getrennt vom Wohnraum (Akustik), großer Wohnraum mit Sitzfenster, Terrasse als Verlängerung des Essbereichs (für warme Sommerabende), Elternbereich im OG und später ggf. im DG, keine Wärmepumpe außen (aus Respekt), Wäscheabwurfschacht im Treppenauge, Faschen um die Fenster
Was gefällt nicht? Warum? | Kelleraufteilung wirkt noch nicht ideal (Nutzung Hobby und Gäste, Speisekammer, Aufbewahrung), wenig natürliche Beleuchtung Treppe
Preisschätzung lt Architekt/Planer: reine Hauskosten ca. 700 KEUR, nach oben offen
favorisierte Heiztechnik: Luft-Wasser-Wärmepumpe mit Innenaufstellung
Wenn Ihr verzichten müsst, auf welche Details/Ausbauten
-könnt Ihr verzichten: Viel wurde bereits wegrationalisiert (Kamin, Außenküche)
-könnt Ihr nicht verzichten: weitere Gartenfläche, ist ja eh schon eher klein
Warum ist der Entwurf so geworden, wie er jetzt ist?
Ein großzügiges Familiendomizil mit Privatsphäre, also großen Kinderzimmern und Rückzugsraum für Eltern, Fokus auf West- und Südostgarten. Falls man sich innen aufhält, viel Fensterfläche in Richtung Südost. Dieser wird mit blickdichten Hecken eingefasst, die Straßen im Süden/Osten sind wenig befahren, daher schöner und ruhiger Garten im Süden.
Was ist die wichtigste/grundlegende Frage zum Grundriss in 130 Zeichen zusammengefasst?










zunächst ist ein Wort der Entschuldigung angebracht. Vielleicht erinnern sich manche an meinen letzten Thread mit einer fast fertigen Planung. Leider ist dieser aus verschiedenen Gründen nie realisiert worden, die ich hier nicht ausbreiten will. Ich bitte um Verzeihung, dass ich dies nicht mehr in dem Forenbeitrag kommentiert habe, will den Thread jetzt aber auch nicht mehr durch einen neuen Post hochschieben. Ich habe viel von Euren Kommentaren gelernt. Die gute Nachricht: Eure Unterstützung war nicht umsonst, viel Feedback ist in eine neue Planung eingeflossen!
Mittlerweile sind wir in der Planung eines quadratisches Einfamilienhaus auf einem etwas kleineren Grundstück. Die Werkplanung wird in den nächsten Wochen abgeschlossen, hier besteht also Sicherheit, dass der Entwurf realisiert wird. Ich will Euch also durch neue Bilder/Entwürfe entschädigen und freue mich natürlich wieder auf konstruktives Feedback!
Bebauungsplan/Einschränkungen
Größe des Grundstücks | 364 qm, Eckgrundstück, Ecke zur Straßenkreuzung zeigt direkt nach Süden
Anzahl Stellplatz | 1
Dachform | Walmdach
Maximale Höhen/Begrenzungen| 2H, Baugrenzen, im aktuellen Entwurf ausgereizt
Anforderungen der Bauherren
Stilrichtung, Dachform, Gebäudetyp | Einfamilienhaus Walmdach mit Gauben
Keller, Geschosse | EG, OG, ausgebautes DG, Wohnkeller
Anzahl der Personen, Alter| Zielgröße: 2 Eltern, 2 Kinder
Raumbedarf im EG, DG, OG | Ca. 150-160 qm
Büro | 1,5 Büros notwendig für Homeoffice
Schlafgäste pro Jahr | Einige Familie im Ausland, daher relevant
offene oder geschlossene Architektur | eher offen, jedoch mit entsprechendem Schallschutz in die Schlafräume (abends Kammermusik unten, während Kinder oben schlafen)
konservativ oder moderne Bauweise | dazwischen, ein bisschen besonders soll es sein
offene Küche, Kochinsel | große offene Küche
Anzahl Essplätze | 2x3m Tisch ist vorhanden, ausziehbar auf 2x4m
Kamin | nein
Musik/Stereowand | nein
Balkon, Dachterrasse | nein
Garage, Carport | Garage mit Holzwerkstatt und Unterstellmöglichkeit für Rasenmäher oder Fahrräder
Nutzgarten, Treibhaus | Ersatzpflanzung von 3-5 Bäumen Klasse 2 vorgeschrieben
Hausentwurf
Von wem stammt die Planung? | Architektenentwurf in der n-ten Iteration mit vielen eigenen Ideen
Was gefällt besonders? Warum? | Treppe getrennt vom Wohnraum (Akustik), großer Wohnraum mit Sitzfenster, Terrasse als Verlängerung des Essbereichs (für warme Sommerabende), Elternbereich im OG und später ggf. im DG, keine Wärmepumpe außen (aus Respekt), Wäscheabwurfschacht im Treppenauge, Faschen um die Fenster
Was gefällt nicht? Warum? | Kelleraufteilung wirkt noch nicht ideal (Nutzung Hobby und Gäste, Speisekammer, Aufbewahrung), wenig natürliche Beleuchtung Treppe
Preisschätzung lt Architekt/Planer: reine Hauskosten ca. 700 KEUR, nach oben offen
favorisierte Heiztechnik: Luft-Wasser-Wärmepumpe mit Innenaufstellung
Wenn Ihr verzichten müsst, auf welche Details/Ausbauten
-könnt Ihr verzichten: Viel wurde bereits wegrationalisiert (Kamin, Außenküche)
-könnt Ihr nicht verzichten: weitere Gartenfläche, ist ja eh schon eher klein
Warum ist der Entwurf so geworden, wie er jetzt ist?
Ein großzügiges Familiendomizil mit Privatsphäre, also großen Kinderzimmern und Rückzugsraum für Eltern, Fokus auf West- und Südostgarten. Falls man sich innen aufhält, viel Fensterfläche in Richtung Südost. Dieser wird mit blickdichten Hecken eingefasst, die Straßen im Süden/Osten sind wenig befahren, daher schöner und ruhiger Garten im Süden.
Was ist die wichtigste/grundlegende Frage zum Grundriss in 130 Zeichen zusammengefasst?
- Insbesondere Ideen zur Außenansicht: Wir wollen von außen ein "schönes Haus" bauen, nicht nur ein funktionales.
- Seht Ihr No-Gos incl. Begründung und Ideen?
Jasmin schrieb:
Guten Abend, ich gehe nur mal auf die schnelle auf eine Sache ein, dir mir bzgl. eures Esstisches aufgefallen ist. Passt die angegebene Größe zu den Raummaßen?
LG JasminDanke Dir - der Tisch ist natürlich 1m x 2m und verlängerbar auf 1m x 3m... Editieren kann ich den Post wohl aber nicht mehr.
Beim Thema Grundrisse sind alle hier viel besser, als ich... Aber an die Badewanne im DG komplett hinter der 2m Linie würde ich mal ein Fragezeichen malen wollen. Wenn ich das richtig erkenne, steht die ausserhalb der Gaube, oder? Das wird verflucht eng. Besteht die Option, die direkt auf den RF zu stellen und die Fussbodenaufbauhöhe einzusparen zugunsten der Kopffreiheit? Oder soll die freistehend werden? Wir bauen gerade direkt parallel auf der 2m Linie, liegen 10cm innerhalb der Estrich/Dämmebene und haben noch 16cm mehr Kopffreiheit aufgrund des offenen Dachstuhles (die 2m beziehen sich auf den Beginn der Balken und Oberkante Fertigfußboden). Weniger würd ich das im Einfamilienhaus ganz definitiv nicht haben wollen - ganz abgesehen von der Schwierigkeit mit der Abdichtung gegen Spritzwasser und eben kaum vorhandener Kopffreiheit... Die DN dort ist 45 Grad?
H
hanghaus202304.05.24 11:05Kannst Du mal bitte den Nordpfeil einzeichnen. Wo ist denn die Ecke der Strasse?
Ähnliche Themen