Grundriss: Doppelhaushälfte 8x12m Meinungen und kreative Ideen erwünscht :-)

5,00 Stern(e) 4 Votes
Zuletzt aktualisiert 19.11.2025
Sie befinden sich auf der Seite 15 der Diskussion zum Thema: Grundriss: Doppelhaushälfte 8x12m Meinungen und kreative Ideen erwünscht :-)
>> Zum 1. Beitrag <<

J

Jucruzlo

Nö, sehe ich nicht so. Geschossigkeiten setzt der Bebauungsplan nicht fest. Aber was ich von dem "Ding" halte, habe ich ja schon in grünen Farben beschrieben.
Ja gäbe es in der Nähe etwas Auswahl dann käme das auch definitiv nicht in Frage Wenn wir aber nicht auswandern wollen dann ist das eine der einzigen Optionen...

Aber was meinst du dürfte man da noch draus machen? Irgendwas hilfreiches für unseren Fall?
 
kaho674

kaho674

Komm gerade durcheinander: Wandhöhe 4,70m heißt, Ihr habt im OG schon Dachschrägen? Dann wird das mit den Franz. Balkonen für die Kidis aber schwierig. Oder sind das 2 Gauben? Ansichten würden helfen.
 
J

Jucruzlo

Dann wird das mit den Franz. Balkonen für die Kidis aber schwierig. Oder sind das 2 Gauben?
Ja sind Gauben

also wir haben innen eine Schräge ab etwa 1,80 (haben wir beim Nachbarn gesehen und so würden wir das auch haben wollen). Deshalb stört uns die bei der Planung wenig - aber deshalb auf jeden Fall Gauben.

Ansichten würden helfen.
weiß leider absolut nicht wie ich die Ansichten von Außen einstellen kann Bin totaler Neuling was das angeht.



Leute ich hätte noch mal ne Frage an alle:
was schätzt Ihr in etwa auf was für Kosten wir kommen?
(kein Keller, keine Hanglage)
 
S

saralina87

Bei den Kosten kommt es natürlich extrem auf die Ausstattung an, genau wie auf Bauart, kfw-Standard und regionale Unterschiede.
Wir rechnen aktuell mit 400k exklusive Grundstück für 144qm Wohnfläche (auch ohne Keller, keine Hanglage, keine Garage, keine Gauben, keine Balkone).
Ich denke mal so um den Dreh könnte sich das bei euch auch bewegen.
 
J

Jucruzlo

Bei den Kosten kommt es natürlich extrem auf die Ausstattung an, genau wie auf Bauart, kfw-Standard und regionale Unterschiede.
Wir rechnen aktuell mit 400k exklusive Grundstück für 144qm Wohnfläche (auch ohne Keller, keine Hanglage, keine Garage, keine Gauben, keine Balkone).
Ich denke mal so um den Dreh könnte sich das bei euch auch bewegen.
danke dir
ok an diese Summe haben wir auch in etwa gedacht. Ich les hier nur super oft "damit kommt du nicht hin" etc - daher wollt ich mal nachfragen was Ihr bei uns so schätzt nicht das ich Komplett aus dem Ruder laufe
 
J

Jucruzlo

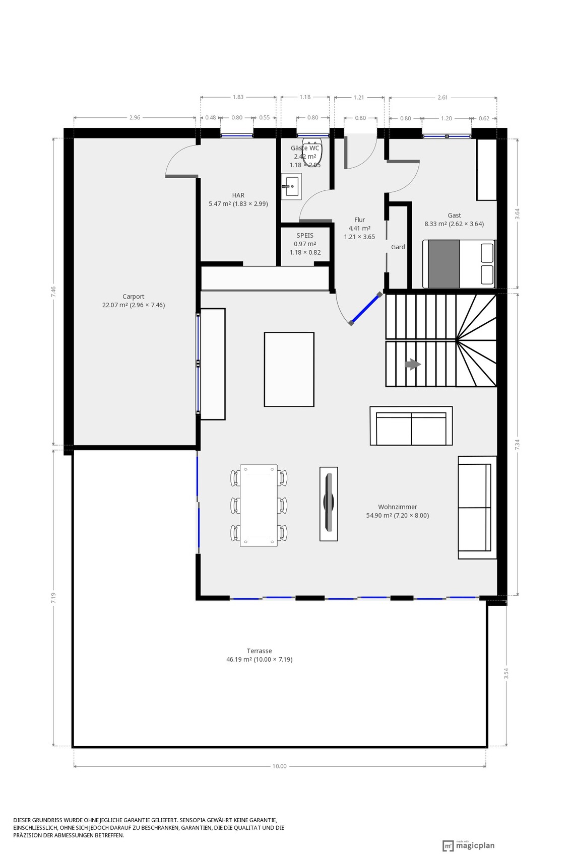
So ihr lieben hab mal nach eurem Input bisschen was geändert
(Fenster im OG noch nicht gesetzt)

Was sagt ihr? Besser so?



Also an sich gefällt es mir super - aber Irgendwie sind das im OG sehr sehr viele Türen ... was sagt ihr zu den Einbauschränken in den Kinderzimmer? Find die Kinderzimmer werden dadurch zwar kleiner aber dafür wird auch kein fetter Schrank gebraucht.
Und ist der Waschraum etwas deplatziert oder meint ihr geht das?
Hätte nur sorge das es etwas laut wird neben dem Kinderzimmer - wüsste aber andrerseits nicht wo der sonst hin soll ...

Detaillierter Grundriss eines Hauses mit Eltern- und Kinderzimmern, Bädern, Diele und Balkon.


Grundriss eines Hauses mit Wohnzimmer, Terrasse, Carport, Flur, Küche und Gästezimmer.
 
Zuletzt aktualisiert 19.11.2025
Im Forum Grundrissplanung / Grundstücksplanung gibt es 2536 Themen mit insgesamt 87972 Beiträgen


Ähnliche Themen zu Grundriss: Doppelhaushälfte 8x12m Meinungen und kreative Ideen erwünscht :-)
Nr.ErgebnisBeiträge
1Grundriss-Review Einfamilienhaus mit Keller auf leichter Hanglage 35
2Entwurf Einfamilienhaus mit 3 Kinderzimmer, Keller und Grenzbebauung 32
3Grundriss Einfamilienhaus ohne Keller, 3 Kinderzimmer und Büro 18
4Grundriss Einfamilienhaus 155m², ohne Keller, 3 Kinderzimmer, 1 Büro 38
5Einfamilienhaus mit Keller in Hanglage - Meinungen (Dachform, allgemein) 26
6Grundriss Doppehaus mit ca. 165m2 und 150m2 / mit Satteldach / Gauben 25
7Ideenfindung eines Einfamilienhauses an Hanglage. Tipps erwünscht 17
8Grundrissentwurf Einfamilienhaus mit Keller und Doppelgarage auf 540qm - Seite 226
9Grundriss und Ansichten zu Einfamilienhaus mit ca. 160 m² in Hanglage 74
10Grundriss Haus auf 2 Etagen mit leichter Hanglage - Seite 961
11Grundriss Einfamilienhaus mit Keller - Eure Meinungen bitte - Seite 216
12Doppelhaushälfte sanieren oder abreißen - Keller dabei dennoch nutzen - Seite 217
13Grundriss Einfamilienhaus ca. 200qm Doppelgarage Keller - Seite 432
14Bauverlauf: Doppelhaus mit WU-Keller und ausgebauten Spitzboden - Seite 48813
15Große Gauben oder hoher Kniestock? 33
16Grundriss Einfamilienhaus mit Keller, 150qm, nur eingeschossig erlaubt - Seite 9115
17Häuser ohne Keller: Stauraum Hobby-Keller? - Seite 549
18Ideen zu Entwurf für Einfamilienhaus mit Keller - Seite 847
19Fragen zur Planung eines Einfamilienhaus in Hamburg - Mehrkosten durch Keller 11
20Haus ohne Garage und Keller? Ausbau Dachboden? Fresswarze? - Seite 385

Oben