Grundriss: Doppelhaushälfte 8x12m Meinungen und kreative Ideen erwünscht :-)

5,00 Stern(e) 4 Votes
Zuletzt aktualisiert 19.11.2025
Sie befinden sich auf der Seite 8 der Diskussion zum Thema: Grundriss: Doppelhaushälfte 8x12m Meinungen und kreative Ideen erwünscht :-)
>> Zum 1. Beitrag <<

11ant

11ant

Nur eine klapprige Oma sollte die Möglichkeit haben mit Rollator oder Pflegekraft ins Bad zu kommen. Da ist ein Bad im anderen Stock ungeeignet.
Pflege in den Graden 4 und 5 (alte Stufe III) im Reihenhaus ist Wunschdenken, bei jedem Grad der Architektengenialität. Ab einem gewissen Grad von Worst Case wird jeder Plan Makulatur und das Schicksal mischt dann auch die Immobilienkarten unausweichlich neu. Das gilt allerdings auch für freudige Ereignisse, wenn Kind 1 ein Mehrlingsgeschwisterchen bekommt. Kein Haus taugt für alle Fälle.
 
S

saralina87

Ich würde aufgrund der Größe des Hauses auch darauf verzichten eine eierlegende Wollmilchsau zu basteln.
Dinge wie Pflegebedürftigkeit sind nicht planbar (streng genommen eben auch nicht die Zahl der benötigten Kinderzimmer).
Wenn ich eins aus unserer Planung gelernt habe: Wenn der Platz begrenzt ist muss man sich manchmal zwischen "brauche ich zwingend" (bei mir Stauraum in Form von Speis bzw. Technikraum) und "wäre schön" (Kinderbad) entscheiden.
 
F

FloHB123

Das Haus für die eigenen Eltern vorzubereiten ist ja eine gute Idee, aber ich denke nicht, dass das in diesem Haus so umsetzbar sein wird.
Ich weiß ja nicht, wie alt eure Kinder sind, aber deren Zimmer werden ja wahrscheinlich auch in ca. 20 Jahren wieder frei, sodass dort auch ein Elternteil einziehen könnte. Die Treppe kann man ja mittels Lift überwinden.
 
H

haydee

Kannst du nicht sagen. 4 geht unter Umständen. Sehe ja bei meinem Vater was geht. Und viele mit 3 lassen den Pflegedienst kommen, er unterstützt. In mehreren Punkten nicht nur beim Anziehen.
 
W

Würfel*

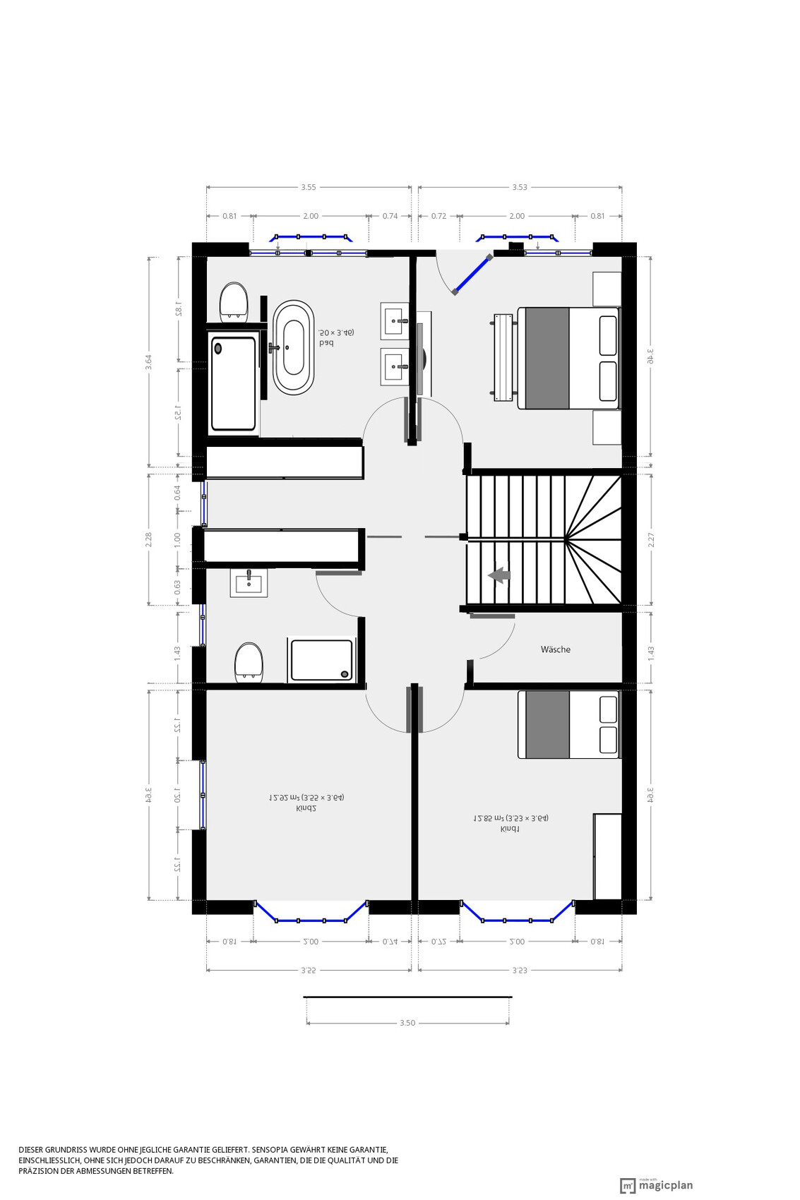
Habe Deinen OG Grundriss mal gespiegelt, damit die Kinder Richtung Garten wandern. Kinderzimmern gleiche Größe wie vorher. Funktioniert doch ganz gut, einziges Manko ist der Balkon. Im Wäscheraum wäre aber Platz für einen Trockner und eine Leine.

Grundriss des Obergeschosses mit Treppe, Bad, Wäsche und drei Schlafzimmern.
 
J

Jucruzlo

ja das stimmt - es geht absolut nicht darum für alle Eventualitäten gerüstet zu sein. Es geht rein um die Möglichkeit die Zimmer etc immer zu nutzen.

Das untere Gästezimmer ließe sich vorerst als ein Büro nutzen (und das könnte es natürlich bleiben sollte nichts weiter passieren).
Das Bad unten könnten wir auch nutzen wenn irgendwann nur noch der untere Bereich bewohnt werden soll. Demnach sehe ich es absolut nicht als Platzverschwendung. Auch finde ich es durchaus praktisch die Kids grad unten schnell abzuduschen wenn Sie eingebaut vom Spielplatz kommen .

Dennoch könnte man darüber nachdenken vorerst die Dusche unten wegzulassen und erst die Speisekammer dort zu errichten (mit allen Anschlüssen vorbereitet). Wenn wir irgendwann merken das sich die Dusche lohnen könnte, dürfte auch meine Speisekammer dafür weichen . Oder man installiert keine Dusche sondern einfach eine Brause und einen Abfluss am Boden wie ganz früher in den Toiletten da stellt sich die frage der Barrierefreiheit nicht mehr da man auf der Schüssel sitzen kann während man duscht - aber Komfort geht auch anders ... (nur ein Späßleeee)

Und @11ant natürlichhh sind 60+ davon weit entfernt Aber wir wollen da ja "für immer" wohnen und planen demnach nicht nur bis zur Wand. Aber ihr habt Recht - man kann nicht für alles gerüstet sein und das wollen wir auch gar nicht. Aber für manche Zwecke sollte es schon passen


Ich weiß ja nicht, wie alt eure Kinder sind, aber deren Zimmer werden ja wahrscheinlich auch in ca. 20 Jahren wieder frei, sodass dort auch ein Elternteil einziehen könnte. Die Treppe kann man ja mittels Lift überwinden.
Und ja - das mit dem Treppenlift wäre auch eine Idee - sollte bei einer Podesttreppe auch durchaus zu realisieren sein oder was meint ihr?
 
Zuletzt aktualisiert 19.11.2025
Im Forum Grundrissplanung / Grundstücksplanung gibt es 2536 Themen mit insgesamt 87972 Beiträgen


Ähnliche Themen zu Grundriss: Doppelhaushälfte 8x12m Meinungen und kreative Ideen erwünscht :-)
Nr.ErgebnisBeiträge
1Speisekammer vs. größere Küche vs. Hauswirtschaftsraum - Seite 213
2Grundrissplanung Stadthaus 150qm mit Satteldach 6 Zimmer - Seite 19150
3Duschbeleuchtung Walk in Dusche 14
4Ablaufrinne Bodenebene Dusche mit Fußbodenheizung 44
5Bodenebene Dusche mit Fußbodenheizung 10
6Anschluss Badewanne an Dusche 21
7Fliesenhöhe 2 m in Dusche genug? 18
8Dusche 2 Seiten offen 26
9Badaufteilung eines 4,5qm EG-Bad mit Dusche 14
10Bodengleiche Dusche mit Fenster in der Nähe 13
11Offene Dusche - Wie tief? 28
12Gästebad 75x90cm Dusche Armaturplatzierung 22
13Badplanung bei einem kleinen Bad mit Walkinn Dusche 22
14Hauptbadezimmer (10qm) mit offener Dusche, Ideen? 84
15Grundriss Bad mit Dusche 11
16Fußbodenheizung in der Dusche? - Seite 214
17Duschwanne oder geflieste Dusche? - Seite 224
18Bodentiefe offene Dusche, welche Größe? 16
19Dusche auf Podest und Schubfach 13
20Decke über der Dusche - LED-Spots 12

Oben