W
Mein Konto
Hausbau - Ratgeber
Bauherrenhilfe
- Bauherrenhilfe vor Vertragsabschluss
-- Warum einen unabhängigen Baubetreuer?
-- Vertragsgrundlagen
-- Bausumme
-- Zahlungsplan zur Kostenkontrolle
-- Pflichten des Bauherren vor Vertragsabschluss
-- Unterlagen beim Hausbau vor Vertragsabschluss
- Bauherrenhilfe nach Vertragsabschluss
-- Bauantrag bei Behörden
-- Bau-Genehmigungsverfahren bei Baubehörden
-- Bauspezifische Versicherungen
-- Bauzeitenplan
-- Baubeginn - die Letzten Pflichten der Bauherrschaft
- Bauherrenhilfe während der Bauzeit
- Gewährleistungsansprüche
- Bauabnahme
Baufinanzierung
- Baufinanzierung - Allgemeine Fragen
- Kreditarten
- Kredit-Konditionen
- Bausparen
- Staatliche Förderungen
- Verkehrswert
- Haushaltsrechnung und Bonität
Hausbau Planung
- Haustypen
- Hausbau Vorbereitungsarbeiten
- Das Baugrundstück
- Baugrund beim Hausbau
- Baurecht
- Gebäudeschutz
- Erdarbeiten und Wasserhaltung
- Stützmauern
- Einfriedung
- Untergeschoss
- Kanalisation
- Tragende Elemente
- Nichttragende Innenwände
- Fundation / Fundament
- Deckenkonstruktionen
- Dächer
- Kaminanlagen
- Treppen Rampen Leitern
- Dachbeläge und Spengler
- Fenster
- Sonnen und Wetterschutz
- Aussenputze
- Einbauten, Küchen, Türen
- Bodenbeläge und Unterlagsböden
- Parkett
- Gips, Wand, Decke
Haustechnik und Energie
- Heiztechnik
- Lüftung und Klimatechnik
- Sanitärtechnik
- Elektrotechnik
- Erneuerbare Energie
Whirlpools / Jacuzzi
Hausbau Magazin
- Baufinanzierung trotz Krise?
- Das Blockhaus
- Moderne Dämmstoffe im Vergleich
- Erker Vor- und Nachteile
- Glasflächen beim Hausbau
- Günstig ein Haus Bauen
- Mediterraner Hausbaustil
- Mehrgenerationenhaus
- Moderne Architektur
- Gartengestaltung leicht gemacht
- Traditioneller Ziegelbau
- Villa als höchster Traum
- Im Eigenheim Ruhestand geniessen
- Altbau sanieren
- Kauf einer Holzgarage
- Immobilienmakler
- Arbeitshandschuhe für den Winter
- Zuhause verschönern
- Outdoor-Plissees
- Schlafzimmer planen
- Terrassenüberdachung
- Wohngebäudeversicherung
- Zaunarten und Eigenschaften
- Hauseingang gestalten
- Der perfekte Grundriss
- Sparsamer heizen im Altbau
- Einfamilienhaus smart finanzieren
- Planung einer PV-Anlage
- Neues Haus
- Immobilienfinanzierung
- Installation einer Photovoltaikanlage
- Asbest erkennen und entfernen
- Sauna im Fokus - Wellness zuhause
- Erfolgreich vermieten
- Die perfekte Winterbekleidung
- Das Niedrigenergiehaus
- Der April und seine Stürme
- Architektonische Vielfalt
- Ökologisch und nachhaltig bauen
- Das perfekte Schlafzimmer
- Nachhaltige Energieversorgung
- Zukunftsorientiert bauen
- Nachhaltigkeit beim Hausbau
- Tiny Houses
- Wärmepumpen als nachhaltige Heizvariante
- Maßgeschneiderten Kleiderschrank
- Der richtige Baukredit
- Ratgeber für erfolgreichen Hausbau
- Haus als Altersvorsorge
Do-it-yourself Anleitungen
- Verlegeanleitung für Bodenbeläge und Parkett
- Bodenbeläge und Parkett reinigen und pflegen
- Malerarbeiten am Haus
- Garten Tipps
- Umzug und Reinigung

ᐅ Grundriss Bungalow Planen, ca. 120 m²


Erstellt am: 29.03.2019 12:21

Lemming&F 29.03.2019 12:21
Bebauungsplan/Einschränkungen
Größe des Grundstücks: ca. 840 m²
Hang: Nein
Grundflächenzahl: -
Geschossflächenzahl: -
Baufenster, Baulinie und -grenze: -
Randbebauung: -
Anzahl Stellplatz: -
Geschossigkeit: -
Dachform: -
Stilrichtung: -
Ausrichtung: -
Maximale Höhen/Begrenzungen: -
weitere Vorgaben: -

Anforderungen der Bauherren
Stilrichtung, Dachform, Gebäudetyp: Modern, Walmdach, Bungalow
Keller, Geschosse: nicht unterkellert, 1 Geschoss
Anzahl der Personen, Alter: 3, 41, 28, 0.5
Raumbedarf im EG: ca. 120 m²
Büro: Familiennutzung oder Homeoffice? nähen, zocken
Schlafgäste pro Jahr: keine
offene oder geschlossene Architektur: offen
konservativ oder moderne Bauweise: modern
offene Küche, Kochinsel: ja
Anzahl Essplätze: 6 - 8
Kamin: nein
Musik/Stereowand: nein
Balkon, Dachterrasse: nein
Garage, Carport: Carport
Nutzgarten, Treibhaus: Nein
weitere Wünsche/Besonderheiten/Tagesablauf, gern auch Begründungen, warum dieses oder das nicht sein soll:
Einfach, zweckmässig, modern

Hausentwurf
Von wem stammt die Planung:
-Planer eines Bauunternehmens nach unserer Vorgabe
Was gefällt besonders? Warum?: großer offener Ess/Wohnbereich
Was gefällt nicht? Warum?: mir fällt nicht wirklich etwas negatives auf
Preisschätzung lt Architekt/Planer: ca. 200.000€ schlüsselfertig
Persönliches Preislimit fürs Haus, inkl Ausstattung: 250.000€
favorisierte Heiztechnik: Luft Wärmepumpe

Wenn Ihr verzichten müsst, auf welche Details/Ausbauten
-könnt Ihr verzichten: ich glaube auf viel kann man hier nicht mehr verzichten
-könnt Ihr nicht verzichten: -

Warum ist der Entwurf so geworden, wie er jetzt ist? Fast genauso haben wir den Entwurf geplant. Es wurden nur die Zimmergröße und Anordnung angepasst.

Was ist die wichtigste/grundlegende Frage zum Grundriss in 130 Zeichen zusammengefasst?

Ich würde einfach gerne wissen ob auf den ersten oder zweiten Blick die Anordnung zweckmässiger werden könnte. Vielen Dank.

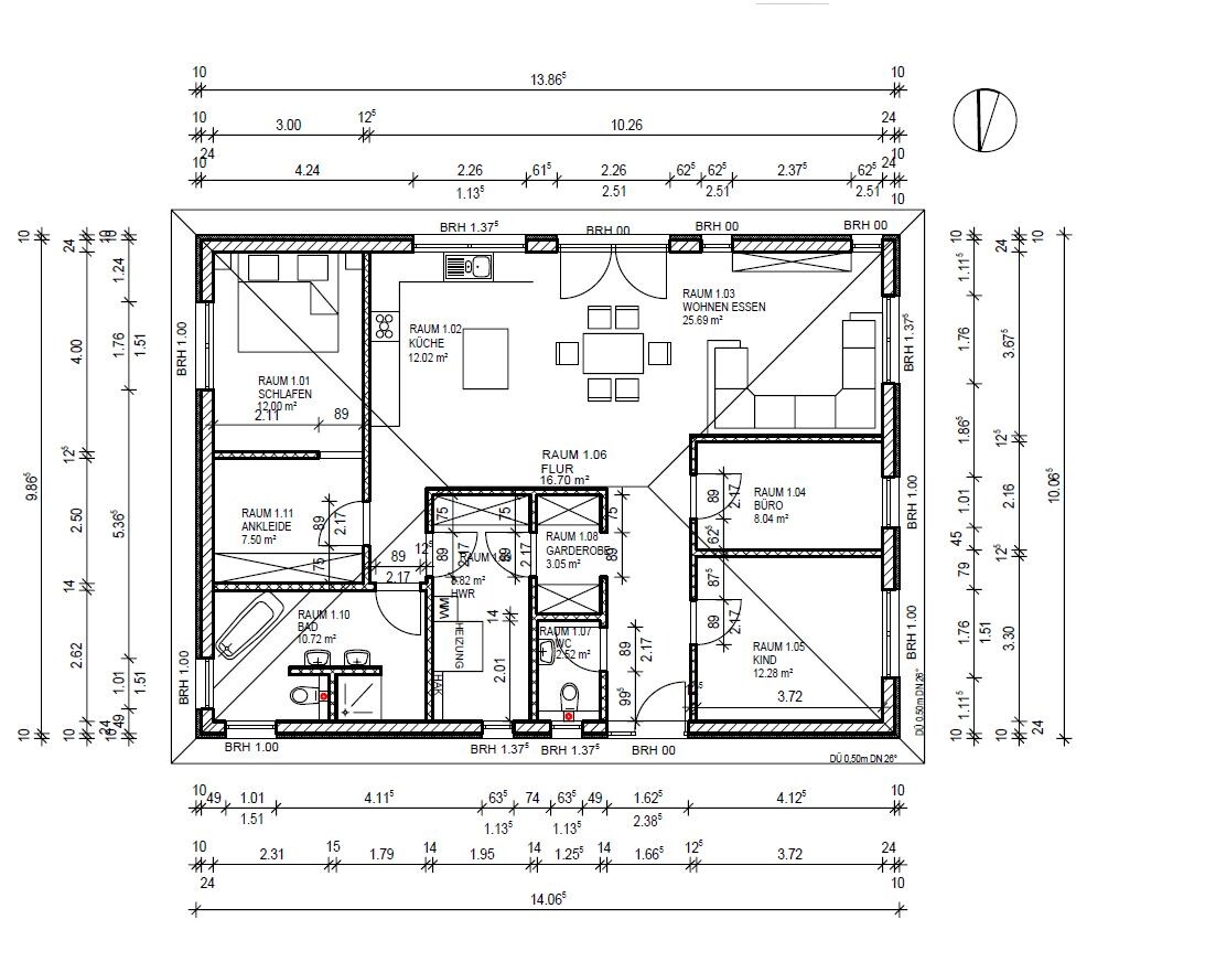
Grundriss eines Apartments: Küche, Wohnen/Essen, Schlafen, Kinderzimmer, Büro, Bad, WC, Flur.

haydee 29.03.2019 12:34
Habt ihr 2 Kinder 3 und 0,5?

Der Preis erscheint mir selbst für Sachsen-Anhalt günstig.
Schau bitte in die Bauleistungsbeschreibung.

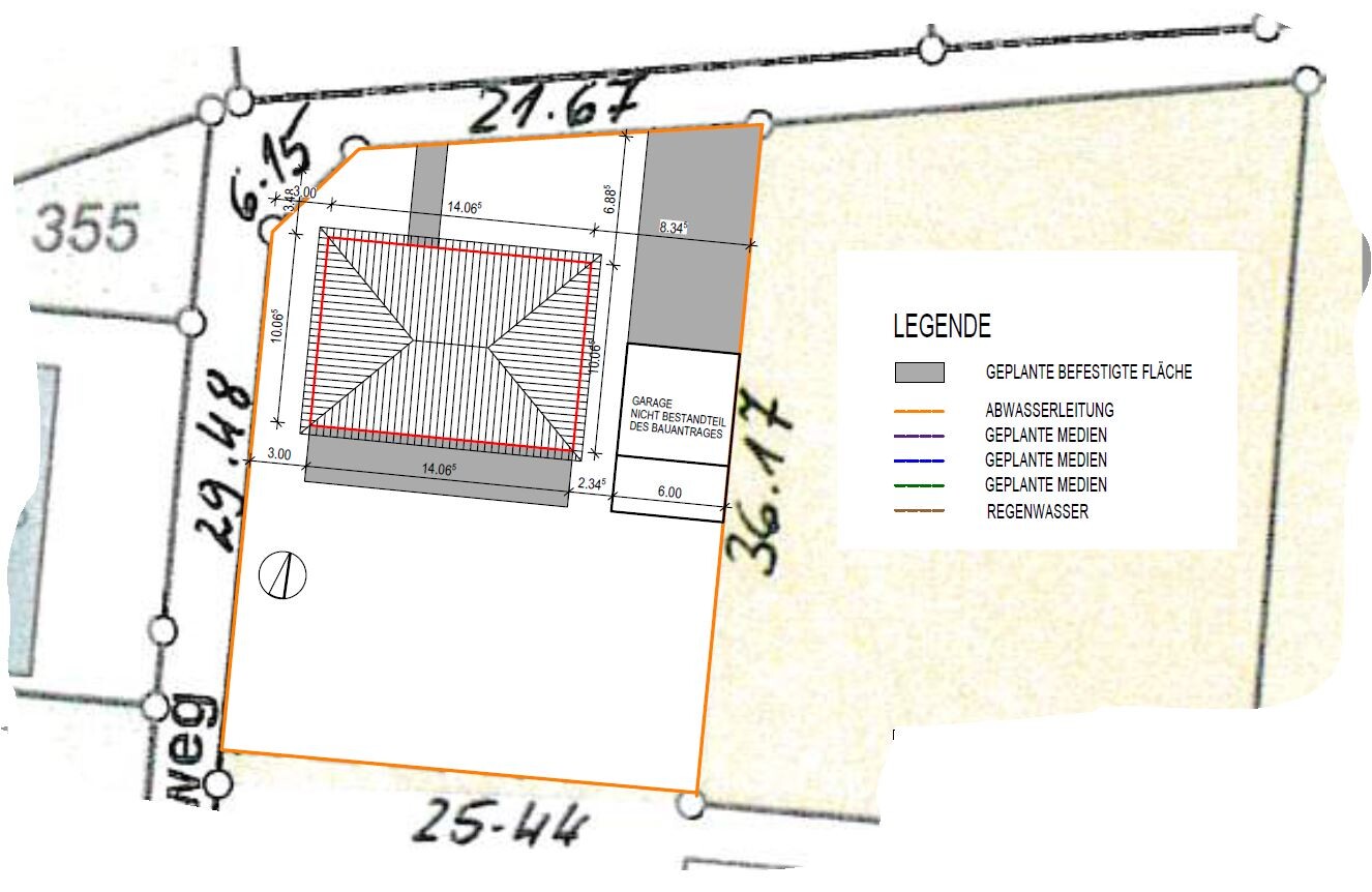
Kannst du einen Lageplan beifügen

Hauswirtschaftsraum für Wäsche, Haustechnik etc. erscheint mir sehr klein
Garderobe kaum vorhanden
Würde wie eine richtige Treppe unter das Dach planen
Für Abstellraum, Ausbaureserve etc

Ohne Maße ist der Grundriss schwer zu beurteilen. Grobe Fehler finde ich keine.
Zeichnet unbedingt eure gewünschte und vorhanden Möblierung ein

opalau 29.03.2019 12:39
3 Personen: 41, 28, 0,5

Lemming&F 29.03.2019 12:41
Hallo,

die 3 steht für die Anzahl der Personen und der kleine Mann wird ein Einzelkind bleiben.

Ich schaue nachher mal wegen dem Lageplan.
Aber das Grundstück ist (B/L) ca. 23 x 36 m. Soll im vorderen Bereich Bereich mit 3 m zur rechten und vorderen Grenze bebaut werden. Links soll die Auffahrt zum Carport sein.
Terrasse nach Süden.

Grüße

Garten2 29.03.2019 12:50
Ich hab das so gelesen, dass es 1 Kind gibt, das Leo heißt (Bub) und ein halbes Jahr alt ist.

Nordlys 29.03.2019 13:14
Ein paar Anmerkungen.
Tausche Hauswirtschaftsraum mit Gäste-WC. Du erhältst dann viel Platz fur eine U förmige Treppe, die das Dachgeschoss erschliesst wie einen Keller, da gewinnst Du dann gewaltig Lagerfläche, die bequem zugänglich ist. Ich füge Bilder dazu an.
Vergröösere das Büro um die ja nun freie Gäste-WC Fläche, nutze diesen Raum nicht als Büro, sondern als Hauswirtschaftsraum und Technikraum. Dort Bau ein Hintertür, schrank für Konserven etc. Schuhregal, Jackenschrank, Waschmaschine Trockner, Ausgussbecken für Dreckiges, für Wischwasser etc., Stromkasten, Heizung, Wasserspeicher, Telekomzugang. Das geht.
Und das Büro? Das kommt aufs Dach, denn es ist ja eh nur Bügelzimmer und zumZocken. Also nicht so wichtig. Rest des Daches Lagerraum für was Du willst.
Im Bad gefällt mir nicht diese T Anordnung. Wozu brauchen zwei Erwachsene und ein Nachkomme zwei Waschbecken! Gut ist Wandraum im Bad für ein Vertigo für Handtücher und so. Wir nutzen da eine Malmkommode von Ikea für. Badmöbel sind völlig überzogen im Preis und das Geld nicht wert. Soweit aufs Erste. Ansonsten eine gute Vorplanung. Bei Verzicht auf zu viel Schiebetüren und oder bodentiefen Fenstern günstig zu bauen. Der Aufpreis Treppe plus begehbaerer Boden plus sagen wir zwei Velux oben sollte bei um die 12-14 liegen. Die holst Du rein durch Verzicht auf Ankleidezimmer, der Schlafzimmerschrank tuts genauso, zumal eure Ankleide eh nur Gimmick ist. Begehbarer Schrank, sonst nichts, durch Vereinfachung im Bad, Konzentration der Kloabflüsse in einem Bereich, bei meinem Plan wären ja die WCs zusammen abführbar, wenn man das so plant. K.
Grundriss des Erdgeschosses mit Flur, Treppenhaus, Küche, Bad, Wohnzimmer und Garage.

Holztreppe im Innenraum mit Geländer aus Metallstäben, linke Tür sichtbar.

Dachboden mit sichtbaren Holzbalken, Sparren und rohem Holzfußboden

Waschbecken mit Chromarmatur vor grauer Wand, grünem Tuch am Rand und pinkem Eimer darunter.
gäste-wcdachformcarporthauswirtschaftsraumtreppekellerplanerentwurfgrundrisslageplan