Hallo,
wir haben uns für ein Grundstück entschieden und freuen uns über eure Meinungen zu unserem Grundriss
Bebauungsplan/Einschränkungen
Größe des Grundstücks: 920m²
Hang: 5,5% auf 31m von Nord nach Süd
Grundflächenzahl: 0,4
Geschossflächenzahl: 0,6
Baufenster, Baulinie und -grenze: 5m zur Straße
Geschossigkeit: II = I+D
Dachform: Satteldach 45°
Maximale Höhen/Begrenzungen: 4,6m
weitere Vorgaben:
Kniestöcke sind nur für II=I+D-Gebäude und bis höchstens 75cm zugelassen, gemessen von der Oberkante der Rohdecke bis zur Unterkante des Sparrens an der Maueraußenkante.
Der First der Dachaufbauten muss mindestens 0,8m tiefer liegen als der First des
Wohngebäudes.
Stilrichtung, Dachform, Gebäudetyp: Satteldach Einfamilienhaus
Keller, Geschosse: Nein, I+D
Anzahl der Personen, Alter: Er 31, Sie 28
Büro: wenig Homeoffice + wenig Gäste
offene Architektur
moderne Bauweise
offene Küche, Kochinsel
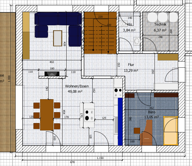
Anzahl Essplätze: 6 (oder 8 mit Stirnseiten)
Kamin: Nein
Garage
weitere Wünsche/Besonderheiten/Tagesablauf:
- Erdwärme mit Tiefenbohrung
- Lüftungsanlage mit Wärmerückgewinnung
- 36er Ziegel Monolithisch
- Elektrische Rollos Zentral gesteuert (über SPS) im EG
- Kochinsel
Hausentwurf
Von wem stammt die Planung:
-Do-it-Yourself
Preisschätzung lt Forumserfahrung:
Grundstück: inkl Nebenkosten 58k€
Haus: inkl Baunebenkosten Decke Wände: 450k€
Persönliches Preislimit fürs Haus, inkl Ausstattung:
530k€
favorisierte Heiztechnik:
Erdwärme, falls nicht möglich: Luft
Wenn Ihr verzichten müsst, auf welche Details/Ausbauten
-könnt Ihr verzichten:
- Kochinsel
- Erdwärme
Warum ist der Entwurf so geworden, wie er jetzt ist?
Durch das Forum + was man eben Benötigt
Was ist die wichtigste/grundlegende Frage zum Grundriss in 130 Zeichen zusammengefasst?
Die Dachschrägen beunruhigen mich etwas. Im Grundriss habe ich für das OG eine 1,2m Linie eingezeichnet, hier müsste theoretisch die Deckenhöhe bei 2m sein. Denn ich gehe von einem Kniestock von 80 cm aus (da die 75cm außen gemessen werden).
Ansonsten hoffen wir, ihr zeigt und "Blinke Flecken" die wir schon gar nicht mehr sehen : )




Euch schon mal vielen dank für konstruktive Kritik.
Ich hoffe wir haben nichts vergessen.
mfg

wir haben uns für ein Grundstück entschieden und freuen uns über eure Meinungen zu unserem Grundriss
Bebauungsplan/Einschränkungen
Größe des Grundstücks: 920m²
Hang: 5,5% auf 31m von Nord nach Süd
Grundflächenzahl: 0,4
Geschossflächenzahl: 0,6
Baufenster, Baulinie und -grenze: 5m zur Straße
Geschossigkeit: II = I+D
Dachform: Satteldach 45°
Maximale Höhen/Begrenzungen: 4,6m
weitere Vorgaben:
Kniestöcke sind nur für II=I+D-Gebäude und bis höchstens 75cm zugelassen, gemessen von der Oberkante der Rohdecke bis zur Unterkante des Sparrens an der Maueraußenkante.
Der First der Dachaufbauten muss mindestens 0,8m tiefer liegen als der First des
Wohngebäudes.
Stilrichtung, Dachform, Gebäudetyp: Satteldach Einfamilienhaus
Keller, Geschosse: Nein, I+D
Anzahl der Personen, Alter: Er 31, Sie 28
Büro: wenig Homeoffice + wenig Gäste
offene Architektur
moderne Bauweise
offene Küche, Kochinsel
Anzahl Essplätze: 6 (oder 8 mit Stirnseiten)
Kamin: Nein
Garage
weitere Wünsche/Besonderheiten/Tagesablauf:
- Erdwärme mit Tiefenbohrung
- Lüftungsanlage mit Wärmerückgewinnung
- 36er Ziegel Monolithisch
- Elektrische Rollos Zentral gesteuert (über SPS) im EG
- Kochinsel
Hausentwurf
Von wem stammt die Planung:
-Do-it-Yourself
Preisschätzung lt Forumserfahrung:
Grundstück: inkl Nebenkosten 58k€
Haus: inkl Baunebenkosten Decke Wände: 450k€
Persönliches Preislimit fürs Haus, inkl Ausstattung:
530k€
favorisierte Heiztechnik:
Erdwärme, falls nicht möglich: Luft
Wenn Ihr verzichten müsst, auf welche Details/Ausbauten
-könnt Ihr verzichten:
- Kochinsel
- Erdwärme
Warum ist der Entwurf so geworden, wie er jetzt ist?
Durch das Forum + was man eben Benötigt
Was ist die wichtigste/grundlegende Frage zum Grundriss in 130 Zeichen zusammengefasst?
Die Dachschrägen beunruhigen mich etwas. Im Grundriss habe ich für das OG eine 1,2m Linie eingezeichnet, hier müsste theoretisch die Deckenhöhe bei 2m sein. Denn ich gehe von einem Kniestock von 80 cm aus (da die 75cm außen gemessen werden).
Ansonsten hoffen wir, ihr zeigt und "Blinke Flecken" die wir schon gar nicht mehr sehen : )
Euch schon mal vielen dank für konstruktive Kritik.
Ich hoffe wir haben nichts vergessen.
mfg
O
Obstlerbaum21.01.19 15:20Die Kinderzimmer emfinde ich als zu klein. Der Essplatz ist auch recht kompakt, wenn man mal eine Feier hat und den Tisch ausziehen will. Abstellflächen habt ihr exakt gar keine im ganzen Haus. Wo stehen Putzsachen, Staubsauger, Sportartikel, Saison-Deko, Reisekoffer/Trolleys usw.?
W
WilhelmRo21.01.19 15:29Kann man Beiträge direkt verlinken?
In Beitrag #30 habe ich nachgebessert.
2. Ist die Wohnung noch nicht komplett möbliert. Da wird auch versucht Stauraum zu finden.
3. Unter der Treppe soll noch Platz entstehen. Ob eigener "Miniraum" oder wie genau, das weis ich noch nicht.
4. Im OG sollen niedrige Schränke in den 1,1m Kniestock im Hauswirtschaftsraum zur Aufbewahrung diverser Dinge.
5. Bei einem 45° Satteldach, halte ich mir die Option offen, noch Platz unter dem Dach zu finden.
Danke für deinen Denkanstoß!
mfg
In Beitrag #30 habe ich nachgebessert.
Obstlerbaum schrieb:Hat jetzt mehr Platz (außer du beziehst dich schon auf Beitrag #30).
Der Essplatz ist auch recht kompakt, wenn man mal eine Feier hat und den Tisch ausziehen will.
Obstlerbaum schrieb:1. Wir haben 2m mal 10m Abstellfläche in der Garage. Eben weil Keller fehlt, wird die etwas größer.
Wo stehen Putzsachen, Staubsauger, Sportartikel, Saison-Deko, Reisekoffer/Trolleys usw.?
2. Ist die Wohnung noch nicht komplett möbliert. Da wird auch versucht Stauraum zu finden.
3. Unter der Treppe soll noch Platz entstehen. Ob eigener "Miniraum" oder wie genau, das weis ich noch nicht.
4. Im OG sollen niedrige Schränke in den 1,1m Kniestock im Hauswirtschaftsraum zur Aufbewahrung diverser Dinge.
5. Bei einem 45° Satteldach, halte ich mir die Option offen, noch Platz unter dem Dach zu finden.
Danke für deinen Denkanstoß!
mfg
W
WilhelmRo21.01.19 15:33ypg schrieb:
Gönnt Euch unten etwas mehr Grundfläche -> Hauswirtschaftsraum unten, Abstellraum, größeres Büro.
Dann entspannt es sich oben. Ihr könnt die die Räume besser nutzbar machen und innen den Kniestock etwas ankoffern und somit erhöhen.ypg schrieb:
Junge, schmeiß den Entwurf weg.
Das ist nichts mit den zu engen Dachschrägen.
Oben hast kein vernünftigen Raum, auch nicht mit dritten Giebel.Ich kann mich nur wiederholen: fang neu an. Auch wenn Du jetzt am Haus vertiefen bist: das ist doch nur Rumfrickelei und das Festhalten an eine Computerzeichnung, in der etwas Zeit steckt.
Ein Hauswirtschaftsraum will mehrere Male am Tag betreten werden, ist aber ein gefangener Raum. Da bekommt man Verstopfung, sorry!
Zum jetzigen Stand ein paar Überlegungen:
- Dein HAR ist komplett eingemauert. Dürfen bei Euch die Zuleitungen mit anderen Räumen überbaut werden?
- Garagenabstellraum und Hauswirtschaftsraum könnte man auch zu einem Raum verbinden. Wer will schon wegen dem Besen aus dem Haus in die Garage rennen? Hinten dann Technik und vorne Hauswirtschaftsraum. Damit fällt letzterer oben weg und die Situation entspannt sich dort.
- Falls Hauswirtschaftsraum unbedingt oben bleiben soll, tausche evtl. Bad und Hauswirtschaftsraum. Baden kann man auch unter einer Schräge noch recht gut. Wäsche einfüllen dagegen beschissen.
- Dein HAR ist komplett eingemauert. Dürfen bei Euch die Zuleitungen mit anderen Räumen überbaut werden?
- Garagenabstellraum und Hauswirtschaftsraum könnte man auch zu einem Raum verbinden. Wer will schon wegen dem Besen aus dem Haus in die Garage rennen? Hinten dann Technik und vorne Hauswirtschaftsraum. Damit fällt letzterer oben weg und die Situation entspannt sich dort.
- Falls Hauswirtschaftsraum unbedingt oben bleiben soll, tausche evtl. Bad und Hauswirtschaftsraum. Baden kann man auch unter einer Schräge noch recht gut. Wäsche einfüllen dagegen beschissen.
Ähnliche Themen