ᐅ Einfamilienhaus 145qm mit Garage ohne Keller
Erstellt am: 01.12.16 15:36
Hallo zusammen!
Wir sind gerade in der Endplanung für unser neues Zuhause.
Wir würden uns sehr über Meinungen, Tipps, Vorschläge und Kritik Eurerseits freuen!
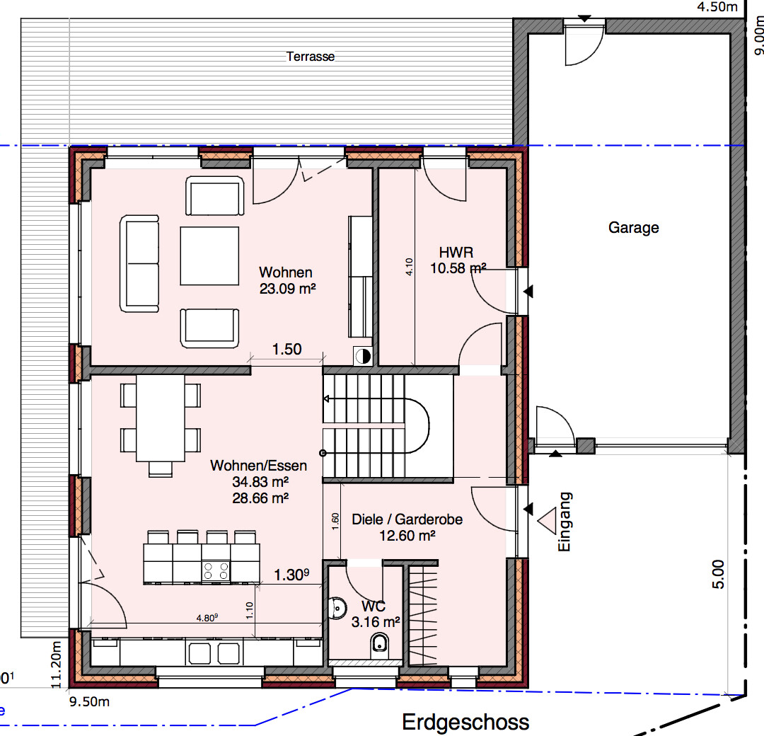
Der Entwurf gefällt uns im Grunde sehr gut, allerdings bin ich mit der Treppensituation im Obergeschoss nicht glücklich. Unten ist eine Podesttreppe, die dann als halbgewendete Treppe (wg. Platzmangel) in den Spitzboden führt. Diese Kombi finde ich allein fürs Auge nicht schön. Haben versucht mit einer geraden Treppe zu planen, aber da sind wir irgendwie nicht weitergekommen. Wir mögen gewendete Treppen nicht so gern und das erscheint gerade als größter Stolperstein.
Die Treppe soll auch nicht im Eingangsbereich sein oder vom Eingang sichtbar.
Beide Treppen sind nach hinten hin offen (versteht man das?). Es ist ein Luftraum im Flur bis nach ganz oben. Da ist nur eine gemauerte Brüstung geplant (oder ein Geländer).
Die Treppe soll andersherum begehbar werden.
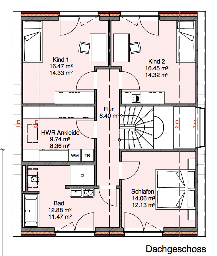
Oben hätte ich lieber Waschmaschine und Trockner mit im Bad. Wobei die Lösung in der Ankleide für uns auch ok ist.
Ist generell genug Abstellfläche vorhanden? Die Garage ist mit 4,5x9m sehr groß, wird aber auch als Werkstatt genutzt, so dass nur der Abstellraum unten, die Fläche unter der Treppe und der Spitzboden als Abstellmöglichkeit dienen.
Der Flur oben ist uns mit momentan 115cm zu schmal und wird auf ca 130-140cm erweitert.
Der Spitzboden wird komplett ausgebaut, weil da mein kleines Büro hinkommt. Der Rest der Fläche dient Abstellzwecken - im Plan ist das noch nicht realisiert.
Vielen Dank schon mal für Euer Feedback und hier noch die Eckdaten:
Bebauungsplan/Einschränkungen
Größe des Grundstücks: 509qm
Hang: nein
Geschossflächenzahl: 0,4
Baufenster: 11,24 cm tief Baulinie und -grenze: 3m Abstand zu Grundstücksgrenze
Randbebauung: Garage im Norden über 9m
Anzahl Stellplatz: 2 (vor Garage und unter dem Küchenfenster)
Geschossigkeit: 2
Dachform: Satteldach 38-48 Grad
Stilrichtung
Ausrichtung: Firstrichtung Ost/West
Maximale Höhen/Begrenzungen: 9,5m
Traufhöhe 4,2 m
weitere Vorgaben
Anforderungen der Bauherren
Stilrichtung: modern
Dachform: Satteldach ohne Dachüberstände
Gebäudetyp: Einfamilienhaus
Keller: nein
Geschosse: 1,5 und Spitzboden
Anzahl der Personen: 4
Alter: 44, 37, 4, 2
Raumbedarf im EG: Wohnzimmer, Küche mit Esszimmer, Garderobe, Gäste-WC, Abstellraum
OG: 2 Kinderzimmer, Elternschlafzimmer, getrennte Garderobe/Ankleidezimmer mit Waschmaschine /Trockner, Bad
Spitzboden: Technikraum, Büro
Büro: Familiennutzung oder Homeoffice: Homeoffice
Schlafgäste pro Jahr: 4-10
offene oder geschlossene Architektur: offen
konservativ oder moderne Bauweise: modern
offene Küche, Kochinsel: ja, ja
Anzahl Essplätze: 8
Kamin: ja
Musik/Stereowand: nein
Balkon, Dachterrasse: nein
Garage, Carport: Ja, nein
Nutzgarten, Treibhaus: nein
weitere Wünsche/Besonderheiten/Tagesablauf: Podesttreppe oder gerade Treppe, Treppe im Wohn-/Essbereich, Wohnzimmer nicht größer als 25qm, Zugang von Garage ins Haus, großer Koch-/Essbereich, große Kinderzimmer (ca. 15qm) Richtung Garten(West) Elternschlafzimmer nicht größer als 12-14qm, Ankleide und Schlafzimmer getrennt, da unterschiedliche Aufstehzeiten, Ankleide mit Waschmaschine /Trockner, großes Bad (mit W/T alternativ zum Ankleidezimmer), richtige Treppe in den Spitzboden, da dieser als Büro genutzt wird
Hausentwurf
Von wem stammt die Planung:
Planer eines Bauunternehmens und Do-it-Yourself
Was gefällt besonders: Kinderzimmer, Größe des Badezimmers, der HAR Raum unten mit Zugang zur Garage und zum Garten, geräumiger Eingangsbereich, Treppe in Essbereich
Was gefällt nicht: Treppe vom Obergeschoss in den Spitzboden, Ansicht von der Straße (ost)
Preisschätzung lt Architekt/Planer:
Persönliches Preislimit fürs Haus, inkl Ausstattung:
favorisierte Heiztechnik: Gas, Kontrollierte-Wohnraumlüftung mit Wärmerückgewinnung
Wenn Ihr verzichten müsst, auf welche Details/Ausbauten
-könnt Ihr verzichten: nichts
-könnt Ihr nicht verzichten: nichts
Vielen Dank!
XeNiA








Wir sind gerade in der Endplanung für unser neues Zuhause.
Wir würden uns sehr über Meinungen, Tipps, Vorschläge und Kritik Eurerseits freuen!
Der Entwurf gefällt uns im Grunde sehr gut, allerdings bin ich mit der Treppensituation im Obergeschoss nicht glücklich. Unten ist eine Podesttreppe, die dann als halbgewendete Treppe (wg. Platzmangel) in den Spitzboden führt. Diese Kombi finde ich allein fürs Auge nicht schön. Haben versucht mit einer geraden Treppe zu planen, aber da sind wir irgendwie nicht weitergekommen. Wir mögen gewendete Treppen nicht so gern und das erscheint gerade als größter Stolperstein.
Die Treppe soll auch nicht im Eingangsbereich sein oder vom Eingang sichtbar.
Beide Treppen sind nach hinten hin offen (versteht man das?). Es ist ein Luftraum im Flur bis nach ganz oben. Da ist nur eine gemauerte Brüstung geplant (oder ein Geländer).
Die Treppe soll andersherum begehbar werden.
Oben hätte ich lieber Waschmaschine und Trockner mit im Bad. Wobei die Lösung in der Ankleide für uns auch ok ist.
Ist generell genug Abstellfläche vorhanden? Die Garage ist mit 4,5x9m sehr groß, wird aber auch als Werkstatt genutzt, so dass nur der Abstellraum unten, die Fläche unter der Treppe und der Spitzboden als Abstellmöglichkeit dienen.
Der Flur oben ist uns mit momentan 115cm zu schmal und wird auf ca 130-140cm erweitert.
Der Spitzboden wird komplett ausgebaut, weil da mein kleines Büro hinkommt. Der Rest der Fläche dient Abstellzwecken - im Plan ist das noch nicht realisiert.
Vielen Dank schon mal für Euer Feedback und hier noch die Eckdaten:
Bebauungsplan/Einschränkungen
Größe des Grundstücks: 509qm
Hang: nein
Geschossflächenzahl: 0,4
Baufenster: 11,24 cm tief Baulinie und -grenze: 3m Abstand zu Grundstücksgrenze
Randbebauung: Garage im Norden über 9m
Anzahl Stellplatz: 2 (vor Garage und unter dem Küchenfenster)
Geschossigkeit: 2
Dachform: Satteldach 38-48 Grad
Stilrichtung
Ausrichtung: Firstrichtung Ost/West
Maximale Höhen/Begrenzungen: 9,5m
Traufhöhe 4,2 m
weitere Vorgaben
Anforderungen der Bauherren
Stilrichtung: modern
Dachform: Satteldach ohne Dachüberstände
Gebäudetyp: Einfamilienhaus
Keller: nein
Geschosse: 1,5 und Spitzboden
Anzahl der Personen: 4
Alter: 44, 37, 4, 2
Raumbedarf im EG: Wohnzimmer, Küche mit Esszimmer, Garderobe, Gäste-WC, Abstellraum
OG: 2 Kinderzimmer, Elternschlafzimmer, getrennte Garderobe/Ankleidezimmer mit Waschmaschine /Trockner, Bad
Spitzboden: Technikraum, Büro
Büro: Familiennutzung oder Homeoffice: Homeoffice
Schlafgäste pro Jahr: 4-10
offene oder geschlossene Architektur: offen
konservativ oder moderne Bauweise: modern
offene Küche, Kochinsel: ja, ja
Anzahl Essplätze: 8
Kamin: ja
Musik/Stereowand: nein
Balkon, Dachterrasse: nein
Garage, Carport: Ja, nein
Nutzgarten, Treibhaus: nein
weitere Wünsche/Besonderheiten/Tagesablauf: Podesttreppe oder gerade Treppe, Treppe im Wohn-/Essbereich, Wohnzimmer nicht größer als 25qm, Zugang von Garage ins Haus, großer Koch-/Essbereich, große Kinderzimmer (ca. 15qm) Richtung Garten(West) Elternschlafzimmer nicht größer als 12-14qm, Ankleide und Schlafzimmer getrennt, da unterschiedliche Aufstehzeiten, Ankleide mit Waschmaschine /Trockner, großes Bad (mit W/T alternativ zum Ankleidezimmer), richtige Treppe in den Spitzboden, da dieser als Büro genutzt wird
Hausentwurf
Von wem stammt die Planung:
Planer eines Bauunternehmens und Do-it-Yourself
Was gefällt besonders: Kinderzimmer, Größe des Badezimmers, der HAR Raum unten mit Zugang zur Garage und zum Garten, geräumiger Eingangsbereich, Treppe in Essbereich
Was gefällt nicht: Treppe vom Obergeschoss in den Spitzboden, Ansicht von der Straße (ost)
Preisschätzung lt Architekt/Planer:
Persönliches Preislimit fürs Haus, inkl Ausstattung:
favorisierte Heiztechnik: Gas, Kontrollierte-Wohnraumlüftung mit Wärmerückgewinnung
Wenn Ihr verzichten müsst, auf welche Details/Ausbauten
-könnt Ihr verzichten: nichts
-könnt Ihr nicht verzichten: nichts
Vielen Dank!
XeNiA
Erstmal: bevor ich es vergesse: Küchenfenster sollte wegen der äußeren Optik etwas nach planrechts, also links bündig mit oberen Fenster - dann können auch zwei Hochschränke nebeneinander.
Was plant ihr unter der Treppe im EG? Kommt da eine Wand hin? Einbauschrank?
Ich würde eine Tür im Hauswirtschaftsraum weglassen, nämlich die zur Garage. Eingang ist nah genug, somit unnötig.
Ich liebe große Fenster, aber ich denke, dass das WZ zu viel hat, insofern keine Geborgenheit bringt. Irgendwie fließt überall die Energie raus und wird nicht durch fehlende Wände gehalten...
Auch die Außenansicht leidet.
Wie breit ist der Flur oben?
Grüsse
Was plant ihr unter der Treppe im EG? Kommt da eine Wand hin? Einbauschrank?
Ich würde eine Tür im Hauswirtschaftsraum weglassen, nämlich die zur Garage. Eingang ist nah genug, somit unnötig.
Ich liebe große Fenster, aber ich denke, dass das WZ zu viel hat, insofern keine Geborgenheit bringt. Irgendwie fließt überall die Energie raus und wird nicht durch fehlende Wände gehalten...
Auch die Außenansicht leidet.
Wie breit ist der Flur oben?
Grüsse
Danke Dir für die Antwort!
Das Fenster in der Küche ist in der Breite momentan so, dass links und rechts vom Fenster zwei Hochschränke nebeneinander stehen können. Ich weiß nur noch nicht, ob mir das in der Küche von der Optik her zu symmetrisch wird. Aber es wird auf jeden Fall noch so geändert, dass es harmonischer zu dem oberen Fenster passt.
Unter der Treppe hätte ich gern einen Einbauschrank, mein Mann lieber einen Abstellraum. Noch gibt es keine Einigung ;-)
Genau wie über die Tür Garage zum Hauswirtschaftsraum. Ich würde die auch gern weg lassen. Mein Mann hätte die aber sehr sehr gern. Da ist noch Diskussionsbedarf.
Der Flur oben ist im Moment 1,15 m. Wird aber auf 1,30-1,40 erweitert. Das ist schon besprochen und wird geändert. Ist das dann breit genug?
Über das Wohnzimmer habe ich mir in der Hinsicht, dass es unbehaglich wirken könnte durch die vielen Fenster, ehrlich noch gar keine Gedanken gemacht :-/
Wie würdest Du das ändern? Ein oder zwei Fenster ganz weglassen? Oder nicht bodentief? Oder versetzen?
Lieben Dank schon mal für die Denkanstöße!
Grüße
Das Fenster in der Küche ist in der Breite momentan so, dass links und rechts vom Fenster zwei Hochschränke nebeneinander stehen können. Ich weiß nur noch nicht, ob mir das in der Küche von der Optik her zu symmetrisch wird. Aber es wird auf jeden Fall noch so geändert, dass es harmonischer zu dem oberen Fenster passt.
Unter der Treppe hätte ich gern einen Einbauschrank, mein Mann lieber einen Abstellraum. Noch gibt es keine Einigung ;-)
Genau wie über die Tür Garage zum Hauswirtschaftsraum. Ich würde die auch gern weg lassen. Mein Mann hätte die aber sehr sehr gern. Da ist noch Diskussionsbedarf.
Der Flur oben ist im Moment 1,15 m. Wird aber auf 1,30-1,40 erweitert. Das ist schon besprochen und wird geändert. Ist das dann breit genug?
Über das Wohnzimmer habe ich mir in der Hinsicht, dass es unbehaglich wirken könnte durch die vielen Fenster, ehrlich noch gar keine Gedanken gemacht :-/
Wie würdest Du das ändern? Ein oder zwei Fenster ganz weglassen? Oder nicht bodentief? Oder versetzen?
Lieben Dank schon mal für die Denkanstöße!
Grüße
B
Bieber081502.12.16 06:56Gefällt mir! Das sind die großen Fenster für die Energieeinsparverordnung/KFW? Wer wohnt denn links von euch? Wie nah dran?
Da ihr im OG Platz für die Waschmaschine habt, sollte im Hauswirtschaftsraum genug Platz sein. Ich bin ein großer Freund des direkten Durchgangs in die Garage (bei Häusern ohne Keller), so dass ich die Tür behalten würde. Alternativ könnt ihr mit einem geschickt gewählten Vordach sicher auch einen bequemen und trockenen Weg einrichten (zumal ihr dann nicht das Garagentor öffnen müsst, sondern nur eine Tür).
Da ihr im OG Platz für die Waschmaschine habt, sollte im Hauswirtschaftsraum genug Platz sein. Ich bin ein großer Freund des direkten Durchgangs in die Garage (bei Häusern ohne Keller), so dass ich die Tür behalten würde. Alternativ könnt ihr mit einem geschickt gewählten Vordach sicher auch einen bequemen und trockenen Weg einrichten (zumal ihr dann nicht das Garagentor öffnen müsst, sondern nur eine Tür).
J
j.bautsch02.12.16 08:10Ich weiß man kann auch mit einer Dusche zurecht kommen, aber bei 2 kindern sollte man noch mal drüber nachdenken 😉
ansonsten stimme ich meinen vorrednern und dir zu:
flur im og würde ich auch breiter machen und zu viele fenster im wohnzimmer wirken glaube ich auch zu "luftig".
schmeißt ihr alles an kleidung in den trockner? ansonsten noch die frage: wo wird die wäsche denn aufgehangen? 🙂
bei der küche würde ich noch mal überlegen ob die 4 sitzeplätze 1. sein müssen und 2. wirklich alle 4 nebeneinander sein sollen (falls die küche wirklich so geplant ist). der esstisch steht ja direkt neben der insel und zudem sind 4 hühner auf der stange gar nicht so sehr kommunikativ, ich finde es besser wenn man sich gegenüber sitzt. außerdem solltet ihr drüber nach denken spüle und kochfeld zu tauschen, da es für die sitzenden gerade wenn etwas angebraten wir die gemütlichkeit doch sehr abnehmen kann. fettspritzer und hitze finde ich nicht so angenehm 😉
ansonsten stimme ich meinen vorrednern und dir zu:
flur im og würde ich auch breiter machen und zu viele fenster im wohnzimmer wirken glaube ich auch zu "luftig".
schmeißt ihr alles an kleidung in den trockner? ansonsten noch die frage: wo wird die wäsche denn aufgehangen? 🙂
bei der küche würde ich noch mal überlegen ob die 4 sitzeplätze 1. sein müssen und 2. wirklich alle 4 nebeneinander sein sollen (falls die küche wirklich so geplant ist). der esstisch steht ja direkt neben der insel und zudem sind 4 hühner auf der stange gar nicht so sehr kommunikativ, ich finde es besser wenn man sich gegenüber sitzt. außerdem solltet ihr drüber nach denken spüle und kochfeld zu tauschen, da es für die sitzenden gerade wenn etwas angebraten wir die gemütlichkeit doch sehr abnehmen kann. fettspritzer und hitze finde ich nicht so angenehm 😉
Bieber0815 schrieb:
Gefällt mir! Das sind die großen Fenster für die Energieeinsparverordnung/KfW? Wer wohnt denn links von euch? Wie nah dran?
Da ihr im OG Platz für die Waschmaschine habt, sollte im Hauswirtschaftsraum genug Platz sein. Ich bin ein großer Freund des direkten Durchgangs in die Garage (bei Häusern ohne Keller), so dass ich die Tür behalten würde. Alternativ könnt ihr mit einem geschickt gewählten Vordach sicher auch einen bequemen und trockenen Weg einrichten (zumal ihr dann nicht das Garagentor öffnen müsst, sondern nur eine Tür).Danke Dir!
Genau das sind die großen Fenster für Energieeinsparverordnung/KfW.
Neben uns im Westen steht in ca. 8m Entfernung das Nachbarhaus.
Denke und hoffe, dass es dann mit den bodentiefen Fenstern dennoch ok ist.
Mein Mann möchte die Tür Garage/Hauswirtschaftsraum vor allem deshalb, weil er immer sehr staubig/dreckig von der Arbeit kommt. So könnte er sein Fahrrad in der Garage abstellen und sich im Hauswirtschaftsraum umziehen, um dann keinen Dreck in den richtigen Hauseingang zu schleppen. Klingt gut, aber da wir zwei kleine Jungs haben, die sich eh nicht an solche Regeln halten, wird der Hauseingangsflur vermutlich sowieso nie ganz sauber sein ;-)
Ein anderer Punkt für die Tür ist, dass wir dann nur im Hauswirtschaftsraum ein Waschbecken haben müssten und nicht noch zusätzlich in der Garage (mein Mann braucht Wasser in der Garage).
Ein Vordach wollen wir in jedem Fall gern haben. Wissen aber noch nicht, wie es aussehen soll. Die Idee, das so zu bauen, dass es auch den Garageneingang überdacht, ist super! Danke dafür!
Ähnliche Themen