Hausbau - Ratgeber
Bauherrenhilfe
- Bauherrenhilfe vor Vertragsabschluss
-- Warum einen unabhängigen Baubetreuer?
-- Vertragsgrundlagen
-- Bausumme
-- Zahlungsplan zur Kostenkontrolle
-- Pflichten des Bauherren vor Vertragsabschluss
-- Unterlagen beim Hausbau vor Vertragsabschluss
- Bauherrenhilfe nach Vertragsabschluss
-- Bauantrag bei Behörden
-- Bau-Genehmigungsverfahren bei Baubehörden
-- Bauspezifische Versicherungen
-- Bauzeitenplan
-- Baubeginn - die Letzten Pflichten der Bauherrschaft
- Bauherrenhilfe während der Bauzeit
- Gewährleistungsansprüche
- Bauabnahme
Baufinanzierung
- Baufinanzierung - Allgemeine Fragen
- Kreditarten
- Kredit-Konditionen
- Bausparen
- Staatliche Förderungen
- Verkehrswert
- Haushaltsrechnung und Bonität
Hausbau Planung
- Haustypen
- Hausbau Vorbereitungsarbeiten
- Das Baugrundstück
- Baugrund beim Hausbau
- Baurecht
- Gebäudeschutz
- Erdarbeiten und Wasserhaltung
- Stützmauern
- Einfriedung
- Untergeschoss
- Kanalisation
- Tragende Elemente
- Nichttragende Innenwände
- Fundation / Fundament
- Deckenkonstruktionen
- Dächer
- Kaminanlagen
- Treppen Rampen Leitern
- Dachbeläge und Spengler
- Fenster
- Sonnen und Wetterschutz
- Aussenputze
- Einbauten, Küchen, Türen
- Bodenbeläge und Unterlagsböden
- Parkett
- Gips, Wand, Decke
Haustechnik und Energie
- Heiztechnik
- Lüftung und Klimatechnik
- Sanitärtechnik
- Elektrotechnik
- Erneuerbare Energie
Whirlpools / Jacuzzi
Hausbau Magazin
- Baufinanzierung trotz Krise?
- Das Blockhaus
- Moderne Dämmstoffe im Vergleich
- Erker Vor- und Nachteile
- Glasflächen beim Hausbau
- Günstig ein Haus Bauen
- Mediterraner Hausbaustil
- Mehrgenerationenhaus
- Moderne Architektur
- Gartengestaltung leicht gemacht
- Traditioneller Ziegelbau
- Villa als höchster Traum
- Im Eigenheim Ruhestand geniessen
- Altbau sanieren
- Kauf einer Holzgarage
- Immobilienmakler
- Arbeitshandschuhe für den Winter
- Zuhause verschönern
- Outdoor-Plissees
- Schlafzimmer planen
- Terrassenüberdachung
- Wohngebäudeversicherung
- Zaunarten und Eigenschaften
- Hauseingang gestalten
- Der perfekte Grundriss
- Sparsamer heizen im Altbau
- Einfamilienhaus smart finanzieren
- Planung einer PV-Anlage
- Neues Haus
- Immobilienfinanzierung
- Installation einer Photovoltaikanlage
- Asbest erkennen und entfernen
- Gartenpflege im Frühling – worauf achten
- Sauna im Fokus - Wellness zuhause
- Erfolgreich vermieten
- Die perfekte Winterbekleidung
- Das Niedrigenergiehaus
- Der April und seine Stürme
- Architektonische Vielfalt
- Ökologisch und nachhaltig bauen
- Das perfekte Schlafzimmer
- Nachhaltige Energieversorgung
- Zukunftsorientiert bauen
- Nachhaltigkeit beim Hausbau
- Tiny Houses
- Wärmepumpen als nachhaltige Heizvariante
- Maßgeschneiderten Kleiderschrank
- Der richtige Baukredit
- Ratgeber für erfolgreichen Hausbau
- Haus als Altersvorsorge
Do-it-yourself Anleitungen
- Verlegeanleitung für Bodenbeläge und Parkett
- Bodenbeläge und Parkett reinigen und pflegen
- Malerarbeiten am Haus
- Garten Tipps
- Umzug und Reinigung

ᐅ Grundriss: Speisekammer oder größere Küche? Erfahrungen?

Erstellt am: 26.07.22 19:54
N
NicolettaZ
N
NicolettaZ
26.07.22 19:54
Hallo zusammen

Wir sind aktuell im Vorprojekt und planen gerade unser Wohn/Ess/Küchen-Geschoss. Es läuft darauf hinaus, dass wir entweder eine wirklich schön grosszügige Küche vielen Schränken/Stauraum machen können oder eine etwas kleinere Küche mit weniger Arbeitsfläche aber dafür mit einer Speisekammer.

Was sind hier so eure Erfahrungen? Welche Version hättet ihr lieber und wieso?

Liebe Grüsse
Nicoletta
B
Benutzer123
26.07.22 20:02
Kommt auf den Einzelfall an und für eine Bewertung hast du deutlich zu wenig Informationen geteilt wie z.B. Grundrisse, wieviele Personen im Haushalt, bietet die Speisekammer noch zusätzlich benötigten Stauraum für Staubsauger usw, etc pp...
N
NicolettaZ
26.07.22 20:07
NicolettaZ schrieb:

Hallo zusammen

Wir sind aktuell im Vorprojekt und planen gerade unser Wohn/Ess/Küchen-Geschoss. Es läuft darauf hinaus, dass wir entweder eine wirklich schön grosszügige Küche vielen Schränken/Stauraum machen können oder eine etwas kleinere Küche mit weniger Arbeitsfläche aber dafür mit einer Speisekammer.

Was sind hier so eure Erfahrungen? Welche Version hättet ihr lieber und wieso?

Liebe Grüsse
Nicoletta


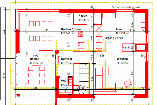
Hier noch der Grundriss. Idee wäre die Speisekammer weglassen, Küchenschränke/Insel weiterziehen und auf der Rückseite der Küchenschränke evtl. nochmals eine Wand mit weniger tiefen Schränken anhängen (ca. 40 cm tief).

Grundriss eines Hauses mit Küche/Essen, Reduit, Lesen, Zugang Estrich, Wohnen, Balkon, Kamin, WC.
H
HnghusBY
26.07.22 20:08
Wir haben in letzter Minute nochmal umgeplant und neben 5,70m Küche (vier Hochschränke, Spüle mit Abtropffläche, Arbeitsfläche) und 1,80x1,16m Insel mit Muldenlüfter eine Speis gegen die Dusche im „Gästebad“ getauscht. Ich kenne aber die Speis auch aus der Kindheit und wir haben aktuell auch einen kleinen Abstellraum. So kann man auch mal Getränke besser verstecken, die Küchenmaschinen die man selten braucht verstauen oder den Staubsauger griffbereit haben. Ich denke über kurz oder lang verirren sich auch Taschentücher, Küchenrolle, ein wenig Pflaster/Medizin Kram, Geschenkpapier, Einkaufstaschen und Körbe etc. in die Speis. Klar geht das auch in eine große Küche, aber irgendwie ist mir da noch ein kleiner Raum mit Regalen und Kisten für Krimskrams lieber.

Edit: Wir haben aber auch keinen Keller!
N
NicolettaZ
26.07.22 20:09
Benutzer123 schrieb:

Kommt auf den Einzelfall an und für eine Bewertung hast du deutlich zu wenig Informationen geteilt wie z.B. Grundrisse, wieviele Personen im Haushalt, bietet die Speisekammer noch zusätzlich benötigten Stauraum für Staubsauger usw, etc pp...

Hab grad mal einen Grundriss hochgeladen. Wir sind vier Personen, Stauraum wäre tatsächlich für einen Staubsauger, Recycling-Tonnen für den täglichen Gebrauch (die grossen wären im Keller), ein paar Vorräte, Küchenmaschinen, die nicht so oft im Gebrauch sind, Küchenrollen-Vorrat und solches Zeugs. Nichts wichtiges aber halt trotzdem irgendwie nervig wenn man es nirgends unterbringt.
S
Steffi33
26.07.22 21:46
Ich finde, es gibt sehr wenig Arbeitsfläche.. und Arbeitsfläche ist wichtig! Daher in dem Falle wohl besser keine Speisekammer. Ansonsten mag ich Speisekammern sehr.
küchenschränkearbeitsflächespeisekammerstauraumstaubsaugergrundrissküchenmaschinenkeller