ᐅ Grundriss Mehrfamilienhaus mit 4 Wohneinheiten
Erstellt am: 13.11.22 19:47
Robii8413.11.22 19:47
Guten Abend,
ich plane den Bau eines Mehrfamilienhauses mit 4 Wohnungen ca. 30 Kilometer westlich von München.
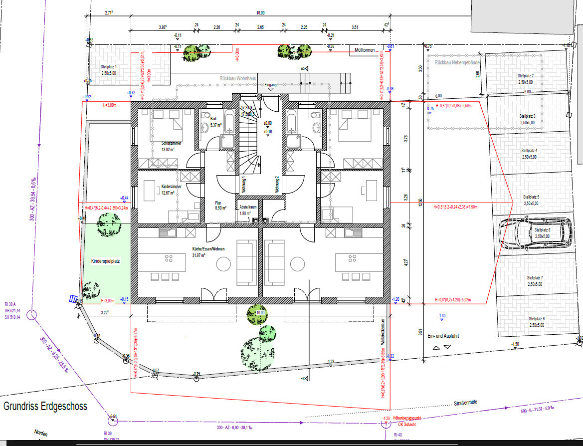
Das Haus hat eine geplante Größe von 16x12,5 m und beinhaltet 4 Wohnungen mit 3 Zimmern je ca. 75 qm.
Zudem ist ein Keller geplant. Raum für Heizung, Raum für Waschmaschinen, Abstellraum für jede Wohnung.
Leider fordert die Gemeinde für jede Wohneinheit 2 Stellplätze.
Grundstück: 600 qm vorhanden
Haus: Massivhaus mit 2 Vollgeschossen und Keller
Heizung: luftwärmepumpe
Lüftungsanlage: ja
Photovoltaik: geplant
Was haltet Ihr von dem Grundriss? Verbesserungsvorschläge und Kritik gerne erwünscht.
Viele Grüße
Robert



ich plane den Bau eines Mehrfamilienhauses mit 4 Wohnungen ca. 30 Kilometer westlich von München.
Das Haus hat eine geplante Größe von 16x12,5 m und beinhaltet 4 Wohnungen mit 3 Zimmern je ca. 75 qm.
Zudem ist ein Keller geplant. Raum für Heizung, Raum für Waschmaschinen, Abstellraum für jede Wohnung.
Leider fordert die Gemeinde für jede Wohneinheit 2 Stellplätze.
Grundstück: 600 qm vorhanden
Haus: Massivhaus mit 2 Vollgeschossen und Keller
Heizung: luftwärmepumpe
Lüftungsanlage: ja
Photovoltaik: geplant
Was haltet Ihr von dem Grundriss? Verbesserungsvorschläge und Kritik gerne erwünscht.
Viele Grüße
Robert
kati133713.11.22 19:57
Finde ihn grundsätzlich nicht verkehrt.
Bad finde ich arg klein für ein Familienbad. So 7-8m² würden da komfortabler wirken. Passt da überhaupt Wanne / Dusche an die eine Wand, von der Länge? Kann die Bemaßung der langen Badwand nicht finden.
Ansonsten hätte ich wohl Probleme mir die möblierung des Wohnbereichs vorzustellen. Die meisten Familien haben einen Fernseher mit einer Sitzgelegenheit / Ecksofa gegenüber. Wüsste nicht, wie ich das stellen sollte, ohne mir was vor die Verandatür zu stellen.
Bad finde ich arg klein für ein Familienbad. So 7-8m² würden da komfortabler wirken. Passt da überhaupt Wanne / Dusche an die eine Wand, von der Länge? Kann die Bemaßung der langen Badwand nicht finden.
Ansonsten hätte ich wohl Probleme mir die möblierung des Wohnbereichs vorzustellen. Die meisten Familien haben einen Fernseher mit einer Sitzgelegenheit / Ecksofa gegenüber. Wüsste nicht, wie ich das stellen sollte, ohne mir was vor die Verandatür zu stellen.
Robii8413.11.22 20:12
Danke für deine Anregungen. Ja das Bad ist schon sehr klein. Bis jetzt existiert nur der Entwurf. Noch kein detaillierter Plan.
Ich habe mir auch noch keine genauen Gedanken gemacht, wie die Möbel gestellt werden etc.
Ich warte jetzt erstmal ab, ob das Landratsamt den Vorbescheid genehmigt.
Das größte Problem sind die Stellplätze und die Tatsache dass das Haus mit länger als 16 Meter werden darf.
Lt. Aussage meiner Bekannten (Bauingenieur), die mir auch den Grundriss gezeichnet hat müssten dann anstatt 3 Meter, 5 Meter Abstand zum Nachbar (Nordseite) gehalten werden. Das ist leider nicht möglich.
Ich habe mir auch noch keine genauen Gedanken gemacht, wie die Möbel gestellt werden etc.
Ich warte jetzt erstmal ab, ob das Landratsamt den Vorbescheid genehmigt.
Das größte Problem sind die Stellplätze und die Tatsache dass das Haus mit länger als 16 Meter werden darf.
Lt. Aussage meiner Bekannten (Bauingenieur), die mir auch den Grundriss gezeichnet hat müssten dann anstatt 3 Meter, 5 Meter Abstand zum Nachbar (Nordseite) gehalten werden. Das ist leider nicht möglich.
Sunshine38713.11.22 20:26
Ich würde die Wanne weglassen, die nutzt heutzutage eh kaum mehr jemand. Dazu Nähe München, da solltest du die Wohnung auch so sofort vermietet kriegen. Der Grundriss ist grundsätzlich solide und für eine Wohnung auch praktisch mit wenig Flurfläche geschnitten. Ich persönlich würde beide Terrassentüren zum öffnen machen, sodass man vor die rechte Tür auch noch einen Teil seiner L-Couch stellen kann. Auch nimmt die Küche so meiner Meinung nach viel zu viel Platz vom recht kleinen Wohnzimmer weg. Da muss eine Küchenzeile an der Außenwand mit 4m reichen. Sonst ist das Raumgefühl komplett verloren. Und die 8 Stellplätze sind ja wohl ein Witz von der Gemeinde. Da würde ich doch mal noch mal nachfragen, ob mann nicht zumindest 2 gegen Cash ablösen kann. Denn mir fehlt auf dem Außen-Gelände auch noch ein Fahrradabstellraum für die Mieter. Denn wer will schon seine Fahrräder/Kinderwägen/Rollatoren in den Keller tragen. Auch würde ich den Eingang für die Wohnungen Barrierefrei machen (also von der anderen Seite beim Stellplatz, wenn ich mir das Gefälle anschaue). Denn so spricht man für die beiden EG Wohnungen auch noch ein größeres Publikum an (Senioren, mit Geld, die barrierearmen Wohnraum suchen).
Sunshine38713.11.22 20:37
Robii84 schrieb:
Danke für deine Anregungen. Ja das Bad ist schon sehr klein. Bis jetzt existiert nur der Entwurf. Noch kein detaillierter Plan.
Ich habe mir auch noch keine genauen Gedanken gemacht, wie die Möbel gestellt werden etc.
Ich warte jetzt erstmal ab, ob das Landratsamt den Vorbescheid genehmigt.
Das größte Problem sind die Stellplätze und die Tatsache dass das Haus mit länger als 16 Meter werden darf.
Lt. Aussage meiner Bekannten (Bauingenieur), die mir auch den Grundriss gezeichnet hat müssten dann anstatt 3 Meter, 5 Meter Abstand zum Nachbar (Nordseite) gehalten werden. Das ist leider nicht möglich. Und bei den Abstandsflächen gilt normalerweise die Bayerische Bauordnung, wenn der B Plan nichts konkretisiert (den kenne ich jetzt natürlich nicht). Und dann gilt Art. 6 Abs.4 und 5. Da würde ich auf folgendes kommen: 6,2 x 0,4 + 2,53 x 0,4 ~ 3,5m. Es sei denn, es trifft bei dir Absatz 5a zu. Wobei ich diese Regelung so zum ersten Mal höre und vollkommen absurd finde.Und auch würde ich darauf achten möglichst große Balkone mit einer Tiefe von mindestens 2m zu planen. Denn spätestens seid Corona hat mehr Draußenfläche für viele Mieter erheblich an Wichtigkeit hinzugewonnen.
Robii8413.11.22 20:49
16-m-Privileg nennt sich das soweit ich weiß...muss meine Bekannte nochmal fragen.
Bebauungsplan existiert nicht.
Ich stimme dir in vielen Dingen zu. Die Küchenzeile muss an die Wand, welche die Wohnungen teilt.
Größerer Balkon ist auch gut, könnte jedoch zum Problem werden, da sonst die Mieter fast auf der Straße sitzen 😀
Ich habe eine Außentüre auf der Ostseite zum Keller geplant. Dort können dann die Fahrräder in den Keller geschoben werden.
Die Gemeinde lässt bzgl. der Stellplätze nicht mit sich reden. Ich werde jedoch wahrscheinlich nur 5 Stellplätze errichten und die restliche Fläche wird Rasenfläche. Kann dann zur Not als Stellplatz genutzt werden 😉
Bebauungsplan existiert nicht.
Ich stimme dir in vielen Dingen zu. Die Küchenzeile muss an die Wand, welche die Wohnungen teilt.
Größerer Balkon ist auch gut, könnte jedoch zum Problem werden, da sonst die Mieter fast auf der Straße sitzen 😀
Ich habe eine Außentüre auf der Ostseite zum Keller geplant. Dort können dann die Fahrräder in den Keller geschoben werden.
Die Gemeinde lässt bzgl. der Stellplätze nicht mit sich reden. Ich werde jedoch wahrscheinlich nur 5 Stellplätze errichten und die restliche Fläche wird Rasenfläche. Kann dann zur Not als Stellplatz genutzt werden 😉
Ähnliche Themen