ᐅ Grundriss Einfamilienhaus, 2 Vollgeschosse, ca. 170 qm, leichte Hanglage
Erstellt am: 12.12.23 20:04
H
Huhuhu7Hallo,
mich würde Feedback zu einem Zwischenstand meines Architekten interessieren. Der Entwurf ist noch keineswegs final, wir sollen dem Architekten jetzt Feedback mitteilen, wofür etwas Hilfe schön wäre...
Ein paar Anmerkungen:
Hier noch zu den Fragen (ist allerdings nicht vollständig)
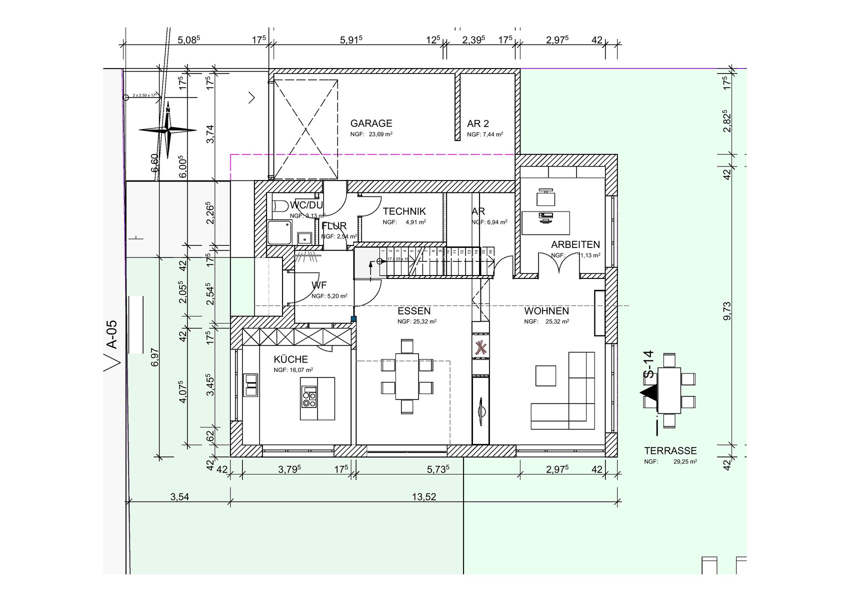
Stilrichtung, Dachform, GebäudetypKeller, Geschosse: 2 OG, Satteldach, kein Keller
Anzahl der Personen, Alter: 2, Mitte 40, keine Kinder
Büro: Familiennutzung oder Homeoffice? Homeoffice
Schlafgäste pro Jahr: 5
offene oder geschlossene Architektur: offen
offene Küche, Kochinsel: ja
Kamin: ja, gewünscht
Balkon, Dachterrasse: nein
Garage, Carport: Einzelgarage, Option einer zweiten Einzelgarage besteht an der Südseite zum Nachbargrundstück. Eine Doppelgarage ist von der Stadtentwicklung nicht gewünscht
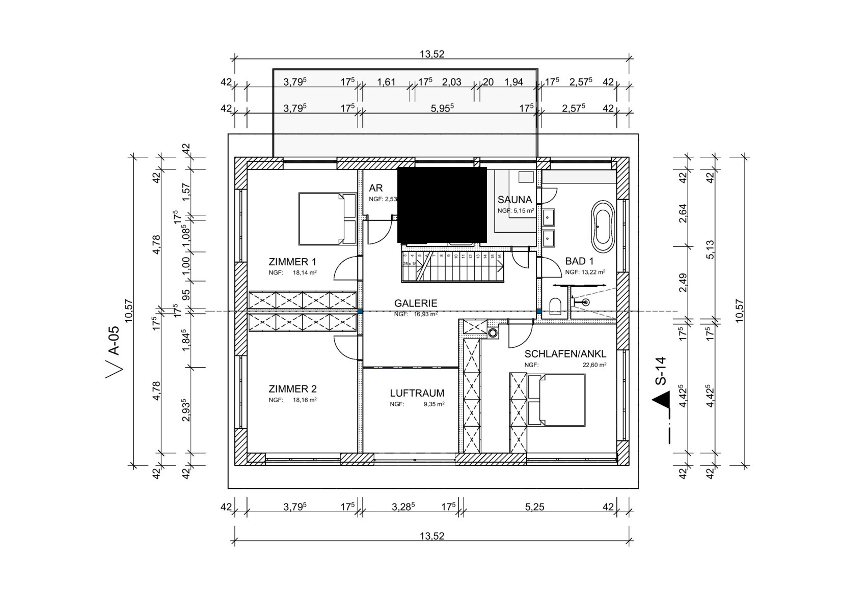
weitere Wünsche/Besonderheiten/Tagesablauf, gern auch Begründungen, warum dieses oder das nicht sein soll: Es sollen zwei erwachsene Personen so wohnen können, das man sich im Alltag auch mal aus dem Weg gehen kann, entsprechend ist das OG gestaltet
Hausentwurf
Von wem stammt die Planung: Architekt
Was gefällt besonders? Warum?
Was gefällt nicht? Warum?
Preisschätzung laut Architekt/Planer: 600k
Persönliches Preislimit fürs Haus, inkl. Ausstattung: 650k
favorisierte Heiztechnik: Wärmepumpe
Wenn Ihr verzichten müsst, auf welche Details/Ausbauten-könnt Ihr verzichten: das große Fenster, allgemein Fenster. Evtl. Dein Eingangsbereich ohne Überdachung, wenn das ansonsten zu sehr aufs Budget geht
Bilder:








mich würde Feedback zu einem Zwischenstand meines Architekten interessieren. Der Entwurf ist noch keineswegs final, wir sollen dem Architekten jetzt Feedback mitteilen, wofür etwas Hilfe schön wäre...
Ein paar Anmerkungen:
- Ort: kleinere nordbayerische Großstadt
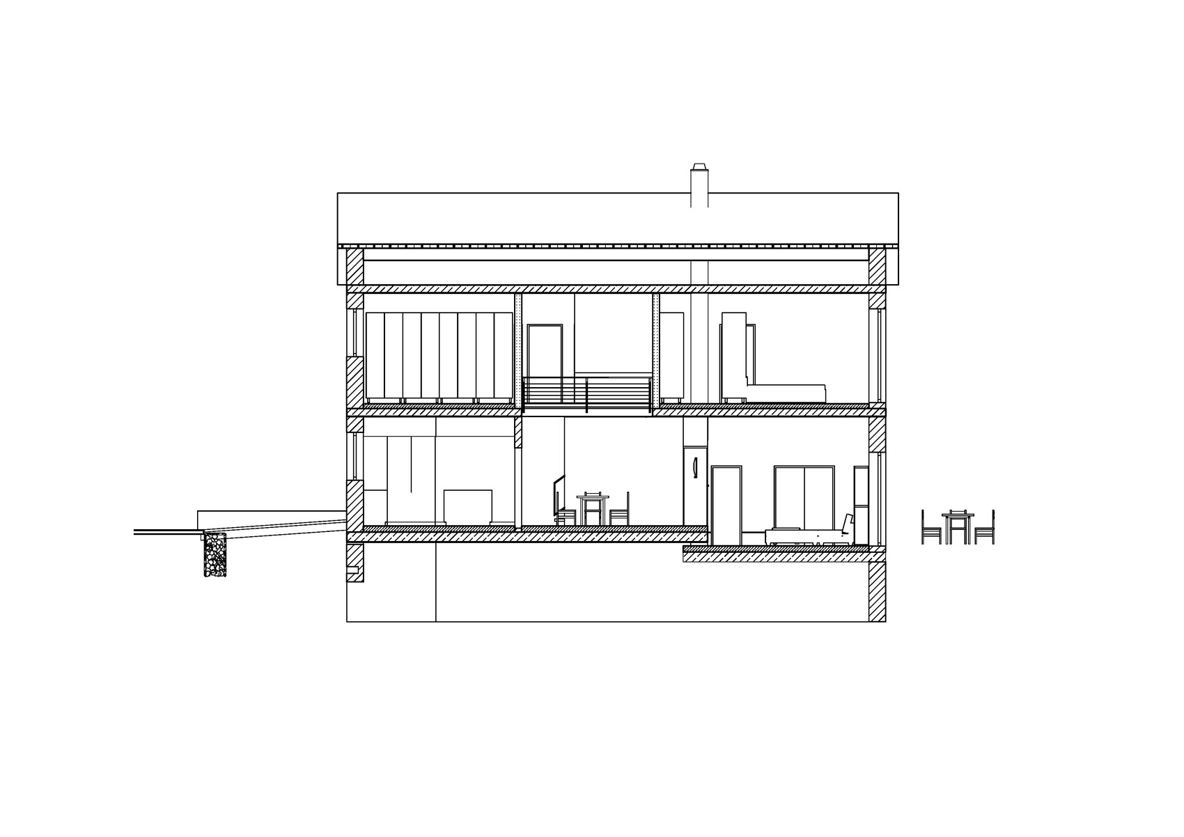
- Das Grundstück befindet sich in einem Wasserschutzgebiet. Das Grundwasser darf dort nicht aufgedeckt werden, und leider ist es ca. 2 Meter unter dem Boden. Deswegen wäre eine Unterkellerung nur mit Nachteilen möglich: das Haus müsste ein ganzes Stück vom Boden herausgehoben werden (man hätte dann an der Haustüre eine Treppe mit ca. 1 Meter Höhe, die Terrassengestaltung wäre schwierig). Deswegen kein Keller. Für diese Erkenntnis wurde etwas Zeit gebraucht... Es gab vorher schon einen detailreicheren Entwurf mit Keller. Das hier ist der erste neue Entwurf ohne Keller.
- Allgemein gibt es keinen qualifizierten Bebauungsplan, eine Voranfrage an die Stadt hat ergeben, das Haus muss sich in die Nachbarschaft einpassen. Zwei Vollgeschosse mit Satteldach würden gehen.
- Fenster: Fenster sind allgemein noch ein sehr offener Punkt. Das große Fenster an der Südseite polarisiert natürlich (schwierig zu putzen etc). Aber auch das Fenster im EG-Arbeitszimmer ist viel zu groß. Im 1 OG hätte ich dagegen an der West-Seite gerne noch etwas größere Fenster, und alles etwas einheitlicher.
- Womit ich mir noch schwer tue: Der Wohnbereich ist einerseits gerne hell und offen erwünscht. Aber anderseits soll das Sofa nicht an einem (Boden)-tiefen Fenster stehen, so wie im Entwurf. Da würden mich Ideen besonders interessieren
- Außerdem hat der Wohnbereich einen Mini-Splitlevel, das Gebäude passt sich so etwas der leichten Hanglage an. Die Nachteile wie eingeschränktere Barrierefreiheit sind bewusst, das ist deswegen auch noch nicht sicher. Hier besonders gerne Meinungen...
- Zum Eingangsbereich: als Wunsch an den Architekten haben wir geäußert, dass wir einen überdachten Eingang schön finden würden. Und ich habe mich mittlerweile an den Entwurf gewöhnt/ vermutlich schon etwas betriebsblind.
- die Treppe ist einen Meter breit (und kommt mir fast etwas schmal vor).
- In den OG-Grundiss habe ich an einer Stelle einen grauen Flecken eingefügt, dabei war mir gerade irgendwie wohler (der Bereich soll auf jeden Fall noch geändert werden)
Hier noch zu den Fragen (ist allerdings nicht vollständig)
Stilrichtung, Dachform, GebäudetypKeller, Geschosse: 2 OG, Satteldach, kein Keller
Anzahl der Personen, Alter: 2, Mitte 40, keine Kinder
Büro: Familiennutzung oder Homeoffice? Homeoffice
Schlafgäste pro Jahr: 5
offene oder geschlossene Architektur: offen
offene Küche, Kochinsel: ja
Kamin: ja, gewünscht
Balkon, Dachterrasse: nein
Garage, Carport: Einzelgarage, Option einer zweiten Einzelgarage besteht an der Südseite zum Nachbargrundstück. Eine Doppelgarage ist von der Stadtentwicklung nicht gewünscht
weitere Wünsche/Besonderheiten/Tagesablauf, gern auch Begründungen, warum dieses oder das nicht sein soll: Es sollen zwei erwachsene Personen so wohnen können, das man sich im Alltag auch mal aus dem Weg gehen kann, entsprechend ist das OG gestaltet
Hausentwurf
Von wem stammt die Planung: Architekt
Was gefällt besonders? Warum?
Was gefällt nicht? Warum?
Preisschätzung laut Architekt/Planer: 600k
Persönliches Preislimit fürs Haus, inkl. Ausstattung: 650k
favorisierte Heiztechnik: Wärmepumpe
Wenn Ihr verzichten müsst, auf welche Details/Ausbauten-könnt Ihr verzichten: das große Fenster, allgemein Fenster. Evtl. Dein Eingangsbereich ohne Überdachung, wenn das ansonsten zu sehr aufs Budget geht
Bilder:
H
HeimatBauer12.12.23 20:26Ich würde was zur Sauna schreiben aber da ist was abgedeckt, bin mir also aktuell nicht sicher wie da das Setup ist.
K
K a t j a12.12.23 21:11Naja, ein paar Dinge würden mich schon sehr stören:
Split find ich persönlich immer ganz nett. Damit lässt sich schön zonieren - um auch mal was Positives zu sagen. 😉
- wäre da der Technikraum mit nicht einmal 5m². Das ist schon mal Müll. Bitte mal die Technik einzeichnen! Ich denke, das wird zum KO-Kriterium.
- find ich das Gäste-WC irre eng - bei der Hausgröße etwas unverhältnismäßig.
- der Zutritt zur Terrasse ist durch's Sofa verstellt? Oder gibt es eine zweite Terrasse an der Küche? - unklar.
- oben braucht's einen Wäscheraum. Da hier was ausgegraut wurde, war der Platz dafür vorgesehen?
- Ist da im Schlafzimmer ein Schornstein, aber nicht im EG?
- Garderobe ist auch zu zwergig.
- Viele Vor- und Rücksprünge. Für ein Satteldachhaus meines Erachtens too much. Die Straßenansicht wäre mir zu unharmonisch.
- Schlafzimmer im Süden mit direkter Sonneneinstrahlung auf's Bett? Nicht ohne Klimaanlage.
Split find ich persönlich immer ganz nett. Damit lässt sich schön zonieren - um auch mal was Positives zu sagen. 😉
Der Lageplanausschnitt dürfte gerne großräumiger ausfallen. Immerhin hast Du den Straßennamen nicht (wie hier sonst leider kindischerweise üblich) verunkenntlicht. Die Collage aus Bebauungsplan und Katasterplan übereinander ist ein bißchen schwierig handhabbar. Am Rande des roten Kleckses glaube ich Hinweise auf vorhandene Bebauung zu erkennen, das Grundstück hat demnach eine Bestandsbebauung (?)
Wir haben hier in https://www.hausbau-forum.de/threads/grundriss-einfamilienhaus-240-m-mit-teilueberbauter-garage.46476/ gerade das Thema in der Mangel, die Weisheit einer Damokleshauswand über einer Garage zu hinterfragen.
https://www.instagram.com/11antgmxde/
https://www.linkedin.com/company/bauen-jetzt/
Wir haben hier in https://www.hausbau-forum.de/threads/grundriss-einfamilienhaus-240-m-mit-teilueberbauter-garage.46476/ gerade das Thema in der Mangel, die Weisheit einer Damokleshauswand über einer Garage zu hinterfragen.
Huhuhu7 schrieb:Was immer das sein mag, hier brauchst Du nicht zu erröten. Was sind die seeblauen Quadrate - irgendwelche (Stahl)stützen ?
In den OG-Grundiss habe ich an einer Stelle einen grauen Flecken eingefügt, dabei war mir gerade irgendwie wohler (der Bereich soll auf jeden Fall noch geändert werden)
Huhuhu7 schrieb:Was bedeutet dabei denn "Zwischenstand" ? - mir scheint, es ist ein Architekt der Generation CAD, der sich lieber modisch an den Vorstellungen der Kundschaft von der Vorgehensweise eines zeitgemäßen Architekten orientiert, als fachgerecht solide vorzugehen. Von dieser Sorte Kundenversteher würde ich mich trennen. Mir persönlich langen schon die Phantasiemaße (und die in ihnen angelegten Pfuschertaschen), um den Entwurf samt Entwerfer auszusortieren. Wohlgemerkt wegen der unprofessionellen Vorgehensweise, gar nicht auf den Grundriss oder - bis auf das Statikfragezeichen - den Baukörper bezogen.
mich würde Feedback zu einem Zwischenstand meines Architekten interessieren. Der Entwurf ist noch keineswegs final, wir sollen dem Architekten jetzt Feedback mitteilen, wofür etwas Hilfe schön wäre...
Huhuhu7 schrieb:Das bräuchte ich ´mal ein bißchen erklärt.
Wenn Ihr verzichten müsst, auf welche Details/Ausbauten-könnt Ihr verzichten: das große Fenster, allgemein Fenster. Evtl. Dein Eingangsbereich ohne Überdachung, wenn das ansonsten zu sehr aufs Budget geht
https://www.instagram.com/11antgmxde/
https://www.linkedin.com/company/bauen-jetzt/
Wie kommt man auf die Terrasse?
Hallo,
habt Ihr Enkel oder so? Sind die beiden Zimmer im OG Platzhalter bzw für Verkaufszwecke gedacht? Ein Raum wäre ansonsten für Gäste, das zweite für Hobbys?
Gibt es im Osten einen Ausblick, dass man dahin so großzügige Fenster hinpowert?
Ich gehe mal auf die einzelnen Kompomenten ein und nutze die Zitate:
Allerdings: wie kommt man auf die Terrasse?
Allerdings würde ich mich mit dieser Tür im Kopfbereich im Schlafzimmer gar nicht wohl fühlen. Die gehört da nicht hin.
Mir fällt zusätzlich auf, dass die Küche zu große Entfernungen birgt.
Überdachter Eingang ist ok und birgt keine großen Kostenfallen in der Ausführung.
Ich stell mich und mein Haus mal vor:
Ich war Mitte 40, als wir vor 10 Jahren bauten. Nur für uns und nicht für Kinder, die eventuell mal wieder einziehen wollten. Somit haben wir auf ca. 10x10 gebaut, oben hälftig unter Dach dann ich weiter 45qm. Keine klassische Aufteilung, mit mega Luftraum, alles offen, auch Treppe viele Boden-Fenster.
Wenn ich mehr Geld zur Verfügung gehabt hätte:
Schlafzimmer im EG mit Ankleide und kleinem Wohlfühlbad statt des Büros mit Dusch-WCs.
Büro dann nach oben.
Also konsequente Struktur von komprimiertem Leben im EG, alles andere (Hobby, Rückzug, Gast und Arbeit) im OG. Also auch Yoga, Sauna und Wannenbad im OG. Dann kann man bei Krankheit wirklich mal trennen, oder der Gast ist für sich.
Wieder Kamin, offene Küche mit Blick zum TV und ins Grüne, wieder TK vom Flur aus, wieder Wäsche Hauswirtschaftsraum im OG. Wieder direkte Anbindung Küche zur Terrasse. Und: Garderobe war uns ganz wichtig. Unter der Treppe ist ein ausreichender Raum, zwar klein, aber wichtig. Aber der kann nach meiner Facon dann doch doppelt so breit werden. Taschen nehmen viel Platz weg. Und dann kam auf einem Mal ein Hund ins Leben (das war nie Thema), und alles wird viel zu klein im Eingangsbereich.
Das mal als Gedankenanregung…
Bei Euch sehe ich keine Jacke irgendwo hängen als _eine_ auf einem Haken. Aber wo bleibt der Rest? Wintergarderobe, Schals? Das will man nicht oben haben, das braucht man unten.
Was soll die Tür Richtung Küche?
Gäste-WC mit Dusche: genauso falsch gedacht wie bei uns: will man sie nutzen, ist das Bad zu klein. Ansonsten bräuchte man sie nicht.
Garderobenraum würde sich ergeben, wenn man AR und TK tauscht.
Büro da hinten beim WZ ist von der Lage eher für privat als für HO.
Kücheninsel würde ich hier drehen. Luftraum dem Platz des Esstisches anpassen.
Hallo,
habt Ihr Enkel oder so? Sind die beiden Zimmer im OG Platzhalter bzw für Verkaufszwecke gedacht? Ein Raum wäre ansonsten für Gäste, das zweite für Hobbys?
Gibt es im Osten einen Ausblick, dass man dahin so großzügige Fenster hinpowert?
Ich gehe mal auf die einzelnen Kompomenten ein und nutze die Zitate:
Huhuhu7 schrieb:Das finde ich mega. Ein Statement braucht ein Haus, meine Meinung (wenn man es sich leisten kann)
Das große Fenster an der Südseite polarisiert natürlich (schwierig zu putzen etc).
Huhuhu7 schrieb:Ich muss ehrlich sagen, dass mich die Fenster regelrecht überfordern. Nach meinem Geschmack passen sie nicht zum Stil - viel zu viele Einzelelemente, die Unruhe bringen. Das fängt bei mir schon im Norden an, wo die breiten Lichtbänder aneinandergereiht sind. Etwas mehr Wand dazwischen wäre schön. Alles ist irgendwie too much, wenn auch das ein oder andere seine Größe-Berechtigung hat. Man schaue sich aber zb die Schlafzimmerfenster an, wer braucht da die Südfenster? Und im Wohnzimmer könnte man die Ostfenster streichen - wenn man im Winter Sonntags aufsteht, dann ist die Sonne eh schon halb rum..
Aber auch das Fenster im EG-Arbeitszimmer ist viel zu groß. Im 1 OG hätte ich dagegen an der West-Seite gerne noch etwas größere Fenster, und alles etwas einheitlicher.
Huhuhu7 schrieb:Gegenfrage: was stört Dich daran? Die einen haben etwas dagegen. Das sind dann die, die dort ein Brüstungsfenster hinsetzen lassen und dann Orchideen oder Weihnachtsdeko auf dem Brett arrangieren. Andere planen das ein, dass der Blick zum tollen Sofa auch in den Garten führt - meist ist es ein optisch gelungener Übergang vom Wohnbereich in den Garten. Allerdings finde ich das WZ von der Breite her mit dem Kamintrenner nicht geeignet, das als gewollt zu sehen. Schlimm finde ich es aber nicht, wenn man sich auf dem Grundstück und Haus geborgen fühlt.
Aber anderseits soll das Sofa nicht an einem (Boden)-tiefen Fenster stehen, so wie im Entwurf. Da würden mich Ideen besonders interessieren
Allerdings: wie kommt man auf die Terrasse?
Huhuhu7 schrieb:Ich finde diese 2-3 Stufen ok und gelungen. Barriere ist eher die Treppe. 2-3 Stufen bekommt man immer hin. Und wenn nicht, dann kommt man auch nicht nach oben ins Schlafzimmer.
Die Nachteile wie eingeschränktere Barrierefreiheit sind bewusst, das ist deswegen auch noch nicht sicher. Hier besonders gerne Meinungen...
Huhuhu7 schrieb:Passt!
die Treppe ist einen Meter breit (und kommt mir fast etwas schmal vor).
Huhuhu7 schrieb:Sehe ich jetzt nicht erwähnenswert. Letztendlich kann man unten leben und oben schlafen. Und man kann sich zurückziehen, ja.
Es sollen zwei erwachsene Personen so wohnen können, das man sich im Alltag auch mal aus dem Weg gehen kann, entsprechend ist das OG gestaltet
Allerdings würde ich mich mit dieser Tür im Kopfbereich im Schlafzimmer gar nicht wohl fühlen. Die gehört da nicht hin.
K a t j a schrieb:Mit dem Wäscheraum empfinde ich den Platz des Technikraumes mit dem AR im EG schon ausreichend. Ein Zimmer im OG wird wohl für Krusch, Deko und Hobbiekrams herhalten müssen.
oben braucht's einen Wäscheraum. Da hier was ausgegraut wurde, war der Platz dafür vorgesehen?
K a t j a schrieb:Der ist planüber dem Feuer
Ist da im Schlafzimmer ein Schornstein, aber nicht im EG?
K a t j a schrieb:Ja, aber so was von! Das reicht für die Schuhe der Frau, aber wohin der Rest?
Garderobe ist auch zu zwergig.
Mir fällt zusätzlich auf, dass die Küche zu große Entfernungen birgt.
Überdachter Eingang ist ok und birgt keine großen Kostenfallen in der Ausführung.
Ich stell mich und mein Haus mal vor:
Ich war Mitte 40, als wir vor 10 Jahren bauten. Nur für uns und nicht für Kinder, die eventuell mal wieder einziehen wollten. Somit haben wir auf ca. 10x10 gebaut, oben hälftig unter Dach dann ich weiter 45qm. Keine klassische Aufteilung, mit mega Luftraum, alles offen, auch Treppe viele Boden-Fenster.
Wenn ich mehr Geld zur Verfügung gehabt hätte:
Schlafzimmer im EG mit Ankleide und kleinem Wohlfühlbad statt des Büros mit Dusch-WCs.
Büro dann nach oben.
Also konsequente Struktur von komprimiertem Leben im EG, alles andere (Hobby, Rückzug, Gast und Arbeit) im OG. Also auch Yoga, Sauna und Wannenbad im OG. Dann kann man bei Krankheit wirklich mal trennen, oder der Gast ist für sich.
Wieder Kamin, offene Küche mit Blick zum TV und ins Grüne, wieder TK vom Flur aus, wieder Wäsche Hauswirtschaftsraum im OG. Wieder direkte Anbindung Küche zur Terrasse. Und: Garderobe war uns ganz wichtig. Unter der Treppe ist ein ausreichender Raum, zwar klein, aber wichtig. Aber der kann nach meiner Facon dann doch doppelt so breit werden. Taschen nehmen viel Platz weg. Und dann kam auf einem Mal ein Hund ins Leben (das war nie Thema), und alles wird viel zu klein im Eingangsbereich.
Das mal als Gedankenanregung…
Bei Euch sehe ich keine Jacke irgendwo hängen als _eine_ auf einem Haken. Aber wo bleibt der Rest? Wintergarderobe, Schals? Das will man nicht oben haben, das braucht man unten.
Was soll die Tür Richtung Küche?
Gäste-WC mit Dusche: genauso falsch gedacht wie bei uns: will man sie nutzen, ist das Bad zu klein. Ansonsten bräuchte man sie nicht.
Garderobenraum würde sich ergeben, wenn man AR und TK tauscht.
Büro da hinten beim WZ ist von der Lage eher für privat als für HO.
Kücheninsel würde ich hier drehen. Luftraum dem Platz des Esstisches anpassen.
K
Klinkerhof8612.12.23 23:03Warum hat das Gäste-WC kein Fenster? Eher schlecht mE, v.a. wo es schon in der Ecke liegt...
Ähnliche Themen