ᐅ Grundriss 200 m² Satteldachhaus auf 780 m²
Erstellt am: 28.10.22 12:33
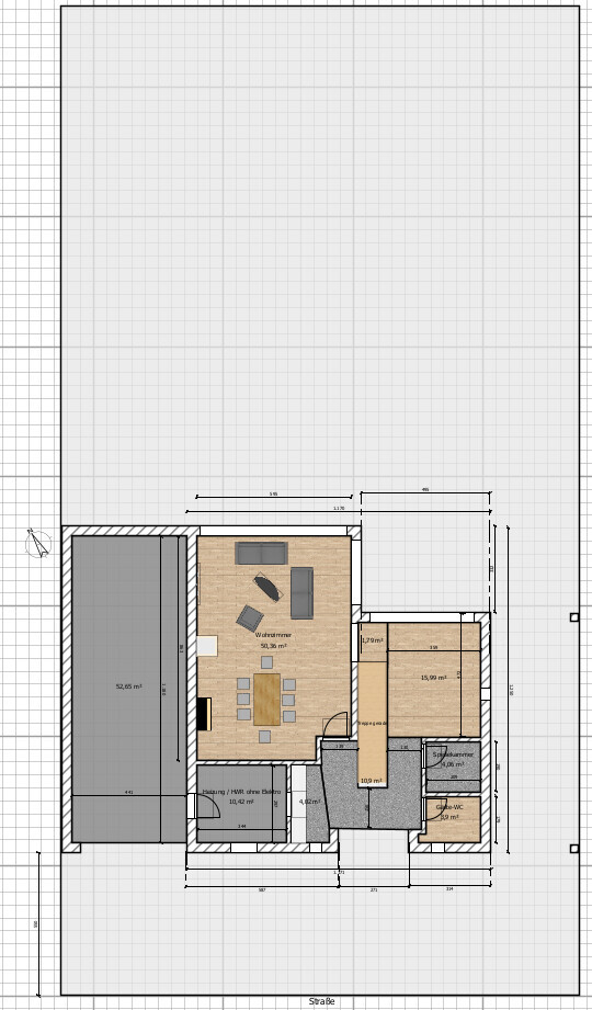
Hallo! Wir befinden uns aktuell in der dritten Iteration des Plans für unser Häuschen zusammen mit einem Architekten. Die beiden Bilder unten basieren im EG zu 90% auf den Vorschlägen des Architekten, das OG habe ich aktuell selbst ausgedacht. Die Ausrichtung auf dem Grundstück ist fix, d.h. wir haben Abendsonne von planlinks. Derzeit haben wir die Terrasse nach Süden und das hält man im Sommer nicht aus, daher haben wir den Freisitz nach Nordosten gelegt. Stört uns nicht, es sind eh Heizstrahler geplant. Die Garage muss auch planlinks bleiben, da hier die Einführungen aller Versorger sind. Das Haus bekommt ein asymmetrisches Satteldach mit 35° Neigung zur Straße (Südwest, wegen Photovoltaik), zum Garten 25°, Firstrichtung parallel zur Straße. Dadurch haben wir gartenseitig so gut wie keinen Kniestock, zur Straße ca. 1,80 m.
Hier aber erstmal die Parameter:
Bebauungsplan/Einschränkungen
Größe des Grundstücks: 780 m²
Hang: nein
Grundflächenzahl: 0,4
Geschossflächenzahl: 0,8
Baufenster, Baulinie und -grenze: 5,5 Meter (insbes. vor der Garage, im Plan aber derzeit noch zu wenig) zur Straße, 3 Meter auf der planrechten Seite
Anzahl Stellplatz: 2
Geschossigkeit: 2
Dachform: Satteldach, Dachneigung 25-35°
Stilrichtung: modern
Ausrichtung: Eingang 31 ° Südwest
Maximale Höhen/Begrenzungen: zwei Vollgeschosse
weitere Vorgaben: keine
Anforderungen der Bauherren
Stilrichtung, Dachform, Gebäudetyp: modern
Keller, Geschosse: kein Keller, etwas weniger als zwei Vollgeschosse
Anzahl der Personen, Alter: 1x 38, 1x 31, 1x Hund, evtl. noch 1x Kind
Raumbedarf im EG, OG: hat sich aus einzelnen Räumen ergeben, insgesamt knapp 200 m²
Büro: Büro für zwei Personen nötig
Schlafgäste pro Jahr: 2-3
offene oder geschlossene Architektur: eher geschlossen, Küche soll abtrennbar sein, ggf. Schiebetür
konservativ oder moderne Bauweise: modern
offene Küche, Kochinsel: "halboffen", Kochinsel an U-Form
Anzahl Essplätze: 8 im Essbereich, drei in der Küche
Kamin: mindestens vorgerüstet
Musik/Stereowand: ja
Balkon, Dachterrasse: nö
Garage, Carport: Garage planlinks, Carport planrechts
Nutzgarten, Treibhaus: vielleicht, Garten ist groß genug
weitere Wünsche/Besonderheiten/Tagesablauf, gern auch Begründungen, warum dieses oder das nicht sein soll: Zugang von der Garage ins Haus
Hausentwurf
Von wem stammt die Planung? Architekt + eigene Modifikationen
Was gefällt besonders? Warum? Eingangsbereich, Zugangsmöglichkeit durch Garage (Dreckschleuse für Hund), viel Glas im Wohnzimmer, überdachter Freisitz
Was gefällt nicht? Warum? Obergeschoss, Räume ggf. zu eng, Gäste-WC im EG eigentlich zu groß, durch zurückgesetzte Haustür bedingt
Preisschätzung lt Architekt/Planer: 700.000 € ohne Grundstück, das gehört bereits uns
Persönliches Preislimit fürs Haus, inkl Ausstattung: 700.000 €
favorisierte Heiztechnik: Wärmepumpe + Photovoltaik
Wenn Ihr verzichten müsst, auf welche Details/Ausbauten
-könnt Ihr verzichten: Fläche im Wohnzimmer, Fläche im Schlafzimmer, ggf. ein Kinderzimmer (wir wollen eh nur ein Kind, aber Dinge passieren...)
-könnt Ihr nicht verzichten: Speisekammer
Was ist die wichtigste/grundlegende Frage zum Grundriss in 130 Zeichen zusammengefasst?
Ist das ein stimmiger Plan?
Hier noch die Bilder


Hier aber erstmal die Parameter:
Bebauungsplan/Einschränkungen
Größe des Grundstücks: 780 m²
Hang: nein
Grundflächenzahl: 0,4
Geschossflächenzahl: 0,8
Baufenster, Baulinie und -grenze: 5,5 Meter (insbes. vor der Garage, im Plan aber derzeit noch zu wenig) zur Straße, 3 Meter auf der planrechten Seite
Anzahl Stellplatz: 2
Geschossigkeit: 2
Dachform: Satteldach, Dachneigung 25-35°
Stilrichtung: modern
Ausrichtung: Eingang 31 ° Südwest
Maximale Höhen/Begrenzungen: zwei Vollgeschosse
weitere Vorgaben: keine
Anforderungen der Bauherren
Stilrichtung, Dachform, Gebäudetyp: modern
Keller, Geschosse: kein Keller, etwas weniger als zwei Vollgeschosse
Anzahl der Personen, Alter: 1x 38, 1x 31, 1x Hund, evtl. noch 1x Kind
Raumbedarf im EG, OG: hat sich aus einzelnen Räumen ergeben, insgesamt knapp 200 m²
Büro: Büro für zwei Personen nötig
Schlafgäste pro Jahr: 2-3
offene oder geschlossene Architektur: eher geschlossen, Küche soll abtrennbar sein, ggf. Schiebetür
konservativ oder moderne Bauweise: modern
offene Küche, Kochinsel: "halboffen", Kochinsel an U-Form
Anzahl Essplätze: 8 im Essbereich, drei in der Küche
Kamin: mindestens vorgerüstet
Musik/Stereowand: ja
Balkon, Dachterrasse: nö
Garage, Carport: Garage planlinks, Carport planrechts
Nutzgarten, Treibhaus: vielleicht, Garten ist groß genug
weitere Wünsche/Besonderheiten/Tagesablauf, gern auch Begründungen, warum dieses oder das nicht sein soll: Zugang von der Garage ins Haus
Hausentwurf
Von wem stammt die Planung? Architekt + eigene Modifikationen
Was gefällt besonders? Warum? Eingangsbereich, Zugangsmöglichkeit durch Garage (Dreckschleuse für Hund), viel Glas im Wohnzimmer, überdachter Freisitz
Was gefällt nicht? Warum? Obergeschoss, Räume ggf. zu eng, Gäste-WC im EG eigentlich zu groß, durch zurückgesetzte Haustür bedingt
Preisschätzung lt Architekt/Planer: 700.000 € ohne Grundstück, das gehört bereits uns
Persönliches Preislimit fürs Haus, inkl Ausstattung: 700.000 €
favorisierte Heiztechnik: Wärmepumpe + Photovoltaik
Wenn Ihr verzichten müsst, auf welche Details/Ausbauten
-könnt Ihr verzichten: Fläche im Wohnzimmer, Fläche im Schlafzimmer, ggf. ein Kinderzimmer (wir wollen eh nur ein Kind, aber Dinge passieren...)
-könnt Ihr nicht verzichten: Speisekammer
Was ist die wichtigste/grundlegende Frage zum Grundriss in 130 Zeichen zusammengefasst?
Ist das ein stimmiger Plan?
Hier noch die Bilder
K
K a t j a28.10.22 13:11Kalimba schrieb:
Ist das ein stimmiger Plan? 🙂Mmh, nicht so richtig. Vielleicht zeigst Du die Entwürfe vom Architekten noch komplett. Bei Deinem OG würde ich schon gleich fragen, wohin denn die Kinder-Toilette entwässert? Durchs WZ? Die Anordnung der Räume mit diesen schrägen Türen-Treff finde ich auch nicht so prickelnd. Der Antritt der Treppe im EG ist doch auch irgendwo nervig, oder? Da bist Du ja nur damit beschäftigt, diesen zu umkurven oder drüber zu fliegen. Vor dem Zugang zum Hauswirtschaftsraum - steht da ein schrank? Hier eine Schranktür zu planen fände ich irgendwo sehr seltsam. Es ist eine der häufigst genutzten Türen. Da will man was Ordentliches mit Griff und Geschwindigkeit. Kein Softtuch oder irgend so ein Schnickschnack.
Der Rücksprung im Eingangsbereich ist auch mehr als unglücklich gewählt, wenn dadurch diese nutzlose Nische im Gäste-WC entsteht.
Lageplan auf dem Grundstück fehlt.
Auch wenn Ihr jetzt keine Sonnenterrasse möchtet, heißt das ja nicht, dass man sie komplett aussperren muss. Die Ausrichtung nach Osten ist so ziemlich das Dunkelste, was man machen kann. Mit dieser Megagarage im Westen wäre mir das zu finster.
K a t j a schrieb:
Vielleicht zeigst Du die Entwürfe vom Architekten noch komplett.Das bringt in dem Fall nichts, da die letzten Pläne sich extrem unterscheiden, die Küche ist ganz woanders und viel zu klein, das hatten wir mittlerweile geändert und ich warte auf die Pläne. Habe nur "vorauseilend" schon mal selbst gemalt.K a t j a schrieb:
Bei Deinem OG würde ich schon gleich fragen, wohin denn die Kinder-Toilette entwässert? Durchs WZ? Die Anordnung der Räume mit diesen schrägen Türen-Treff finde ich auch nicht so prickelnd.Guter Punkt, das gefällt mir auch noch nicht so wirklich, mir fällt aber nichts schlaueres ein, wenn das kleine Bad bleiben soll. Man könnte das noch ganz runter über den Technikraum schieben, aber dann hätte ich direkt am Schlafzimmer ein Kinderzimmer, was ich eigentlich vermeiden wollte.K a t j a schrieb:
Vor dem Zugang zum Hauswirtschaftsraum - steht da ein Schrank?Ja, soll ein "geheimer" Eingang sein, ähnlich den verdeckten Eingängen in Speisekammern. Je länger ich das anschaue, desto mehr denke ich aber, dass ich da ständig versuchen würde, Jacken rein zu hängen. Mal schauen.K a t j a schrieb:
Der Rücksprung im Eingangsbereich ist auch mehr als unglücklich gewählt, wenn dadurch diese nutzlose Nische im Gäste-WC entsteht.Stimmt auch, der Rücksprung hat aktuell 75 cm, aber mir gefällts eigentlich ziemlich gut. Evtl. wird die Mauer einfach nur dicker und die Nische kommt weg.K a t j a schrieb:
Lageplan auf dem Grundstück fehlt.Unten angehängt.K a t j a schrieb:
Auch wenn Ihr jetzt keine Sonnenterrasse möchtet, heißt das ja nicht, dass man sie komplett aussperren muss. Die Ausrichtung nach Osten ist so ziemlich das Dunkelste, was man machen kann. Mit dieser Megagarage im Westen wäre mir das zu finster.Vor dem Wohnzimmer wird es auch noch eine Terrasse geben, aber der überdachte Freisitz vor der Küche gefällt mir durchaus. Wir wohnen aktuell in absolut direkter Nachbarschaft, die Sonnensituation ist dort also bestens bekannt. Hält man weder optisch (Blendung) noch thermisch längere Zeit aus. Die Sonne knallt da wirklich so lange hin, bis sie unter geht. Ich erhoffe mir durch die Glasflächen im Wohnzimmer jedoch noch etwas Licht am Sitzplatz.Puh. Eindeutige Meinungen. Wie auch immer, gebt mir doch mal eine paar Punkte zum Verständnis, was am EG so mies ist? OG habe ich wie gesagt selbst gemalt, das kann man dem Architekten nicht anlasten. Die Treppe habe ich etwas herausgezogen um im OG mehr Platz zu haben, bei ihm war die fast bündig mit der Wand und stand nicht so weit heraus.
Mehr Fenster im EG sind echt schwierig, weil planrechts eine Garage ist und daneben ein 2,5 Geschosser. Planlinks steht ebenfalls eine Garage auf der Grenze, direkt daran in Richtung Garten eine Terrasse vom Nachbarn. Es guckt einem dann immer jemand von der Seite rein. Nur nach vorne und hinten ist nichts.
Im ersten Entwurf vom Architekten war die Garage auch nicht so lang zum Garten, da war dort noch ein seitliches Fenster.
Mehr Fenster im EG sind echt schwierig, weil planrechts eine Garage ist und daneben ein 2,5 Geschosser. Planlinks steht ebenfalls eine Garage auf der Grenze, direkt daran in Richtung Garten eine Terrasse vom Nachbarn. Es guckt einem dann immer jemand von der Seite rein. Nur nach vorne und hinten ist nichts.
Im ersten Entwurf vom Architekten war die Garage auch nicht so lang zum Garten, da war dort noch ein seitliches Fenster.
Ähnliche Themen