Große Gauben oder hoher Kniestock?

4,50 Stern(e) 6 Votes
Zuletzt aktualisiert 25.11.2025
Sie befinden sich auf der Seite 5 der Diskussion zum Thema: Große Gauben oder hoher Kniestock?
>> Zum 1. Beitrag <<

H

hanghaus2023

Ich habe das mal auf die Schnelle dargestellt.

Die gezeichnete Höhe ist 1,97m. Laut DIN müssen es 2 m sein. Der rote Kreis zeigt die Stelle wo es beim nach unten gehen eng wird.


Architektur-Querschnitt eines Mehrgeschoss-Hauses mit Treppe und Erd- sowie Untergeschoss
 
8

8aElProfe

Das ist in Ordnung. Ich bin fast 1,90 und in einem Haus aufgewachsen, wo es einen deutlich tieferen Durchgang hatte. Werde es aber nochmals besprechen und evtl. verlängern wir den Treppenlauf oben um eine Stufe bzw. mit der Geschosserhöhung bliebe der Treppenansatz und die Stelle hätte mind. 10 cm mehr. Danke für euer Feedback diesbezüglich.

Ohne Lichtbänder kann ich mir das mit hohem Kniestock absolut nicht vorstellen. Es kommt nicht genügend Licht über die Firstseiten bei dem angestrebten Raumprogramm (3 Schlafzimmer, 2 Badezimmer) und der Restriktion, dass wir ca. 14 m² als Nebenfläche (Kammern) realisieren müssen.

Wenn wir auf KN 180 cm und DN 21° gehen können und damit Lichtbänder möglich werden, geht es vielleicht, wenn die Treppe in die Mitte der Traufseite verschoben wird.
Das geht mit geringfügigen Änderungen im EG sogar auf. Aber ich weiß nicht, ob wir uns diese Umplanung wirklich noch antun wollen, zumal es auch da wieder Nachteile gibt und nicht einfach alles schön aufgeht.
Sorry für die 90°-Drehung.
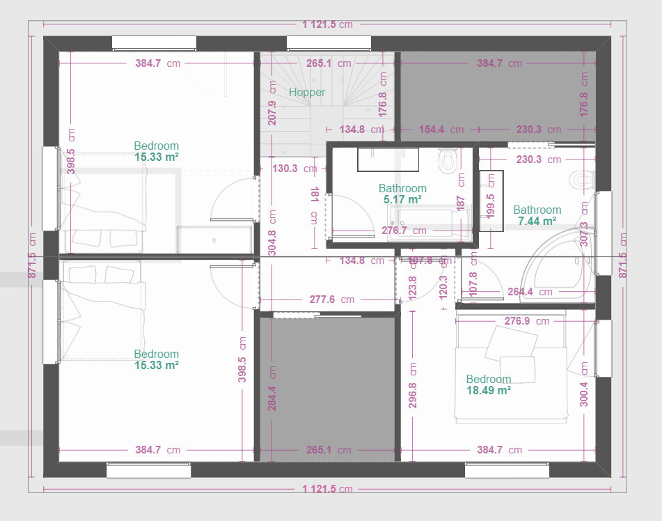
Grundriss einer Wohnung mit vier Schlafzimmern, zwei Bädern und Flur.

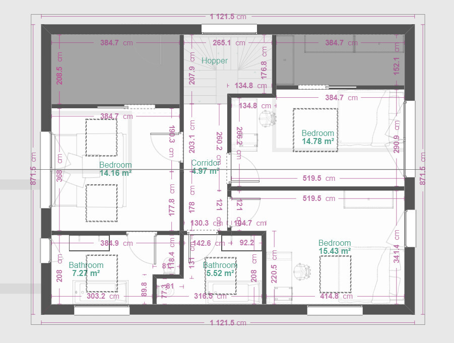
Grundriss eines Apartments mit 3 Schlafzimmern, 2 Bädern und Flur.

Grundriss eines Hauses mit Eingangsbereich, Treppenhaus, Wohnzimmer/Esszimmer, Waschküche und WC.
 
H

hanghaus2023

Darf man fragen was Euch bewogen hat komplett ohne Dusche zu planen.

Könnte man die Fläche auch durch einen Drempel reduzieren? In Allen Räumen bis auf das Treppenhaus ist das problemlos möglich.
 
Y

ypg

Ohne Lichtbänder kann ich mir das mit hohem Kniestock absolut nicht vorstellen.
Das war meine Nachfrage;
Wie jetzt? Dann würden die Fenster, die jetzt traufseitig eingezeichnet sind, wegfallen?
Ich frage erweitert: sind keine zu öffnenden Fenster aus Sicherheitsgründen möglich oder grundsätzlich?
Denn auch verschlossene Fensterbänder hätten zusätzlich zu einem Hauptfenster Charme, allerdings müsste man sie von außen putzen.
Das ist in Ordnung. Ich bin fast 1,90 und in einem Haus aufgewachsen, wo es einen deutlich tieferen Durchgang hatte.
Es geht auch darum, etwas durch die Treppe transportieren zu können, was etwas länger ist.
Im Keller ist nur Nutzfläche?
Das Angebot für die Grundriss-Diskussion steht noch.
 
8

8aElProfe

Darf man fragen was Euch bewogen hat komplett ohne Dusche zu planen.

Könnte man die Fläche auch durch einen Drempel reduzieren? In Allen Räumen bis auf das Treppenhaus ist das problemlos möglich.
In den Badewannen wird man duschen können. Platz für separate Duschen haben wir nicht. Wir nehmen gerne mal ein Bad. Im Kinder-Badezimmer waren wir uns nicht ganz einig, aber wir haben eine Jugendliche, die gerne badet - ich hab das als Jugendlicher auch gerne gemacht - und wir haben auch als kleine Kinder gerne in der Wanne geplanscht.

Das war meine Nachfrage;

Ich frage erweitert: sind keine zu öffnenden Fenster aus Sicherheitsgründen möglich oder grundsätzlich?
Denn auch verschlossene Fensterbänder hätten zusätzlich zu einem Hauptfenster Charme, allerdings müsste man sie von außen putzen.

Es geht auch darum, etwas durch die Treppe transportieren zu können, was etwas länger ist.
Im Keller ist nur Nutzfläche?
Das Angebot für die Grundriss-Diskussion steht noch.
Es sind ohnehin nur fest verschlossene Lichtbänder möglich und diese konstruktiv erst ab einem Kniestock von ca. 180 cm innen.

Drempelwände würde wohl gehen, aber dann gehen ja wieder keine Lichtbänder oder wo würdest du die einziehen? Auch damit auf 14 m² zu kommen wird schwierig und man kann den Raum dann gar nicht mehr nutzen, auch nicht als Stauraum.
 
Zuletzt bearbeitet von einem Moderator:
8

8aElProfe

PS
Festverschlössene Fenster wegen SIA-Norm (Absturzgefahr).
Keller nur Nebenfläche, genau.
 
Zuletzt aktualisiert 25.11.2025
Im Forum Bauplanung gibt es 5072 Themen mit insgesamt 100818 Beiträgen


Ähnliche Themen zu Große Gauben oder hoher Kniestock?
Nr.ErgebnisBeiträge
1Grundrissfrage, Treppe, Fenster, Ausrichtung 12
2Optimierungsbedarf? Einfamilienhaus mit 130 m² + Keller 26
3Einfamilienhaus, Eingeschossigkeit, Kniestock, Fenster OG - Seite 230
4Badezimmer-Grundriss Planung - Wie die Fenster platzieren? 12
5Grundriss Einfamilienhaus geplant, Fenster gefallen uns - Seite 343
6Für Bullauge, spezielle Vorschriften? Fenster, Einfamilienhaus 1,5 Geschosse. - Seite 218
7160m2 Einfamilienhaus in Holzständerbauweise am Nordhang mit Keller - Seite 15100
8Grundrissoptimierung Einfamilienhaus mit Keller auf kleinem Grundstück - Seite 6178
9Einfamilienhaus (2Etagen+Wohn-Keller+ausgebautes Dach) etwa 200qm -Änderungen - Seite 4162
10Grundriss Stadtvilla 180m², Keller, 3 Kinder - Eure Meinungen dazu? - Seite 651
11Grundriss Einfamilienhaus 1,5 + Keller / 1. Vorentwurf - Vorschläge? - Seite 455
12Grundriss 175qm Satteldach ohne Keller 136
13Beratung: Neues Badezimmer, 5,9qm mit Badewanne 48
14Grundriss Einfamilienhaus Stadtvilla ca. 240m² ohne Keller - Seite 16132
15Grundrissfrage: Tausch gerader Treppe durch L-Treppe 31
16Grundriss Einfamilienhaus, ca. 200qm ohne Keller - Einschätzung - Seite 19172
17Grundriss Einfamilienhaus mit Keller 19
18Grundriss 180qm plus Keller - 12,40mx9,04m 21
19Grundriss Einfamilienhaus, ~180m², Keller mit Satteldach - Seite 681
20Grundrisse für Einfamilienhaus, ca. 140m², ohne Keller - Seite 1378

Oben