grobe Grundstücksplanung 819m²

4,00 Stern(e) 18 Votes
Zuletzt aktualisiert 23.11.2025
Sie befinden sich auf der Seite 6 der Diskussion zum Thema: grobe Grundstücksplanung 819m²
>> Zum 1. Beitrag <<

kbt09

kbt09

Naja .. ich kann gut verstehen, wenn man im Haus keine Treppen will.

Ziel werden dann ja eher so um die 150 qm sein, denn zur bisher gewohnten Fläche muss man ja auf jeden Fall noch die Haustechnik dazurechnen.

Ich habe mal in meinem Fundus gewühlt und den von 11ant genordeten Lageplan als Hintergrund gewählt.

Grundriss, den Chrisi sich schon ausgesucht hatte:

Grundriss Erdgeschoss: Wohnzimmer, Küche, Essen, Flure, Schlafzimmer, Bad, HWR, überdachter Freisitz.


Grundriss, den ich hier mal für jemanden gedacht hatte:

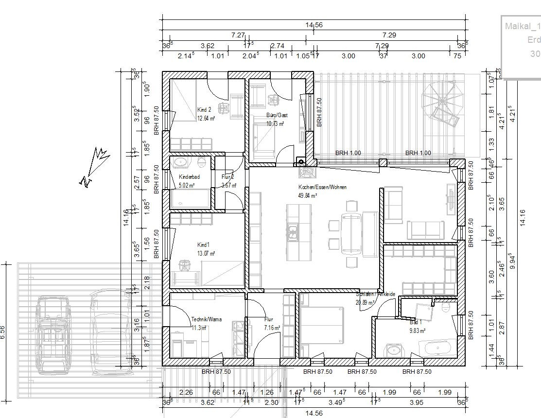
Grundriss eines Hauses: Küche/Wohnen, zwei Kinderzimmer, Büro/Gast, Bad, Flur, Technik/Wama.


Grundriss von Hauscompagnie

Grundriss eines Bungalows mit Wohnbereich, Küche, Esszimmer, Bad, Schlafzimmer, Carport.


Grundriss von eksjöhus

Grundriss eines Hauses mit Wohnzimmer, Küche, Schlafzimmer, Bad, Arbeitszimmer und Waschküche.


Unten hängen die Varianten an, wie sich die Häuser im Grundstück einfügen lassen.

Ich persönlich würde wohl auf Basis Hauscompagnie weiterarbeiten. Hier würde ich mit Garage und überdachtem (Carport) Eingangsbereich planen. Den Grundriss müßte man sicherlich auch noch besser anpassen, zeigt aber wie man etwas aufteilen könnte.

Grundriss eines Wohnhauses mit mehreren Zimmern auf einem Lageplan mit Nordausrichtung.


Grundriss eines Hauses mit Innenaufteilung auf einem Grundstück; Kompassrose im Bild.


Überlagerter Grundriss eines Wohnhauses auf einem Lageplan mit Kompassrose im Hintergrund.


Überlagerter Grundriss einer Wohnung auf einer Architektenzeichnung mit Maßen.
 
C

Chrisi1906

Naja .. ich kann gut verstehen, wenn man im Haus keine Treppen will.

Ziel werden dann ja eher so um die 150 qm sein, denn zur bisher gewohnten Fläche muss man ja auf jeden Fall noch die Haustechnik dazurechnen.

Ich habe mal in meinem Fundus gewühlt und den von 11ant genordeten Lageplan als Hintergrund gewählt.

Grundriss, den Chrisi sich schon ausgesucht hatte:
Anhang anzeigen 36234

Grundriss, den ich hier mal für jemanden gedacht hatte:
Anhang anzeigen 36233

Grundriss von Hauscompagnie
Anhang anzeigen 36232

Grundriss von eksjöhus
Anhang anzeigen 36231

Unten hängen die Varianten an, wie sich die Häuser im Grundstück einfügen lassen.

Ich persönlich würde wohl auf Basis Hauscompagnie weiterarbeiten. Hier würde ich mit Garage und überdachtem (Carport) Eingangsbereich planen. Den Grundriss müßte man sicherlich auch noch besser anpassen, zeigt aber wie man etwas aufteilen könnte.

Erstmal vielen Dank. Ich finde deine Vorschläge prima. Genau sowas brauche ich.

Richtig erkannt, Ziel wären dann so ca 150m². Das Büro könnte nach oben.

Auf Anhieb gefällt mir die Hauscompagnie Variante auch am Besten. Das Grundstück wirkt größer wenn man vom Küchen / Essbereich nach draußen geht.
 
kbt09

kbt09

Es ist mit 819 qm ja auch kein wirklich kleines Grundstück. Und das Haus zieht sich über 20 m hin
 
kaho674

kaho674

Es ist mit 819 qm ja auch kein wirklich kleines Grundstück. Und das Haus zieht sich über 20 m hin
Eben eine Frage der Prioritäten. 20m Haus - das ist so... ich mein, da rennt man schon ne Weile, wenn man mal auf die andere Seite will. Da wär ich nur noch genervt. Bei 800m² wirkt die ganze Sache m.E. so unverhältnismäßig. Ein Riesenklopps und drumrum nur ein Rasenstreifen.
Ist halt schwer nachzuvollziehen für die Gartenfans und die Herzen bluten ob so viel versiegelter Fläche, zumal man eben andere Optionen hätte. Aber so ist das eben. Am Ende zählt, was dem Bauherr gefällt.

Die Grundflächenzahl mit 0,4 ist ja anständig, aber wo liegt Ihr dann denn so bei dem Hauscompagnie-Vorschlag?
 
Y

ypg

So ein Klopper ist mit 1300€/Qm nicht machbar. Zwar sinkt der Durchschnittspreis des Hauses, je mehr leere Qm man dazu plant, aber die Kampfansage, die dann auch noch der BU selbst bauen soll (Bauträgerbindung) kann man nur mit "quadratisch, praktisch, gut" umsetzen, wobei natürlich auch rechteckig in Frage kommt.
 
kbt09

kbt09

Da hat Yvonne allerdings Recht ... da ist selbst quadratisch praktisch gut schon SEHR ehrgeizig.
 
Zuletzt aktualisiert 23.11.2025
Im Forum Grundrissplanung / Grundstücksplanung gibt es 2536 Themen mit insgesamt 87997 Beiträgen


Ähnliche Themen zu grobe Grundstücksplanung 819m²
Nr.ErgebnisBeiträge
1Grundriss mit Garage auf Grundstück realisierbar? - Seite 429
2Erster Grundriss-Versuch für Kettenhaus auf kleinem Grundstück 94
3Erster Grundriss Einfamilienhaus - Eure Ideen auch zum Grundstück - Seite 333
4Grundstück nicht Rechteckig - Idee für Grundriss gesucht - - Seite 320
5Einfamilienhaus 150m2 Grundriss + Planung auf dem Grundstück 24
6Grundriss Bungalow auf schon genutztem Grundstück 108
7Grundriss-Planung und Platzierung - Einfamilienhaus ca. 200qm auf 900qm Grundstück - Seite 255
8Grundriss Einfamilienhaus, 2 Vollgeschosse ca. 180qm, 600qm Grundstück - Seite 756
9Grundriss Einfamilienhaus 133qm Grundstück 850qm 16
10Grundriss Einfamilienhaus ca. 300qm, Grundstück 780qm 24
11Grundriss Einfamilienhaus 2 Vollgeschoss ~180m² Wohnfläche - 760m² Grundstück - Seite 344
12Planung Grundriss Doppelhaus, kleines Grundstück, Bauhausstil 34
13Grundriss Einfamilienhaus mit Flachdach auf 600m² Grundstück - Seite 419
14Grundriss-Entwurf: Einfamilienhaus mit Keller; 560qm Grundstück - Seite 765
15Grundriss Bungalow 125qm konisches Grundstück - Seite 739
16Bungalow - ca. 146 m² - Verbesserungsvorschläge - Seite 260
17Grundriss - Haus mit Einliegerwohnung - Seite 323
18Grobe Kostenrechnung anhand Grundriss 13
19Einfamilienhaus, geschätzte Kosten und Anregungen Grundriss - Seite 649
20Grundriss Vorschläge, Beispiele ... 15

Oben