H
HerrGarage14.05.25 11:00Bei uns geht es um die Grundstücksplanung. Ich hoffe der Beitrag ist hier richtig und gehört nicht in das Forum "Garage"
Unser Haus steht bereits und an der Hausplanung ist damit nichts mehr zu ändern.
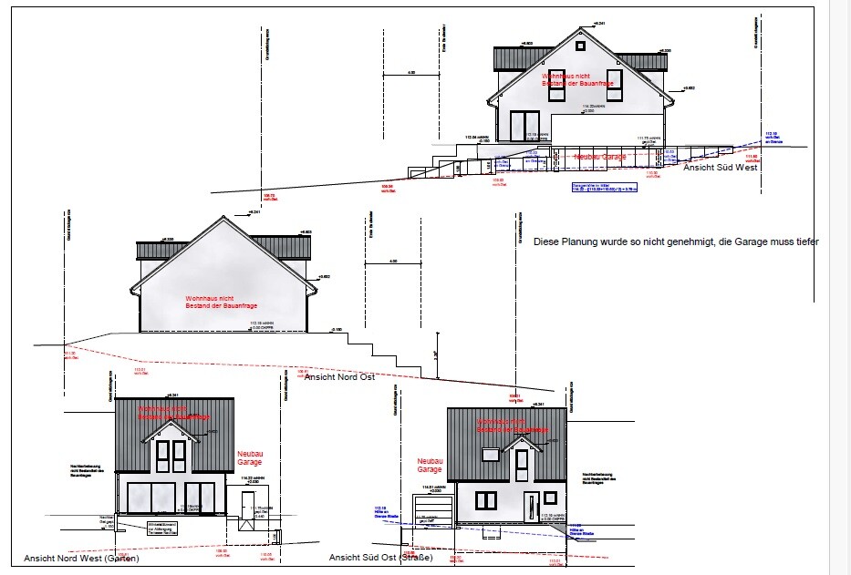
Wir wollten neben dem Haus eine Garage (3x9m) auf Höhe des OG, Oberkante Fertigfußboden bauen. Diese wurde nun vom Bauamt abgelehnt, da neben dem Haus eine Anschüttung durchgeführt werden müsste und das Dach der Garage über die erlaubten 3m der ursprünglichen Geländehöhe (Bauordnung NRW) gekommen wäre.
Das Problem: Von der Straße aus geht unser Grundstück mit Hang bergab. Das Haus durften wir auf Straßenniveau bauen, aber die Garage nun nicht.
Der erlaubt Planung (s. Datei) gefällt uns nicht, da die Einfahrt in die Garage steil bergab geht und wir zumindest in den nächsten Jahren geplant hatten, das Auto öfter vor der Garage zu parken.
Nun stehen wir vor der Frage, ob und wie wir die Garage bauen.
Folgendes benötigen wir: 2 Stellplätze (nebeneinander oder hintereinander, überdacht oder nicht egal), Platz für 4 Fahrräder (überdacht), Platz für Gartengeräte (überdacht, im Garten dürfen wir keinen Schuppen bauen laut Bebauungsplan)
Wir überlegen nun was das sinnvollste wäre und wie wir die Autos möglichst eben/gerade abstellen könnten.
Zudem haben wir das Problem vor unserem Grundstück einen öffentlichen Stellplatz (5,50m ab Grenze zum Doppelhausnachbarn) zu haben (s. Datei). Dafür haben wir keinen Bürgersteig und somit kein Problem wo dieser abgesenkt ist.
Bebauungsplan/Einschränkungen
Größe des Grundstücks 400qm
Hang ja
Grundflächenzahl nicht relevant
Geschossflächenzahl nicht relevant
Baufenster, Baulinie und -grenze ja: 6m ab Straße, dann 15m
Randbebauung nein
Anzahl Stellplatz 2
Geschossigkeit nicht relevant
Dachform nicht relevant
Stilrichtung nicht relevant
Ausrichtung N/W
Maximale Höhen/Begrenzungen Laut Bauordnung NRW: Dach von Garage oder Carport im mittel nicht höher als 3m über gewachsenem Gelände, Stellplatz 1m über Gelände
weitere Vorgaben
Anforderungen der Bauherren
Garage, Carport ja, aber eher als Abstellraum für Fahrräder und Gartengeräte, Kinderwagen und Spielgeräte
Hausentwurf
Von wem stammt die Planung:
-Planer eines Bauunternehmens
Aktueller Entwurf gefällt uns gar nicht. Wir tun uns schwer mit der schrägen Einfahrt. Der Planer des Unternehmens nimmt keine weitern Planungen für uns vor.
Persönliches Preislimit für Garage: 15.000 Euro
Wenn Ihr verzichten müsst, auf welche Details/Ausbauten
-könnt Ihr verzichten: Autos können auch im freien stehen,
-könnt Ihr nicht verzichten: Fahrräder und Gartengeräte unterstellen, Zuwegung für Fahrräder muss gegeben sein, wenn Autos parken
Warum ist der Entwurf so geworden, wie er jetzt ist?
Der Architekt hatte uns bei der Hausplanung gesagt, dass das Bauamt eine Abweichung von der Bauordnung (max. 3m über Gelände) zulässt, wenn der Nachbar einverstanden ist. Aber das Bauamt lässt keinerlei Abweichungen zu.
Was würdet ihr Raten oder kennt ihr einen fähigen Planer, der uns weiterhelfen könnte?
Vielen Dank




Unser Haus steht bereits und an der Hausplanung ist damit nichts mehr zu ändern.
Wir wollten neben dem Haus eine Garage (3x9m) auf Höhe des OG, Oberkante Fertigfußboden bauen. Diese wurde nun vom Bauamt abgelehnt, da neben dem Haus eine Anschüttung durchgeführt werden müsste und das Dach der Garage über die erlaubten 3m der ursprünglichen Geländehöhe (Bauordnung NRW) gekommen wäre.
Das Problem: Von der Straße aus geht unser Grundstück mit Hang bergab. Das Haus durften wir auf Straßenniveau bauen, aber die Garage nun nicht.
Der erlaubt Planung (s. Datei) gefällt uns nicht, da die Einfahrt in die Garage steil bergab geht und wir zumindest in den nächsten Jahren geplant hatten, das Auto öfter vor der Garage zu parken.
Nun stehen wir vor der Frage, ob und wie wir die Garage bauen.
Folgendes benötigen wir: 2 Stellplätze (nebeneinander oder hintereinander, überdacht oder nicht egal), Platz für 4 Fahrräder (überdacht), Platz für Gartengeräte (überdacht, im Garten dürfen wir keinen Schuppen bauen laut Bebauungsplan)
Wir überlegen nun was das sinnvollste wäre und wie wir die Autos möglichst eben/gerade abstellen könnten.
Zudem haben wir das Problem vor unserem Grundstück einen öffentlichen Stellplatz (5,50m ab Grenze zum Doppelhausnachbarn) zu haben (s. Datei). Dafür haben wir keinen Bürgersteig und somit kein Problem wo dieser abgesenkt ist.
Bebauungsplan/Einschränkungen
Größe des Grundstücks 400qm
Hang ja
Grundflächenzahl nicht relevant
Geschossflächenzahl nicht relevant
Baufenster, Baulinie und -grenze ja: 6m ab Straße, dann 15m
Randbebauung nein
Anzahl Stellplatz 2
Geschossigkeit nicht relevant
Dachform nicht relevant
Stilrichtung nicht relevant
Ausrichtung N/W
Maximale Höhen/Begrenzungen Laut Bauordnung NRW: Dach von Garage oder Carport im mittel nicht höher als 3m über gewachsenem Gelände, Stellplatz 1m über Gelände
weitere Vorgaben
Anforderungen der Bauherren
Garage, Carport ja, aber eher als Abstellraum für Fahrräder und Gartengeräte, Kinderwagen und Spielgeräte
Hausentwurf
Von wem stammt die Planung:
-Planer eines Bauunternehmens
Aktueller Entwurf gefällt uns gar nicht. Wir tun uns schwer mit der schrägen Einfahrt. Der Planer des Unternehmens nimmt keine weitern Planungen für uns vor.
Persönliches Preislimit für Garage: 15.000 Euro
Wenn Ihr verzichten müsst, auf welche Details/Ausbauten
-könnt Ihr verzichten: Autos können auch im freien stehen,
-könnt Ihr nicht verzichten: Fahrräder und Gartengeräte unterstellen, Zuwegung für Fahrräder muss gegeben sein, wenn Autos parken
Warum ist der Entwurf so geworden, wie er jetzt ist?
Der Architekt hatte uns bei der Hausplanung gesagt, dass das Bauamt eine Abweichung von der Bauordnung (max. 3m über Gelände) zulässt, wenn der Nachbar einverstanden ist. Aber das Bauamt lässt keinerlei Abweichungen zu.
Was würdet ihr Raten oder kennt ihr einen fähigen Planer, der uns weiterhelfen könnte?
Vielen Dank
M
MachsSelbst14.05.25 18:26Aber wenn du aufschütten und abfangen musst, dann reichen doch deine 15.000 EUR niemals aus?
H
HerrGarage14.05.25 19:40Hallo, die 15T beziehen sich nur auf Garage und Fundament.
Das Abfangen, Aufschütten und Zuwegung sind im Butget für die Außenanlagen. Da rechnen wir mit 30-40T.
Im Zuge des Hausbaus wurde bereits einiges rund ums Haus aufgeschüttet.
Das Abfangen, Aufschütten und Zuwegung sind im Butget für die Außenanlagen. Da rechnen wir mit 30-40T.
Im Zuge des Hausbaus wurde bereits einiges rund ums Haus aufgeschüttet.
H
HerrGarage14.05.25 19:42Falls jemand mit Hanggarage gebaut hat, gerne mal ein Foto von eurer Lösung einstellen.
H
hanghaus202315.05.25 11:56Ohne den Bebauungsplan in Bild und Text kann man wenig sagen.
In so einem Fall sollte man eine Bauvoranfrage stellen.
Darf man einen CP an die Strasse stellen?
In so einem Fall sollte man eine Bauvoranfrage stellen.
Darf man einen CP an die Strasse stellen?
H
hanghaus202315.05.25 12:19Was schreibt denn der Bebauungsplan bezüglich Garagen/ CP vor? Darf man ausserhalb vom Baufeld Garage errichten?
So wie ich den Lageplan lese, ist es doch gar keine Grenzgarage.
So wie ich den Lageplan lese, ist es doch gar keine Grenzgarage.
Ähnliche Themen