Fliesenformat - Bitte um Fotos/Bilder brauche Entscheidungshilfe!

4,80 Stern(e) 4 Votes
Zuletzt aktualisiert 26.11.2025
Sie befinden sich auf der Seite 7 der Diskussion zum Thema: Fliesenformat - Bitte um Fotos/Bilder brauche Entscheidungshilfe!
>> Zum 1. Beitrag <<

11ant

11ant

Dafür ist das Format ideal oder denke ich falsch ?
Bei einem zwei Einheiten breiten Flur wäre nur je eine Einheit beidseits der Fuge, die einzige Fuge also sehr augenfällig auch gleich eine Mittellinie. Eben das würde mich stören.

Im Sinne unserer doch stark verschiedenen Geschmäcker müßte es also für Dich genau richtig sein :)
 
blaupuma

blaupuma

Welches Fliesenformat würdest du wählen bei meinem Flur?
Das macht mich wahnsinnig, dass ich nicht weiß wie ich dem schmalen Flur entgegenwirke.
Bei einem zwei Einheiten breiten Flur wäre nur je eine Einheit beidseits der Fuge, die einzige Fuge also sehr augenfällig auch gleich eine Mittellinie. Eben das würde mich stören.

Im Sinne unserer doch stark verschiedenen Geschmäcker müßte es also für Dich genau richtig sein :)
oches
 
blaupuma

blaupuma

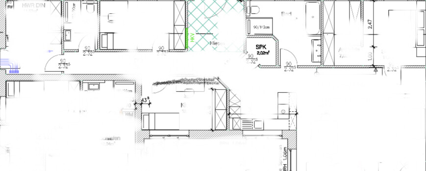
Hier ist mein Grundriss.

Für Tipps ( Verlegerichtung bin ich dankbar )

Ein paar Daten als Orientierung.
Haus ist 23,3 m breit.

Flur bis ins Wohnzimmer alles öffnen ohne Tür.

Maße Wohnzimmer ca 8x7 Meter
Eingang 3x3 Meter für die Verhältnissmässigkeit.

2D-Grundrissplan eines Wohnhauses mit Zimmern, Türen und Maßen
 
kbt09

kbt09

@blaupuma ... sorry, du stellst hier so ein verschnipseltes Teil ein und erwartest, das wir dir die Verlegemöglichkeiten skizzieren? Das kann man nur entweder mit einem guten Fliesenleger machen, der einfach einen Blick für so etwas hat und mal ein paar Fliesen anfängt auszulegen, damit man die Wirkung erkennt. Oder, wie ich oben beschrieben habe und da kann man erwarten, dass du zumindest mal den Anfang machst. Und, wenn du unsere Mithilfe erwartest, einen ordentlich vermaßten Grundriss möglichst maßstabsgerecht einmal als Bild und einmal als PDF anhängst.

Denn, so etwas muss man dann schon genau machen, und dabei auch an die Fugen denken.

Und, dann auch mal skizzierst, wie weit dieser Fliesenboden gehen soll, dann willst du ja Parkett legen. Was für ein Parkett? Bild wäre auch nett usw.

Des weiteren gibt es ja nun wirklich jede Menge Bilder bei Google, wo man einfach mal ein paar Sachen, die einem (DIR) wirklich gut gefallen als Beispiele einstellen kann.
 
Zuletzt bearbeitet:
N

niri09

Das macht mich wahnsinnig, dass ich nicht weiß wie ich dem schmalen Flur entgegenwirke.
Dem kannst du gar nicht großartig entgegenwirken, die Fliesen können aus einem schmalen Flur keinen riesen Empfangsbereich zaubern.
Es gibt zig Bilder im Internet mit Beispielbilder wie quadratische oder längliche Fliesen in schmalen Fluren wirken. Dann kommt es noch darauf auf ob deine Fliesen hell oder dunkel sind, welche Farbe die Fugen haben und auch was einem persönlich gefällt.

Heller Eingangsbereich mit Treppe, Pflanze und minimalistischer Einrichtung


Heller Innenkorridor mit beigen Fliesen und Türen im Wohngebäude
 
Zuletzt aktualisiert 26.11.2025
Im Forum Bauplanung gibt es 5072 Themen mit insgesamt 100818 Beiträgen


Ähnliche Themen zu Fliesenformat - Bitte um Fotos/Bilder brauche Entscheidungshilfe!
Nr.ErgebnisBeiträge
1Grundriss für 150qm Einfamilienhaus mit Wohnzimmer nach Norden - Seite 321
2Flur-Grundriss vergrößern REH von 1921: Tipps? 27
3Parkett von Flur in Zimmer durchlegen - Seite 217
4Parkett Fugen unsauber“ verlegt? Sachmangel oder Toleranz? 30
5Parkett durchgehend verlegt ohne Fugen - Seite 426
6Platzierung der Möbel im Wohnzimmer im Grundriss 10
7Grundriss: Offenes Wohnzimmer inkl. Kamin - Feedback 11
8Kombination Fliesen und Parkett im Wohnzimmer mit offener Küche - Seite 330
9Meinungen zu Grundriss "Haus am Hang" erbeten 31
10Grundriss Stadtvilla / Feedback Statik, Anordnung - Seite 228
11Bungalow mit 140qm und Garage im Grundriss 13
12Grundriss EG + OG für Doppelhaushälfte - Seite 229
13Wohnzimmer Grundrissplanungs-Ideen? - Seite 239
14Meinung zu Grundriss 16
15Grundriss unseres Bungalows 82
16Grundriss - Eure Meinungen, Ideen und Vorschläge 31
17Meinungen zum Haus-Grundriss erwünscht - Seite 471
18Grundriss Einfamilienhaus - Feedback erwünscht - Seite 248
193. Zimmer im 40qm Wohnzimmer unterkriegen. Ideen 74
20Grundriss Satteldachhaus 172 qm - Bitte um eure Meinungen 23

Oben