Hausbau - Ratgeber
Bauherrenhilfe
- Bauherrenhilfe vor Vertragsabschluss
-- Warum einen unabhängigen Baubetreuer?
-- Vertragsgrundlagen
-- Bausumme
-- Zahlungsplan zur Kostenkontrolle
-- Pflichten des Bauherren vor Vertragsabschluss
-- Unterlagen beim Hausbau vor Vertragsabschluss
- Bauherrenhilfe nach Vertragsabschluss
-- Bauantrag bei Behörden
-- Bau-Genehmigungsverfahren bei Baubehörden
-- Bauspezifische Versicherungen
-- Bauzeitenplan
-- Baubeginn - die Letzten Pflichten der Bauherrschaft
- Bauherrenhilfe während der Bauzeit
- Gewährleistungsansprüche
- Bauabnahme
Baufinanzierung
- Baufinanzierung - Allgemeine Fragen
- Kreditarten
- Kredit-Konditionen
- Bausparen
- Staatliche Förderungen
- Verkehrswert
- Haushaltsrechnung und Bonität
Hausbau Planung
- Haustypen
- Hausbau Vorbereitungsarbeiten
- Das Baugrundstück
- Baugrund beim Hausbau
- Baurecht
- Gebäudeschutz
- Erdarbeiten und Wasserhaltung
- Stützmauern
- Einfriedung
- Untergeschoss
- Kanalisation
- Tragende Elemente
- Nichttragende Innenwände
- Fundation / Fundament
- Deckenkonstruktionen
- Dächer
- Kaminanlagen
- Treppen Rampen Leitern
- Dachbeläge und Spengler
- Fenster
- Sonnen und Wetterschutz
- Aussenputze
- Einbauten, Küchen, Türen
- Bodenbeläge und Unterlagsböden
- Parkett
- Gips, Wand, Decke
Haustechnik und Energie
- Heiztechnik
- Lüftung und Klimatechnik
- Sanitärtechnik
- Elektrotechnik
- Erneuerbare Energie
Whirlpools / Jacuzzi
Hausbau Magazin
- Baufinanzierung trotz Krise?
- Das Blockhaus
- Moderne Dämmstoffe im Vergleich
- Erker Vor- und Nachteile
- Glasflächen beim Hausbau
- Günstig ein Haus Bauen
- Mediterraner Hausbaustil
- Mehrgenerationenhaus
- Moderne Architektur
- Gartengestaltung leicht gemacht
- Traditioneller Ziegelbau
- Villa als höchster Traum
- Im Eigenheim Ruhestand geniessen
- Altbau sanieren
- Kauf einer Holzgarage
- Immobilienmakler
- Arbeitshandschuhe für den Winter
- Zuhause verschönern
- Outdoor-Plissees
- Schlafzimmer planen
- Terrassenüberdachung
- Wohngebäudeversicherung
- Zaunarten und Eigenschaften
- Hauseingang gestalten
- Der perfekte Grundriss
- Sparsamer heizen im Altbau
- Einfamilienhaus smart finanzieren
- Planung einer PV-Anlage
- Neues Haus
- Immobilienfinanzierung
- Installation einer Photovoltaikanlage
- Asbest erkennen und entfernen
- Gartenpflege im Frühling – worauf achten
- Sauna im Fokus - Wellness zuhause
- Erfolgreich vermieten
- Die perfekte Winterbekleidung
- Das Niedrigenergiehaus
- Der April und seine Stürme
- Architektonische Vielfalt
- Ökologisch und nachhaltig bauen
- Das perfekte Schlafzimmer
- Nachhaltige Energieversorgung
- Zukunftsorientiert bauen
- Nachhaltigkeit beim Hausbau
- Tiny Houses
- Wärmepumpen als nachhaltige Heizvariante
- Maßgeschneiderten Kleiderschrank
- Der richtige Baukredit
- Ratgeber für erfolgreichen Hausbau
- Haus als Altersvorsorge
Do-it-yourself Anleitungen
- Verlegeanleitung für Bodenbeläge und Parkett
- Bodenbeläge und Parkett reinigen und pflegen
- Malerarbeiten am Haus
- Garten Tipps
- Umzug und Reinigung

ᐅ Feedback zu unserem Grundriss und Hausentwurf


Erstellt am: 23.03.17 21:14

B
baumhaus815
23.03.17 21:14
Hallo Hausbau-Forum,

wir haben uns jetzt schon einige Gedanken über unseren Grundriss gemacht - anbei der aktuelle Planungsstand.
Wie findet ihr den Entwurf, was ist aus eurer Sicht gut bzw. verbesserungsfähig?
Schon mal vielen Dank vorab für eure Antworten!

Bebauungsplan/Einschränkungen
Größe des Grundstücks: 510 qm
Hang: nein
Grundflächenzahl: 0,3
Geschossflächenzahl: 0,6
Baufenster, Baulinie und -grenze: 3m Grenzabstand zur Straße
Randbebauung: Nein im Neubaugebiet mit 3 Nachbarhäusern
Anzahl Stellplatz: 2
Geschossigkeit: 1,5
Dachform: Satteldach
Stilrichtung: klassisch, modern
Ausrichtung: Hauseingang: N, Garten: S
Maximale Höhen/Begrenzungen: Firsthöhe 9,75m
weitere Vorgaben

Anforderungen der Bauherren
Stilrichtung, Dachform, Gebäudetyp: klassisch, modern, Satteldach, Einfamilienhaus
Keller, Geschosse: Ja
Anzahl der Personen, Alter: 4, (37, 38, 2,5)
Raumbedarf im EG, OG
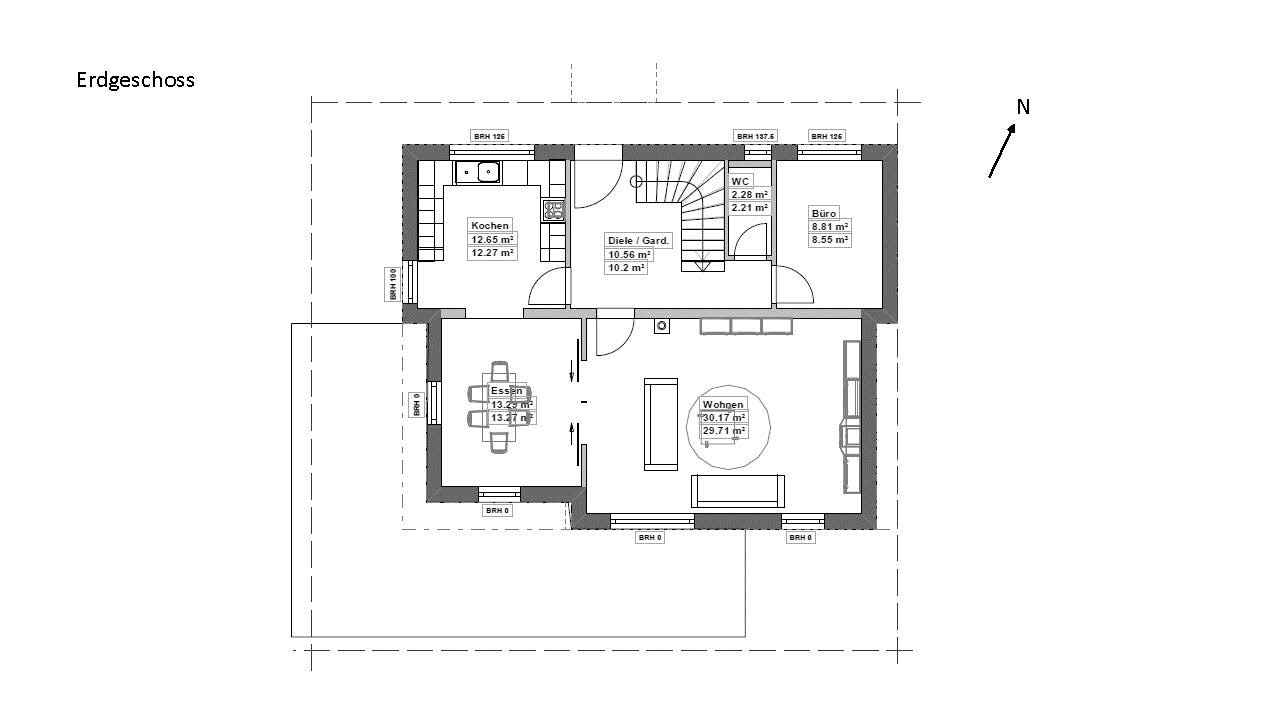
Büro: Familiennutzung oder Homeoffice? Familiennutzung, Homeoffice gelegentlich
Schlafgäste pro Jahr: 15
offene oder geschlossene Architektur: (teil-)geschlossene Küche
konservativ oder moderne Bauweise: teils, teils
offene Küche, Kochinsel. nein
Anzahl Essplätze: 6-8 (im Esszimmer)
Kamin: ja
Musik/Stereowand: nein
Balkon, Dachterrasse: nein
Garage, Carport: ja
Nutzgarten, Treibhaus: nein


Hausentwurf
Von wem stammt die Planung: Architekt, eigene Ideen
favorisierte Heiztechnik: Gasbrennwert + Solar + Kontrollierte-Wohnraumlüftung

Was gefällt besonders?
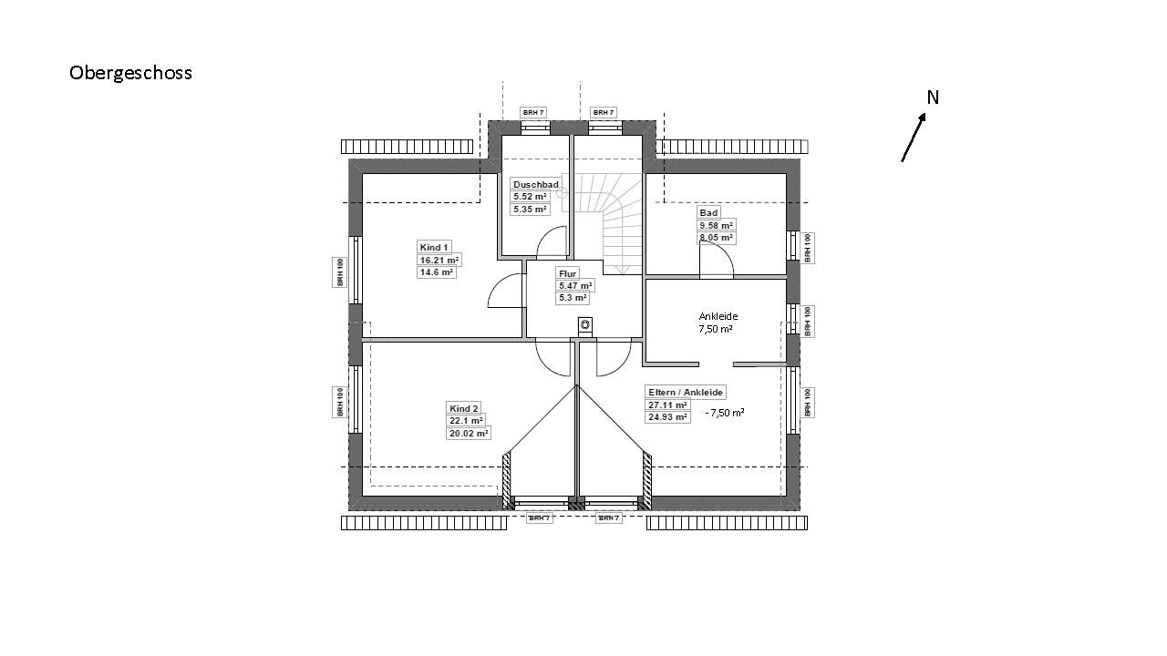
Gliederung des Wohn- und Esszimmers, Überstand über Hauseingangsbereich, Ankleidezimmer mit "En-Suite" Elternbad

Was gefällt nicht? Warum?
Durch die Platzierung der Treppe EG-OG ist der Hauseingang nicht in der Mitte des Hauses, wir überlegen, wie wir mit der Treppe den Eingang mittig kriegen
Im Dielenbereich im EG ist kein Platz für eine großzügige Garderobe...?
OG: Das eine Kinderzimmer ist unnötig groß, dafür das Elternbad eher zu eng...?
Mit der Platzierung des Kamins neben der Tür sind wir noch unschlüssig

Sind schon gespannt auf Eure Meinungen!
B
baumhaus815
23.03.17 21:41
Jetzt mit Grundrissen :-)
Y
ypg
23.03.17 21:46
Magst Du die Bilder als Jpg einstellen? Hilfsprogramme können für User sehr mühselig werden 🙁


Gruß, Yvonne
K
kbt09
23.03.17 21:50
Grundsätzlich besser ist es, solche Pläne als Bilddateien einzustellen.

Ansonsten hm hm hm.... was mir so auffällt
  • Gibt es schon einen Preis? Da sind ja Unmengen an Vor- und Rücksprüngen in den Außenwänden
  • Leider ist der Plan nicht bemaßt, paßt die Treppe tatsächlich?
  • Was ist an einem Eingang in der Mitte vom Haus so reizvoll? Es gibt ja leider keinen Lageplan zum Haus.
  • Küche ... soll die so möbliert sein? Dann sind das mind. 3 qm Platzverschwendung
  • OG .. Kinderbad schon mal geplant? Das sieht alles recht eng aus und Fenster dann auch noch bodentief .. ist doch bestimmt die Ansicht zur Straße.
  • Ankleide 7,5 qm um ca. 3 bis max. 3,5 m schrank stellen zu können .. ist das nötig? Und dann, einer schläft, geht in die Ankleide, geht ins Bad, geht von dort zurück und wieder am Schlafenden vorbei ... das ist irgendwie nicht konsequent geplant
  • Der Erker im OG, der mit Überstand geplant ist, wird ja auch nicht ganz günstig sowie auch die ganzen "Überdachungen" der anderen Rücksprünge im EG
B
baumhaus815
23.03.17 21:57
Ok, hier sind die Grundrisse als jpg....

Grundriss Erdgeschoss eines Hauses mit Küche, Essbereich, Wohnzimmer, Diele, WC und Büro.


Obergeschoss Grundriss eines Hauses mit Elternschlafzimmer, Kinderzimmern, Ankleide und Flur


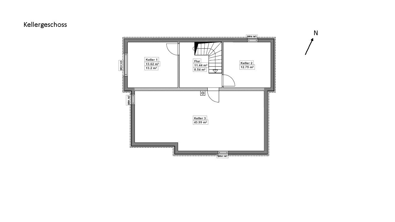
Kellergeschoss Grundriss mit drei Kellerräumen, Flur und Treppe


Schnitt durch ein mehrstöckiges Haus mit Dachstuhl, Treppen und Türen.
Y
ypg
23.03.17 21:59
Jetzt seh ich die Dateien auch 😉

Die Ankleide ist nur mit Einzelschränken möblierbar, kommen da überhaupt 3 Meter zusammen? Bad wäre mir als doppelt gefangener Raum zu fern zu erreichen. Aufs Klo schaffe ich das da nicht mehr 😉
Auch ich frage mich, warum der Eingang mittig sein soll.

Ein sehr schöner Wohnraum ist das, aber kostet diese Fläche nicht zu viel an Raum von anderen Zimmern?


Gruß, Yvonne
hauseingangküchetreppeankleidedachformsatteldachüberstandelternbad