Hausbau - Ratgeber
Bauherrenhilfe
- Bauherrenhilfe vor Vertragsabschluss
-- Warum einen unabhängigen Baubetreuer?
-- Vertragsgrundlagen
-- Bausumme
-- Zahlungsplan zur Kostenkontrolle
-- Pflichten des Bauherren vor Vertragsabschluss
-- Unterlagen beim Hausbau vor Vertragsabschluss
- Bauherrenhilfe nach Vertragsabschluss
-- Bauantrag bei Behörden
-- Bau-Genehmigungsverfahren bei Baubehörden
-- Bauspezifische Versicherungen
-- Bauzeitenplan
-- Baubeginn - die Letzten Pflichten der Bauherrschaft
- Bauherrenhilfe während der Bauzeit
- Gewährleistungsansprüche
- Bauabnahme
Baufinanzierung
- Baufinanzierung - Allgemeine Fragen
- Kreditarten
- Kredit-Konditionen
- Bausparen
- Staatliche Förderungen
- Verkehrswert
- Haushaltsrechnung und Bonität
Hausbau Planung
- Haustypen
- Hausbau Vorbereitungsarbeiten
- Das Baugrundstück
- Baugrund beim Hausbau
- Baurecht
- Gebäudeschutz
- Erdarbeiten und Wasserhaltung
- Stützmauern
- Einfriedung
- Untergeschoss
- Kanalisation
- Tragende Elemente
- Nichttragende Innenwände
- Fundation / Fundament
- Deckenkonstruktionen
- Dächer
- Kaminanlagen
- Treppen Rampen Leitern
- Dachbeläge und Spengler
- Fenster
- Sonnen und Wetterschutz
- Aussenputze
- Einbauten, Küchen, Türen
- Bodenbeläge und Unterlagsböden
- Parkett
- Gips, Wand, Decke
Haustechnik und Energie
- Heiztechnik
- Lüftung und Klimatechnik
- Sanitärtechnik
- Elektrotechnik
- Erneuerbare Energie
Whirlpools / Jacuzzi
Hausbau Magazin
- Baufinanzierung trotz Krise?
- Das Blockhaus
- Moderne Dämmstoffe im Vergleich
- Erker Vor- und Nachteile
- Glasflächen beim Hausbau
- Günstig ein Haus Bauen
- Mediterraner Hausbaustil
- Mehrgenerationenhaus
- Moderne Architektur
- Gartengestaltung leicht gemacht
- Traditioneller Ziegelbau
- Villa als höchster Traum
- Im Eigenheim Ruhestand geniessen
- Altbau sanieren
- Kauf einer Holzgarage
- Immobilienmakler
- Arbeitshandschuhe für den Winter
- Zuhause verschönern
- Outdoor-Plissees
- Schlafzimmer planen
- Terrassenüberdachung
- Wohngebäudeversicherung
- Zaunarten und Eigenschaften
- Hauseingang gestalten
- Der perfekte Grundriss
- Sparsamer heizen im Altbau
- Einfamilienhaus smart finanzieren
- Planung einer PV-Anlage
- Neues Haus
- Immobilienfinanzierung
- Installation einer Photovoltaikanlage
- Asbest erkennen und entfernen
- Gartenpflege im Frühling – worauf achten
- Sauna im Fokus - Wellness zuhause
- Erfolgreich vermieten
- Die perfekte Winterbekleidung
- Das Niedrigenergiehaus
- Der April und seine Stürme
- Architektonische Vielfalt
- Ökologisch und nachhaltig bauen
- Das perfekte Schlafzimmer
- Nachhaltige Energieversorgung
- Zukunftsorientiert bauen
- Nachhaltigkeit beim Hausbau
- Tiny Houses
- Wärmepumpen als nachhaltige Heizvariante
- Maßgeschneiderten Kleiderschrank
- Der richtige Baukredit
- Ratgeber für erfolgreichen Hausbau
- Haus als Altersvorsorge
Do-it-yourself Anleitungen
- Verlegeanleitung für Bodenbeläge und Parkett
- Bodenbeläge und Parkett reinigen und pflegen
- Malerarbeiten am Haus
- Garten Tipps
- Umzug und Reinigung

ᐅ Mal wieder Grundriss - Fertighaus kurz vor Bauantrag

Erstellt am: 23.06.16 08:48
H
HB-NH2015
H
HB-NH2015
23.06.16 08:48
Hallo Gemeinde,

Wir möchten gerne unseren geplanten Grundrisse & Ansichten aus den Vorabzügen einstellen um noch letztes Feedback zu bekommen bevor wir Anfang nächster Woche die Vorabzüge zurücksenden und den Bauantrag erstellen lassen.

Gebaut wird ein Einfamilienhaus für Familie mit bisher 1 Kind (2. geplant) mit 142qm Wohnfläche, Satteldach mit 1,30m Kniestock mit Luft-Wasser-Wärmepumpe und integrierter Kontrollierte-Wohnraumlüftung von einem großen Fertighausanbieter aus Nordhessen in einer Baulücke in nordhessischer Dorfrandlage.

Dokumente im Anhang.

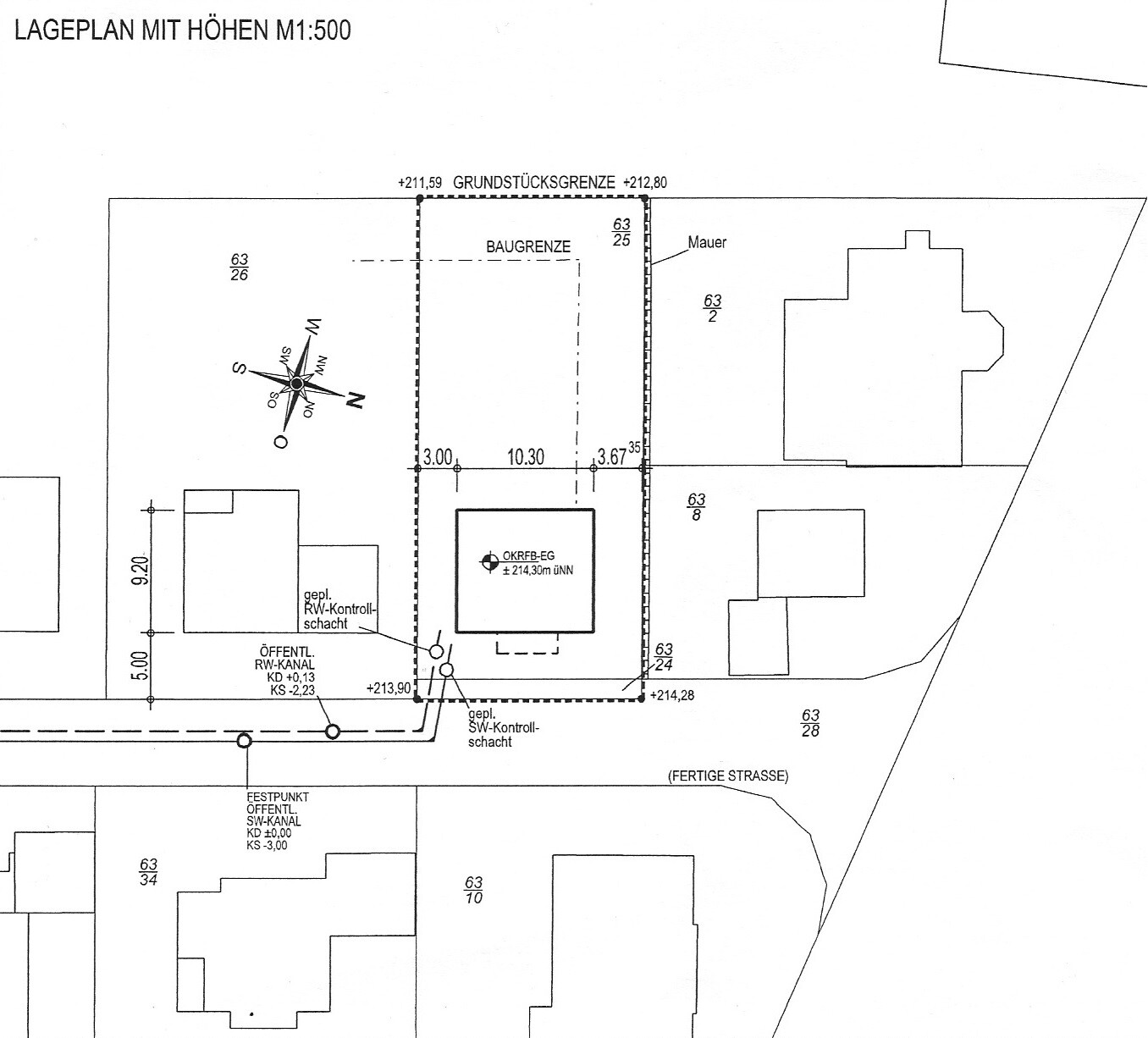
Lageplan
- Baugrenzen -> Befreiungen in Aussicht
- Viel Garten, Hausfront in Reihe mit den Nachbarn (deshalb nicht weiter nach hinten gesetzt)
- Kanalanschluss muss in der Straße verlängert werden.

Ansichten / Sockelwand
- Süden sind die (nicht so wichtigen) Nachbarn
- Norden die Schwiegereltern
- Symmetrie der Außenansicht/Fenster war schwierig. Ist alles ein Kompromiss. Gut gefällt uns Ost und West. Nord und Süd sind suboptimal aber das nehmen wir in Kauf da wir uns dafür innen nicht von der Wunschposition der Fenster verabschieden wollen
- Leider brauchen wir lt. Architekt eine Sockelwand/Stützmauer weil wir an der höchsten Stelle unterm Haus (Südwest) über 1m aufschütten müssen. Diese 13 lfm will unsere Hausbaufirma (die auch die Bodenplatte in der Bau und Leistungsbeschreibung drin hat) uns für knapp 8.000€ (ohne Perimeterdämmung) ausführen. Uns wurde gesagt wenn wir ein gutes Bodengutachten bekommen welches gute Tragfähigkeit bescheinigt kommen wir um die Sockelwand rum und können ab-böschen. Ist das realistisch oder veräppeln die uns und wir können uns eigentlich fest auf diese Mehrkosten einstellen?
Ja das ab-böschen auf 3m ist auch nicht optimal aber 8.000€ die wir bisher nicht auf dem Schirm hatten auch..

Grundriss EG
Abweichend von dem gezeigten Grundriss haben wir im Kopf bisher folgende Änderungen:
- Gäste-WC Tür zum Flur hin öffnen
- Die 2 feststehenden Lichtbänder im Wohnzimmer werden Rollläden erhalten (obwohl man sie nicht von innen reinigen kann)
- Das Arbeitszimmerfenster wird minimal verschoben um universell in der Wandmitte zu sein

Im Hauswirtschaftsraum brauche ich noch Platz für einen Netzwerkschrank. Möchte dafür aber nicht die Wand neben den Hausanschlüßen nutzen, da soll ein Regal hin. Irgendwelche Ideen wie man das besser aufteilen könnte ohne die Wand für die Garderobe zu verkleinern?

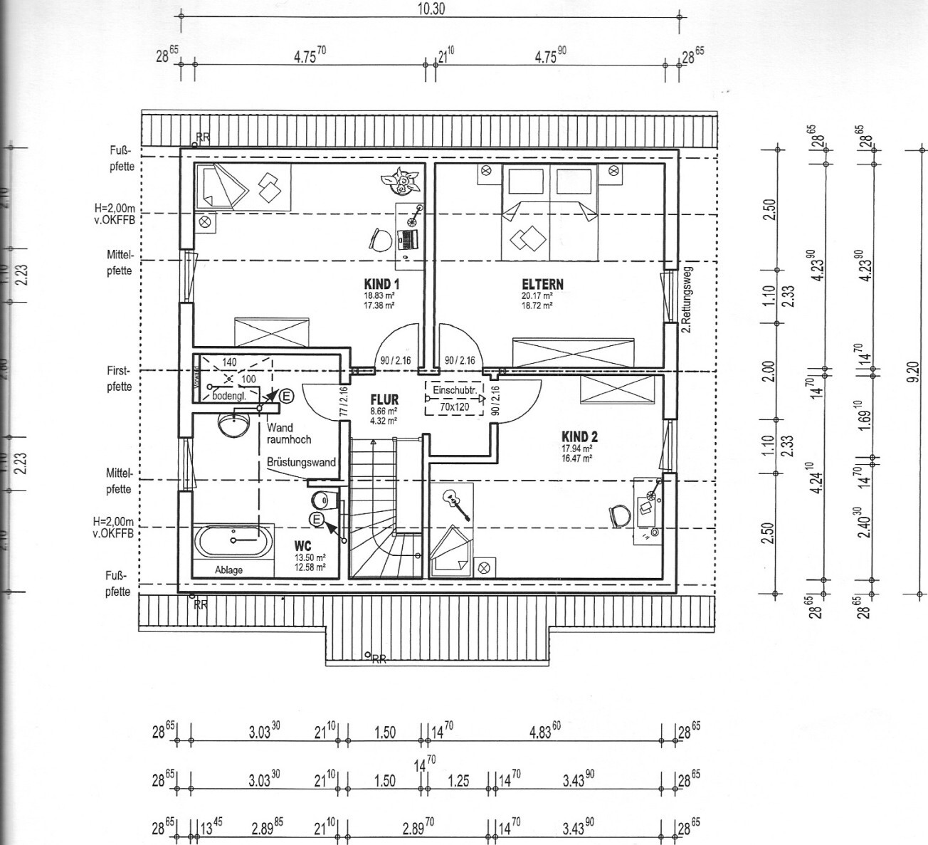
Grundriss DG
Abweichend von dem gezeigten Grundriss haben wir im Kopf bisher folgende Änderungen:
- Die Trennwand zwischen Dusche und Waschbecken wird bis auf einen Stützbalken nicht raumhoch ausgeführt sondern oben bleiben 30cm offen für Dampfabzug und Lichteinfall
- WC wandert ganz links unten hin, die Badewanne rechts daneben. Schamwand dazwischen. geflieste Ablagen rund um die Badewanne


Sonstige Meinungen?
Ich weiss jeder baut für sich (und wird auch einiges an Feedback abprallen lassen), aber vielleicht haben wir grobe Schnitzer drin.
Mehr Augen sehen mehr.

Dankeschön.

Lageplan mit Grundstücksgrenze, Gebäuden, Mauer, Straßenverlauf und Kompass.


Westansicht eines Hauses mit langem Dach, Holzterrasse und Glastüren.


Ansicht von Süden: zweistöckiges Haus mit Satteldach, Fenstern und Geländeprofil.


Nordansicht eines zweigeschossigen Hauses mit Satteldach, Fenstern und Holzterrasse Architektenzeichnung


Ostansicht eines Hauses mit hohem Dach, Eingangstür, Treppenstufen und Fenstern.


Querschnitt eines Hauses mit Dachstuhl, Treppe und Fundament.


Grundriss eines Hauses mit Terrasse, offenem Wohn- und Essbereich, Küche und Diele.


Grundriss eines Obergeschosses mit Eltern- und zwei Kinderzimmern, Flur, Bad und WC.
Y
ypg
23.06.16 09:19
Die Sonne (Südausrichtung) habt ihr nicht mit einbezogen?
Ich persönlich hätte vom Grundsatz her alles gekontert (zumindest den oberen Teil, Wohn, Küche und WC, und zwar an der vertikalen Linie (Plan), sodass man die Haupträume gen Süden hat, die Bäder gen Norden. Das bietet sich ja auch mit dem Hauswirtschaftsraum förmlich an, alles auf eine Seite zu setzen.
Im Winter wird das Haus sehr dunkel sein, so wie es jetzt ist.
D
Doc.Schnaggls
23.06.16 09:28
Hallo,

insgesamt gefällt mir der Grundriss sehr gut.

Ein paar Kleinigkeiten würde ich (für mich) trotzdem noch mal überdenken:

Türen ins WC und in den Hauswirtschaftsraum im EG und ins Bad im DG sind "nur" 77 breit (alle anderen Türen haben ein Breite von 90). Abgesehen von der unterschiedlichen Optik, die im DG durch die Position der Türen wahrscheinlich mehr auffällt als im EG, finde ich es überdenkenswert, ob ich ausgerechnet in die Sanitärräume und in den Hauswirtschaftsraum (das könnte mit einem Wäschekorb in der Hand schon eng werden) die Türen schmaler machen würde - Stichwort hier: Barrierefreiheit. Das muss nicht unbedingt ein Rollstuhl sein - mit Krücken oder einem Rollator ist man über ein paar Zentimeter mehr Platz auch schon dankbar.

Auch der Durchgang zwischen "Kochhalbinsel" und den Küchenschränken dürfte, zumindest optisch, eine Engstelle in der ansonsten doch großzügigen Raumaufteilung darstellen.

Der Antritt der Treppe ins DG liegt unmittelbar im "Schmutzbereich" hinter der Haustür. Da wird es sich kaum vermeiden lassen, dass man Schmutz von außen die Treppe "hochträgt" - barfuß oder in Socken herumlaufen ist in dem Bereich dann auch nicht so schön.

Bei einer Tiefe von 140 cm wird der Spritzbereich der Dusche bis in den Eingangsbereich des Bades reichen - hier könnte dann entweder über eine Duschtür (wahrscheinlich nicht gewünscht) oder über eine grundsätzlich andere Badplanung nachgedacht werden.

Grüße,

Dirk
Y
ypg
23.06.16 09:37
Nebenbei fällt mir auf, dass die Fenster im OG sehr knapp gehalten sind.
Das gilt ebenso für den Esszimmerplatz. Da würde ich an Eurer Stelle mal die reelle Größe einzeichnen.
H
HB-NH2015
23.06.16 10:54
Danke schon mal für das erste Feedback.
Selbst wenn ich bis auf die Türbreite bisher noch keine Änderung für mich selbst daraus mitnehmen, so gibt mir das doch die Gelegenheit Dinge die andere anders machen würden auch noch mal schriftlich zu reflektieren.


@ypg
Ich verstehe Dein Feedback zur Himmelsausrichtung nicht so recht.
Es war für uns keine Option die Terrasse nach Süden auszurichten weil es halt ein schmales Grundstück ist und wir sonst dort eigentlich nur auf das linke Nachbarhaus schauen. Außerdem entsteht dort auch der größte Höhenunterschied an der Südwest-Ecke.

Deshalb ist alles nach hinten nach Westen ausgerichtet. Wobei es auch noch ein wenig Süd-Tendenz hat.
Ins Wohnzimmer kommt durch das erste Lichtband ab Mittag Licht rein und durch die westliche Fensterfront dann ab Nachmittags und die schöne Abendsonne über den Feldern.
Die Küche ist nach Norden raus aber bekommt hoffentlich durch die Esszimmerfenster noch genügend Licht.

Die Terrasse ist eher nach Westen (und nicht umlaufend Süden & Westen) geplant weil im Süden nun mal der große Höhenunterschied (Sockelwand) ist und unsere gesamte Gartenausrichtung eher Richtung den Nachbarn im Norden ausfallen wird. Das sind nämlich die Schwiegereltern und wir werden die Gärten zusammenlegen. Trampolin und Spielhaus steht schon da

Ich finde auch die Fenster im Wohn/Esszimmer und Küche müssten doch ausreichen.
Das sind 2 x 2 m Lichtbänder an der Südwestecke im Wohnzimmer und 2 x 2m doppelflügel bodentiefe Terrassentüren.
Und in der Küche ein 2m doppelflügel Fenster mit hoher Brüstungshöhe (weil dort wohl die Spüle hinkommt, damit man mal was zum Trocknen anlehnen kann).
Aber die Küche ist ja Norden, ich denke das meiste Licht wird eh durch die Terrassentüren einfallen.

Du hättest die Küche nach Süden gepackt, Esszimmer nach Südwest, Wohnzimmer nach Nordwest?

Wenn ich was drehen würde, dann eigentlich nur das Grundstück, aber das geht bekanntlich nicht.

Und wo sollten wir im OG die Fenster noch größer dimensionieren?
Das sind alles bodentiefe Fenster mit unten feststehendem Element.
Dachfenster wollen wir nicht (v.a. Kosten).
Es ist nun mal keine Stadtvilla also jedes Zimmer hat nur eine Wand an die ein Fenster hin kann.

Und wo hat der Essplatz zu wenig Fenster? Da sind 4 Meter bodentiefe Fensterfläche durch die 2 Doppel-Terrassentüren.
An der Nordwand im Esszimmer wollten wir nicht noch mal ein Fenster hinmachen damit man da auch mal eine Vitrine oder so hinstellen kann.

@Doc.Schnaggls
Danke für den Hinweis mit der Tür-Breite.
Wir können das kostenneutral ändern.
Im DG-Bad werden wir dies deshalb wohl tun.
Beim Hauswirtschaftsraum hadere ich noch mit mir selbst. Was die Heizung angeht (die LWZ304 ist ja ein Klopper) meint die Hausbaufirma die passt durch die Tür durch wenn sie mal ausgetauscht werden muss, sonst dürften sie sie nicht verbauen. Auch wenn sie am Stelltag natürlich vom Kran reingehoben wird.
Der Hinweis mit den Wäschekörben ist richtig. Bin nur am grübeln ob ich mir dafür wirklich den Platz für die Garderobe verringern möchte.
Wird aber noch mal mit der besseren Hälfte diskutiert. An die Wäschekörbe haben wir wirklich nicht gedacht.
Danke.

Die Dusche im DG soll eine ziemlich flache Duschtasse bekommen und da kommt auch eine Tür vor.
Ich mag keine offenen Duschen.
Sollte also kein Problem geben mit Spritzwasser.

Dass der Antritt der Treppe im Schmutzbereich liegt ist uns bewusst.
Wir hätten es lieber auch anders aber bei anderen Hausmodellen mit anderen Treppenformen und Positionen hätten wir andere Kompromisse eingehen müssen. Wir haben uns deshalb für den für uns besseren Kompromiss entschieden.

Die Küchenplanung ist prinzipiell vom Zeichner wie gewünscht übernommen wurden aber wir werden natürlich im Detail noch Dinge verändern und darauf achten, dass genügend Platz für den Durchgang dort bleibt.
Wie viel Platz in cm sollte man dafür einplanen? Wir planen aktuell in SweetHome3D mit etwa 1m.
Und wie viel "Rangierbreite" zwischen Herd und der gegenüberliegenden Küchenwand? Wir planen aktuell mit ca. 1,20m
K
kbt09
23.06.16 11:04
Ypg meint, wie ich im übrigen auch, das hauptsächlich das OG gespiegelt werden könnte, d. h. das Bad nach planrechts, Elternzimmer bleibt dann planrechts, Richtung Norden und beide Kinderzimmer lägen nach planlinks, Richtung Süden. Denn das Nordkinderzimmer wird schon nicht so besonders hell werden.

Dazu müßte man dann im EG die Diele mitspiegeln und den Zugang Hauswirtschaftsraum evtl. über die Küche regeln. In der Küche das dann so machen, dass planlinks an der Wand Hochschränke kommen, dann unten die Tür und die Küche z. B. mit einem U dann planrechts im Küchenbereich.

Wollt ihr die Möbel wie angedeutet im Wohnbereich stellen? Ich würde ja versuchen, dort noch etwas Südsonne einzufangen. Die Lichtbänder bringen da nicht so viel und erzeugen bei mir in Wohnräumen immer den Eindruck, ich wäre im Souterrain.
terrassentürenfensterküchehauswirtschaftsraumgrundrisssockelwandwohnzimmerlichtbänderduschetreppe