ᐅ Neubau Einfamilienhaus, Treppen, unsicher Position der Türen - Einfamilienhaus Satteldach
Erstellt am: 09.04.15 08:31
N
Neubau15Hallo,
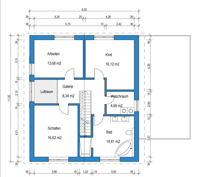
nach fleißigem Mitlesen möchte ich hier unseren aktuellen Grundriss zur Diskussion stellen. Haben ihn gestern (nach dem ersten Architektengespräch im März) bekommen.
Finde es grundsätzlich gut, frage mich aber, ob das mit der Treppe so Sinn macht. Besonders oben im Flur ragt sie sehr weit rein, ohne an einer Seite an einer Wand lang zu laufen. Hat das jemand schon mal live gesehen?
Auch unten bin ich mir nicht sicher, ob das so optimal ist mit dem Eingang zur Küche.
Hatten mit dem ersten Architekten (Haben gewechselt) schon das Problem mit der Treppe, da war sie rechts zwischen Gäste-WC und Hauswirtschaftsraum, aber da wurde der Flur oben riesig und der Luftraum war fast über der Küche.
Die Treppe ist wohl bei vielen der Knackpunkt. Vielleicht kann mir da jemand helfen.
Und würdet ihr noch eine Tür direkt von der Diele ins Wohnzimmer setzen? So würde sich die Wand natürlich als Garderobe anbieten.
Hier ein paar Angaben:
Größe des Grundstücks: 650 qm (ca. 20x32 glaub ich. Lageplan folgt)
Geschossigkeit: 2-geschossig (mit Sondergenehmigung bzw Befreiung vom Bebauungsplan)
Dachform: Satteldach, 30 Grad
Maximale Höhen 9,50 m (bei uns 8,50), Traufhöhe 5,50 m
kein Keller, 2 Geschosse
Anzahl der Personen, Alter: 37/27, 1 Kind geplant
Büro: Familiennutzung und Homeoffice, gleichzeitig Gästezimmer
Schlafgäste pro Jahr: vielleicht 4
offene Architektur
moderne Bauweise
offene Küche, Kochinsel
Anzahl Essplätze: 4 bis mind. 12, große Familie
Carport mit Abstellraum (Nord)
Terrasse (West)
Galerie mit Luftraum (Muss für meinen Mann)
Eingang ist Osten, Garten im Süden und (größer) im Westen
Von wem stammt die Planung:
2. Architekt (nach Do-it-Yourself von uns und dann 1. Architekt)
Was gefällt besonders? offener Bereich, überdachte Terrasse,
Was gefällt nicht? skeptisch bei der Treppe, vor allem oben, Zimmer u Bad oben fast schon zu groß...?
Würde mich über ein paar Anregungen freuen
Lieben Dank!


nach fleißigem Mitlesen möchte ich hier unseren aktuellen Grundriss zur Diskussion stellen. Haben ihn gestern (nach dem ersten Architektengespräch im März) bekommen.
Finde es grundsätzlich gut, frage mich aber, ob das mit der Treppe so Sinn macht. Besonders oben im Flur ragt sie sehr weit rein, ohne an einer Seite an einer Wand lang zu laufen. Hat das jemand schon mal live gesehen?
Auch unten bin ich mir nicht sicher, ob das so optimal ist mit dem Eingang zur Küche.
Hatten mit dem ersten Architekten (Haben gewechselt) schon das Problem mit der Treppe, da war sie rechts zwischen Gäste-WC und Hauswirtschaftsraum, aber da wurde der Flur oben riesig und der Luftraum war fast über der Küche.
Die Treppe ist wohl bei vielen der Knackpunkt. Vielleicht kann mir da jemand helfen.
Und würdet ihr noch eine Tür direkt von der Diele ins Wohnzimmer setzen? So würde sich die Wand natürlich als Garderobe anbieten.
Hier ein paar Angaben:
Größe des Grundstücks: 650 qm (ca. 20x32 glaub ich. Lageplan folgt)
Geschossigkeit: 2-geschossig (mit Sondergenehmigung bzw Befreiung vom Bebauungsplan)
Dachform: Satteldach, 30 Grad
Maximale Höhen 9,50 m (bei uns 8,50), Traufhöhe 5,50 m
kein Keller, 2 Geschosse
Anzahl der Personen, Alter: 37/27, 1 Kind geplant
Büro: Familiennutzung und Homeoffice, gleichzeitig Gästezimmer
Schlafgäste pro Jahr: vielleicht 4
offene Architektur
moderne Bauweise
offene Küche, Kochinsel
Anzahl Essplätze: 4 bis mind. 12, große Familie
Carport mit Abstellraum (Nord)
Terrasse (West)
Galerie mit Luftraum (Muss für meinen Mann)
Eingang ist Osten, Garten im Süden und (größer) im Westen
Von wem stammt die Planung:
2. Architekt (nach Do-it-Yourself von uns und dann 1. Architekt)
Was gefällt besonders? offener Bereich, überdachte Terrasse,
Was gefällt nicht? skeptisch bei der Treppe, vor allem oben, Zimmer u Bad oben fast schon zu groß...?
Würde mich über ein paar Anregungen freuen
Lieben Dank!
D
Doc.Schnaggls09.04.15 09:14Hallo,
grundsätzlich ein schöner Plan. nachdenken würde ich allerdings über folgende Punkte:
- Tür (oder noch besser ein offener Durchgang) von der Diele ins Wohnzimmer wäre für mich unverzichtbar. Ansonsten führt jeder Weg durch die Küche. Das stört, meiner Meinung nach, zumindest denjenigen gewaltig, der dort gerade kocht. Ohne diese Tür (Durchgang) fühlt man sich im Wohnzimmer vielleicht etwas "eingesperrt". Eine Garderobe kann man auch links unter der Treppe problemlos anbringen.
- Die gewählte Treppenform ist sehr chic, benötigt aber sehr viel Fläche - das schlägt sich eben in den beiden großen Dielen im EG und OG nieder. Optisch kann ich mir aber gerade den oberen Flur sehr reizvoll vorstellen - gerade weil die Treppe ein Stück hineinragt.
- Das WC im EG noch mit einer Dusche ausstatten. Das bedeutet, gerade wenn auch Kinder geplant sind, einen deutlichen Komfortgewinn - Stichwort: Morgendlicher Kampf ums Bad... Auch finde ich es persönlich angenehmer, wenn ich mein Bad nicht mit Übernachtungsgästen teilen muss.
Die Größe der Zimmer im OG finde ich nicht übertrieben - gut wirklich brauchen tut ein so großes Bad kein Mensch, aber die spürbare Großzügigkeit trägt doch sehr zum Wohlbefinden bei - unser Bad hat auch runde 16 qm....
Grüße,
Dirk
grundsätzlich ein schöner Plan. nachdenken würde ich allerdings über folgende Punkte:
- Tür (oder noch besser ein offener Durchgang) von der Diele ins Wohnzimmer wäre für mich unverzichtbar. Ansonsten führt jeder Weg durch die Küche. Das stört, meiner Meinung nach, zumindest denjenigen gewaltig, der dort gerade kocht. Ohne diese Tür (Durchgang) fühlt man sich im Wohnzimmer vielleicht etwas "eingesperrt". Eine Garderobe kann man auch links unter der Treppe problemlos anbringen.
- Die gewählte Treppenform ist sehr chic, benötigt aber sehr viel Fläche - das schlägt sich eben in den beiden großen Dielen im EG und OG nieder. Optisch kann ich mir aber gerade den oberen Flur sehr reizvoll vorstellen - gerade weil die Treppe ein Stück hineinragt.
- Das WC im EG noch mit einer Dusche ausstatten. Das bedeutet, gerade wenn auch Kinder geplant sind, einen deutlichen Komfortgewinn - Stichwort: Morgendlicher Kampf ums Bad... Auch finde ich es persönlich angenehmer, wenn ich mein Bad nicht mit Übernachtungsgästen teilen muss.
Die Größe der Zimmer im OG finde ich nicht übertrieben - gut wirklich brauchen tut ein so großes Bad kein Mensch, aber die spürbare Großzügigkeit trägt doch sehr zum Wohlbefinden bei - unser Bad hat auch runde 16 qm....
Grüße,
Dirk
Danke Dirk, das klingt dich schon mal positiv. liegt dann wahrscheinlich auch an der Treppe bzw oben noch viel mehr an dem Geländer, was das für einen Gesamteindruck ergibt.
Wastl: Der Luftraum muss sein (für meinen Mann). Haben schon alle pro und cons besprochen, da rückt er nicht von ab.
Optisch ist es bei den Maßen aber kein Schlauch, sondern sieht wirklich gut aus. Haben in Musterhäusern ähnliches "live" gesehen.
Wastl: Der Luftraum muss sein (für meinen Mann). Haben schon alle pro und cons besprochen, da rückt er nicht von ab.
Optisch ist es bei den Maßen aber kein Schlauch, sondern sieht wirklich gut aus. Haben in Musterhäusern ähnliches "live" gesehen.
D
Doc.Schnaggls09.04.15 14:10Hi,
noch mal kurz zum Thema Luftraum. Ich persönlich halte einen Luftraum für ein sehr schönes gestalterisches Element.
Mögliche Nachteile:
- Fenster nur mit Hilfsmitteln (Leiter, Teleskopstab o.ä zu putzen)
- Schallübertragung ins OG
- "verschenkte" Wohnfläche im DG
Wenn das aber alles berücksichtigt und abgesegnet ist, warum dann auch nicht...
Grüße,
Dirk
noch mal kurz zum Thema Luftraum. Ich persönlich halte einen Luftraum für ein sehr schönes gestalterisches Element.
Mögliche Nachteile:
- Fenster nur mit Hilfsmitteln (Leiter, Teleskopstab o.ä zu putzen)
- Schallübertragung ins OG
- "verschenkte" Wohnfläche im DG
Wenn das aber alles berücksichtigt und abgesegnet ist, warum dann auch nicht...
Grüße,
Dirk
Ich finde den Grundriss ebenfalls sehr schick.
1. Zugang aus Diele ins Wohnzimmer ein Muss meiner Meinung nach.
2. Die Treppe als Betontreppe gestalten und darunter die Garderobe für die Mehrzahl der Jacken und Schuhe.
3. Die Wand zwischen WC und Hauswirtschaftsraum etwas einrücken und dort eine Nische für eine Tagesgarderobe mit einer Bank oder Ähnlichem drunter schaffen. An die längere Wand hinter der Tür zum Hauswirtschaftsraum würde ich dann vielleicht sogar noch eine schmale Kommode oder Einen Schuhschrank stellen.
4. Oben im Bad würde ich eine normale Wanne schön einbauen lassen und keine Eckwanne. An sich würde ich mir über die Aufteilung im obigen Bad noch Gedanken machen. Die Größe finde ich wiederum toll!
1. Zugang aus Diele ins Wohnzimmer ein Muss meiner Meinung nach.
2. Die Treppe als Betontreppe gestalten und darunter die Garderobe für die Mehrzahl der Jacken und Schuhe.
3. Die Wand zwischen WC und Hauswirtschaftsraum etwas einrücken und dort eine Nische für eine Tagesgarderobe mit einer Bank oder Ähnlichem drunter schaffen. An die längere Wand hinter der Tür zum Hauswirtschaftsraum würde ich dann vielleicht sogar noch eine schmale Kommode oder Einen Schuhschrank stellen.
4. Oben im Bad würde ich eine normale Wanne schön einbauen lassen und keine Eckwanne. An sich würde ich mir über die Aufteilung im obigen Bad noch Gedanken machen. Die Größe finde ich wiederum toll!
Ähnliche Themen