ᐅ Entwurf EFH, 2 Vollgeschosse, Satteldach, kein Keller, Doppelgarage
Erstellt am: 28.03.25 14:34
S
schrauberlouis28.03.25 14:34Hallo liebe Forum-Mitglieder,
wir hatten vor über 1,5 Jahren das Glück, ein 500m² Grundstück in unserem sehr begehrten Heimatort zu ergattern und möchten uns nun von unserem Reihenhaus zu einem tollen Einfamilienhaus verbessern. Damit die bestmögliche Steigerung gelingt, hoffe ich auf eure Erfahrung und Verbesserungsvorschläge.
Seit Monaten lese ich hier begeistert mit und konnte schon vieles lernen. Die bereits verstrichene Zeit haben wir mit einer Art „Selbstfindung“ verbracht und z.B. auch lange gebraucht, um sich mit dem Gedanken „ohne Keller“ wegen Kosten/Nutzen anzufreunden. (Leider ist das in der Umgebung und im Bekanntenkreis immer noch ein Vorurteil)
Wir waren bereits bei 2 GU und haben dort relativ enttäuschende Entwürfe erhalten, da viel Information und Wünsche untergegangen sind.
Da es auch sehr schwierig ist, einen für uns passenden Architekten zu finden, habe ich das letzte Jahr nebenher unzählige Fertighaus-Entwürfe, Entwürfe von hier usw. geprüft & abgewandelt oder eigene gezeichnet. Natürlich gehen wir dann zu einem Planer oder Architekten. Die Vorgehensweise ist bekanntermaßen nicht die richtige, aber ich möchte nicht weiter Zeit mit unzähligen Gesprächen verschwenden in denen dann doch wieder die wesentlichen Dinge untergehen.
Hier und in anderen Foren werden DIY-Entwürfe oft in der Luft zerrissen 🙂 ich hoffe, dass ich verschont bleibe und bin gespannt was ihr davon haltet. Vielen Dank euch allen vorab!
Bebauungsplan/Einschränkungen
Größe des Grundstücks 500m², Firstrichtung von Ost nach West vorgegeben
Hang nein, sehr eben
Grundflächenzahl 0,4(darf um 50% durch Anrechnung von Garagen usw. überschritten werden, nimmt die Gemeinde aber wohl nicht so genau)
Randbebauung Grenzgarage
Anzahl Stellplatz 1,5 je Wohneinheit
Geschossigkeit I+D oder II
Dachform Sattel-, Walm-, Zelt- und versetztes Pultdach möglich
Ausrichtung Süd
Maximale Höhen/Begrenzungen
I+D:
Traufhöhe ab Fertigfußboden EG max. 4,3m
Dachneigung 35 - 42 Grad
II:
Traufhöhe min. 5,25m/max. 5,75m)
Dachneigung 20 - 35 Grad
Garagen:
Satteldach 18 - 25 Grad oder wie Hauptgebäude
Pultdach 8 - 18 Grad
Flachdach Begrünung
Anforderungen der Bauherren
Stilrichtung, Dachform, Gebäudetyp Einfamilienhaus, Satteldach
Keller, Geschosse
kein Keller da Grundwasser sehr hoch, ebenes Grundstück und Kosten/Nutzen, 2 Geschosse + Stauraum DG (evtl. über Garage)
Anzahl der Personen 4, Alter 34, 32, 2, 0
Raumbedarf im EG, OG gesamt ca. 170
Büro: Homeoffice (evtl. Schlafzimmer im Alter oder bei gesundheitlichen Problemen)
Schlafgäste pro Jahr gegen 0., trotzdem 3. Kinder-/ Gästezimmer oben als Ausweichzimmer bzw. aufgrund des fehlenden Kellers für Hobby der Kinder o.ä.
offene oder geschlossene Architektur Wohnzimmer als Rückzugsort abtrennbar, Kochen+ Essen offen
konservativ oder moderne Bauweise beides
offene Küche, Kochinsel Ja
Anzahl Essplätze mind. 6, erweiterbar für Geburtstage etc.
Kamin Nein
Musik/Stereowand Nein
Balkon, Dachterrasse Nein
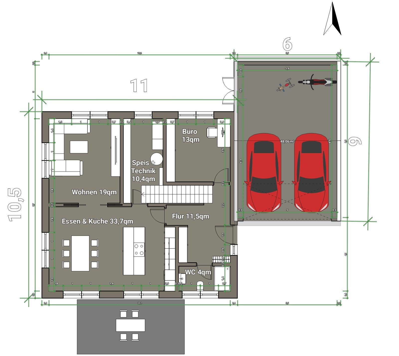
Garage Doppelgarage mit 9m Länge (max. Grenzbebauung) für 2 Autos + Motorrad, Werkstatt für Selberschrauber bzw. Holzbearbeitung, Fahrräder usw. (aktuell viel im Elternhaus oder anderweitig)
Nutzgarten, Treibhaus Nein
weitere Wünsche/Besonderheiten/Tagesablauf, gern auch Begründungen, warum dieses oder das nicht sein soll
- da Satteldächer auf einer Garage grenzständig in Bayern erlaubt sind, hatte ich auch den Gedanken auf dem Garagenspitzboden den Technikraum + Wäschezimmer unterzubringen. (zugänglich über das OG, jedoch schwierig umzusetzen und auch 35 Grad Dach teilweise zu flach). Stattdessen würden wir nun mit einem „Kaltdach“ mit Zwischenboden (Zugang z.B. mit Lastenaufzug aus der Garage aus) planen, um etwas Kellerersatz zu schaffen z.B. für Winterreifen uvm.
- Treppe vom Wohnraum abgetrennt, da geräuschempfindliche Kinder
- funktionale und relativ große Garderobe (hier nur 2m Schrank, jedoch sehen wir das Büro als Backup-Garderobe für Saison-Jacken etc.
- gerade oder Podesttreppe
- Dusche im EG wünschenswert, kein muss. Große Dusche im OG ohne Glaswand
- Küche und Essen offen, Wohnraum abtrennbar
- Platz im Wohnzimmer für U-Wohnlandschaft + Spielecke
- im EG ein Büro das auch als Multifunktionszimmer für z.B. Homeoffice, weitere Garderobe, Gäste oder Alters-Schlafzimmer
- im OG 2 Kinderzimmer und drittes (gerne auch kleineres) Kinderzimmer was vorerst und evtl. dauerhaft für Wäsche, Hobby, zusätzliche Kinder-Spielfläche, Ausweich-Schlafzimmer oder mal als zweites Büro für Homeoffice dienen soll (nach Elternzeit der Frau).
- möglichst viel Südgarten zur ruhigen Anliegerstraße dadurch Nachteil „lange Einfahrt“, das sehen wir aber als praktische Fläche zum Spielen, parken usw.
Hausentwurf
Von wem stammt die Planung:
- Eigenentwurf (Mauerstärken außen 40cm und innen 20cm als grobe Annahme)
Was gefällt besonders? Warum?
- alle Wünsche unterbekommen
- große Garage mit Lagerraum oben
- offene Küche mit Insel und mit direkten Zugang zur Hauptterrasse.
- angrenzende Vorratskammer mit über 4m Regal
Was gefällt nicht? Warum?
- Lage vom Bad im OG ist über Büro EG --> Entwässerung schwierig & Schallthema falls es mal ein Schlafzimmer wäre.
- Küche relativ klein, aber durch die lange Regalwand im Technikraum als Backup für Fritteuse, Vorrat usw. als Kompromiss akzeptabel
- Bad für T-Lösung mit 3,6mx3,6m fast zu knapp
- Technik nur an einer 3,6m langen Wand und mitten im Haus (lange Zuleitungen bzgl. Erschließung) --> fragwürdig ob das geht
- Eingang liegt ohne Podest gleich am Fahrweg, ist aber aufgrund nur 17m breite Baufenster und dringender Wunsch nach Doppelgarage unvermeidbar
- Generell hätten wir gerne die Möglichkeit das OG z.B. im Alter als separate Wohneinheit ab zu trennen, was hier nicht möglich ist. Man müsste dann mit einer Außentreppe arbeiten.
- Hausgröße & Wohnfläche von ca. 180m² wirkt auf Anhieb viel, wir tun uns aber schwer auf den gewohnten Keller zu verzichten und haben dadurch Reserve eingeplant.
Preisschätzung laut Architekt/Planer: Eigenschätzung ca. 650 - 700t€
Persönliches Preislimit fürs Haus, inkl. Ausstattung: wir haben uns kein fixes Preislimit gesetzt, sondern möchten das optimale zu uns passende und effiziente Haus bauen (so teuer wie nötig und so günstig wie möglich...). Grundstück (Bodenrichtwert 440€/m²) ist bezahlt, wohnen in einem abbezahlten Reihenhaus mit 136m² und haben noch etwas Eigenkapital bereit.
favorisierte Heiztechnik: Wärmepumpe (Luft oder Ringgraben)
Wenn Ihr verzichten müsst, auf welche Details/Ausbauten
-könnt Ihr verzichten: zur Not Speisekammer, großes Büro im EG, drittes Zimmer im OG
-könnt Ihr nicht verzichten: alles andere









wir hatten vor über 1,5 Jahren das Glück, ein 500m² Grundstück in unserem sehr begehrten Heimatort zu ergattern und möchten uns nun von unserem Reihenhaus zu einem tollen Einfamilienhaus verbessern. Damit die bestmögliche Steigerung gelingt, hoffe ich auf eure Erfahrung und Verbesserungsvorschläge.
Seit Monaten lese ich hier begeistert mit und konnte schon vieles lernen. Die bereits verstrichene Zeit haben wir mit einer Art „Selbstfindung“ verbracht und z.B. auch lange gebraucht, um sich mit dem Gedanken „ohne Keller“ wegen Kosten/Nutzen anzufreunden. (Leider ist das in der Umgebung und im Bekanntenkreis immer noch ein Vorurteil)
Wir waren bereits bei 2 GU und haben dort relativ enttäuschende Entwürfe erhalten, da viel Information und Wünsche untergegangen sind.
Da es auch sehr schwierig ist, einen für uns passenden Architekten zu finden, habe ich das letzte Jahr nebenher unzählige Fertighaus-Entwürfe, Entwürfe von hier usw. geprüft & abgewandelt oder eigene gezeichnet. Natürlich gehen wir dann zu einem Planer oder Architekten. Die Vorgehensweise ist bekanntermaßen nicht die richtige, aber ich möchte nicht weiter Zeit mit unzähligen Gesprächen verschwenden in denen dann doch wieder die wesentlichen Dinge untergehen.
Hier und in anderen Foren werden DIY-Entwürfe oft in der Luft zerrissen 🙂 ich hoffe, dass ich verschont bleibe und bin gespannt was ihr davon haltet. Vielen Dank euch allen vorab!
Bebauungsplan/Einschränkungen
Größe des Grundstücks 500m², Firstrichtung von Ost nach West vorgegeben
Hang nein, sehr eben
Grundflächenzahl 0,4(darf um 50% durch Anrechnung von Garagen usw. überschritten werden, nimmt die Gemeinde aber wohl nicht so genau)
Randbebauung Grenzgarage
Anzahl Stellplatz 1,5 je Wohneinheit
Geschossigkeit I+D oder II
Dachform Sattel-, Walm-, Zelt- und versetztes Pultdach möglich
Ausrichtung Süd
Maximale Höhen/Begrenzungen
I+D:
Traufhöhe ab Fertigfußboden EG max. 4,3m
Dachneigung 35 - 42 Grad
II:
Traufhöhe min. 5,25m/max. 5,75m)
Dachneigung 20 - 35 Grad
Garagen:
Satteldach 18 - 25 Grad oder wie Hauptgebäude
Pultdach 8 - 18 Grad
Flachdach Begrünung
Anforderungen der Bauherren
Stilrichtung, Dachform, Gebäudetyp Einfamilienhaus, Satteldach
Keller, Geschosse
kein Keller da Grundwasser sehr hoch, ebenes Grundstück und Kosten/Nutzen, 2 Geschosse + Stauraum DG (evtl. über Garage)
Anzahl der Personen 4, Alter 34, 32, 2, 0
Raumbedarf im EG, OG gesamt ca. 170
Büro: Homeoffice (evtl. Schlafzimmer im Alter oder bei gesundheitlichen Problemen)
Schlafgäste pro Jahr gegen 0., trotzdem 3. Kinder-/ Gästezimmer oben als Ausweichzimmer bzw. aufgrund des fehlenden Kellers für Hobby der Kinder o.ä.
offene oder geschlossene Architektur Wohnzimmer als Rückzugsort abtrennbar, Kochen+ Essen offen
konservativ oder moderne Bauweise beides
offene Küche, Kochinsel Ja
Anzahl Essplätze mind. 6, erweiterbar für Geburtstage etc.
Kamin Nein
Musik/Stereowand Nein
Balkon, Dachterrasse Nein
Garage Doppelgarage mit 9m Länge (max. Grenzbebauung) für 2 Autos + Motorrad, Werkstatt für Selberschrauber bzw. Holzbearbeitung, Fahrräder usw. (aktuell viel im Elternhaus oder anderweitig)
Nutzgarten, Treibhaus Nein
weitere Wünsche/Besonderheiten/Tagesablauf, gern auch Begründungen, warum dieses oder das nicht sein soll
- da Satteldächer auf einer Garage grenzständig in Bayern erlaubt sind, hatte ich auch den Gedanken auf dem Garagenspitzboden den Technikraum + Wäschezimmer unterzubringen. (zugänglich über das OG, jedoch schwierig umzusetzen und auch 35 Grad Dach teilweise zu flach). Stattdessen würden wir nun mit einem „Kaltdach“ mit Zwischenboden (Zugang z.B. mit Lastenaufzug aus der Garage aus) planen, um etwas Kellerersatz zu schaffen z.B. für Winterreifen uvm.
- Treppe vom Wohnraum abgetrennt, da geräuschempfindliche Kinder
- funktionale und relativ große Garderobe (hier nur 2m Schrank, jedoch sehen wir das Büro als Backup-Garderobe für Saison-Jacken etc.
- gerade oder Podesttreppe
- Dusche im EG wünschenswert, kein muss. Große Dusche im OG ohne Glaswand
- Küche und Essen offen, Wohnraum abtrennbar
- Platz im Wohnzimmer für U-Wohnlandschaft + Spielecke
- im EG ein Büro das auch als Multifunktionszimmer für z.B. Homeoffice, weitere Garderobe, Gäste oder Alters-Schlafzimmer
- im OG 2 Kinderzimmer und drittes (gerne auch kleineres) Kinderzimmer was vorerst und evtl. dauerhaft für Wäsche, Hobby, zusätzliche Kinder-Spielfläche, Ausweich-Schlafzimmer oder mal als zweites Büro für Homeoffice dienen soll (nach Elternzeit der Frau).
- möglichst viel Südgarten zur ruhigen Anliegerstraße dadurch Nachteil „lange Einfahrt“, das sehen wir aber als praktische Fläche zum Spielen, parken usw.
Hausentwurf
Von wem stammt die Planung:
- Eigenentwurf (Mauerstärken außen 40cm und innen 20cm als grobe Annahme)
Was gefällt besonders? Warum?
- alle Wünsche unterbekommen
- große Garage mit Lagerraum oben
- offene Küche mit Insel und mit direkten Zugang zur Hauptterrasse.
- angrenzende Vorratskammer mit über 4m Regal
Was gefällt nicht? Warum?
- Lage vom Bad im OG ist über Büro EG --> Entwässerung schwierig & Schallthema falls es mal ein Schlafzimmer wäre.
- Küche relativ klein, aber durch die lange Regalwand im Technikraum als Backup für Fritteuse, Vorrat usw. als Kompromiss akzeptabel
- Bad für T-Lösung mit 3,6mx3,6m fast zu knapp
- Technik nur an einer 3,6m langen Wand und mitten im Haus (lange Zuleitungen bzgl. Erschließung) --> fragwürdig ob das geht
- Eingang liegt ohne Podest gleich am Fahrweg, ist aber aufgrund nur 17m breite Baufenster und dringender Wunsch nach Doppelgarage unvermeidbar
- Generell hätten wir gerne die Möglichkeit das OG z.B. im Alter als separate Wohneinheit ab zu trennen, was hier nicht möglich ist. Man müsste dann mit einer Außentreppe arbeiten.
- Hausgröße & Wohnfläche von ca. 180m² wirkt auf Anhieb viel, wir tun uns aber schwer auf den gewohnten Keller zu verzichten und haben dadurch Reserve eingeplant.
Preisschätzung laut Architekt/Planer: Eigenschätzung ca. 650 - 700t€
Persönliches Preislimit fürs Haus, inkl. Ausstattung: wir haben uns kein fixes Preislimit gesetzt, sondern möchten das optimale zu uns passende und effiziente Haus bauen (so teuer wie nötig und so günstig wie möglich...). Grundstück (Bodenrichtwert 440€/m²) ist bezahlt, wohnen in einem abbezahlten Reihenhaus mit 136m² und haben noch etwas Eigenkapital bereit.
favorisierte Heiztechnik: Wärmepumpe (Luft oder Ringgraben)
Wenn Ihr verzichten müsst, auf welche Details/Ausbauten
-könnt Ihr verzichten: zur Not Speisekammer, großes Büro im EG, drittes Zimmer im OG
-könnt Ihr nicht verzichten: alles andere
N
nordanney28.03.25 15:07schrauberlouis schrieb:
- Hausgröße & Wohnfläche von ca. 180m² wirkt auf Anhieb viel, wir tun uns aber schwer auf den gewohnten Keller zu verzichten und haben dadurch Reserve eingeplant.Bin kein Grundrissexperte. Aber wo sind die Reserven bzw. expliziten Keller-/Abstellräume, die Du eingeplant hast? Ich sehe einfach nur viele Zimmer (Hobby-Zimmer für die Kinder wird Deiner Meinung nach wie genau genutzt werden?) und viel Fläche.Ausweichzimmer und Gästezimmer kann das Büro sein. Insgesamt kann man - wenn man möchte - eine Menge Fläche einsparen. Ihr könnt auf dem Dachboden Stauraum ohne Ende generieren; zwar nicht extrem bequem, aber auch in den Keller rennt man nicht dauernd.
Erdgeschoss ohne Büro, Erdgeschoss kleiner, Büro ins OG, Kinderzimmer kleiner. Kein Verlust an Lebensqualität und viel Geld gespart.
Kannst es Dir leisten, das ist nicht das Thema.
Auf die Treppe zum Spitzboden gelangt man durch das Bad oder Kind 2?
Zum Architekten solltet Ihr ohne Eigenentwurf gehen, auch wenn dieser überdurchschnittlich wohlgeraten ist. Besonders gut gefällt mir der Ansatz, mit Wandstärken pauschal 40/20 und auch nur dezimeter"genauen" Raummaßen zu planen. Mit 34/32 würde ich an eine Altersumnutzung keine Gedanken verschwenden, sondern vom ruhestandsnahen Neubauen ausgehen. Der frühe und unberatene Gang zum GU war natürlich ein Fehler.
https://www.instagram.com/11antgmxde/
https://www.linkedin.com/company/bauen-jetzt/
Zum Architekten solltet Ihr ohne Eigenentwurf gehen, auch wenn dieser überdurchschnittlich wohlgeraten ist. Besonders gut gefällt mir der Ansatz, mit Wandstärken pauschal 40/20 und auch nur dezimeter"genauen" Raummaßen zu planen. Mit 34/32 würde ich an eine Altersumnutzung keine Gedanken verschwenden, sondern vom ruhestandsnahen Neubauen ausgehen. Der frühe und unberatene Gang zum GU war natürlich ein Fehler.
https://www.instagram.com/11antgmxde/
https://www.linkedin.com/company/bauen-jetzt/
M
MachsSelbst28.03.25 17:09Mein Alltime-Favorite... das dritte Kind muss sich ziemlich ungewollt vorkommen, wenn es auf mickrigen 11,5m² hausen darf, während die Geschwister 16m² haben.
Die angedeuteten Möbel zeigen es ja schon, Bett und Schrank passen rein, ein Schreibtisch nicht.
Oder soll das dritte Kind nicht zur Schule gehen, sondern ohnehin zur Nachtwache geschickt werden?
Die angedeuteten Möbel zeigen es ja schon, Bett und Schrank passen rein, ein Schreibtisch nicht.
Oder soll das dritte Kind nicht zur Schule gehen, sondern ohnehin zur Nachtwache geschickt werden?
N
nordanney28.03.25 17:24MachsSelbst schrieb:
Mein Alltime-Favorite... das dritte Kind muss sich ziemlich ungewollt vorkommen, wenn es auf mickrigen 11,5m² hausen darf, während die Geschwister 16m² haben.
Die angedeuteten Möbel zeigen es ja schon, Bett und Schrank passen rein, ein Schreibtisch nicht.
Oder soll das dritte Kind nicht zur Schule gehen, sondern ohnehin zur Nachtwache geschickt werden?Welches dritte Kind? Der TE hat nur zwei und es soll auch kein drittes dazu kommen.Das ist ein Zimmer für...
Text immer komplett lesen. Zwinker.
R
roteweste28.03.25 17:47Mir gefällt der Entwurf sehr gut. Du hast viele durchdachte Details, wie der Durchgang von der Technik zur Garage.
Was mir konzeptionell noch nicht so ganz in den Kopf geht:
Ein paar Punkte, die mir auffallen:
- Das Elternschlafzimmer ist mit 19m² schon echt groß. Möglicherweise ist euch der Platz an anderer Stelle oben wichtiger. (Bad?)
- Der Flur im OG ist schön kompakt. Ich sehe bei euch aber kein Fenster. Ggf. kannst du im West über der Garage noch eine Fenster ergänzen.
- Ich persönlich würde mir die Abtrennung des Wohnzimmers noch einmal überlegen. Gerade Kinder diffundieren beim Spielen gerne von Raum zu Raum. Einen Schallschutz nach Oben habt ihr ja schon über die Tür im Flur. Außerdem macht es den schönen Allraum auch unnötig klein.
Was mir konzeptionell noch nicht so ganz in den Kopf geht:
schrauberlouis schrieb:Bei dem Punkt würde ich mich an eurer Stelle schon genau festlegen, ob ihr das so wollt, oder die zusätzliche Wohnfläche zusätzlich anderweitig nutzen wollt bzw. entsprechend kleiner bauen wollt. 180m² für ein Einfamilienhaus mit 2 Kinderzimmern ist dann doch schon ein Luxus. Ich halte die Kalkulation aber für durchaus machbar mit mittleren Ansprüchen (bei uns sieht es preislich ganz ähnlich aus).
-könnt Ihr verzichten: zur Not Speisekammer, großes Büro im EG, drittes Zimmer im OG
Ein paar Punkte, die mir auffallen:
- Das Elternschlafzimmer ist mit 19m² schon echt groß. Möglicherweise ist euch der Platz an anderer Stelle oben wichtiger. (Bad?)
- Der Flur im OG ist schön kompakt. Ich sehe bei euch aber kein Fenster. Ggf. kannst du im West über der Garage noch eine Fenster ergänzen.
- Ich persönlich würde mir die Abtrennung des Wohnzimmers noch einmal überlegen. Gerade Kinder diffundieren beim Spielen gerne von Raum zu Raum. Einen Schallschutz nach Oben habt ihr ja schon über die Tür im Flur. Außerdem macht es den schönen Allraum auch unnötig klein.
Ähnliche Themen