Hallo zusammen,
bei uns wird es (endlich) langsam ernst mit dem Hausbau.
Vorausgesetzt der Verkäufer des Grundstücks springt nicht kurzfristig ab, haben wir im März den Termin beim Notar, um den Kaufvertrag aufzusetzen.
Vor ein paar Wochen haben wir das Angebot eines GUs angenommen uns zusammen besagtes Grundstück und Bebauungsplan gemeinsam anzuschauen, um zu sehen ob unser Hauswunsch dort umsetzbar wäre.
Ein Bauzeichner hat sich alles mit uns angeschaut, sich in einem 2-Stunden-Gespräch unsere Wünsche und Vorstellungen angehört und notiert.
Letzte Woche haben wir uns dann im Büro getroffen um den Erstentwurf in Augenschein zu nehmen. Seitdem haben wir uns vorgenommen bei weiteren Gesprächen mit Planern (wir möchten uns noch mit 2-3 weiteren Unternehmen zusammensetzen um das Passende zu finden) eine Liste mitzugeben auf der unsere Wünsche und Vorstellungen notiert sind. Denn leider wurde nicht alles, was uns wirklich wichtig war beachtet und auf Dinge, die für uns nur „nice-to-have“ sind, zu viel Augenmerk gelegt. >.<
Der Planer hat uns empfohlen in Ruhe seinen Entwurf zu Hause durchzudenken, schauen, was uns gut gefällt und was gar nicht geht.
Bevor wir ihm unser Feedback rückmelden, wollte ich auch gerne einmal eure Meinung zu diesem Entwurf erfahren. Vielleicht fällt euch Bauerfahrenen noch etwas ins Auge, was uns gar nicht so bewusst ist oder ihr nehmt unsere Gedanken dazu auseinander, was ja auch durchaus hilfreich sein kann.
Hier folgt erst einmal der ausgefüllte Fragebogen:
Bebauungsplan/Einschränkungen
Größe des Grundstücks: 743m2, 20m x 37m
Hang: ja, nach hinten abfallend, der Bauzeichner schätzt den Höhenunterschied auf ca. 3m (wenn uns das Grundstück gehört, wurde uns empfohlen das Bodengutachten mit Nivellment vorzuziehen, um eine bestmögliche Hausplanung ermöglichen zu können. Werden wir dann auch machen)
Grundflächenzahl: 0,3
Geschossflächenzahl: 0,6
Baufenster, Baulinie und -grenze: s.Anhang
Randbebauung: 3m Abstand zu den Nachbarn, 7m zur Straße
Anzahl Stellplatz: nicht vorgegeben; 2-3 erwünscht
Geschossigkeit: 2 Vollgeschosse erlaubt
Dachform: nur geneigte Dachformen
Stilrichtung: offene Bauweise
Maximale Höhen/Begrenzungen: bei hangabwärtiger Bebauung Traufhöhe Max. 4,50m über Fertigfußboden
weitere Vorgaben: Zisterne ist vorgeschrieben mit 50l Speichervolumen pro m2 versiegelter Fläche
Anforderungen der Bauherren
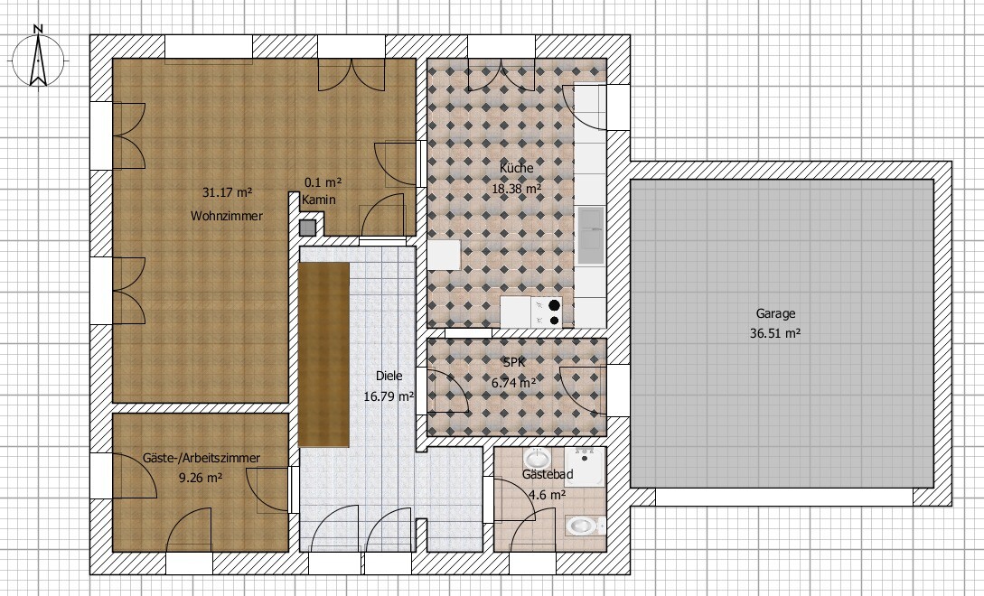
Stilrichtung, Dachform, Gebäudetyp: Massivhaus, rechteckige Hausform, keine Erker etc, Satteldach
Keller, Geschosse: 1,5 geschossig + Keller, evtl. mit kleiner Einliegerwohnung/Apartment im KG; EG und OG insgesamt ca. 150m2
Anzahl der Personen, Alter: 2 Erwachsene (31 + 31), 1-2 Kinder geplant
Raumbedarf im EG, OG
Büro: Familiennutzung oder Homeoffice?: beides; soll im EG integriert sein (als Schlafmöglichkeit, falls krankheitsbedingt Treppengehen nicht möglich sein sollte. Bin da berufsbedingt als Ergotherapeutin etwas „vorbelastet“)
Schlafgäste pro Jahr: 1-2
offene oder geschlossene Architektur: eher geschlossen
konservativ oder moderne Bauweise: eher konservativ?
offene Küche, Kochinsel: nein, geschlossen, wenn möglich Wohnküche
Anzahl Essplätze: im Alltag 2-4
Kamin: Kaminschacht gerne mit angelegt,
Musik/Stereowand: nein
Balkon, Dachterrasse: nein
Garage, Carport: wenn möglich Doppelgarage, ansonsten normale Garage, mein Freund hätte gerne eine Tür von der Garage ins Haus
Nutzgarten, Treibhaus: vielleicht kleiner Teil Nutzgarten für Kräuter etc
weitere Wünsche/Besonderheiten/Tagesablauf, gern auch Begründungen, warum dieses oder das nicht sein soll:
Dusch/WC im EG (ähnlicher Grund wie Gästezimmer, außerdem 2. Dusche praktisch, wenn Kinder da sind);
schön wäre eine kleine Speisekammer, oder Abstellraum in der Nähe der Küche;
"Ankleide" (eher begehbarer Kleiderschrank) im Elternschlafzimmer nice-to-have aber kein muss;
aufgrund der Hanglage war unsere Überlegung ein kleines Apartment/Einliegerwohnung in den Keller zu planen (z.B. falls die alleinlebende Schwiegermama gesundheitlich nicht im alten Haus bleiben kann; raus will sie da eigentlich nicht; oder später fürs Kind), und ganz wichtig eigener Zugang von außen am besten ohne Treppen gehen zu müssen (falls Rolli-/Rollator; und falls vermietet werden sollte, damit man sich das Treppenhaus nicht teilen muss)
Hausentwurf
Von wem stammt die Planung:
-Planer eines Bauunternehmens
Was gefällt besonders? Warum?: sehr gut gefällt uns die Aufteilung im OG, auch dass die Kinderzimmer gleich groß sind; im EG gefällt uns die Lage von Küche und Gästezimmer besser als in unserem selbst gezeichneten Entwurf (hänge ich auch noch an)
Was gefällt nicht? Warum?
KG: dass wir quasi keinen Keller mehr haben, da die Einliegerwohnung die ganze Etage einnimmt (abgesehen vom Technikraum); im Wohnzimmer der Einliegerwohnung kaum Möglichkeiten Möbel zu stellen, durch die vielen Türen; Badewanne muss raus, Dusche wäre so schwer begehbar;
EG: der große Hauswirtschaftsraum (leider notwendig, da kein Kellerraum vorhanden, und eigentlich eine gute Lösung für die Tür ins Haus), Wohnküche wäre uns lieber, lässt sich bei dem Grundriss aber wahrscheinlich nicht realisieren?;
Für uns ist allerdings das allergrößte Problem das Treppenhaus. Zum einen bin ich mir nicht sicher, ob die Garderobe so später für eine Familie mit Kindern funktioniert. Zum anderen ist für mich die Vorstellung furchtbar, dass ich mir das Treppenhaus evtl mit fremden Menschen teilen muss (z.B. morgens verschlafen die Treppe runter ins EG und mir begegnet fremder Besuch vom Bewohner der Einliegerwohnung? für mich keine Option!)
Preisschätzung lt Architekt/Planer: 391.000€ (KFW 55, Luft-Wasser-Wärmepumpe, exkl. Bodenarbeiten -geschätzt laut Planer auf 18.000€ -, Malerarbeiten, Garage)
Persönliches Preislimit fürs Haus: ca. 300.00€
favorisierte Heiztechnik: Erdwärme (in unserem Baugebiet jeweils Einzelfallentscheidung) ansonsten Luft-Wasser-Wärmepumpe
Wenn Ihr verzichten müsst, auf welche Details/Ausbauten
-könnt Ihr verzichten: auf einige Quadratmeter könnten wir vielleicht verzichten, v.a. das OG erscheint uns recht großzügig; Tür von Garage ins Haus kein muss, genauso wie die Speisekammer; Kamin; Einliegerwohnung
-könnt Ihr nicht verzichten: geschlossene Küche, sehr ungerne auf das Arbeists-/Gästezimmer im EG, eigener Zugang Einliegerwohnung
Warum ist der Entwurf so geworden, wie er jetzt ist?
Entwurf vom Bauzeichner
Entsprechende/Welche Wünsche wurden vom Architekten umgesetzt: Tür von Garage ins Haus, geschlossene Küche, Ankleide, Einliegerwohnung im KG (wenn auch anders als gedacht)
Was ist die wichtigste/grundlegende Frage zum Grundriss in 130 Zeichen zusammengefasst?
Seht ihr noch andere kritische Stellen? Sehen wir Probleme die keine sind?
Ich fürchte wir wünschen uns zu viel für unser Budget, wo seht ihr Einsparpotenzial?
Ich hoffe ich habe keine wichtigen Punkte vergessen, ansonsten gerne nachfragen.
Vielen Dank schon einmal für das Durchlesen dieses langen Beitrags. Ich freue mich über konstruktive Kritik und Anregungen jeder Art
PS: Der Hang ist übrigens nicht so krass, wie es auf den Außenansichten aussieht, der Bauzeichner konnte es mit seinem Programm nicht anders darstellen.










bei uns wird es (endlich) langsam ernst mit dem Hausbau.
Vorausgesetzt der Verkäufer des Grundstücks springt nicht kurzfristig ab, haben wir im März den Termin beim Notar, um den Kaufvertrag aufzusetzen.
Vor ein paar Wochen haben wir das Angebot eines GUs angenommen uns zusammen besagtes Grundstück und Bebauungsplan gemeinsam anzuschauen, um zu sehen ob unser Hauswunsch dort umsetzbar wäre.
Ein Bauzeichner hat sich alles mit uns angeschaut, sich in einem 2-Stunden-Gespräch unsere Wünsche und Vorstellungen angehört und notiert.
Letzte Woche haben wir uns dann im Büro getroffen um den Erstentwurf in Augenschein zu nehmen. Seitdem haben wir uns vorgenommen bei weiteren Gesprächen mit Planern (wir möchten uns noch mit 2-3 weiteren Unternehmen zusammensetzen um das Passende zu finden) eine Liste mitzugeben auf der unsere Wünsche und Vorstellungen notiert sind. Denn leider wurde nicht alles, was uns wirklich wichtig war beachtet und auf Dinge, die für uns nur „nice-to-have“ sind, zu viel Augenmerk gelegt. >.<
Der Planer hat uns empfohlen in Ruhe seinen Entwurf zu Hause durchzudenken, schauen, was uns gut gefällt und was gar nicht geht.
Bevor wir ihm unser Feedback rückmelden, wollte ich auch gerne einmal eure Meinung zu diesem Entwurf erfahren. Vielleicht fällt euch Bauerfahrenen noch etwas ins Auge, was uns gar nicht so bewusst ist oder ihr nehmt unsere Gedanken dazu auseinander, was ja auch durchaus hilfreich sein kann.
Hier folgt erst einmal der ausgefüllte Fragebogen:
Bebauungsplan/Einschränkungen
Größe des Grundstücks: 743m2, 20m x 37m
Hang: ja, nach hinten abfallend, der Bauzeichner schätzt den Höhenunterschied auf ca. 3m (wenn uns das Grundstück gehört, wurde uns empfohlen das Bodengutachten mit Nivellment vorzuziehen, um eine bestmögliche Hausplanung ermöglichen zu können. Werden wir dann auch machen)
Grundflächenzahl: 0,3
Geschossflächenzahl: 0,6
Baufenster, Baulinie und -grenze: s.Anhang
Randbebauung: 3m Abstand zu den Nachbarn, 7m zur Straße
Anzahl Stellplatz: nicht vorgegeben; 2-3 erwünscht
Geschossigkeit: 2 Vollgeschosse erlaubt
Dachform: nur geneigte Dachformen
Stilrichtung: offene Bauweise
Maximale Höhen/Begrenzungen: bei hangabwärtiger Bebauung Traufhöhe Max. 4,50m über Fertigfußboden
weitere Vorgaben: Zisterne ist vorgeschrieben mit 50l Speichervolumen pro m2 versiegelter Fläche
Anforderungen der Bauherren
Stilrichtung, Dachform, Gebäudetyp: Massivhaus, rechteckige Hausform, keine Erker etc, Satteldach
Keller, Geschosse: 1,5 geschossig + Keller, evtl. mit kleiner Einliegerwohnung/Apartment im KG; EG und OG insgesamt ca. 150m2
Anzahl der Personen, Alter: 2 Erwachsene (31 + 31), 1-2 Kinder geplant
Raumbedarf im EG, OG
Büro: Familiennutzung oder Homeoffice?: beides; soll im EG integriert sein (als Schlafmöglichkeit, falls krankheitsbedingt Treppengehen nicht möglich sein sollte. Bin da berufsbedingt als Ergotherapeutin etwas „vorbelastet“)
Schlafgäste pro Jahr: 1-2
offene oder geschlossene Architektur: eher geschlossen
konservativ oder moderne Bauweise: eher konservativ?
offene Küche, Kochinsel: nein, geschlossen, wenn möglich Wohnküche
Anzahl Essplätze: im Alltag 2-4
Kamin: Kaminschacht gerne mit angelegt,
Musik/Stereowand: nein
Balkon, Dachterrasse: nein
Garage, Carport: wenn möglich Doppelgarage, ansonsten normale Garage, mein Freund hätte gerne eine Tür von der Garage ins Haus
Nutzgarten, Treibhaus: vielleicht kleiner Teil Nutzgarten für Kräuter etc
weitere Wünsche/Besonderheiten/Tagesablauf, gern auch Begründungen, warum dieses oder das nicht sein soll:
Dusch/WC im EG (ähnlicher Grund wie Gästezimmer, außerdem 2. Dusche praktisch, wenn Kinder da sind);
schön wäre eine kleine Speisekammer, oder Abstellraum in der Nähe der Küche;
"Ankleide" (eher begehbarer Kleiderschrank) im Elternschlafzimmer nice-to-have aber kein muss;
aufgrund der Hanglage war unsere Überlegung ein kleines Apartment/Einliegerwohnung in den Keller zu planen (z.B. falls die alleinlebende Schwiegermama gesundheitlich nicht im alten Haus bleiben kann; raus will sie da eigentlich nicht; oder später fürs Kind), und ganz wichtig eigener Zugang von außen am besten ohne Treppen gehen zu müssen (falls Rolli-/Rollator; und falls vermietet werden sollte, damit man sich das Treppenhaus nicht teilen muss)
Hausentwurf
Von wem stammt die Planung:
-Planer eines Bauunternehmens
Was gefällt besonders? Warum?: sehr gut gefällt uns die Aufteilung im OG, auch dass die Kinderzimmer gleich groß sind; im EG gefällt uns die Lage von Küche und Gästezimmer besser als in unserem selbst gezeichneten Entwurf (hänge ich auch noch an)
Was gefällt nicht? Warum?
KG: dass wir quasi keinen Keller mehr haben, da die Einliegerwohnung die ganze Etage einnimmt (abgesehen vom Technikraum); im Wohnzimmer der Einliegerwohnung kaum Möglichkeiten Möbel zu stellen, durch die vielen Türen; Badewanne muss raus, Dusche wäre so schwer begehbar;
EG: der große Hauswirtschaftsraum (leider notwendig, da kein Kellerraum vorhanden, und eigentlich eine gute Lösung für die Tür ins Haus), Wohnküche wäre uns lieber, lässt sich bei dem Grundriss aber wahrscheinlich nicht realisieren?;
Für uns ist allerdings das allergrößte Problem das Treppenhaus. Zum einen bin ich mir nicht sicher, ob die Garderobe so später für eine Familie mit Kindern funktioniert. Zum anderen ist für mich die Vorstellung furchtbar, dass ich mir das Treppenhaus evtl mit fremden Menschen teilen muss (z.B. morgens verschlafen die Treppe runter ins EG und mir begegnet fremder Besuch vom Bewohner der Einliegerwohnung? für mich keine Option!)
Preisschätzung lt Architekt/Planer: 391.000€ (KFW 55, Luft-Wasser-Wärmepumpe, exkl. Bodenarbeiten -geschätzt laut Planer auf 18.000€ -, Malerarbeiten, Garage)
Persönliches Preislimit fürs Haus: ca. 300.00€
favorisierte Heiztechnik: Erdwärme (in unserem Baugebiet jeweils Einzelfallentscheidung) ansonsten Luft-Wasser-Wärmepumpe
Wenn Ihr verzichten müsst, auf welche Details/Ausbauten
-könnt Ihr verzichten: auf einige Quadratmeter könnten wir vielleicht verzichten, v.a. das OG erscheint uns recht großzügig; Tür von Garage ins Haus kein muss, genauso wie die Speisekammer; Kamin; Einliegerwohnung
-könnt Ihr nicht verzichten: geschlossene Küche, sehr ungerne auf das Arbeists-/Gästezimmer im EG, eigener Zugang Einliegerwohnung
Warum ist der Entwurf so geworden, wie er jetzt ist?
Entwurf vom Bauzeichner
Entsprechende/Welche Wünsche wurden vom Architekten umgesetzt: Tür von Garage ins Haus, geschlossene Küche, Ankleide, Einliegerwohnung im KG (wenn auch anders als gedacht)
Was ist die wichtigste/grundlegende Frage zum Grundriss in 130 Zeichen zusammengefasst?
Seht ihr noch andere kritische Stellen? Sehen wir Probleme die keine sind?
Ich fürchte wir wünschen uns zu viel für unser Budget, wo seht ihr Einsparpotenzial?
Ich hoffe ich habe keine wichtigen Punkte vergessen, ansonsten gerne nachfragen.
Vielen Dank schon einmal für das Durchlesen dieses langen Beitrags. Ich freue mich über konstruktive Kritik und Anregungen jeder Art
PS: Der Hang ist übrigens nicht so krass, wie es auf den Außenansichten aussieht, der Bauzeichner konnte es mit seinem Programm nicht anders darstellen.
Also nur mal so zum Verständnis gefragt:
Die Einliegerwohnung soll unten die Schwiegermama beherbergen, die u.U. schlecht laufen kann und dann durch Eurer Treppenhaus müßte, was natürlich blöd wäre.
Das Grundstück ist eher nach Norden ausgerichtet, in der Einliegerwohnung wäre demnach kaum Licht, wenn ich das richtig lese. Eure Terrasse ist gen Westen bis SW ausgerichtet, aber viel Platz bis zum Zaun ist da nicht mehr oder? Der Gartenzugang ist dann eigentlich von der Einliegerwohnung aus zu erreichen.
Das ganze hat für mich irgendwie nur Nachteile für alle Parteien.
Was sagt denn die Schwiegermutter überhaupt dazu? Will die wirklich raus aus ihrem Haus? Und willst Du sie dann pflegen?
Die Einliegerwohnung soll unten die Schwiegermama beherbergen, die u.U. schlecht laufen kann und dann durch Eurer Treppenhaus müßte, was natürlich blöd wäre.
Das Grundstück ist eher nach Norden ausgerichtet, in der Einliegerwohnung wäre demnach kaum Licht, wenn ich das richtig lese. Eure Terrasse ist gen Westen bis SW ausgerichtet, aber viel Platz bis zum Zaun ist da nicht mehr oder? Der Gartenzugang ist dann eigentlich von der Einliegerwohnung aus zu erreichen.
Das ganze hat für mich irgendwie nur Nachteile für alle Parteien.
Was sagt denn die Schwiegermutter überhaupt dazu? Will die wirklich raus aus ihrem Haus? Und willst Du sie dann pflegen?
kaho674 schrieb:
Also nur mal so zum Verständnis gefragt:
Die Einliegerwohnung soll unten die Schwiegermama beherbergen, die u.U. schlecht laufen kann und dann durch Eurer Treppenhaus müßte, was natürlich blöd wäre.
Das Grundstück ist eher nach Norden ausgerichtet, in der Einliegerwohnung wäre demnach kaum Licht, wenn ich das richtig lese. Eure Terrasse ist gen Westen bis SW ausgerichtet, aber viel Platz bis zum Zaun ist da nicht mehr oder? Der Gartenzugang ist dann eigentlich von der Einliegerwohnung aus zu erreichen.
Das ganze hat für mich irgendwie nur Nachteile für alle Parteien.
Was sagt denn die Schwiegermutter überhaupt dazu? Will die wirklich raus aus ihrem Haus? Und willst Du sie dann pflegen?Der Gedanke mit der Einliegerwohnung kam uns aufgrund der Hangsituation. Keller macht da durchaus Sinn und wir hatten die Idee evtl etwas Wohnraum schaffen zu können.
Sie müsste unserer Meinung nach auch nicht von vornherein ausgebaut werden, Anschlüsse sollten aber schon von vornherein geplant uns gelegt werden.
Die Schwiegermama ist aktuell noch ziemlich fit, wohnt aber in einem sehr alten Haus ohne Zentralheizung. Sie selbst möchte dort wohnen bleiben. Wir könnten uns aber schon vorstellen, dass sie es sich anders überlegt, wenn sie die Treppen mit Ölkanne für den Ofen nicht mehr packt.
Pflegen ginge von uns selbst natürlich nur bis zu einem gewissen Grad, da mein Freund und ich voll berufstätig sind.
Ansonsten könnten wir uns auch durchaus vorstellen zu vermieten.
Auch dann wäre das Treppenhaus für uns unmöglich.
Die Ausrichtung ist tatsächlich eher Richtung Norden.
Aus diesem Grund hat uns der Planer die Terrasse an die Seite geplant, was wir uns auch noch nicht so ganz vorstellen können. Da müssen wir uns mit Zollstock aufs Grundstück stellen und uns das mit dem Nachbargrundstück anschauen.
Beim Gartenzugang sind wir auch noch am Rätseln..
Wir haben das Gefühl nach dem ersten Entwurf ratloser zu sein als vorher.. **seufz**
Ich finde, das EG hat überhaupt keinen Einfamilienhaus-Charakter, sondern ist eher eine Wohnung.
Das Haus selbst sieht auch eher wie ein Mietshaus aus...
Ich würde bei einem Hang immer die Möglichkeit in Betracht ziehen, mit dem Wohn- bzw Allraum in den UG zu ziehen, sodass man dort ebenerdig den Garten erreichen kann. Die vorderen Bereiche im UG sind dann Kellerräume.
Allerdings ist Straßenseite auch Südseite. Schwierig. Da könnte man Eingang im Osten nah der Garage, Terrasse SW... die Einliegerwohnung sollte einen eigenen Eingang bekommen. Schwierig.
Den Entwurf würde ich der runden Ablage geben.
Ein BU würde ich außerdem nicht nach einem Entwurf eines Hauses machen, sondern nach der Bauleistungsbeschreibung und gutem Partner-Gefühl
Das Haus selbst sieht auch eher wie ein Mietshaus aus...
Ich würde bei einem Hang immer die Möglichkeit in Betracht ziehen, mit dem Wohn- bzw Allraum in den UG zu ziehen, sodass man dort ebenerdig den Garten erreichen kann. Die vorderen Bereiche im UG sind dann Kellerräume.
Allerdings ist Straßenseite auch Südseite. Schwierig. Da könnte man Eingang im Osten nah der Garage, Terrasse SW... die Einliegerwohnung sollte einen eigenen Eingang bekommen. Schwierig.
Den Entwurf würde ich der runden Ablage geben.
Ein BU würde ich außerdem nicht nach einem Entwurf eines Hauses machen, sondern nach der Bauleistungsbeschreibung und gutem Partner-Gefühl
Die Pläne sehen so aus, als wenn die Straße im Süden, bzw. SO liegt. Das ist natürlich mit eurer Hanglage eher ungünstig für helle Räume. Zudem habt ihr dann im Süden Flur, WC, Hauswirtschaftsraum und Küche. Eigentlich die Räume, wo ihr nicht unbedingt Sonne braucht, bzw. in Räumen, wo einem eher niemand hereinschauen soll.
Die Einliegerwohnung finde ich furchtbar. Das Treppenhaus ist recht eng, das Schlafzimmer ein Schlauch (könnte mit Behindertengerecht evtl. Probleme ergeben), die Küche viel zu schmal und keine Stellfläche im WZ. Zudem keine Möglichkeit den Eingang direkt von außen zu gestalten. Ob man dort das Bad Senioren-/Behindertengerecht umsetzen kann, weiß ich auch nicht.
Das EG wäre auch nicht meines. Der Hauswirtschaftsraum ist zu weit von der Küche entfernt und die Küche wäre für mich zu klein um dort alles unter zu bekommen. Wir haben exakt die gleiche Größe und ich habe viele Sachen in der Essdiele untergebracht, da ich ansonsten in der Küche nicht mehr arbeiten könnte (Backzubehör, Mikrowelle, Abstellschrank für Elektrogeräte wie Fritteuse, Vorräte, etc.). Das Bodentiefe Fenster in der Küche ist nett um auf die Terrasse zu kommen, nimmt aber extrem viel Stellfläche und der Weg über den Essplatz ist eigentlich auch nur nen halben Meter weiter. Würde ich mir sehr gut überlegen, ob es mir das Wert wäre.
In eurem WZ gibt es auch wenig Stellflächen und mir wäre der Sitzabstand zum Fernseher viel zu groß (4m Maximum). Zudem steht der Tisch eigentlich im Weg, da er irgendwo im Bereich der Türen der Terrasse, Diele, Küche stehen muss. Keine Ahnung ob das für euch ein Kriterium ist, aber eine etwas längere Tafel für Geburtstage kann man in dem Grundriss schwer stellen. Die Ausbuchtung zum AZ bzw. Hauswirtschaftsraum ist auch verschenkter Platz und irgendwie eine unschöne Ecke im zentralen Raum.
Den Hauswirtschaftsraum aus Durchgang für die Garage zu nutzen, ist nicht schlecht, da dort dann direkt Einkäufe deponiert werden können, aber nimmt natürlich auch Stellfläche. Wenn er hier auch für Staubsauger, etc. und sogar als Lagerraum dienen muss, wird das knapp. Zudem steigt man ja nicht immer trockenen Fußes aus dem Auto. Wenn man dort keinen Platzt für Schuhe, etc. schafft, schleppt man sich dadurch den Dreck in den Hauswirtschaftsraum und sogar ins WZ, da man ja nicht direkt in die Diele kommt.
OG: Hier wäre für mich der Raum für das Schlafzimmer zu groß, wenn noch eine zusätzliche Ankleide kommt, welche mit 7m² auch recht üppig ist (größer wie das Gästebad). Wofür benötigt ihr eine Schrankfläche im Schlafzimmer? Das Bad würde ich mir mal genau planen, um zu schauen ob es so für euch passt. Die Dusche wird sicherlich etwas größer werden, aber ein Doppelwaschtisch passt da eigentlich nicht rein. Auch Abstellfläche/Schränke wird schwierig. Die braucht ihr aber vielleicht, weil ihr zwar viele m² Flur habt, aber dort nicht eine Möglichkeit einen Schrank oder eine Kommode zu stellen.
Die Kinderzimmer sind von der Größe gut, aber die Türen verhindern beiden Zimmern das Stellen eines 3m Kleiderschrankes. Die Treppe würde ich so gestalten, dass der Aufgang an der Außenwand hochkommt und nicht im Zentrum. Dadurch habt ihr mehr Platz im Flur oben, den kürzen Weg vom EG ins OG (wenn auch nur ein paar Schritte) und im Keller an dieser Stelle die Möglichkeit einen Schrank oder gar einen Abstellraum zu schaffen.
Eure Entwürfe gefallen mir aber auch nicht. Die Diele oben hat extrem viel Raum ohne Nutzen. Die Eingänge zu den Kinderzimmern werden nicht funktionieren . Im EG habt ihr 2x furchtbare WZ geplant und irgendwo ne schicke kleine Wand reingefummelt inkl. Kamin. Wo kommt der dann eigentlich im OG raus? In dem einen Entwurf ist die Speiß extrem weit von der Garage weg und ihr kommt nur durch die Küche auf die Terrasse (mit Gästen echt doof), zudem WZ im Nordosten (nie Sonne) und viele m² für die Diele. Im anderen Entwurf ist die die Speiß recht klein, da dort 3 Türen drin sind und so kaum Stellfläche bleibt. Die Diele braucht extrem viel Platz. Zudem ist der Zugang zum Gästebad durch den Schuhschrank/Garderobe??? Ihr seid euch auch noch nicht so einig, wie eure Wohnküche aussehen soll und habt daher erst mal viele m² da reingepackt. Hier kann man 20m² völlig ungünstig planen, aber auch aus 13m² ne ordentliche Wohnküche machen. Überlegt euch hier, genau wie im Bad, wie es grob aussehen soll, bzw. worauf ihr Wert legt. Ein Arbeits/Gästezimmer mit 9m² ist viel zu klein. Man kann auf 9m² ein Arbeitszimmer machen, wenn man da nicht täglich drin arbeitet. Ein Gästezimmer bekommt man da auch irgendwie rein, aber keinen Raum, der beides ermöglichen soll. Selbst eine Doppelbett Luftmatraze braucht 4m². Wenn da ein Schreibtisch und ein kleines Regal drin stehen, hat man weder verbleibende Lauffläche, noch könnte man irgendwie die Tür öffnen.
Ich würde mir bei eurem Grundstück erst mal Gedanken um die Ausrichtung machen, also:
- In welchem Räumen wäre mir Süd-, bzw. Westsonne wichtig, wo brauche ich keine Sonne
- Wo wird die Terrasse liegen, bzw. wird ausschließlich die Terrasse oben genutzt oder doch auch der Garten unten und wie komme ich vernünftig in diesen (auch mit Geräten, Essen, Tisch/Stühlen etc.)
- Wie wahrscheinlich ist es, dass die Schwiegermutter wirklich mal einzieht und braucht sie dann eine ganze Wohnung (inkl. Küche)?
Wenn ihr sie zur Pflege aufnehmt, braucht sie eigentlich nur ein Schlafzimmer und ein Bad. Das würde ich im EG so realisieren, dass die beiden Räumen einen kleinen abgetrennten Flur haben. Macht in Summe 30m² und keine 60m². bei 2 Kindern bekommt ihr auch nur eines unten untergebracht und das 2. schaut in die Röhre. Zudem braucht auch ein Kind nicht unbedingt eine 15m² große Küche und 25m² WZ. Wenn es das braucht, soll es sich eine Wohnung mieten.
Überlegt euch zudem, wo sind eure zentralen Räume. Schaut ihr wenig TV und habt keinen Kamin, was macht ihr dann zu zweit im Wohnzimmer? Sitzt ihr dann vielleicht viel häufiger in der Küche und redet,...? Man kann es aber natürlich auch anders herum sehen und sagen, dass ihr Essen gerade in WZ legen wollt, weil ihr diese Zeit bewusst verbringt und dann wird auch das gemütliche WZ genutzt und nicht 60% der Freizeit in der Wohnküche, neben den dreckigen Töpfen (Sarkasmus). Auch so Nebensächlichkeiten wie: wo wird gebügelt, sind manchmal in der Praxis echt umständlich zu lösen. Auch bzgl. Nutzung des Arbeitszimmers sollte man sich vorher überlegen, was einem da wichtig ist. Macht es Sinn es oben in der nähe der Kinderzimmer zu haben? Nervt es auf Dauer, wenn die Schwiegermutter unten die ganze Zeit umhertigert, wenn man da in Ruhe arbeiten muss oder ist es gar von Vorteil, dass der Weg so kurz ist.
Das wären für mich die ersten entscheidenden Fragen, ansonsten ist der Entwurf des Planers bis auf die Einliegerwohnung sehr konservativ. D.h. es ist nicht auf euch speziell zugeschnitten, sondern ansonsten sehr klassisch. Den Kamin würde ich weglassen, wirklich Platz für einen Ofen sehe ich in keinem eurer Planungen. Durch die Hanglage habt ihr viele Kompromisse, aber im Gegenzug auch Möglichkeiten. Schaut, wie ihr das zu eurem Vorteil nutzen könnt und versucht nicht nur die Nachteile irgendwie zu kompensieren.
Die Einliegerwohnung finde ich furchtbar. Das Treppenhaus ist recht eng, das Schlafzimmer ein Schlauch (könnte mit Behindertengerecht evtl. Probleme ergeben), die Küche viel zu schmal und keine Stellfläche im WZ. Zudem keine Möglichkeit den Eingang direkt von außen zu gestalten. Ob man dort das Bad Senioren-/Behindertengerecht umsetzen kann, weiß ich auch nicht.
Das EG wäre auch nicht meines. Der Hauswirtschaftsraum ist zu weit von der Küche entfernt und die Küche wäre für mich zu klein um dort alles unter zu bekommen. Wir haben exakt die gleiche Größe und ich habe viele Sachen in der Essdiele untergebracht, da ich ansonsten in der Küche nicht mehr arbeiten könnte (Backzubehör, Mikrowelle, Abstellschrank für Elektrogeräte wie Fritteuse, Vorräte, etc.). Das Bodentiefe Fenster in der Küche ist nett um auf die Terrasse zu kommen, nimmt aber extrem viel Stellfläche und der Weg über den Essplatz ist eigentlich auch nur nen halben Meter weiter. Würde ich mir sehr gut überlegen, ob es mir das Wert wäre.
In eurem WZ gibt es auch wenig Stellflächen und mir wäre der Sitzabstand zum Fernseher viel zu groß (4m Maximum). Zudem steht der Tisch eigentlich im Weg, da er irgendwo im Bereich der Türen der Terrasse, Diele, Küche stehen muss. Keine Ahnung ob das für euch ein Kriterium ist, aber eine etwas längere Tafel für Geburtstage kann man in dem Grundriss schwer stellen. Die Ausbuchtung zum AZ bzw. Hauswirtschaftsraum ist auch verschenkter Platz und irgendwie eine unschöne Ecke im zentralen Raum.
Den Hauswirtschaftsraum aus Durchgang für die Garage zu nutzen, ist nicht schlecht, da dort dann direkt Einkäufe deponiert werden können, aber nimmt natürlich auch Stellfläche. Wenn er hier auch für Staubsauger, etc. und sogar als Lagerraum dienen muss, wird das knapp. Zudem steigt man ja nicht immer trockenen Fußes aus dem Auto. Wenn man dort keinen Platzt für Schuhe, etc. schafft, schleppt man sich dadurch den Dreck in den Hauswirtschaftsraum und sogar ins WZ, da man ja nicht direkt in die Diele kommt.
OG: Hier wäre für mich der Raum für das Schlafzimmer zu groß, wenn noch eine zusätzliche Ankleide kommt, welche mit 7m² auch recht üppig ist (größer wie das Gästebad). Wofür benötigt ihr eine Schrankfläche im Schlafzimmer? Das Bad würde ich mir mal genau planen, um zu schauen ob es so für euch passt. Die Dusche wird sicherlich etwas größer werden, aber ein Doppelwaschtisch passt da eigentlich nicht rein. Auch Abstellfläche/Schränke wird schwierig. Die braucht ihr aber vielleicht, weil ihr zwar viele m² Flur habt, aber dort nicht eine Möglichkeit einen Schrank oder eine Kommode zu stellen.
Die Kinderzimmer sind von der Größe gut, aber die Türen verhindern beiden Zimmern das Stellen eines 3m Kleiderschrankes. Die Treppe würde ich so gestalten, dass der Aufgang an der Außenwand hochkommt und nicht im Zentrum. Dadurch habt ihr mehr Platz im Flur oben, den kürzen Weg vom EG ins OG (wenn auch nur ein paar Schritte) und im Keller an dieser Stelle die Möglichkeit einen Schrank oder gar einen Abstellraum zu schaffen.
Eure Entwürfe gefallen mir aber auch nicht. Die Diele oben hat extrem viel Raum ohne Nutzen. Die Eingänge zu den Kinderzimmern werden nicht funktionieren . Im EG habt ihr 2x furchtbare WZ geplant und irgendwo ne schicke kleine Wand reingefummelt inkl. Kamin. Wo kommt der dann eigentlich im OG raus? In dem einen Entwurf ist die Speiß extrem weit von der Garage weg und ihr kommt nur durch die Küche auf die Terrasse (mit Gästen echt doof), zudem WZ im Nordosten (nie Sonne) und viele m² für die Diele. Im anderen Entwurf ist die die Speiß recht klein, da dort 3 Türen drin sind und so kaum Stellfläche bleibt. Die Diele braucht extrem viel Platz. Zudem ist der Zugang zum Gästebad durch den Schuhschrank/Garderobe??? Ihr seid euch auch noch nicht so einig, wie eure Wohnküche aussehen soll und habt daher erst mal viele m² da reingepackt. Hier kann man 20m² völlig ungünstig planen, aber auch aus 13m² ne ordentliche Wohnküche machen. Überlegt euch hier, genau wie im Bad, wie es grob aussehen soll, bzw. worauf ihr Wert legt. Ein Arbeits/Gästezimmer mit 9m² ist viel zu klein. Man kann auf 9m² ein Arbeitszimmer machen, wenn man da nicht täglich drin arbeitet. Ein Gästezimmer bekommt man da auch irgendwie rein, aber keinen Raum, der beides ermöglichen soll. Selbst eine Doppelbett Luftmatraze braucht 4m². Wenn da ein Schreibtisch und ein kleines Regal drin stehen, hat man weder verbleibende Lauffläche, noch könnte man irgendwie die Tür öffnen.
Ich würde mir bei eurem Grundstück erst mal Gedanken um die Ausrichtung machen, also:
- In welchem Räumen wäre mir Süd-, bzw. Westsonne wichtig, wo brauche ich keine Sonne
- Wo wird die Terrasse liegen, bzw. wird ausschließlich die Terrasse oben genutzt oder doch auch der Garten unten und wie komme ich vernünftig in diesen (auch mit Geräten, Essen, Tisch/Stühlen etc.)
- Wie wahrscheinlich ist es, dass die Schwiegermutter wirklich mal einzieht und braucht sie dann eine ganze Wohnung (inkl. Küche)?
Wenn ihr sie zur Pflege aufnehmt, braucht sie eigentlich nur ein Schlafzimmer und ein Bad. Das würde ich im EG so realisieren, dass die beiden Räumen einen kleinen abgetrennten Flur haben. Macht in Summe 30m² und keine 60m². bei 2 Kindern bekommt ihr auch nur eines unten untergebracht und das 2. schaut in die Röhre. Zudem braucht auch ein Kind nicht unbedingt eine 15m² große Küche und 25m² WZ. Wenn es das braucht, soll es sich eine Wohnung mieten.
Überlegt euch zudem, wo sind eure zentralen Räume. Schaut ihr wenig TV und habt keinen Kamin, was macht ihr dann zu zweit im Wohnzimmer? Sitzt ihr dann vielleicht viel häufiger in der Küche und redet,...? Man kann es aber natürlich auch anders herum sehen und sagen, dass ihr Essen gerade in WZ legen wollt, weil ihr diese Zeit bewusst verbringt und dann wird auch das gemütliche WZ genutzt und nicht 60% der Freizeit in der Wohnküche, neben den dreckigen Töpfen (Sarkasmus). Auch so Nebensächlichkeiten wie: wo wird gebügelt, sind manchmal in der Praxis echt umständlich zu lösen. Auch bzgl. Nutzung des Arbeitszimmers sollte man sich vorher überlegen, was einem da wichtig ist. Macht es Sinn es oben in der nähe der Kinderzimmer zu haben? Nervt es auf Dauer, wenn die Schwiegermutter unten die ganze Zeit umhertigert, wenn man da in Ruhe arbeiten muss oder ist es gar von Vorteil, dass der Weg so kurz ist.
Das wären für mich die ersten entscheidenden Fragen, ansonsten ist der Entwurf des Planers bis auf die Einliegerwohnung sehr konservativ. D.h. es ist nicht auf euch speziell zugeschnitten, sondern ansonsten sehr klassisch. Den Kamin würde ich weglassen, wirklich Platz für einen Ofen sehe ich in keinem eurer Planungen. Durch die Hanglage habt ihr viele Kompromisse, aber im Gegenzug auch Möglichkeiten. Schaut, wie ihr das zu eurem Vorteil nutzen könnt und versucht nicht nur die Nachteile irgendwie zu kompensieren.
Ähnliche Themen