S
Schnubbihh23.10.23 09:58Hallo liebe Community,
wir haben aktuell 3 GUs für unseren Hausbau in der engeren Auswahl.
Alle drei Grundrisse gefallen uns prinzipiell gut und sind sich natürlich auch in den Grundsätzen sehr ähnlich.
Nichtsdestotrotz hat jeder Grundriss so seine kleinen Stärken und Schwächen und mich würde mal interessieren, ob Ihr eine Präferenz habt oder Punkte seht, die wir vergessen haben.
Anforderungen der Bauherren
Keller, Geschosse: Kein Keller, 1,5 Geschosse
Anzahl der Personen, Alter: 5 Personen; 31J, 31J, 4J, 2J, 0J
Büro: 1x Homeoffice (100%)
Schlafgäste pro Jahr: Kaum bis gar nicht
offene Küche, Kochinsel: Offen und modern
Hausentwurf
Von wem stammt die Planung:
-Planer eines Bauunternehmens
-Was gefällt besonders? Warum?
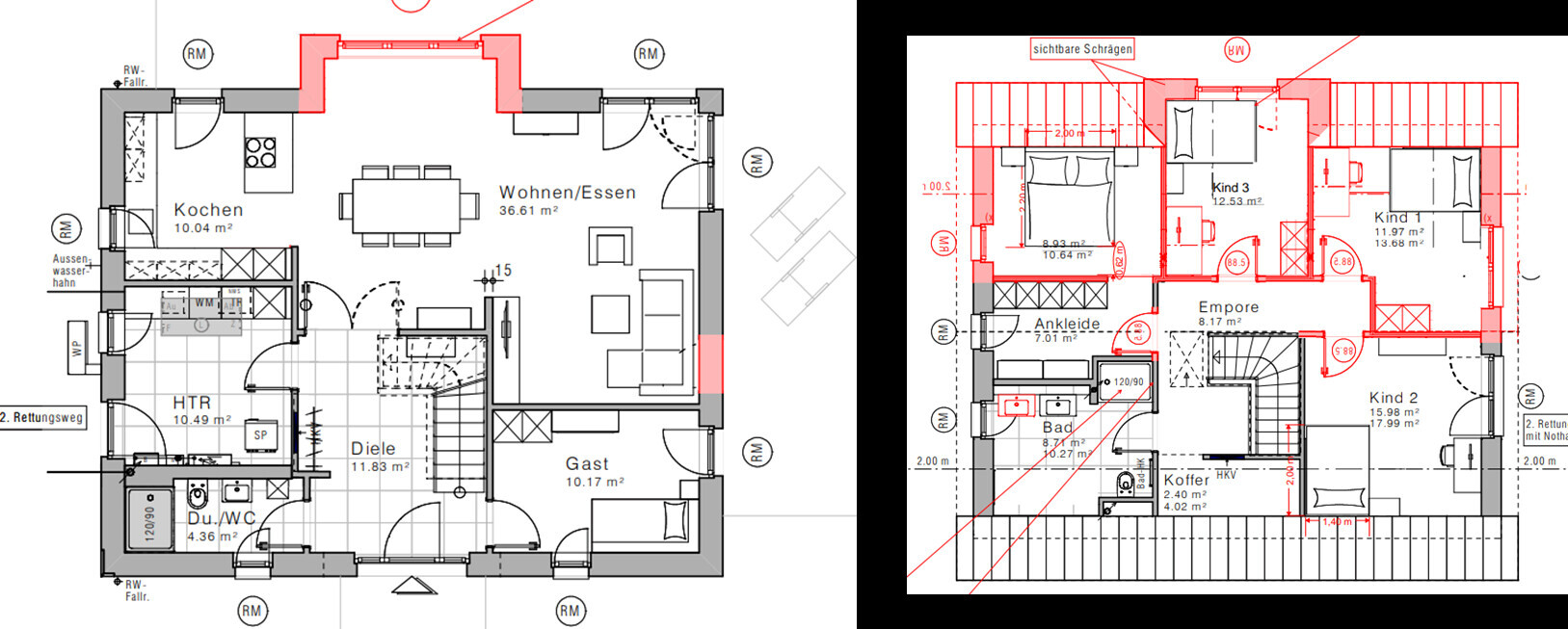
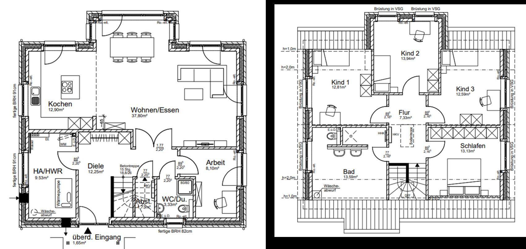
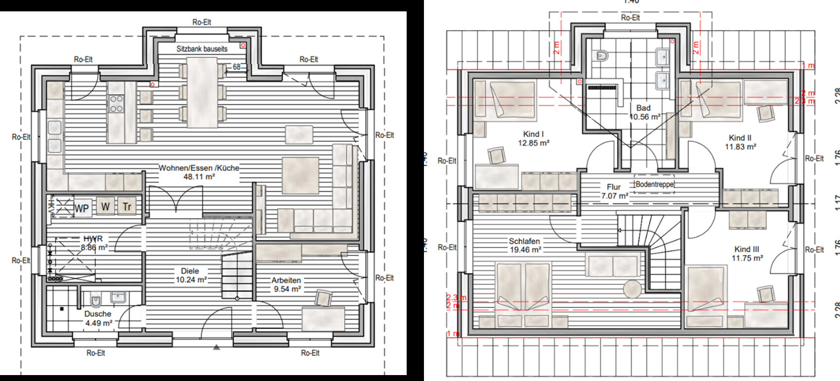
GR1: Treppe nicht direkt im Eingang,
GR2: Bad OG gut gestaltet, Elternschlafzimmer im Nord/Osten
GR3: Ziemlich gut und ausgeglichen, aber nicht unser bevorzugter GU
-Was gefällt nicht? Warum?
GR1: Arbeitszimmer etwas klein/verwinkelt; Bad OG zu groß unter der Schrägen (da wir keine Badewanne brauchen)
GR2: Bad OG nicht über Hauswirtschaftsraum und somit etwas Probleme mit dem Fallrohr
GR3: ---



wir haben aktuell 3 GUs für unseren Hausbau in der engeren Auswahl.
Alle drei Grundrisse gefallen uns prinzipiell gut und sind sich natürlich auch in den Grundsätzen sehr ähnlich.
Nichtsdestotrotz hat jeder Grundriss so seine kleinen Stärken und Schwächen und mich würde mal interessieren, ob Ihr eine Präferenz habt oder Punkte seht, die wir vergessen haben.
Anforderungen der Bauherren
Keller, Geschosse: Kein Keller, 1,5 Geschosse
Anzahl der Personen, Alter: 5 Personen; 31J, 31J, 4J, 2J, 0J
Büro: 1x Homeoffice (100%)
Schlafgäste pro Jahr: Kaum bis gar nicht
offene Küche, Kochinsel: Offen und modern
Hausentwurf
Von wem stammt die Planung:
-Planer eines Bauunternehmens
-Was gefällt besonders? Warum?
GR1: Treppe nicht direkt im Eingang,
GR2: Bad OG gut gestaltet, Elternschlafzimmer im Nord/Osten
GR3: Ziemlich gut und ausgeglichen, aber nicht unser bevorzugter GU
-Was gefällt nicht? Warum?
GR1: Arbeitszimmer etwas klein/verwinkelt; Bad OG zu groß unter der Schrägen (da wir keine Badewanne brauchen)
GR2: Bad OG nicht über Hauswirtschaftsraum und somit etwas Probleme mit dem Fallrohr
GR3: ---
H
hanghaus202323.10.23 10:23So ganz ohne Angaben zum Grundstück kann man wenig dazu sagen.
Wo ist Norden?
Warum bieten Alle mit Erker an?
Wo ist Norden?
Warum bieten Alle mit Erker an?
S
Schnubbihh23.10.23 10:44hanghaus2023 schrieb:
So ganz ohne Angaben zum Grundstück kann man wenig dazu sagen.
Wo ist Norden?
Warum bieten Alle mit Erker an?Flurkarte mit Ausrichtung habe ich mal angehängt.
Erker ist jeweils zum Süden ausgerichtet / Haustür zum Norden.
Erker ist immer enthalten, um oben Platz fürs dritte Kinderzimmer zu haben.
Worst-Case würden wir daraus ein Zwerggiebel machen, wenn es vom Budget eng wird. Finden es aber im EG auch ein kleines Highlight für das Esszimmer und wollen deshalb ungern darauf verzichten. Grundfläche des Hauses ist bereits bis zum Maximum ausgereizt für den Bebauungsplan.
H
hanghaus202323.10.23 10:54Warum den HAR so weit weg von der Strasse? Die Zuleitungen sollten doch so kurz wie möglich sein.
Wo kommen die Stellätze hin? Wo soll umgelenkt werden?
Habt Ihr das Grundstück schon gekauft?
Sag mal was zum Budget für das Haus.
Gibt es auch Abmessungen vom Haus / Grundstück?
Wo kommen die Stellätze hin? Wo soll umgelenkt werden?
Habt Ihr das Grundstück schon gekauft?
Sag mal was zum Budget für das Haus.
Gibt es auch Abmessungen vom Haus / Grundstück?
Definitiv Nr 2, aber gespiegelt!
Schöner Garderobenplatz, gute Hauswirtschaftsraum-Größe. Kinderzimmer in ungefährer gleichen Größe. Platz für einen konventionellen kleiderschrank im Schlafzimmer
Badgröße bei 3 Kindern sollte passen. Nette Dusche, alles fein. Auf Wanne würde ich nie verzichten, irgendwann braucht ihr sie definitiv und nicht erst in 10 Jahren… sollte ja im Preis mit drin sein.
Schöner Garderobenplatz, gute Hauswirtschaftsraum-Größe. Kinderzimmer in ungefährer gleichen Größe. Platz für einen konventionellen kleiderschrank im Schlafzimmer
Badgröße bei 3 Kindern sollte passen. Nette Dusche, alles fein. Auf Wanne würde ich nie verzichten, irgendwann braucht ihr sie definitiv und nicht erst in 10 Jahren… sollte ja im Preis mit drin sein.
S
Schnubbihh23.10.23 12:31Sehe gerade, dass die Bilder neu benannt wurden, was eine Zuordnung 1-3 leider nicht mehr erlaubt. Ärgerlich!
Die Frage mit dem HTR ist natürlich sehr relevant und haben wir uns auch schon gestellt. Ggf. macht es Sinn das Haus eher im Westen zu positionieren und die Grundrisse zu spiegeln. Dann hätten wir eher einen Süd/Ost Garten statt eines Süd/West Gartens. Eigentlich hätten wir die Küche aber trotzdem gerne im Osten, entsprechend müsste man schauen, ob das Spiegeln ohne Probleme möglich ist. Die Frage ist natürlich auch, wieviel teurer die Anschlusskosten werden durch die Positionierung des HTR an der hintersten Ecke des Grundstücks.
Maße Grundstück: ca. 26x21m
Maße Haus: ca. 11,25mx9,25m
Budget Haus: ca. 450k€ (bei ca. 155QM)
Stellplatz bisher nicht klar definiert
Danke schon mal für die hilfreichen Kommentare bis hier hin!
Die Frage mit dem HTR ist natürlich sehr relevant und haben wir uns auch schon gestellt. Ggf. macht es Sinn das Haus eher im Westen zu positionieren und die Grundrisse zu spiegeln. Dann hätten wir eher einen Süd/Ost Garten statt eines Süd/West Gartens. Eigentlich hätten wir die Küche aber trotzdem gerne im Osten, entsprechend müsste man schauen, ob das Spiegeln ohne Probleme möglich ist. Die Frage ist natürlich auch, wieviel teurer die Anschlusskosten werden durch die Positionierung des HTR an der hintersten Ecke des Grundstücks.
Maße Grundstück: ca. 26x21m
Maße Haus: ca. 11,25mx9,25m
Budget Haus: ca. 450k€ (bei ca. 155QM)
Stellplatz bisher nicht klar definiert
Danke schon mal für die hilfreichen Kommentare bis hier hin!
Ähnliche Themen