ᐅ Grundriss-Tipps Einfamilienhaus mit Einliegerwohnung gewünscht
Erstellt am: 01.10.21 00:17
N
NicoleflHallo zusammen,
wir haben bereits einen fertigen Grundriss für unser Einfamilienhaus mit Einliegerwohnung. Der Bauantrag ist bereits eingereicht. Leider haben sich in den jetzt acht Monaten Wartezeit auf die Baugenehmigung Unsicherheiten bezüglich des Grundrisses eingeschlichen. An den Außenmaßen werden wir nichts mehr ändern können, aber innen ist der Grundriss nicht rund.
Kurz zur Einliegerwohnung: diese soll meinen Eltern dienen. Sie werden teilweise hier und im Ausland leben. Die Idee, dass sie durch unsere Wohnung in die Einliegerwohnung gelangen ist nicht gewünscht. Es soll schon bei einem separaten Eingang bleiben. Auch wenn es doof ist, dass wir zwei Treppenhäuser haben. Später könnte die Wohnung unserem Sohn dienen, wenn er Mal älter ist. Oder zum Hobby-Raum umgebaut werden, oder oder oder...
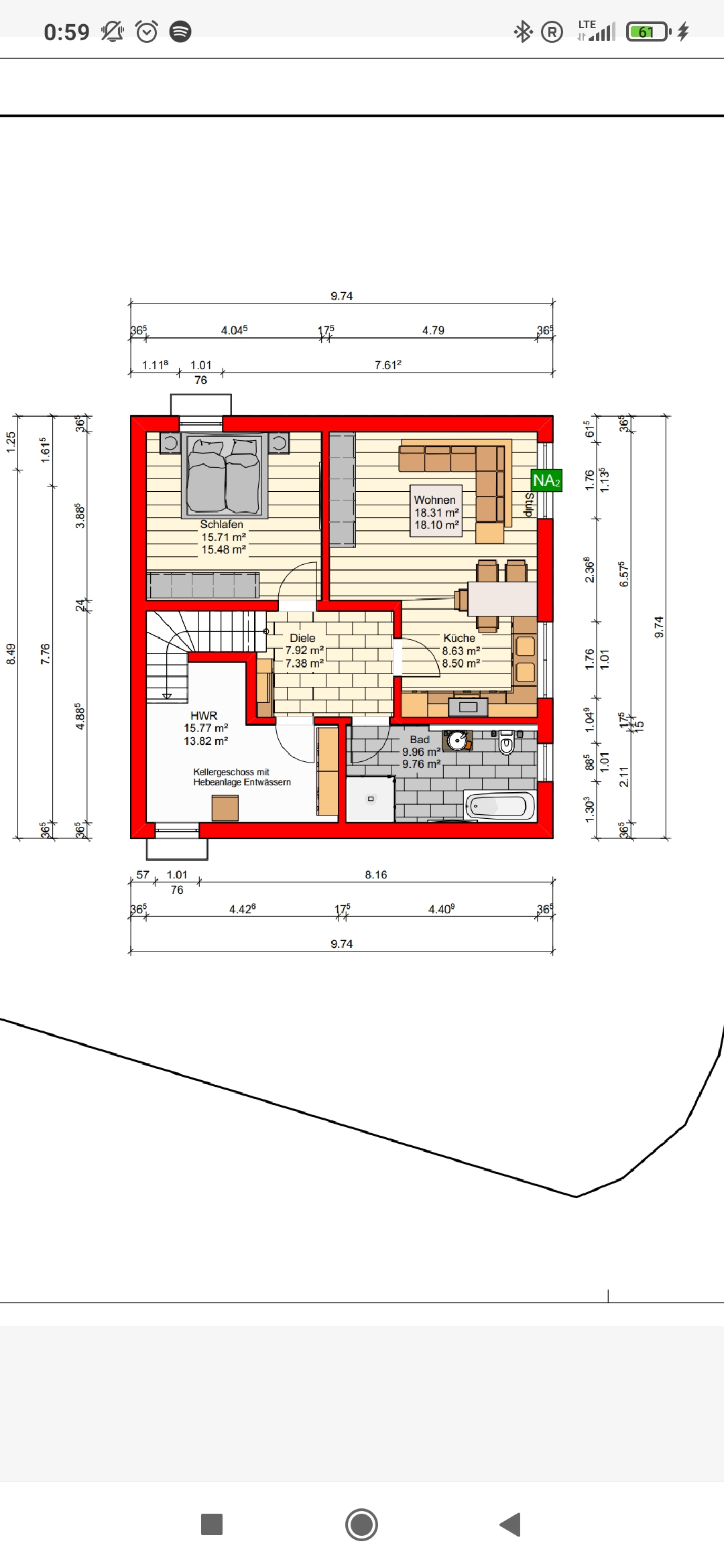
Im EG würde ich nun viel lieber die Küche dort haben, wo jetzt das Wohnzimmer ist samt Kücheninsel. Problem dabei ist, dass das Wohnzimmer dann dorthin müsste, wo jetzt die Küche ist und das wäre mit 3,13 m viel zu schmal.
Im OG könnte man nach dem Treppenaufgang einen kleinen Abstellraum errichten, um dort Waschmaschine und Trockner unterzubringen.
Bebauungsplan/Einschränkungen
Größe des Grundstücks: 386qm
Hang: nein
Grundflächenzahl" siehe Anlage
Geschossflächenzahl, siehe Anlage
Baufenster, Baulinie und -grenze: siehe Anhang
Randbebauung
Anzahl Stellplatz 3
Geschossigkeit: 2
Dachform: Satteldach
Stilrichtung: modern
Ausrichtung. Eingang ist im Norden
Maximale Höhen/Begrenzungen
weitere Vorgaben: siehe Anlage
Anforderungen der Bauherren
Stilrichtung, Dachform, Gebäudetyp
Moderner Stil, Satteldach, Einfamilienhaus mit Einigerwohnung
Keller, Geschosse
Keller, EG, OG
Anzahl der Personen, Alter
Insgesamt 4 Erwachsene (2 Mitte 30 und zwei Mitte 60) und noch 1 Kind (3 Jahre) Vielleicht bald zwei
Raumbedarf im EG, OG
EG: Wohn/Essbereich, Küche, Gäste-WC, Speisekammer wäre schön
OG, Schlafzimmer, 2 Kinderzimmer, Bad, Abstellraum wäre super
Büro: Familiennutzung oder Homeoffice?
Kein Büro benötigt
Schlafgäste pro Jahr
Unabhängig von der Einliegerwohnung kein Bedarf
offene oder geschlossene Architektur
Offene Architektur
konservativ oder moderne Bauweise: keine Angaben
offene Küche, Kochinsel
Offene Küche mit Kochinsel. Raumhohe Küche
Anzahl Essplätze
4-6
Kamin
Nein..wenn dann Bioethanol
Musik/Stereowand: nein
Balkon, Dachterrasse: nein
Garage, Carport: Garage 7*3 m
Nutzgarten, Treibhaus: nein
weitere Wünsche/Besonderheiten/Tagesablauf, gern auch Begründungen, warum dieses oder das nicht sein soll
Ein Tausch der Räume Wohnzimmer und Küche würde den Vorteil bringen, dass man sich abends auf der Couch unterhalten kann, ohne daß es oben zu laut wird (wegen des Luftraums)
Hausentwurf
Von wem stammt die Planung: die Planung stammt von unserem Architekten, aber der Plan ist nicht rund.
Was gefällt besonders? Warum? Tja, nicht viel
Was gefällt nicht? Warum?, Wohn- und Essbereich und Küche sind insgesamt zu schmal.
Preisschätzung lt Architekt/Planer: 450.000
Persönliches Preislimit fürs Haus, inkl Ausstattung: 510.000
favorisierte Heiztechnik: Luft-Wasser-Wärme Pumpe
Wenn Ihr verzichten müsst, auf welche Details/Ausbauten
-könnt Ihr verzichten: bodentiefe Fenster im OG
-könnt Ihr nicht verzichten: gerade Treppe und den Luftraum möchte ich auch ungerne abgeben
Warum ist der Entwurf so geworden, wie er jetzt ist?
dies ist der dritte Entwurf unseres Planers, der uns auch gut gefallen hat. Nun sind wir uns unsicher.
Anzahl an Zimmern und Luftraum und gerade Treppe würde berücksichtigt.
Was macht ihn in Euren Augen besonders gut oder schlecht?
Der Platz im Wohn/Essbereich ist zu klein, bzw. ist der Raum zu schmal.
Was ist die wichtigste/grundlegende Frage zum Grundriss in 130 Zeichen zusammengefasst?
Bebauungsplan/Einschränkungen
1. Wäre der Tausch des Wohnzimmers und der Küche sinnvoll? Es müsste dann aber das zukünftige Wohnzimmer breiter gemacht werden, denn mit 3,13 m kommt man nicht weit
2. Könnte man im Obergeschoss noch einen Abstellraum planen? Eventuell nach dem Treppenaufgang.
3. Was gefällt euch oder missfällt euch?
Bin sehr dankbar über Anregungen und Tipps.
Viele Grüße
Nicole





wir haben bereits einen fertigen Grundriss für unser Einfamilienhaus mit Einliegerwohnung. Der Bauantrag ist bereits eingereicht. Leider haben sich in den jetzt acht Monaten Wartezeit auf die Baugenehmigung Unsicherheiten bezüglich des Grundrisses eingeschlichen. An den Außenmaßen werden wir nichts mehr ändern können, aber innen ist der Grundriss nicht rund.
Kurz zur Einliegerwohnung: diese soll meinen Eltern dienen. Sie werden teilweise hier und im Ausland leben. Die Idee, dass sie durch unsere Wohnung in die Einliegerwohnung gelangen ist nicht gewünscht. Es soll schon bei einem separaten Eingang bleiben. Auch wenn es doof ist, dass wir zwei Treppenhäuser haben. Später könnte die Wohnung unserem Sohn dienen, wenn er Mal älter ist. Oder zum Hobby-Raum umgebaut werden, oder oder oder...
Im EG würde ich nun viel lieber die Küche dort haben, wo jetzt das Wohnzimmer ist samt Kücheninsel. Problem dabei ist, dass das Wohnzimmer dann dorthin müsste, wo jetzt die Küche ist und das wäre mit 3,13 m viel zu schmal.
Im OG könnte man nach dem Treppenaufgang einen kleinen Abstellraum errichten, um dort Waschmaschine und Trockner unterzubringen.
Bebauungsplan/Einschränkungen
Größe des Grundstücks: 386qm
Hang: nein
Grundflächenzahl" siehe Anlage
Geschossflächenzahl, siehe Anlage
Baufenster, Baulinie und -grenze: siehe Anhang
Randbebauung
Anzahl Stellplatz 3
Geschossigkeit: 2
Dachform: Satteldach
Stilrichtung: modern
Ausrichtung. Eingang ist im Norden
Maximale Höhen/Begrenzungen
weitere Vorgaben: siehe Anlage
Anforderungen der Bauherren
Stilrichtung, Dachform, Gebäudetyp
Moderner Stil, Satteldach, Einfamilienhaus mit Einigerwohnung
Keller, Geschosse
Keller, EG, OG
Anzahl der Personen, Alter
Insgesamt 4 Erwachsene (2 Mitte 30 und zwei Mitte 60) und noch 1 Kind (3 Jahre) Vielleicht bald zwei
Raumbedarf im EG, OG
EG: Wohn/Essbereich, Küche, Gäste-WC, Speisekammer wäre schön
OG, Schlafzimmer, 2 Kinderzimmer, Bad, Abstellraum wäre super
Büro: Familiennutzung oder Homeoffice?
Kein Büro benötigt
Schlafgäste pro Jahr
Unabhängig von der Einliegerwohnung kein Bedarf
offene oder geschlossene Architektur
Offene Architektur
konservativ oder moderne Bauweise: keine Angaben
offene Küche, Kochinsel
Offene Küche mit Kochinsel. Raumhohe Küche
Anzahl Essplätze
4-6
Kamin
Nein..wenn dann Bioethanol
Musik/Stereowand: nein
Balkon, Dachterrasse: nein
Garage, Carport: Garage 7*3 m
Nutzgarten, Treibhaus: nein
weitere Wünsche/Besonderheiten/Tagesablauf, gern auch Begründungen, warum dieses oder das nicht sein soll
Ein Tausch der Räume Wohnzimmer und Küche würde den Vorteil bringen, dass man sich abends auf der Couch unterhalten kann, ohne daß es oben zu laut wird (wegen des Luftraums)
Hausentwurf
Von wem stammt die Planung: die Planung stammt von unserem Architekten, aber der Plan ist nicht rund.
Was gefällt besonders? Warum? Tja, nicht viel
Was gefällt nicht? Warum?, Wohn- und Essbereich und Küche sind insgesamt zu schmal.
Preisschätzung lt Architekt/Planer: 450.000
Persönliches Preislimit fürs Haus, inkl Ausstattung: 510.000
favorisierte Heiztechnik: Luft-Wasser-Wärme Pumpe
Wenn Ihr verzichten müsst, auf welche Details/Ausbauten
-könnt Ihr verzichten: bodentiefe Fenster im OG
-könnt Ihr nicht verzichten: gerade Treppe und den Luftraum möchte ich auch ungerne abgeben
Warum ist der Entwurf so geworden, wie er jetzt ist?
dies ist der dritte Entwurf unseres Planers, der uns auch gut gefallen hat. Nun sind wir uns unsicher.
Anzahl an Zimmern und Luftraum und gerade Treppe würde berücksichtigt.
Was macht ihn in Euren Augen besonders gut oder schlecht?
Der Platz im Wohn/Essbereich ist zu klein, bzw. ist der Raum zu schmal.
Was ist die wichtigste/grundlegende Frage zum Grundriss in 130 Zeichen zusammengefasst?
Bebauungsplan/Einschränkungen
1. Wäre der Tausch des Wohnzimmers und der Küche sinnvoll? Es müsste dann aber das zukünftige Wohnzimmer breiter gemacht werden, denn mit 3,13 m kommt man nicht weit
2. Könnte man im Obergeschoss noch einen Abstellraum planen? Eventuell nach dem Treppenaufgang.
3. Was gefällt euch oder missfällt euch?
Bin sehr dankbar über Anregungen und Tipps.
Viele Grüße
Nicole
Nicolefl schrieb:
Der Bauantrag ist bereits eingereicht. Leider haben sich in den jetzt acht Monaten Wartezeit auf die Baugenehmigung Unsicherheiten bezüglich des Grundrisses eingeschlichen. An den Außenmaßen werden wir nichts mehr ändern können, aber innen ist der Grundriss nicht rund.Dann ist und bleibt das so, außer Ihr wollt diesen Weg einschließlich der Dauer nochmals gehen. Wesentliche Änderungen werden einen neuen Antrag erfordern, da helfen gleichbleibende Außenmaße nichts. Zwei Dinge habe ich noch nicht verstanden: und zwar die Dachkonstruktion und die Vorziehung des Gebäudes ca. 1m vor die Baugrenze Richtung Straße.Ihr habt Euch zwei gigantische Eigentore geschossen, nämlich den Luftraum und die Quadratform der Hausgrundfläche, zusätzlich zur ohnehin schon hohen Packdichte an Wünschen / Anforderungen für die Hausgröße. Gehe ich recht in der Annahme, daß der Entwurf aus einer Katalog-Stadtvilla entwickelt wurde ?
Ich empfinde das Haus angesichts seiner grenzwertig kleinen "Größe" als überraschend / bemerkenswert gelungenen Kompromiß, würde eigentlich nur den Luftraum streichen und hätte mir die Befreiung von der Baugrenze geschenkt - ist diese gar wesentlich an der langen Bearbeitungszeit schuld ?
Mir scheint, an Eurem pfiffigen Zeichenknecht ist fast ein Architekt verloren gegangen, der Euch offenbar nur den Luftraum leider nicht auszureden geschafft hat.
https://www.instagram.com/11antgmxde/
https://www.linkedin.com/company/bauen-jetzt/
Nicolefl schrieb:
Hallo zusammen,
wir haben bereits einen fertigen Grundriss für unser Einfamilienhaus mit Einliegerwohnung. Der Bauantrag ist bereits eingereicht. Leider haben sich in den jetzt acht Monaten Wartezeit auf die Baugenehmigung Unsicherheiten bezüglich des Grundrisses eingeschlichen. An den Außenmaßen werden wir nichts mehr ändern können, aber innen ist der Grundriss nicht rund.
Kurz zur Einliegerwohnung: diese soll meinen Eltern dienen. Sie werden teilweise hier und im Ausland leben. Die Idee, dass sie durch unsere Wohnung in die Einliegerwohnung gelangen ist nicht gewünscht. Es soll schon bei einem separaten Eingang bleiben. Auch wenn es doof ist, dass wir zwei Treppenhäuser haben. Später könnte die Wohnung unserem Sohn dienen, wenn er Mal älter ist. Oder zum Hobby-Raum umgebaut werden, oder oder oder...
Im EG würde ich nun viel lieber die Küche dort haben, wo jetzt das Wohnzimmer ist samt Kücheninsel. Problem dabei ist, dass das Wohnzimmer dann dorthin müsste, wo jetzt die Küche ist und das wäre mit 3,13 m viel zu schmal.
Im OG könnte man nach dem Treppenaufgang einen kleinen Abstellraum errichten, um dort Waschmaschine und Trockner unterzubringen.
Bebauungsplan/Einschränkungen
Größe des Grundstücks: 386qm
Hang: nein
Grundflächenzahl" siehe Anlage
Geschossflächenzahl, siehe Anlage
Baufenster, Baulinie und -grenze: siehe Anhang
Randbebauung
Anzahl Stellplatz 3
Geschossigkeit: 2
Dachform: Satteldach
Stilrichtung: modern
Ausrichtung. Eingang ist im Norden
Maximale Höhen/Begrenzungen
weitere Vorgaben: siehe Anlage
Anforderungen der Bauherren
Stilrichtung, Dachform, Gebäudetyp
Moderner Stil, Satteldach, Einfamilienhaus mit Einigerwohnung
Keller, Geschosse
Keller, EG, OG
Anzahl der Personen, Alter
Insgesamt 4 Erwachsene (2 Mitte 30 und zwei Mitte 60) und noch 1 Kind (3 Jahre) Vielleicht bald zwei
Raumbedarf im EG, OG
EG: Wohn/Essbereich, Küche, Gäste-WC, Speisekammer wäre schön
OG, Schlafzimmer, 2 Kinderzimmer, Bad, Abstellraum wäre super
Büro: Familiennutzung oder Homeoffice?
Kein Büro benötigt
Schlafgäste pro Jahr
Unabhängig von der Einliegerwohnung kein Bedarf
offene oder geschlossene Architektur
Offene Architektur
konservativ oder moderne Bauweise: keine Angaben
offene Küche, Kochinsel
Offene Küche mit Kochinsel. Raumhohe Küche
Anzahl Essplätze
4-6
Kamin
Nein..wenn dann Bioethanol
Musik/Stereowand: nein
Balkon, Dachterrasse: nein
Garage, Carport: Garage 7*3 m
Nutzgarten, Treibhaus: nein
weitere Wünsche/Besonderheiten/Tagesablauf, gern auch Begründungen, warum dieses oder das nicht sein soll
Ein Tausch der Räume Wohnzimmer und Küche würde den Vorteil bringen, dass man sich abends auf der Couch unterhalten kann, ohne daß es oben zu laut wird (wegen des Luftraums)
Hausentwurf
Von wem stammt die Planung: die Planung stammt von unserem Architekten, aber der Plan ist nicht rund.
Was gefällt besonders? Warum? Tja, nicht viel
Was gefällt nicht? Warum?, Wohn- und Essbereich und Küche sind insgesamt zu schmal.
Preisschätzung lt Architekt/Planer: 450.000
Persönliches Preislimit fürs Haus, inkl Ausstattung: 510.000
favorisierte Heiztechnik: Luft-Wasser-Wärme Pumpe
Wenn Ihr verzichten müsst, auf welche Details/Ausbauten
-könnt Ihr verzichten: bodentiefe Fenster im OG
-könnt Ihr nicht verzichten: gerade Treppe und den Luftraum möchte ich auch ungerne abgeben
Warum ist der Entwurf so geworden, wie er jetzt ist?
dies ist der dritte Entwurf unseres Planers, der uns auch gut gefallen hat. Nun sind wir uns unsicher.
Anzahl an Zimmern und Luftraum und gerade Treppe würde berücksichtigt.
Was macht ihn in Euren Augen besonders gut oder schlecht?
Der Platz im Wohn/Essbereich ist zu klein, bzw. ist der Raum zu schmal.
Was ist die wichtigste/grundlegende Frage zum Grundriss in 130 Zeichen zusammengefasst?
Bebauungsplan/Einschränkungen
1. Wäre der Tausch des Wohnzimmers und der Küche sinnvoll? Es müsste dann aber das zukünftige Wohnzimmer breiter gemacht werden, denn mit 3,13 m kommt man nicht weit
2. Könnte man im Obergeschoss noch einen Abstellraum planen? Eventuell nach dem Treppenaufgang.
3. Was gefällt euch oder missfällt euch?
Bin sehr dankbar über Anregungen und Tipps.
Viele Grüße
NicoleÜber den Grundriss darf ich nichts sagen, da unser schon oft kritisiert wurde 😎 Ich habe auch nicht gefunden wie groß das Haus sein wird. Ich schätze an die 200 qm. Wie man da auf nur 450.000 € kommt, würde ich hinterfragen. Es sieht nach viel Erdarbeiten aus = hohe Kosten. Bei dem kleinen Grundstück wird vermutlich die Erde auch gleich weggefahren = noch mehr Kosten. Architekt hat den Vorteil das es "öfters" schöne Grundrisse erstellt, aber mit Kostenkalkulationen haben die da nicht immer so...
Man sollte als Faustformel immer nehmen:
- qm * 2.500 € (hängt auch von der Region ab; BBW oder Bayern können auch 3.000 € werden)
- bei Euch würde ich auf mind. 70.000 € Baunebenkosten ansetzen
- 20.000 € Garage.
Wir kommen beim Überschlagen auf: 200qm * 2.500 € + 70.000 € + 20.000 € = 590.000 € (Ohne Möbeln/Lampen, Böden, Einfahrt, Außenanlagen, Küche). Euer Preislimit wird für die Vorstellungen kaum reichen.
Nicolefl schrieb:
Im OG könnte man nach dem Treppenaufgang einen kleinen Abstellraum errichten, um dort Waschmaschine und Trockner unterzubringen.Wo, wenn nicht in den Luftraum????Nicolefl schrieb:
Ein Tausch der Räume Wohnzimmer und Küche würde den Vorteil bringen, dass man sich abends auf der Couch unterhalten kann, ohne daß es oben zu laut wird (wegen des Luftraums)Und was ist mit dem Geschirrgeklirre, wenn abends die Maschine ausgeräumt wird oder Gäste bewirtet werden?Nicolefl schrieb:
aber der Plan ist nicht rund.So ist es. Gut, dass ihr das selbst festgestellt habt.Ich würde auf einen Wechsel verzichten: 3.10 reicht für eine Küchen-Zeile plus eine Insel oder einen Zweizeiler. So wie ich sehe, ist das Sahnestück des Grundstückes dort, wo jetzt die Küche ist: dort würde ich dann auch (West und NW) mal die Fenster vergrößern und die Ess- und Abend-Terrasse anlegen.
Ich könnte mir vorstellen, planunten beim Treppenansatz einen Küchendurchgang zumachen. Dann zwei Zeilen. Im Norden u d Westen Bodenfenster. Dann muss man nicht ständig durch die Ruhezone.
Grundsätzlich würde ich im OG die Fenster im Frage stellen, warum dort quasi wie ein RH geplant wurde und im für die Schlafebene wichtigen Osten und Westen keine geplant wurden.
EinTipp für den Eingang: Tür zur Wohnung in Flucht der Haustür, ergibt doppelt großen Garderobenplatz!!!
Ansonsten und dann wird er auch funktionieren, derEntwurf.
Budget ist sehr fraglich!
Ähnliche Themen