ᐅ Grundriss / Bungalow - Ideen, Vorschläge, Tipps?
Erstellt am: 29.04.18 23:18
Hallo zusammen,
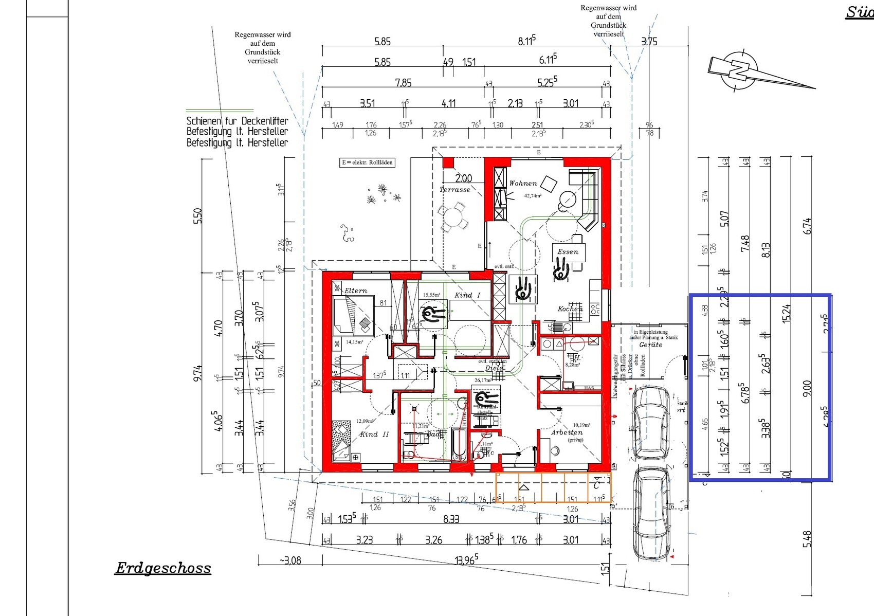
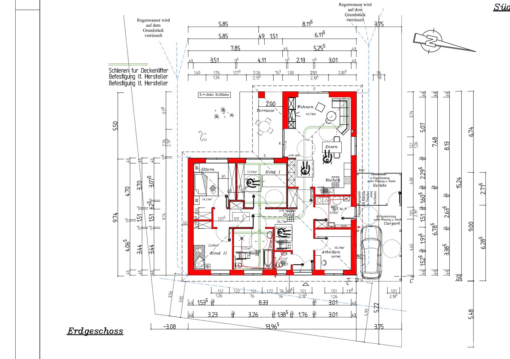
ich habe in unserem Grundriss ein paar Sachen geändert. 00 ist bisherige Grundriss und 01 wäre meine Überlegung.
Vorteil bei 01 wäre Fenster in die Küche, mehr Platz in Hauswirtschaftsraum. Wenn überdachte Eingang erwünscht, kann man machen(muss nicht unbedingt Nebeneingangstür von Carport sein).
Was meint ihr?
Meine an dere Überlegung ist die Eingangstür von Wohnzimmer, dass eine Schiebetür am meistens Sinn macht. Aber es fehlt ca. 17 cm Platz dafür. Es gab 2 Vorschläge: 1. mit der Garderobe 17 cm in Kind 1 rein 2. Arbeiten, Hauswirtschaftsraum und Küche 17 cm schmaler machen. Die beiden gefällt mir eigentlich nicht.
Hat jemand vielleicht eine bessere Idee?
Vielleicht andere Vorschläge und Verbesserungen?
Wir werden uns sehr freuen für euere Meinungen.
Gruß

ich habe in unserem Grundriss ein paar Sachen geändert. 00 ist bisherige Grundriss und 01 wäre meine Überlegung.
Vorteil bei 01 wäre Fenster in die Küche, mehr Platz in Hauswirtschaftsraum. Wenn überdachte Eingang erwünscht, kann man machen(muss nicht unbedingt Nebeneingangstür von Carport sein).
Was meint ihr?
Meine an dere Überlegung ist die Eingangstür von Wohnzimmer, dass eine Schiebetür am meistens Sinn macht. Aber es fehlt ca. 17 cm Platz dafür. Es gab 2 Vorschläge: 1. mit der Garderobe 17 cm in Kind 1 rein 2. Arbeiten, Hauswirtschaftsraum und Küche 17 cm schmaler machen. Die beiden gefällt mir eigentlich nicht.
Hat jemand vielleicht eine bessere Idee?
Vielleicht andere Vorschläge und Verbesserungen?
Wir werden uns sehr freuen für euere Meinungen.
Gruß
zizzi schrieb:
ich habe in unserem Grundriss ein paar Sachen geändert. 00 ist bisherige Grundriss und 01 wäre meine Überlegung.
Vorteil bei 01 wäre Fenster in die Küche, mehr Platz in Hauswirtschaftsraum.So gefällt mir das auch besser. Vielleicht verlinkst Du noch Deinen ursprünglichen Grundrissthema ?https://www.instagram.com/11antgmxde/
https://www.linkedin.com/company/bauen-jetzt/
Ich möchte es auch hier vermerken: bei uns sind zwei hintereinander liegende Stellplätze für's Auto nicht genehmigungsfähig. Es muß jeder Stellplatz frei zu erreichen sein. Ich weiß nicht, ob das bei euch auch so ist, vielleicht vorsichtshalber mal erkundigen.
Tür aus dem eh sehr kleinen Hauswirtschaftsraum in die Garage auf jeden Fall streichen, egal welche Version es wird.
Ansonsten würde ich auf ein Fenster in der Küche nicht verzichten wollen.
Ich glaube, aktuell habt ihr nur ein Kind, oder? Ansonsten würde ich Schlafzimmer mit Ki2 tauschen und mir ggf. überlegen, ob man aus diesem Zimmer nicht auch einen direkten Zugang zur Terrasse/Garten macht (aus Paritätsgründen *g*). Solange Kind 2 noch in der Wurstsuppe schwimmt, kann man sich das Zimmer als Elternzimmer natürlich gönnen.
Alle für's Rollikind relevanten Türen würde ich zu Schiebetüren machen.
Tür aus dem eh sehr kleinen Hauswirtschaftsraum in die Garage auf jeden Fall streichen, egal welche Version es wird.
Ansonsten würde ich auf ein Fenster in der Küche nicht verzichten wollen.
Ich glaube, aktuell habt ihr nur ein Kind, oder? Ansonsten würde ich Schlafzimmer mit Ki2 tauschen und mir ggf. überlegen, ob man aus diesem Zimmer nicht auch einen direkten Zugang zur Terrasse/Garten macht (aus Paritätsgründen *g*). Solange Kind 2 noch in der Wurstsuppe schwimmt, kann man sich das Zimmer als Elternzimmer natürlich gönnen.
Alle für's Rollikind relevanten Türen würde ich zu Schiebetüren machen.
Link zu ursprünglichen Grundrissthema
Danke für die Vermerkungen,
Autos sind nur als Darstellungsgründen da ob man 2 Autos dort parken kann und Rückwärts parkende Auto mehr freie Raum hat wegen Rolli , sonst Carport ca. 6x3.5 und Geräteraum 3x3.5
2. Grund für Nebeneingangstür war die dreckige Schuhe, aber mit sowas würde ich ungereinigt sowieso nicht ins Haus reinkommen. Also macht mehr Sinn eine frostsichere Zapfhahn. (wo genau? in den Carport oder Terrassenseite? im Auftrag haben wir nur eine frostsichere Zapfhahn).
Wir haben für die Schlafzimmer und Kind 2 ein Kompromiss gemacht, da wir das Bad nicht verkleinern wollen/können und Kind 2 ist zu klein für eine Schlafzimmer mit Doppelbett und Schrank, deshalb haben wir es als einzige Lösung akzeptiert.
Die Garagenende von rechten Nachbar ist von Grenzpunkt 14,5 m entfernt, also Küchenfenster gegenüber (ich habe heute erfahren). Macht immer noch Sinn, ein Fenster für die Küche?
(im Anhang Nachbargarage in blau)

Danke für die Vermerkungen,
Autos sind nur als Darstellungsgründen da ob man 2 Autos dort parken kann und Rückwärts parkende Auto mehr freie Raum hat wegen Rolli , sonst Carport ca. 6x3.5 und Geräteraum 3x3.5
2. Grund für Nebeneingangstür war die dreckige Schuhe, aber mit sowas würde ich ungereinigt sowieso nicht ins Haus reinkommen. Also macht mehr Sinn eine frostsichere Zapfhahn. (wo genau? in den Carport oder Terrassenseite? im Auftrag haben wir nur eine frostsichere Zapfhahn).
Wir haben für die Schlafzimmer und Kind 2 ein Kompromiss gemacht, da wir das Bad nicht verkleinern wollen/können und Kind 2 ist zu klein für eine Schlafzimmer mit Doppelbett und Schrank, deshalb haben wir es als einzige Lösung akzeptiert.
Die Garagenende von rechten Nachbar ist von Grenzpunkt 14,5 m entfernt, also Küchenfenster gegenüber (ich habe heute erfahren). Macht immer noch Sinn, ein Fenster für die Küche?
(im Anhang Nachbargarage in blau)
Ähnliche Themen