Einfamilienhaus - Stadtvilla: Wohnzimmer L oder I Form?

4,80 Stern(e) 5 Votes
Zuletzt aktualisiert 25.11.2025
Sie befinden sich auf der Seite 4 der Diskussion zum Thema: Einfamilienhaus - Stadtvilla: Wohnzimmer L oder I Form?
>> Zum 1. Beitrag <<

B

baeckerman83

Nein einen Grundriss haben sie nicht gefordert, dass war meine Interpretation. 11ant liegt da denke ich richtig, eine Gesprächsgrundlage soll es sein. "ungefähre Vorstellung der Raumaufteilung (nur ganz grob)" das stand in der Mail und das denke ich ist es jetzt ja, ganz grob.
 
Y

ypg

Du wirst uns ja sicherlich informieren - ich bin gespannt!

Und in jedem Fall sind wir mit Rat und Tat bei Dir


Gruß, Yvonne
 
11ant

11ant

Ganz grob gilt für Geschosse ohne Dachschrägen: Grundfläche * 0,85 = Wohnfläche
Der Faktor ist ja nicht linear, bei der gewünschten Fläche bin ich mal von 0,80 ausgegangen; und habe (Treppen nicht vergessen !) mal (spitz gerechnet) 15 qm für Verkehrsflächen aufgeschlagen und mir dafür beim Ergebnis (etwas über 106) aufzurunden erlaubt.
 
B

baeckerman83

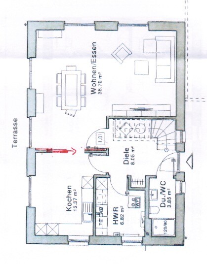
Nun haben wir endlich einen gezeichneten Grundriss. Dieser ist von einem Massivhausanbieter, so von uns aber nicht im Katalog gefunden. Die Terrasse soll nach Süden, im Norden kommt ein Doppelcarport hin und der Eingang ist auch im Norden.

Wir würden uns sehr über eure Meinung zu dem Grundriss freuen. Ich musste den Grundriss abpausen. Daher ist die Treppe auch so komisch eingezeichnet. Das Original habe ich leider nicht reinbekommen.

Grundriss eines Raums mit blauer Eckcouch und Treppe (Treppe), Bad mit Waschbecken.


Grundriss eines Apartments mit Badezimmer, Waschbecken, Toilette und Türen.
 
B

baeckerman83

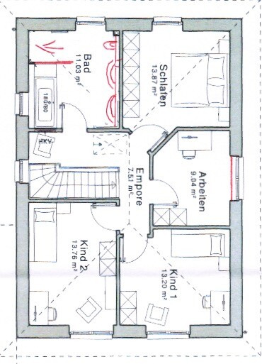
Dann noch ein Versuch. Dieses mal ein Foto. Die roten Striche sind so auf dem Plan darauf. Da gibt es nichts anderes. Norden ist rechts.
In den Süden soll die Terrasse in den Norden ein Doppelcarport.

Grundriss des Obergeschosses mit Schlafen, Bad, Arbeitszimmer, zwei Kinderzimmer und Empore.


Grundriss Erdgeschoss: Wohnen/Essen, Kochen, Diele, HWR, Dusche/WC, Terrasse.
 
Zuletzt aktualisiert 25.11.2025
Im Forum Grundrissplanung / Grundstücksplanung gibt es 2536 Themen mit insgesamt 88016 Beiträgen


Ähnliche Themen zu Einfamilienhaus - Stadtvilla: Wohnzimmer L oder I Form?
Nr.ErgebnisBeiträge
1Grundriss Einfamilienhaus mit Doppelgarage und Terrasse - Seite 219
2Grundriss Bungalow 150qm geschlossene Küche, überdachte Terrasse - Seite 440
3Grundriss-Optimierung 175qm Bungalow auf 579qm Grundstück 15
4Grundriss über 200qm - Was haltet die Experten davon? 13
5Meinung zum Grundriss eines geplanten Bauhauses - Seite 323
6Meinungen zu Grundriss "Haus am Hang" erbeten - Seite 231
7Meinungen f. Grundriss Einfamilienhaus ca. 160qm - Seite 429
8Meinungen zu Einfamilienhaus Grundriss 132 m² 16
9Meinungen zum Grundriss Bungalow - Seite 442
10Grundriss mit Garage auf Grundstück realisierbar? - Seite 329
11Grundriss Halboffene Küche mit großem Essbereich - Detailfragen - Seite 212
12Entwurf Grundriss Bungalow - Eure Meinungen bitte! - Seite 214
13Grundriss mit KG auf Hanggrundstück 32
14Erster Grundriss – bitte um Kritik/Tipps - Seite 351
15Mal wieder Grundriss - Fertighaus kurz vor Bauantrag - Seite 322
16Grundriss - Haus mit 2WE zur Vermietung - Seite 334
17Einfamilienhaus 2-Geschossig mit Doppelcarport in Buxdehude 30
18Grundriss von Architekten für Einfamilienhaus 240m2 Bauhaus - Seite 335
19Wohin mit Terrasse/Wohnräumen wenn Straße auf Westseite liegt? - Seite 445
20Grundriss Bungalow 140 qm 26

Oben