Einfamilienhaus - Stadtvilla: Wohnzimmer L oder I Form?

4,80 Stern(e) 5 Votes
Zuletzt aktualisiert 25.11.2025
Sie befinden sich auf der Seite 5 der Diskussion zum Thema: Einfamilienhaus - Stadtvilla: Wohnzimmer L oder I Form?
>> Zum 1. Beitrag <<

B

baeckerman83

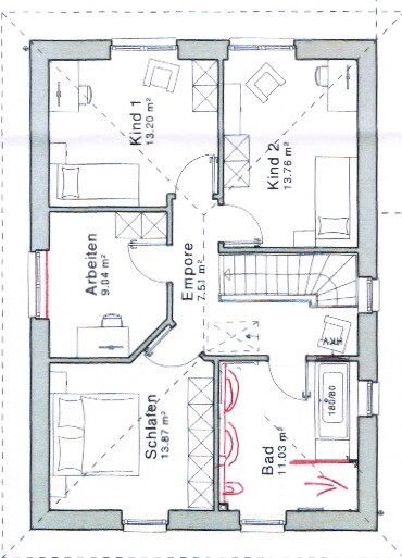
EG rechts. Argh. Kann die Anhänge nicht mehr bearbeiten sonst hätte ich das OG Bild gedreht.

Grundriss Obergeschoss: Schlafzimmer, Arbeitszimmer, 2 Kinderzimmer, Bad, Empore.
 
Zuletzt aktualisiert 25.11.2025
Im Forum Grundrissplanung / Grundstücksplanung gibt es 2536 Themen mit insgesamt 88016 Beiträgen
Oben