Einfamilienhaus mit Staffelgeschoss - Feedback/Diskussion/Tipps/Ideen

4,30 Stern(e) 3 Votes
Zuletzt aktualisiert 21.11.2025
Sie befinden sich auf der Seite 3 der Diskussion zum Thema: Einfamilienhaus mit Staffelgeschoss - Feedback/Diskussion/Tipps/Ideen
>> Zum 1. Beitrag <<

T

toxicmolotof

Hallo Zusammen,

nach einigen Wochen Pause hier nun der aktuelle Stand unserer Planung. Zwischenzeitlich haben wir von der Skizze in den Bauantragsplanungsmodus gewechselt und wollen eigentlich, wenn nicht irgendetwas absolut Katastrophales dazwischen kommt, demnächst den Bauantrag einreichen.

Was ist passiert:

  • Kamin im Essbereich eingeplant.
  • Kamindurchführung im EG als Innenzug, im OG wechselt er nach außen.
  • Bäder / Keramik so grob platziert, wie wir es uns vorstellen.
  • Küchenplan entworfen. (Entgegen Zeichnung Zwischenwand zum Kamin auf 1m verkürzt mit anschließendem Tresen.)
  • Position Heizung/Wasserspeicher festgelegt.
  • Leitungsschächte für Wasser/Abwasser geplant.

Gibt es noch Ideen, Vorschläge, Kritiken?

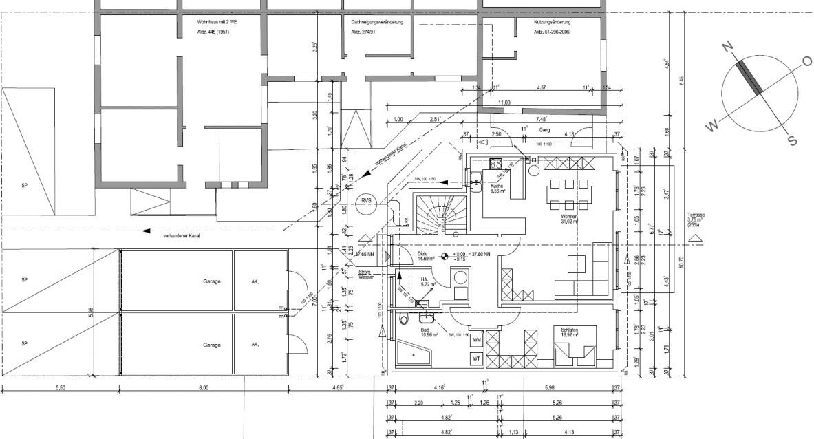
Grundriss eines Hauses: Räume, Treppe, Küche, Wohnzimmer, Bad, Schlafzimmer, Garage


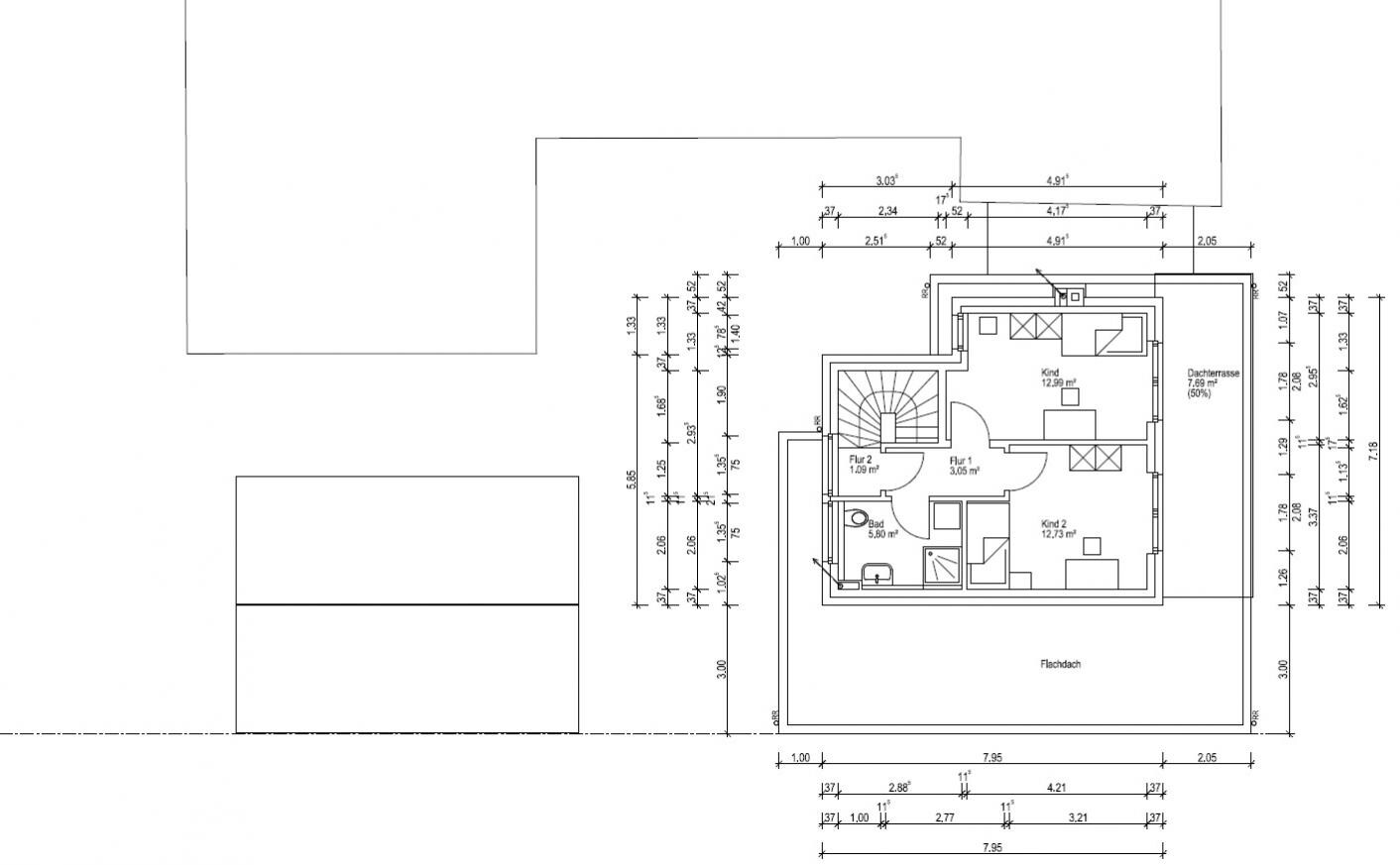
Grundriss eines Hauses mit Treppe, zwei Kinderzimmern, Bad, Flur und Dachterrasse


Moderne Wohnhausfassade mit flachen Kuben, großen Fenstern und Terrasse; Nord-West/Süd-Ost.
 
B

bau-bau

Ich habe die letzten 2 Seiten nicht gelesen, sondern mir nur die aktuellen Pläne angeschaut.
Also verzeih bitte, wenn ich was überlese.

1.) Was mir spontan sofort auffällt, ist die Ausrichtung Richtung Nord-Ost. Ich würde ein WZ immer Richtung Südwest ausrichten.

2.) Waschmaschine und Trockner im Bad finde ich unpraktisch. Lösung: Hinter einer Schiebetür o.ä. verstecken.

3.) Mir fehlen Abstellräume. Der Hauswirtschaftsraum mit 5 qm (inkl. Heizung) erscheint mit zu klein. Oder gibt es einen Keller?

4.) G-Küche finde ich sehr gut: Viel Stauraum.

5.) Abstellraum unter Treppe einbauen?

6.) Zwischentür im OG oben finde ich gut, frage mich aber, wie es mit Kleinkind funktionieren soll, dass es oben schläft und Eltern in einer vollkommen anderen Ecke des Hauses unten. Sind die Kids größer, ist das aber wiederum für die Eltern entspannter.
 
T

toxicmolotof

Keine Kommentare in diesem Forum ypg. Ich bin durchaus in der Lage dies zu unterscheiden und entsprechend zu berücksichtigen.

Der Animierungsversuch ist aber ja geglückt.

Danke für die Hinweise Bau-Bau. Die angesprochenen Punkte sind uns bewusst. Einen eigenen Keller gibt es nicht, aber eine Garage mit sehr viel Platz und ein voll unterkellertes Bestandsgebäude nebenan mit Werkraum, Partykeller, Billardraum und Lagerräumen.

Die Ausrichtung ist der Grundstückslage geschuldet. Im Süden haben wir nur Ausblick auf die Garagenwand der Nachbarn, die genau 0cm vor unserem Haus anfängt.
 
B

bog

Ich habe 2010 als Bauherr ein Haus im Bauhausstil selbst geplant und auch die Bauleiterrolle übernommen und möchte einige Anregungen geben:
1) Die Treppe würde ich, wenn es geht, nur mit geraden ungeschnittene Stufen, 2 oder 3-läufig mit Podesten bauen und ein attraktives Lichtband einplanen. Das Treppenhaus könnte innen und außen zum Blickfang werden.
2) Den Kaminofen sollte einen zentraleren Aufstellort erhalten, damit er die Wärme in den Wohn- und Essbereich abstrahlen kann. Er kann sehr heiß werden und steht jetzt zu dicht an den Küchen- und Esszimmermöbeln. Es sollte Lagerplatz für den Tagesbedarf an Holz neben dem Ofen eingeplant werden.
3) Ich sehe keinen geeigneten Platz/Nische für eine Flurgarderobe. Ein späterer Schrank sollte nicht den Flur einengen bzw. zustellen.
4) Ich empfehle eine Dusche im EG-Bad einzuplanen. Platz wäre da. Der Trockner könnte auf der Waschmaschine stehen und von der Dusche durch eine massive Wand getrennt werden.
5) Alternativ wären die beiden Geräte auch gut im HAR untergebracht wo auch die anderen Waschutensilien stehen werden. Den gewonnenen Platz könnte man einem Ankleidezimmer zuschlagen.
6) Ich finde es schade, dass die Garage die Sicht auf das Haus versperrt und es zwischen Garage und Bestandsgebäude ziemlich eingeklemmt wirkt. Wäre es nicht besser, auf die Abstellbereiche in den Garagen zu verzichten, damit mehr Platz vor dem Haus bleibt. Die benötigten Abstellflächen könnten in die Bestandsgebäude integriert werden. Um die Sicht auf das Haus zu verbessern, könnten statt Garagen auch Carports Verwendung finden.
 
Zuletzt aktualisiert 21.11.2025
Im Forum Grundrissplanung / Grundstücksplanung gibt es 2535 Themen mit insgesamt 87978 Beiträgen


Ähnliche Themen zu Einfamilienhaus mit Staffelgeschoss - Feedback/Diskussion/Tipps/Ideen
Nr.ErgebnisBeiträge
1Waschmaschine und Trockner im Keller oder OG? 14
2Grundriss Einfamilienhaus mit Keller - Seite 319
3Grundrissplanung Keller, EG + DG 12
4Jetzt der finale Grundriss - 189qm ohne Keller; Stadtvilla - Seite 424
5Grundrissplanung Einfamilienhaus ohne Keller / 4 Personen 57
6Waschmaschine und Trockner in Ankleide? 16
7Wäscheturm für Waschmaschine und Trockner gesucht 19
8Ideen zu Entwurf für Einfamilienhaus mit Keller - Seite 647
9Einfamilienhaus 220qm mit Keller auf 700qm Grundstück 41
10Grundrissplanung Bungalow mit Keller - 140qm - leichter Hang - Seite 290
11Grundrissplanung für Einfamilienhaus mit Keller auf Hanggrundstück 23
12Einfamilienhaus mit Keller und Doppelgarage 9,2x11m Grundriss-Plan optimieren 20
13Einfamilienhaus zwei Vollgeschosse, Pultdach, kein Keller 31
14Optimierungsbedarf? Einfamilienhaus mit 130 m² + Keller 26
15Einfamilienhaus Bauhausstil/Flachdach, 2 Vollgeschosse + Keller 23
16Grundriss Einfamilienhaus ca. 160m², Haupteingang im Keller, Nordhang 1700m² 22
17Werkplanung Einfamilienhaus 180qm Flachdach mit Keller & Doppelgarage 142
18Grundrissplanung für Einfamilienhaus mit Keller und Garage/Carport 21
19 2 Vollgeschosse, Durchgang Garage, Hauswirtschaftsraum unter Treppe - Seite 225
20Grundrissentwurf Stadtvilla mit Keller Verbesserungsvorschlag? - Seite 677

Oben