toxicmolotof
18/01/2014 19:30:27
- #1
नमस्ते सभी को,
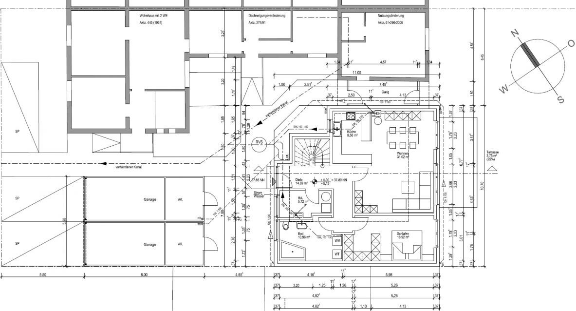
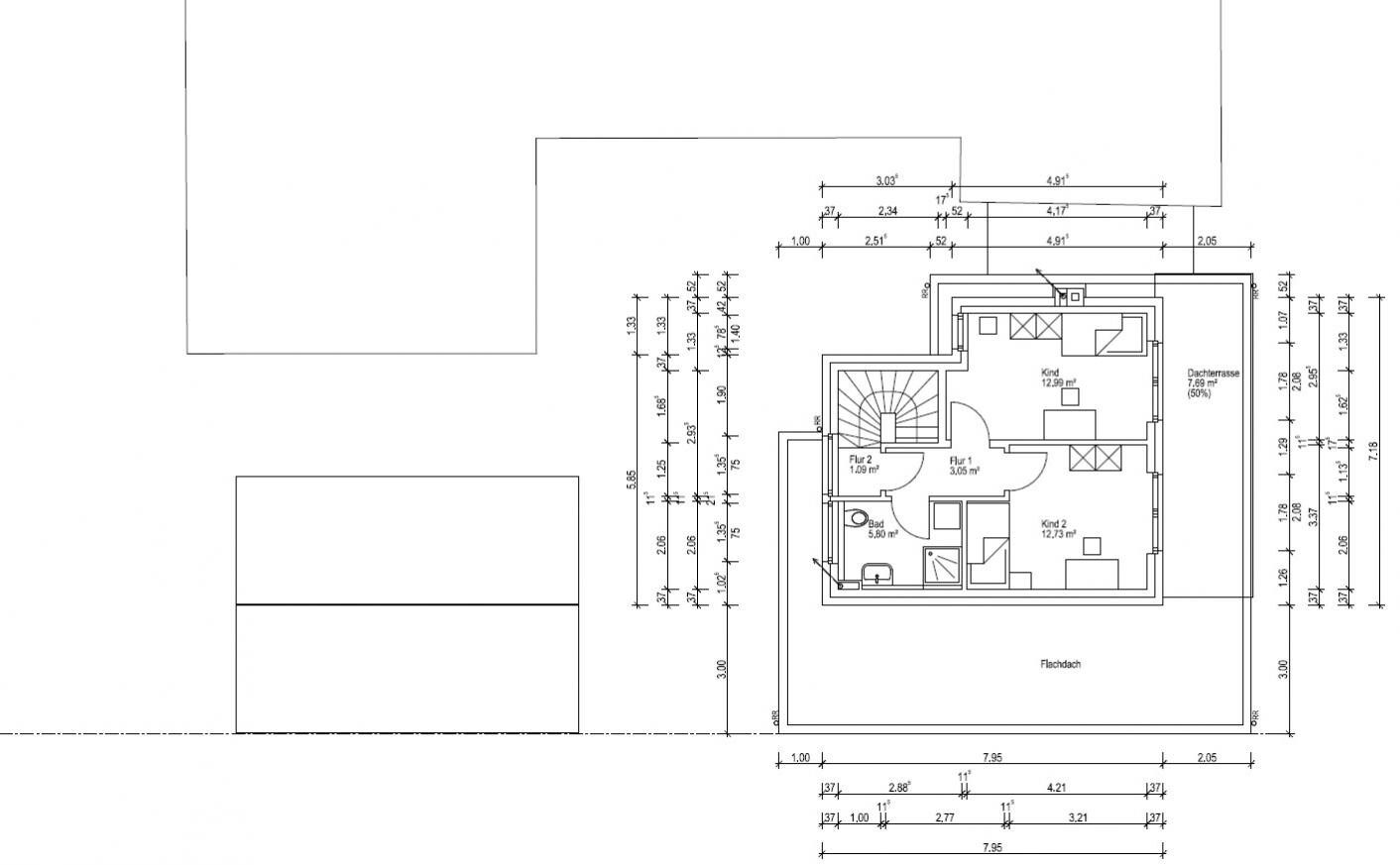
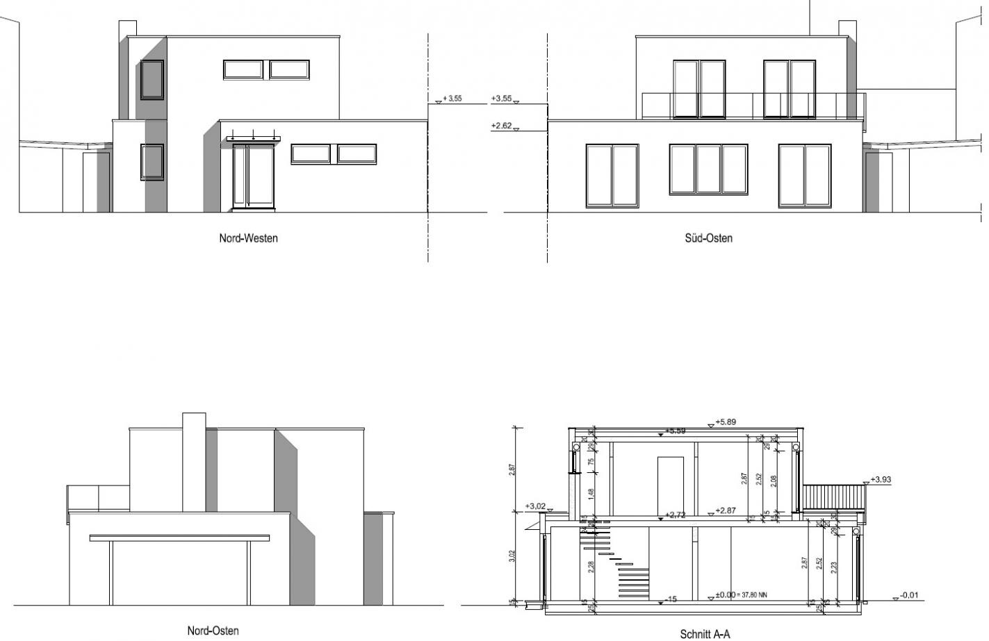
कुछ सप्ताह की छुट्टी के बाद अब हमारी योजना की वर्तमान स्थिति यहाँ है। इस दौरान हमने प्रारूप से निर्माण आवेदन योजना मोड में संक्रमण कर लिया है और वास्तव में, जब तक कुछ बिल्कुल त्रासदीपूर्ण बीच में न आए, हम शीघ्र ही निर्माण आवेदन जमा करना चाहते हैं।
क्या हुआ है:
क्या और कोई विचार, सुझाव या आलोचनाएँ हैं?



कुछ सप्ताह की छुट्टी के बाद अब हमारी योजना की वर्तमान स्थिति यहाँ है। इस दौरान हमने प्रारूप से निर्माण आवेदन योजना मोड में संक्रमण कर लिया है और वास्तव में, जब तक कुछ बिल्कुल त्रासदीपूर्ण बीच में न आए, हम शीघ्र ही निर्माण आवेदन जमा करना चाहते हैं।
क्या हुआ है:
[*]भोजन क्षेत्र में चिमनी की योजना बनाई गई।
[*]भवन के प्रथम तल में चिमनी का निर्माण अंदर से होगा, जबकि ऊपरी तल में यह बाहर जाएगा।
[*]बाथरूम / सिरेमिक को मोटे तौर पर वैसे ही रखा गया जैसे हम सोचते हैं।
[*]रसोई की योजना बनाई गई। (आरेख के विपरीत 1 मीटर के साथ चिमनी की ओर की बीच वाली दीवार को संक्षिप्त किया गया और उसके बाद काउंटर रखा गया।)
[*]हीटिंग / जल भंडारण की स्थिति निर्धारित की गई।
[*]पानी / गंदे पानी के पाइपरेखाओं के लिए रास्ते तय किए गए।
क्या और कोई विचार, सुझाव या आलोचनाएँ हैं?