Einfamilienhaus mit seitlichem Eingang -Grundrissdiskussion?

4,70 Stern(e) 3 Votes
Zuletzt aktualisiert 22.11.2025
Sie befinden sich auf der Seite 2 der Diskussion zum Thema: Einfamilienhaus mit seitlichem Eingang -Grundrissdiskussion?
>> Zum 1. Beitrag <<

T

torsan

Hallo Doc.Schnaggels,

> Wäre es eventuell eine Option den Eingang auf die Nordseite zu
> legen (mittig) und dann im Eingangsbereich eine zweimal ein Viertel gewendelte Treppe zu verbauen?

Das war unsere erste Idee. Problem hierbei ist, dass die Zufahrt von Süden ist und man dann einmal um das Haus herum muss.

Ich denke, ich werde mit dem Architekten noch mal in Klausur gehen!

Gruß, torsan
 
B

Bauexperte

Hallo Torsan,

habe gerade ein wenig Zeit und Lust

Ich finde die Wahl der Treppe unglücklich. Eine gerade Treppe wirkt - aus meiner subjektiven Sicht, "nur" bei einem eher quadratischen Grundriss; sie entsprechend "in Szene" gesetzt werden kann. Bei Deinem BV schränkt sie Dich dagegen in Deinen Möglichkeiten der Raumaufteilung arg ein ...

1. Küche fänd ich unten rechts besser, also im Südosten. Allerdings befürchte ich, dass der Raum wegen der Garderobe dann zu klein wird. Uns schwebt vor eine Schiebetür als Trennung einzubauen.
Warum "muß" eine Küche eigentlich immer in den Süden? Könnt Ihr alle die Wärme so gut ab; sehe ich im Übrigen auch ähnlich bei Schlafräumen

Ich würde die Küche in diesem Grundriss belassen, wo sie ist. Auch, wenn ihr keinen Essplatz in der Küche braucht, hat die Abgeschlossenheit des Kochbereichs doch seine unbestreitbaren Vorzüge. Außerdem hast Du - bei jetziger Lage - Vorteile bei den Verkehrswegen.

3. Ist die Trennung HZ und Hauswirtschaftsraum sinnvoll? Ich habe leider keine Idee wie groß eine Heizungsanlage (Luft-Wärme-Pumpe) ist und ob die Wand zwischen den Räumen eine tolle Sache ist.
Wenn überhaupt, würde ich eine Trennwand (Anlage) setzen und auf eine 2. Türe verzichten; ob eine Trennung überhaupt sinnvoll erscheint, ergibt sich erst, wenn der Wärmeerzeuger und dessen Dimensionierung bekannt ist. Aber - spiel mal gedanklich durch, wenn Du Vorräte durch die FH-Türe verräumen möchtest. Eine 2. Türe im Inneren zu öffnen, wäre nicht das, was ich mir unter kurzem Weg vorstellen würde.

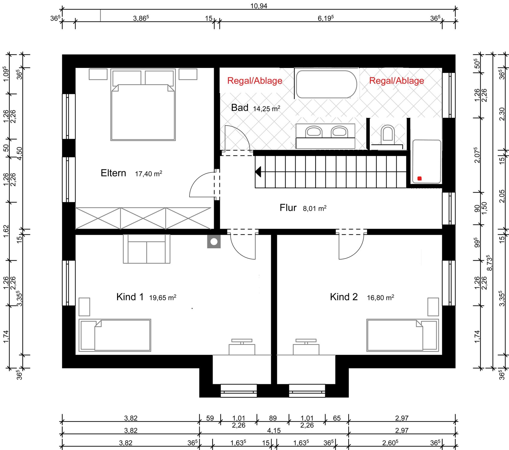
4. Badezimmer: Das ist im OG das einzige, dass mir direkt ins Auge springt. Was meint ihr, ist das mit der Dachschräge so machbar oder nervt die Schräge?
Das "kann" unglücklich werden. Ich habe den Abstell"Kasten"? kurzerhand entfernt und stattdessen die Dusche in diese Ecke gesetzt; sollte von den Abwasserleitungen mit dem EG korrespondieren. Dann die Badewanne mit dem Doppelwaschtisch getauscht; für die morgendliche Schönheitsreparatur sicher angenehmer und der Badewanne sollte der Drempel keinen nennenswerten Abbruch tun. Rechts und links neben die Wanne schöne Regale/Schränkchen und es sieht schon viel besser aus

Aber - ganz ehrlich? Ich würde mit einem leeren Blatt Papier noch mal von vorne beginnen ....


Grüße, Bauexperte

Grundriss Erdgeschoss: Küche links, Diele Mitte, Essen/Wohnen unten, HWR, WC oben rechts.


Grundriss mit Eltern, zwei Kinderzimmern, Flur und Bad.
 
D

Doc.Schnaggls

OK, die Zufahrt ist ein Argument, allerdings musst Du auch nach dem jetzigen Plan ums halbe Haus herum, da sollten die paar Meter mehr nicht ins Gewicht fallen.
 
N

nordanney

Warum "muß" eine Küche eigentlich immer in den Süden? Könnt Ihr alle die Wärme so gut ab; sehe ich im Übrigen auch ähnlich bei Schlafräumen

Ich würde die Küche in diesem Grundriss belassen, wo sie ist. Auch, wenn ihr keinen Essplatz in der Küche braucht, hat die Abgeschlossenheit des Kochbereichs doch seine unbestreitbaren Vorzüge. Außerdem hast Du - bei jetziger Lage - Vorteile bei den Verkehrswegen.
Nicht die Küche "muss" in den Süden, der Couchbereich ist m.E. besser im Westen aufgehoben. Dort sitze ich vielleicht mal am Nachmittag (morgens und mittags ist man(n) eh arbeiten) und lese ein Buch bei schönen Sonnenlicht
 
B

Bauexperte

Hallo,

Dort sitze ich vielleicht mal am Nachmittag (morgens und mittags ist man(n) eh arbeiten) und lese ein Buch bei schönen Sonnenlicht
Kann ich nicht mitreden, da lesen grundsätzlich nachts im Bett stattfindet; zu ganz seltenen Gelegenheiten mal nachmittags im Garten ... im Schatten

Grüße, Bauexperte
 
D

Doc.Schnaggls

Nicht die Küche "muss" in den Süden, der Couchbereich ist m.E. besser im Westen aufgehoben. Dort sitze ich vielleicht mal am Nachmittag (morgens und mittags ist man(n) eh arbeiten) und lese ein Buch bei schönen Sonnenlicht
Allerdings hat der Couchbereich im Westen auch oft den Pferdefuss, dass Fernsehen ohne Verdunkelung ab dem frühen Nachmittag bis Sonnenuntergang nicht möglich ist.

Hat alles seine Vor-und Nachteile...
 
Zuletzt aktualisiert 22.11.2025
Im Forum Grundrissplanung / Grundstücksplanung gibt es 2535 Themen mit insgesamt 87984 Beiträgen


Ähnliche Themen zu Einfamilienhaus mit seitlichem Eingang -Grundrissdiskussion?
Nr.ErgebnisBeiträge
1Gestaltung Grundriss. Was sind eure Meinungen / Vorschläge? 15
2Stadtvilla mit gerader Treppe, offene moderne Bauweise, 140m² 18
3Grundriss-Optimierung | Doppelhaushälfte am Hang mit 192m² Wohnfläche - Seite 1287
4Grundriss: Planung Türen Wohnraum + Speisekammer 17
5Grundriss Halboffene Küche mit großem Essbereich - Detailfragen - Seite 212
6Treppe im Flur, Grundriss steht eigentlich schon :o( 20
7Frage zu Grundriss, insbesondere Treppe 13
8Treppe Grundriss Planung, Auftritt und Unterzug 21
9Wie findet ihr diesen Grundriss? - Seite 211
10Meinungen zum Grundriss EG 10
11Eure Meinung zum Grundriss für das EG - Seite 528
12Unser Grundriss von 120qm auf 469qm Grundstück - Seite 1273
13Grundriss Einfamilienhaus mit Doppelgarage und Terrasse - Seite 219
14Eure Meinungen zu unserem Grundriss und Angebot - Seite 322
15Vorplanung mit dem Architekten - eigener Grundriss sinnvoll? 18
16Grundriss Einfamilienhaus. Bitte um Feedback bzw Ideen :-) - Seite 325
17Grundriss Neubau - Bitte um Feedback - Seite 536
18Meinungen f. Grundriss Einfamilienhaus ca. 160qm - Seite 429
19Feedback zu Grundriss Einfamilienhaus erwünscht 18
20Ideenfindung für Grundriss 120m2 Einfamilienhaus - Seite 212

Oben