ᐅ Einfamilienhaus mit Einliegerwohnung im Dachgeschoss - 162qm
Erstellt am: 02.04.20 21:09
A
allstar83A
allstar8302.04.20 21:09Hallo zusammen,
ich würde gerne auch unsere Planung zur Bewertung durch das Forum einstellen.
Im vergangenen Jahr hatte ich zur initialen Ideenfindung schon mal einen Eintrag hier erstellt.
Es wurde jedoch durch viele verschiedene Varianten meinerseits etwas undurchsichtig. Daher hier mal alles von Vorne.
Vielen Dank schon mal vorab.
Bebauungsplan/Einschränkungen
Größe des Grundstücks: 540qm
Hang: eben
Grundflächenzahl: 0,4
Geschossflächenzahl: ...
Baufenster, Baulinie und -grenze: Siehe Screenshot
Randbebauung:
Anzahl Stellplatz: 1,5
Geschossigkeit: 1,5 / 2WE
Dachform: Satteldach, 30-45 Grad
Stilrichtung: ...
Ausrichtung: Terrasse gen Südwest
Maximale Höhen/Begrenzungen: TH: 4,5m FH: 10m
weitere Vorgaben: Giebelrichtung, Fernwärme und Technikraum an Straße
Anforderungen der Bauherren
Stilrichtung, Dachform, Gebäudetyp
Keller, Geschosse: Kein Keller, 1,5 Geschosse
Anzahl der Personen, Alter: 3 (2xMitte 30 und knapp 2)
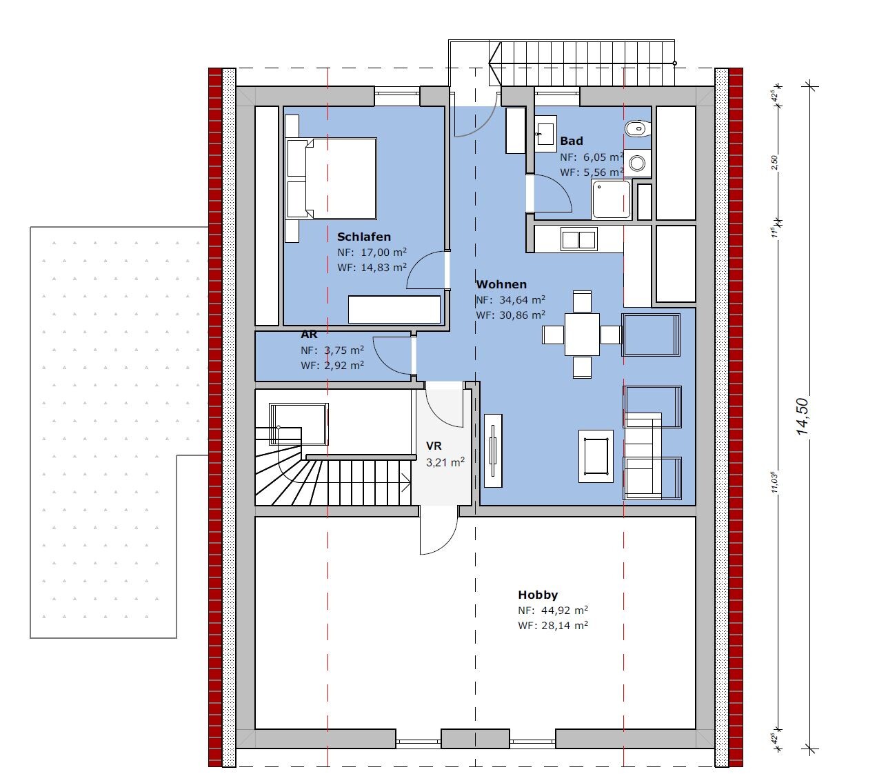
Raumbedarf im EG, OG:
Büro: Familiennutzung oder Homeoffice? Teils Homeoffice mittlerweile, kein explizites Büro notwendig
Schlafgäste pro Jahr: 5
offene oder geschlossene Architektur: mittel
konservativ oder moderne Bauweise: konservativ
offene Küche, Kochinsel: halboffen
Anzahl Essplätze: 1
Kamin: nein
Musik/Stereowand: nein
Balkon, Dachterrasse: Rücksprung im EG
Garage, Carport: Carport als Teil der Hauseingangsüberdachung und Fahrradgarage
Nutzgarten, Treibhaus: kleiner Garten, Spielwiese
weitere Wünsche/Besonderheiten/Tagesablauf, gern auch Begründungen, warum dieses oder das nicht sein soll:
Hausentwurf
Von wem stammt die Planung:
-Planer eines Bauunternehmens: Teils aus dem Netz, teils uns teils GU-Architekt
-Architekt: GU seitig
-Do-it-Yourself: wenig - ggf.. DG streichen
Was gefällt besonders? Warum? Kein Treppen im täglichen Leben
Was gefällt nicht? Warum? Eingangsbereich ggf.. bisschen zu klein
Preisschätzung lt Architekt/Planer: ~400k+- für KFW55 Haus
Persönliches Preislimit fürs Haus, inkl Ausstattung: 550k mit allem (Grundstück, Haus, Baunebenkosten etc.)
favorisierte Heiztechnik: Fernwärme + zentrale Kontrollierte-Wohnraumlüftung
Wenn Ihr verzichten müsst, auf welche Details/Ausbauten
-könnt Ihr verzichten: voller Ausbau als Einliegerwohnung, Außentreppe
-könnt Ihr nicht verzichten: Rücksprung, Speisekammer nahe Küche
Warum ist der Entwurf so geworden, wie er jetzt ist? ZB
Standardentwurf vom Planer? Nein - eher aus Gegebenheiten des Grundstücks, Bebauungsplan und aus Wünschen auf einer Ebene zu wohnen
Entsprechende/Welche Wünsche wurden vom Architekten umgesetzt? Er macht was wir wollen
Was macht ihn in Euren Augen besonders gut oder schlecht?
Was funktioniert eurer Meinung nach nicht?



ich würde gerne auch unsere Planung zur Bewertung durch das Forum einstellen.
Im vergangenen Jahr hatte ich zur initialen Ideenfindung schon mal einen Eintrag hier erstellt.
Es wurde jedoch durch viele verschiedene Varianten meinerseits etwas undurchsichtig. Daher hier mal alles von Vorne.
Vielen Dank schon mal vorab.
Bebauungsplan/Einschränkungen
Größe des Grundstücks: 540qm
Hang: eben
Grundflächenzahl: 0,4
Geschossflächenzahl: ...
Baufenster, Baulinie und -grenze: Siehe Screenshot
Randbebauung:
Anzahl Stellplatz: 1,5
Geschossigkeit: 1,5 / 2WE
Dachform: Satteldach, 30-45 Grad
Stilrichtung: ...
Ausrichtung: Terrasse gen Südwest
Maximale Höhen/Begrenzungen: TH: 4,5m FH: 10m
weitere Vorgaben: Giebelrichtung, Fernwärme und Technikraum an Straße
Anforderungen der Bauherren
Stilrichtung, Dachform, Gebäudetyp
Keller, Geschosse: Kein Keller, 1,5 Geschosse
Anzahl der Personen, Alter: 3 (2xMitte 30 und knapp 2)
Raumbedarf im EG, OG:
Büro: Familiennutzung oder Homeoffice? Teils Homeoffice mittlerweile, kein explizites Büro notwendig
Schlafgäste pro Jahr: 5
offene oder geschlossene Architektur: mittel
konservativ oder moderne Bauweise: konservativ
offene Küche, Kochinsel: halboffen
Anzahl Essplätze: 1
Kamin: nein
Musik/Stereowand: nein
Balkon, Dachterrasse: Rücksprung im EG
Garage, Carport: Carport als Teil der Hauseingangsüberdachung und Fahrradgarage
Nutzgarten, Treibhaus: kleiner Garten, Spielwiese
weitere Wünsche/Besonderheiten/Tagesablauf, gern auch Begründungen, warum dieses oder das nicht sein soll:
- Wir wollen auf einer Ebene wohnen und schlafen
- Hobby-, Büroersatz bzw. Lagerraum im DG statt Keller
- Durch mögliches 2x Abgreifen der KFW-Zuschüsse (=36k) könnte der Dachausbau als Einliegerwohnung in Frage kommen - da die Räume eh da sind. Ist jedoch eine finale Kostenfrage ob sich das lohnt.
- Carport mit Überdachung zum Eingang hin
- Wichtig wäre uns eine Fahrradgarage
- Bauplatz in BW
Hausentwurf
Von wem stammt die Planung:
-Planer eines Bauunternehmens: Teils aus dem Netz, teils uns teils GU-Architekt
-Architekt: GU seitig
-Do-it-Yourself: wenig - ggf.. DG streichen
Was gefällt besonders? Warum? Kein Treppen im täglichen Leben
Was gefällt nicht? Warum? Eingangsbereich ggf.. bisschen zu klein
Preisschätzung lt Architekt/Planer: ~400k+- für KFW55 Haus
Persönliches Preislimit fürs Haus, inkl Ausstattung: 550k mit allem (Grundstück, Haus, Baunebenkosten etc.)
favorisierte Heiztechnik: Fernwärme + zentrale Kontrollierte-Wohnraumlüftung
Wenn Ihr verzichten müsst, auf welche Details/Ausbauten
-könnt Ihr verzichten: voller Ausbau als Einliegerwohnung, Außentreppe
-könnt Ihr nicht verzichten: Rücksprung, Speisekammer nahe Küche
Warum ist der Entwurf so geworden, wie er jetzt ist? ZB
Standardentwurf vom Planer? Nein - eher aus Gegebenheiten des Grundstücks, Bebauungsplan und aus Wünschen auf einer Ebene zu wohnen
Entsprechende/Welche Wünsche wurden vom Architekten umgesetzt? Er macht was wir wollen
Was macht ihn in Euren Augen besonders gut oder schlecht?
- Die Ausrichtung gen Garten mit nachfolgendem Grünstreifen finde ich persönlich gut
- Ein paar Kompromisse gibt es schon
- Hauswirtschaftsraum/Technikraum soll ein reiner Technikraum sein kein Hauswirtschaftsraum (für Fernwärme, Strom, Waschmaschine, Kontrollierte-Wohnraumlüftung etc.)
- Möbelgrößen, Möbelausrichtung und Türanschläge passen teilweise noch nicht
Was funktioniert eurer Meinung nach nicht?
Anzeige
Hallo allstar83,
schau mal hier: Einfamilienhaus mit Einliegerwohnung im Dachgeschoss - 162qm. Da wird jeder fündig!
schau mal hier: Einfamilienhaus mit Einliegerwohnung im Dachgeschoss - 162qm. Da wird jeder fündig!
Ähnliche Themen