W
Mein Konto
Hausbau - Ratgeber
Bauherrenhilfe
- Bauherrenhilfe vor Vertragsabschluss
-- Warum einen unabhängigen Baubetreuer?
-- Vertragsgrundlagen
-- Bausumme
-- Zahlungsplan zur Kostenkontrolle
-- Pflichten des Bauherren vor Vertragsabschluss
-- Unterlagen beim Hausbau vor Vertragsabschluss
- Bauherrenhilfe nach Vertragsabschluss
-- Bauantrag bei Behörden
-- Bau-Genehmigungsverfahren bei Baubehörden
-- Bauspezifische Versicherungen
-- Bauzeitenplan
-- Baubeginn - die Letzten Pflichten der Bauherrschaft
- Bauherrenhilfe während der Bauzeit
- Gewährleistungsansprüche
- Bauabnahme
Baufinanzierung
- Baufinanzierung - Allgemeine Fragen
- Kreditarten
- Kredit-Konditionen
- Bausparen
- Staatliche Förderungen
- Verkehrswert
- Haushaltsrechnung und Bonität
Hausbau Planung
- Haustypen
- Hausbau Vorbereitungsarbeiten
- Das Baugrundstück
- Baugrund beim Hausbau
- Baurecht
- Gebäudeschutz
- Erdarbeiten und Wasserhaltung
- Stützmauern
- Einfriedung
- Untergeschoss
- Kanalisation
- Tragende Elemente
- Nichttragende Innenwände
- Fundation / Fundament
- Deckenkonstruktionen
- Dächer
- Kaminanlagen
- Treppen Rampen Leitern
- Dachbeläge und Spengler
- Fenster
- Sonnen und Wetterschutz
- Aussenputze
- Einbauten, Küchen, Türen
- Bodenbeläge und Unterlagsböden
- Parkett
- Gips, Wand, Decke
Haustechnik und Energie
- Heiztechnik
- Lüftung und Klimatechnik
- Sanitärtechnik
- Elektrotechnik
- Erneuerbare Energie
Whirlpools / Jacuzzi
Hausbau Magazin
- Baufinanzierung trotz Krise?
- Das Blockhaus
- Moderne Dämmstoffe im Vergleich
- Erker Vor- und Nachteile
- Glasflächen beim Hausbau
- Günstig ein Haus Bauen
- Mediterraner Hausbaustil
- Mehrgenerationenhaus
- Moderne Architektur
- Gartengestaltung leicht gemacht
- Traditioneller Ziegelbau
- Villa als höchster Traum
- Im Eigenheim Ruhestand geniessen
- Altbau sanieren
- Kauf einer Holzgarage
- Immobilienmakler
- Arbeitshandschuhe für den Winter
- Zuhause verschönern
- Outdoor-Plissees
- Schlafzimmer planen
- Terrassenüberdachung
- Wohngebäudeversicherung
- Zaunarten und Eigenschaften
- Hauseingang gestalten
- Der perfekte Grundriss
- Sparsamer heizen im Altbau
- Einfamilienhaus smart finanzieren
- Planung einer PV-Anlage
- Neues Haus
- Immobilienfinanzierung
- Installation einer Photovoltaikanlage
- Asbest erkennen und entfernen
- Sauna im Fokus - Wellness zuhause
- Erfolgreich vermieten
- Die perfekte Winterbekleidung
- Das Niedrigenergiehaus
- Der April und seine Stürme
- Architektonische Vielfalt
- Ökologisch und nachhaltig bauen
- Das perfekte Schlafzimmer
- Nachhaltige Energieversorgung
- Zukunftsorientiert bauen
- Nachhaltigkeit beim Hausbau
- Tiny Houses
- Wärmepumpen als nachhaltige Heizvariante
- Maßgeschneiderten Kleiderschrank
- Der richtige Baukredit
- Ratgeber für erfolgreichen Hausbau
- Haus als Altersvorsorge
Do-it-yourself Anleitungen
- Verlegeanleitung für Bodenbeläge und Parkett
- Bodenbeläge und Parkett reinigen und pflegen
- Malerarbeiten am Haus
- Garten Tipps
- Umzug und Reinigung

ᐅ Einfamilienhaus mit Einliegerwohnung auf 450qm Hanggrundstück


Erstellt am: 09.02.22 11:44

Kristijan09.02.22 11:44
Hallo in die Runde,

ich war hier bisher ausschließlich Mitleser und möchte nun unser eigens Hauskonzept zur Diskussion stellen. Dabei erhoffe ich mir schonungslose Kritik und eure Ideen und Anregungen.

Wir sind eine Patchworkfamilie mit vier Kindern (drei sind immer da) und planen den Bau eines Einfamilienhauses mit Einliegerwohnung in NRW. Wir haben Anfang letzten Jahres ein Grundstück mit Hanglage in einem klassischen Neubaugebiet erworben und in der Zwischenzeit mit einer Architektin ein Hauskonzept erarbeitet. Hierbei haben wir in einen denkbar einfachen Baukörper (vier Wände und ein Dach) einem effizienten Grundriss entwickelt. Die Planungen haben wir an mehrere Fertighausunternehmen mit der Bitte um eine Kostenkalkulation in der Hoffnung, dass das Budget noch ein "Wachsen des Hauses" zulässt, weitergegeben. Jetzt sitzen wir hier vor unseren Angeboten und müssen feststellen, dass unser denkbar kleinster Grundriss schon unser Budget sprengt. Dieses liegt bei ca. 550.000 Euro für das Haus inklusive Baunebenkosten (ohne Grundstück). Mit der Einliegerwohnung hatten wir uns die doppelte Kfw-Förderung in der Klasse Kfw 40 EE in Höhe von 67500 Euro zur Aufstockung des Budgets erhofft. Aber sei es drum.

Möglicherweise waren wir bei der vorläufigen Kostenkalkulation ein wenig blauäugig. Jedenfalls überdenken wir gerade das Konzept und erwägen den Kellerverzicht.

Und jetzt bitte feuerfrei für schonungslose Kritik und ungeschminkte Wahrheiten. 🙂



Bebauungsplan/Einschränkungen

Größe des Grundstücks 450qm

Hang ja, Nordhang (von der Straße nach Süd-Südwest) mit ca. 1,5m Steigung innerhalb des Baufensters (ein Meter innerhalb der geplanten Grundfläche) ansteigend

Grundflächenzahl ? Der Bebauungsplan gibt da nichts her

Geschossflächenzahl 0,4

Baufenster, Baulinie und -grenze 19,5m breit (Straßenseite), im hinteren Bereich 17m breit und 14m tief

Randbebauung ja

Anzahl Stellplatz 2 für die Hauptwohnung und 1 für die Einliegerwohnung

Geschossigkeit 2,5

Dachform Satteldach

Stilrichtung klassisch

Ausrichtung Firstrichtung West-Nordwest - Ost-Südost

Maximale Höhen/Begrenzungen max. Firsthöhe 9,5m ab Oberkante EG (dieses darf max. 0,5m über dem Bezugspunkt der Straße liegen)

weitere Vorgaben Abstandsflächen seitlich 3m, zur Straße 3,5m


Anforderungen der Bauherren

Stilrichtung, Gebäudetyp einfacher, ökonomischer Baukörper mit Satteldach

Keller, Geschosse Kellergeschoss mit Einliegerwohnung, insgesamt 2,5 Geschosse

Anzahl der Personen, Alter 5-6 Personen Haushalt: Eltern 38 und 36, vier Kinder 7, 4, 2x2, die Familienplanung ist ein wenig übers Ziel hinaus geschossen und abgeschlossen 🙂 und Oma in der Kellerwohnung

Raumbedarf im EG, OG ca. 140-150qm:Küche, Wohnzimmer, 1 Schlafzimmer, 3 Kinderzimmer, 1 Gäste/ Arbeitszimmer/ Patchwork, 2 Bäder

Hauswirtschaftsraum im Keller

Büro: 1 variables Zimmer ist erforderlich

Schlafgäste pro Jahr 10

offene o. geschlossene Architektur die Form folgt der Funktion

konservativ o. moderne Bauweise hm, was ist hiermit genau gemeint?

offene Küche, Kochinsel offene Küche zum Essplatz (hier auch gerne eine Kochinsel), jedoch geschlossen zum Wohnzimmer hin

Anzahl Essplätze 6-8

Kamin nein

Musik/Stereowand TV im Wohnzimmer

Balkon, Dachterrasse überdachte Terrasse zum Garten mit Durchreichefenster von der Küche

Garage, Carport Carport mit Gründach und zusätzlichem Abstellraum wäre toll

Nutzgarten, Treibhaus kleiner Nutzgarten an der Grundstücksgrenze


Hausentwurf

Von wem stammt die Planung: freie Architektin, die mit einem Fertighausunternehmen zusammen arbeitet und viel DIY

Was gefällt besonders? Warum? effiziente Nutzung des Raums. Trotz Kompaktheit sind alle Wünsche hinsichtlich des Raumbedarfs insbesondere der Raumanzahl erfüllt

Was gefällt nicht? Warum? insbesondere das EG könnte großzügiger sein, Keller bzw. Abstellflächen könnten größer sein

Preisschätzung lt Architekt: keine

Preislimit inkl. Ausstattung: 550000 Euro plus Kfw falls da noch was kommt

favorisierte Heiztechnik: Luft-Wasser-Wärmepumpe


Wenn Ihr verzichten müsst, auf welche Details/Ausbauten

-könnt Ihr verzichten: schweren Herzens auf den separaten Elternbereich

ebenfalls steht die Einliegerwohnung zur Diskussion

Die Schiebetüren im EG sind auf einen Absprachefehler zurückzuführen und können weg

-könnt Ihr nicht verzichten: Anzahl der Räume


Warum ist der Entwurf so geworden, wie er jetzt ist?

Den Entwurf haben wir grundsätzlich in Eigenregie erstellt. Hier und da sind dann noch seitens der Architektin Optimierungen vorgenommen worden. Unser Hauptaugenmerk war die Vereinbarkeit aller Raumwünsche innerhalb eines kompakten Grundrisses auf einem kleinen Grundstück. Darüber hinaus wollten wir als Eltern von vier Kindern unser eigenes kleines Reich.


Was ist die wichtigste/grundlegende Frage zum Grundriss in 130 Zeichen zusammengefasst?

Scheitert unser Hauskonzept an unseren Budgetvorstellungen? Was würdet ihr anders machen und warum?



Grundriss Erdgeschoss: Schlafen, Ankleide, Bad, WC, Wohnen, Küche/Essen, Terrasse

Grundriss Dachgeschoss: Treppe im Zentrum, mehrere Zimmer, Bad, Wohnbereich, Balkon.

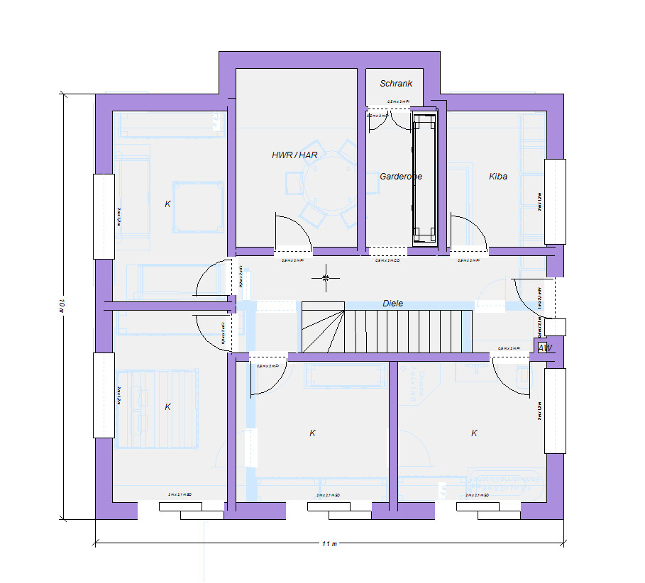
Grundriss Kellergeschoss: Schlafen, Essen/Wohnen, Diele, Bad, Haustechnik, Carport

Nordansicht eines zweigeschossigen Hauses mit horizontaler Verkleidung, Fensterzeile, Eingang und Garage rechts

Ostansicht eines dreigeschossigen Hauses mit Satteldach, Holzverkleidung und Fenstern.

Zweigeschossiges Haus mit Holzverkleidung, Dach und Fenstern, Südansicht

Westansicht eines zweistöckigen Hauses mit Satteldach, Fenstern, Tür und Hanglage.

Stadtplanabschnitt mit pinken Bauflächen, blaue Umrisse, gelbe Straßen, grüne Wege.

Schnitt A-A durch ein mehrstöckiges Haus mit Dachstuhl; Räume: Schlafen, Essen/Wohnen, Bad.

Lageplan von Parzellen an der Planstraße; blau markierte Grenzlinie durch Grundstück 961-962.
Hausbautraum2009.02.22 12:11
Hallo,

wie hoch sind denn die ersten Angebote?
Ich kann nicht einschätzen, wie viel ihr streichen müsst.

Luxus finde ich das Elternbad neben dem Gäste-WC. Da könnte man eine Dusche ins Gäste-WC planen und evtl kriegt man sogar 2 Türen rein, sodass es vom Schlafzimmer zugänglich ist.
Spart vielleicht 10.000€.

Dann könnte man die Ankleide noch streichen und stattdessen kommt der Technikraum ins EG.
So könnte der ganze Keller gestrichen werden.
Jetzt aber ja die Frage, was mit der Oma ist?
Dazu müsstest du mehr erklären.
Muss/Soll/Kann sie mit einziehen?
Bringt sie Eigenkapital mit oder zahlt Miete?
Tamstar09.02.22 12:22
Wenn ihr in die Kellerwohnung wandert (eigenes Reich ist für mich absolut nachvollziehbar), weil Oma gar nicht unbedingt mit muss (seniorengerecht sieht es sowieso nicht aus, alles sehr gestopft) und das Nicht-Dauer-Kind ins EG zieht, kann man den Grundriss doch noch ein wenig eindampfen, habt ihr das versucht?
Das Vollbad im EG könnte dadurch auch komplett entfallen, Badewanne kommt dann in das sowieso ziemlich leere Kinderbad.
Kristijan09.02.22 12:45
Schon mal vielen Dank für die Anregungen.


Ich denke, wir haben im mittleren Preissegment der Anbieterbewegt. Unsere Angebote lagen im Bereich 520000-550000Euro ohne Erdarbeiten, Außenanlagen, Hausanschlusskosten, Carport, Terrasse, usw. Dann gab es noch ein paar Ausreißer nach oben.
Der grobe Plan ist, dass die Oma in die Einliegerwohnung einzieht und hier auch Miete zahlt. Hiermit ließen sich wohl die monatlichen Nebenkosten decken. Wir haben den Grundriss der Einliegerwohnung jedoch für einen beliebigen Mieter geplant, so dass es keine gegenseitigen Verpflichtungen/ Abhängigkeiten zwischen der Oma und uns gibt falls dieses Projekt "Oma im Haus" doch noch scheitern sollte.


interessanter Gedanke. Das plane ich bei Gelegenheit mal nach.
Wobei wir auch im Hinterkopf haben, dass die Mieteinnahmen der Einliegerwohnung auch ein höheres Gesamtvolumen bringen und sich somit die Mehrkosten der Wohnung fast selbst tragen.
Tamstar09.02.22 12:52
Kristijan schrieb:

Wobei wir auch im Hinterkopf haben, dass die Mieteinnahmen der Einliegerwohnung auch ein höheres Gesamtvolumen bringen und sich somit die Mehrkosten der Wohnung fast selbst tragen.

Wenn du im Forum querliest, sollte dir dieser Zahn vom einfachen Geld durch Einliegerwohnung schnell gezogen werden können 😉
Kristijan09.02.22 13:13
Tamstar schrieb:

Wenn du im Forum querliest, sollte dir dieser Zahn vom einfachen Geld durch Einliegerwohnung schnell gezogen werden können 😉

In meiner Milchmädchenrechnung haben die geschätzten 350 Euro Kaltmiete bei einem angenommenen Zinssatz von 2 % und einer ebenso hohen Tilgung ca. 100000 Euro zusätzliches Volumen generiert. Dies entspräche in etwa den Ausbaukosten des Kellergeschosses. Insofern bliebe die monatliche Belastung unter der Voraussetzung, dass mit einem Kellergeschoss plant ungefähr gleich. Anders sieht die Rechnung meiner Ansicht nach aus, wenn man auf den Keller verzichtete und auf Bodenplatte bauen würde. Dann bräuchte ich aber bei meinem Grundriss teure Kellerersatzräume und der Vorschlag von Hausbautraum20 mit dem Technikraum im EG könnte die Lösung sein.
Fraglich ist, ob unser Grundstück den Bau mit Bodenplatte hergibt. Ich befürchte, dass der Kostenvorteil der Bodenplatte durch die zusätzlichen Kosten des Garten-Landschaftsbauers aufgefressen werden könnten.
gäste-wceinliegerwohnungkellergeschossgrundrissgrundstückküchenutzgartenhauskonzeptarchitektinkfw