ᐅ Einfamilienhaus mit Einliegerwohnung auf 450qm Hanggrundstück
Erstellt am: 09.02.22 11:44
K
KristijanK
Kristijan09.02.22 11:44Hallo in die Runde,
ich war hier bisher ausschließlich Mitleser und möchte nun unser eigens Hauskonzept zur Diskussion stellen. Dabei erhoffe ich mir schonungslose Kritik und eure Ideen und Anregungen.
Wir sind eine Patchworkfamilie mit vier Kindern (drei sind immer da) und planen den Bau eines Einfamilienhauses mit Einliegerwohnung in NRW. Wir haben Anfang letzten Jahres ein Grundstück mit Hanglage in einem klassischen Neubaugebiet erworben und in der Zwischenzeit mit einer Architektin ein Hauskonzept erarbeitet. Hierbei haben wir in einen denkbar einfachen Baukörper (vier Wände und ein Dach) einem effizienten Grundriss entwickelt. Die Planungen haben wir an mehrere Fertighausunternehmen mit der Bitte um eine Kostenkalkulation in der Hoffnung, dass das Budget noch ein "Wachsen des Hauses" zulässt, weitergegeben. Jetzt sitzen wir hier vor unseren Angeboten und müssen feststellen, dass unser denkbar kleinster Grundriss schon unser Budget sprengt. Dieses liegt bei ca. 550.000 Euro für das Haus inklusive Baunebenkosten (ohne Grundstück). Mit der Einliegerwohnung hatten wir uns die doppelte Kfw-Förderung in der Klasse Kfw 40 EE in Höhe von 67500 Euro zur Aufstockung des Budgets erhofft. Aber sei es drum.
Möglicherweise waren wir bei der vorläufigen Kostenkalkulation ein wenig blauäugig. Jedenfalls überdenken wir gerade das Konzept und erwägen den Kellerverzicht.
Und jetzt bitte feuerfrei für schonungslose Kritik und ungeschminkte Wahrheiten. 🙂
Bebauungsplan/Einschränkungen
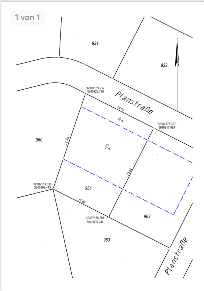
Größe des Grundstücks 450qm
Hang ja, Nordhang (von der Straße nach Süd-Südwest) mit ca. 1,5m Steigung innerhalb des Baufensters (ein Meter innerhalb der geplanten Grundfläche) ansteigend
Grundflächenzahl ? Der Bebauungsplan gibt da nichts her
Geschossflächenzahl 0,4
Baufenster, Baulinie und -grenze 19,5m breit (Straßenseite), im hinteren Bereich 17m breit und 14m tief
Randbebauung ja
Anzahl Stellplatz 2 für die Hauptwohnung und 1 für die Einliegerwohnung
Geschossigkeit 2,5
Dachform Satteldach
Stilrichtung klassisch
Ausrichtung Firstrichtung West-Nordwest - Ost-Südost
Maximale Höhen/Begrenzungen max. Firsthöhe 9,5m ab Oberkante EG (dieses darf max. 0,5m über dem Bezugspunkt der Straße liegen)
weitere Vorgaben Abstandsflächen seitlich 3m, zur Straße 3,5m
Anforderungen der Bauherren
Stilrichtung, Gebäudetyp einfacher, ökonomischer Baukörper mit Satteldach
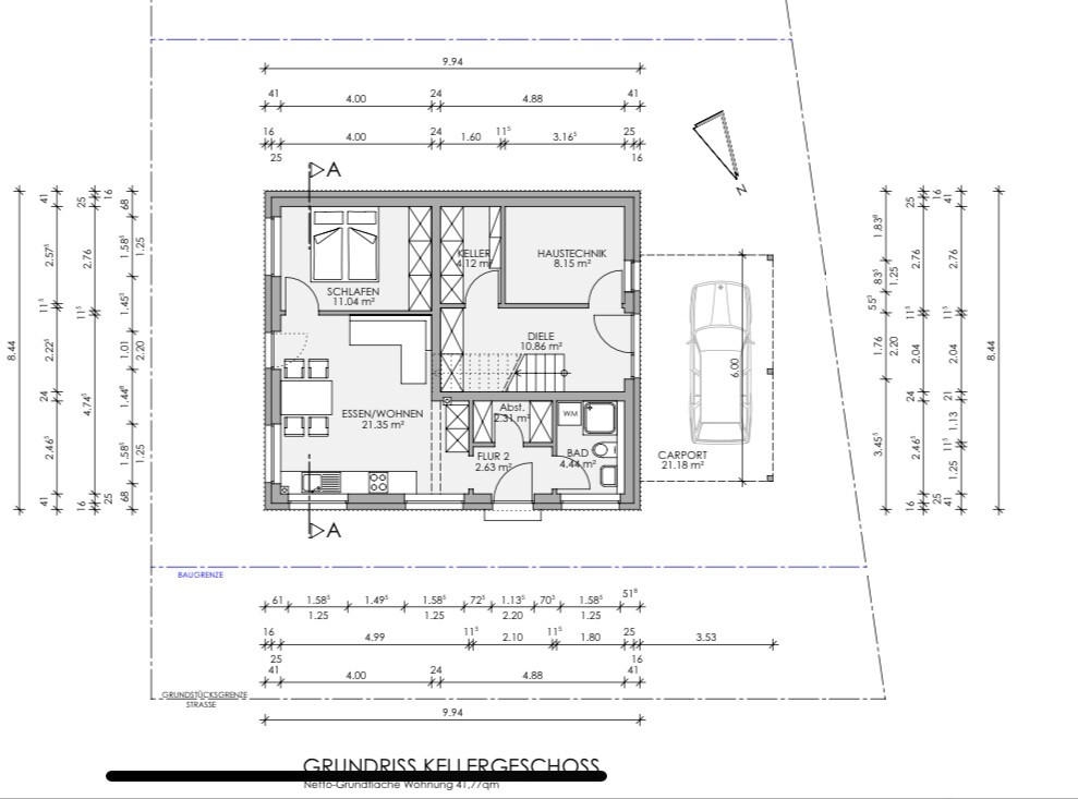
Keller, Geschosse Kellergeschoss mit Einliegerwohnung, insgesamt 2,5 Geschosse
Anzahl der Personen, Alter 5-6 Personen Haushalt: Eltern 38 und 36, vier Kinder 7, 4, 2x2, die Familienplanung ist ein wenig übers Ziel hinaus geschossen und abgeschlossen 🙂 und Oma in der Kellerwohnung
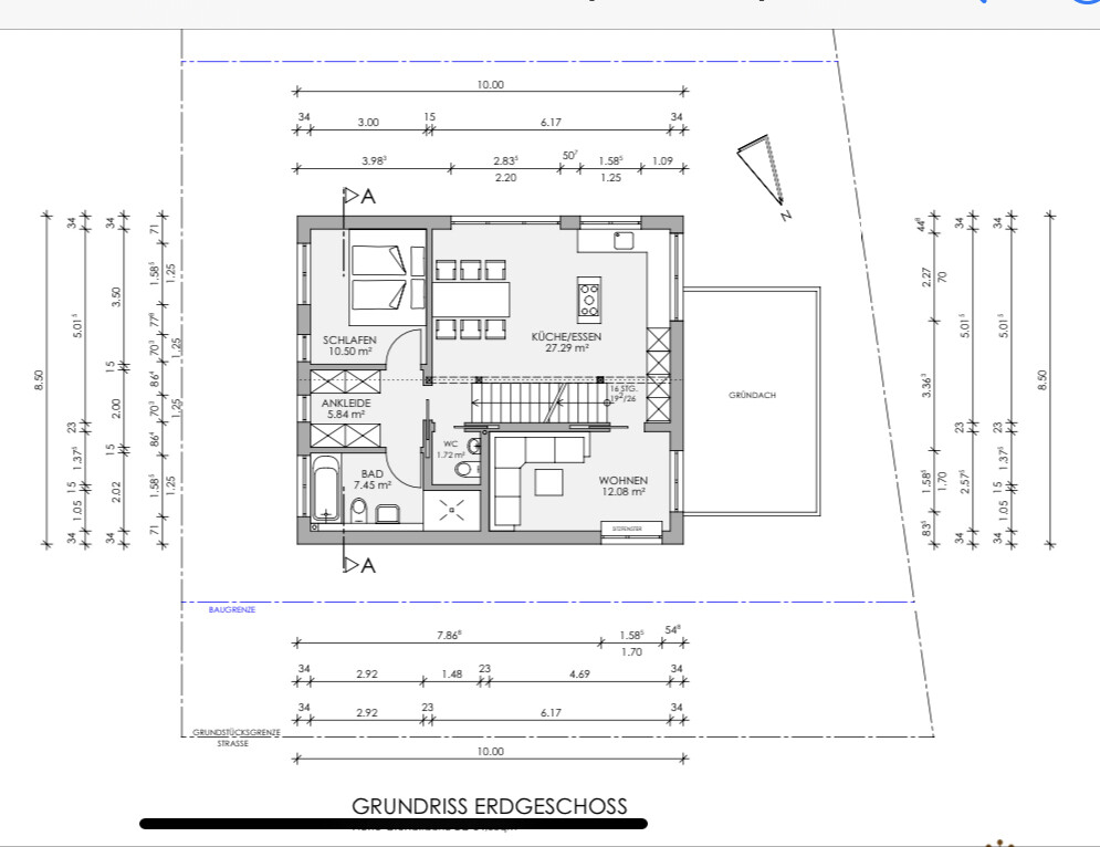
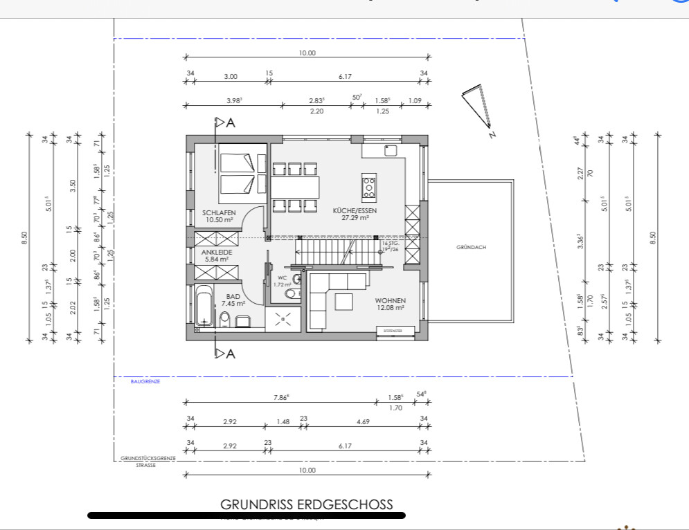
Raumbedarf im EG, OG ca. 140-150qm:Küche, Wohnzimmer, 1 Schlafzimmer, 3 Kinderzimmer, 1 Gäste/ Arbeitszimmer/ Patchwork, 2 Bäder
Hauswirtschaftsraum im Keller
Büro: 1 variables Zimmer ist erforderlich
Schlafgäste pro Jahr 10
offene o. geschlossene Architektur die Form folgt der Funktion
konservativ o. moderne Bauweise hm, was ist hiermit genau gemeint?
offene Küche, Kochinsel offene Küche zum Essplatz (hier auch gerne eine Kochinsel), jedoch geschlossen zum Wohnzimmer hin
Anzahl Essplätze 6-8
Kamin nein
Musik/Stereowand TV im Wohnzimmer
Balkon, Dachterrasse überdachte Terrasse zum Garten mit Durchreichefenster von der Küche
Garage, Carport Carport mit Gründach und zusätzlichem Abstellraum wäre toll
Nutzgarten, Treibhaus kleiner Nutzgarten an der Grundstücksgrenze
Hausentwurf
Von wem stammt die Planung: freie Architektin, die mit einem Fertighausunternehmen zusammen arbeitet und viel DIY
Was gefällt besonders? Warum? effiziente Nutzung des Raums. Trotz Kompaktheit sind alle Wünsche hinsichtlich des Raumbedarfs insbesondere der Raumanzahl erfüllt
Was gefällt nicht? Warum? insbesondere das EG könnte großzügiger sein, Keller bzw. Abstellflächen könnten größer sein
Preisschätzung lt Architekt: keine
Preislimit inkl. Ausstattung: 550000 Euro plus Kfw falls da noch was kommt
favorisierte Heiztechnik: Luft-Wasser-Wärmepumpe
Wenn Ihr verzichten müsst, auf welche Details/Ausbauten
-könnt Ihr verzichten: schweren Herzens auf den separaten Elternbereich
ebenfalls steht die Einliegerwohnung zur Diskussion
Die Schiebetüren im EG sind auf einen Absprachefehler zurückzuführen und können weg
-könnt Ihr nicht verzichten: Anzahl der Räume
Warum ist der Entwurf so geworden, wie er jetzt ist?
Den Entwurf haben wir grundsätzlich in Eigenregie erstellt. Hier und da sind dann noch seitens der Architektin Optimierungen vorgenommen worden. Unser Hauptaugenmerk war die Vereinbarkeit aller Raumwünsche innerhalb eines kompakten Grundrisses auf einem kleinen Grundstück. Darüber hinaus wollten wir als Eltern von vier Kindern unser eigenes kleines Reich.
Was ist die wichtigste/grundlegende Frage zum Grundriss in 130 Zeichen zusammengefasst?
Scheitert unser Hauskonzept an unseren Budgetvorstellungen? Was würdet ihr anders machen und warum?










ich war hier bisher ausschließlich Mitleser und möchte nun unser eigens Hauskonzept zur Diskussion stellen. Dabei erhoffe ich mir schonungslose Kritik und eure Ideen und Anregungen.
Wir sind eine Patchworkfamilie mit vier Kindern (drei sind immer da) und planen den Bau eines Einfamilienhauses mit Einliegerwohnung in NRW. Wir haben Anfang letzten Jahres ein Grundstück mit Hanglage in einem klassischen Neubaugebiet erworben und in der Zwischenzeit mit einer Architektin ein Hauskonzept erarbeitet. Hierbei haben wir in einen denkbar einfachen Baukörper (vier Wände und ein Dach) einem effizienten Grundriss entwickelt. Die Planungen haben wir an mehrere Fertighausunternehmen mit der Bitte um eine Kostenkalkulation in der Hoffnung, dass das Budget noch ein "Wachsen des Hauses" zulässt, weitergegeben. Jetzt sitzen wir hier vor unseren Angeboten und müssen feststellen, dass unser denkbar kleinster Grundriss schon unser Budget sprengt. Dieses liegt bei ca. 550.000 Euro für das Haus inklusive Baunebenkosten (ohne Grundstück). Mit der Einliegerwohnung hatten wir uns die doppelte Kfw-Förderung in der Klasse Kfw 40 EE in Höhe von 67500 Euro zur Aufstockung des Budgets erhofft. Aber sei es drum.
Möglicherweise waren wir bei der vorläufigen Kostenkalkulation ein wenig blauäugig. Jedenfalls überdenken wir gerade das Konzept und erwägen den Kellerverzicht.
Und jetzt bitte feuerfrei für schonungslose Kritik und ungeschminkte Wahrheiten. 🙂
Bebauungsplan/Einschränkungen
Größe des Grundstücks 450qm
Hang ja, Nordhang (von der Straße nach Süd-Südwest) mit ca. 1,5m Steigung innerhalb des Baufensters (ein Meter innerhalb der geplanten Grundfläche) ansteigend
Grundflächenzahl ? Der Bebauungsplan gibt da nichts her
Geschossflächenzahl 0,4
Baufenster, Baulinie und -grenze 19,5m breit (Straßenseite), im hinteren Bereich 17m breit und 14m tief
Randbebauung ja
Anzahl Stellplatz 2 für die Hauptwohnung und 1 für die Einliegerwohnung
Geschossigkeit 2,5
Dachform Satteldach
Stilrichtung klassisch
Ausrichtung Firstrichtung West-Nordwest - Ost-Südost
Maximale Höhen/Begrenzungen max. Firsthöhe 9,5m ab Oberkante EG (dieses darf max. 0,5m über dem Bezugspunkt der Straße liegen)
weitere Vorgaben Abstandsflächen seitlich 3m, zur Straße 3,5m
Anforderungen der Bauherren
Stilrichtung, Gebäudetyp einfacher, ökonomischer Baukörper mit Satteldach
Keller, Geschosse Kellergeschoss mit Einliegerwohnung, insgesamt 2,5 Geschosse
Anzahl der Personen, Alter 5-6 Personen Haushalt: Eltern 38 und 36, vier Kinder 7, 4, 2x2, die Familienplanung ist ein wenig übers Ziel hinaus geschossen und abgeschlossen 🙂 und Oma in der Kellerwohnung
Raumbedarf im EG, OG ca. 140-150qm:Küche, Wohnzimmer, 1 Schlafzimmer, 3 Kinderzimmer, 1 Gäste/ Arbeitszimmer/ Patchwork, 2 Bäder
Hauswirtschaftsraum im Keller
Büro: 1 variables Zimmer ist erforderlich
Schlafgäste pro Jahr 10
offene o. geschlossene Architektur die Form folgt der Funktion
konservativ o. moderne Bauweise hm, was ist hiermit genau gemeint?
offene Küche, Kochinsel offene Küche zum Essplatz (hier auch gerne eine Kochinsel), jedoch geschlossen zum Wohnzimmer hin
Anzahl Essplätze 6-8
Kamin nein
Musik/Stereowand TV im Wohnzimmer
Balkon, Dachterrasse überdachte Terrasse zum Garten mit Durchreichefenster von der Küche
Garage, Carport Carport mit Gründach und zusätzlichem Abstellraum wäre toll
Nutzgarten, Treibhaus kleiner Nutzgarten an der Grundstücksgrenze
Hausentwurf
Von wem stammt die Planung: freie Architektin, die mit einem Fertighausunternehmen zusammen arbeitet und viel DIY
Was gefällt besonders? Warum? effiziente Nutzung des Raums. Trotz Kompaktheit sind alle Wünsche hinsichtlich des Raumbedarfs insbesondere der Raumanzahl erfüllt
Was gefällt nicht? Warum? insbesondere das EG könnte großzügiger sein, Keller bzw. Abstellflächen könnten größer sein
Preisschätzung lt Architekt: keine
Preislimit inkl. Ausstattung: 550000 Euro plus Kfw falls da noch was kommt
favorisierte Heiztechnik: Luft-Wasser-Wärmepumpe
Wenn Ihr verzichten müsst, auf welche Details/Ausbauten
-könnt Ihr verzichten: schweren Herzens auf den separaten Elternbereich
ebenfalls steht die Einliegerwohnung zur Diskussion
Die Schiebetüren im EG sind auf einen Absprachefehler zurückzuführen und können weg
-könnt Ihr nicht verzichten: Anzahl der Räume
Warum ist der Entwurf so geworden, wie er jetzt ist?
Den Entwurf haben wir grundsätzlich in Eigenregie erstellt. Hier und da sind dann noch seitens der Architektin Optimierungen vorgenommen worden. Unser Hauptaugenmerk war die Vereinbarkeit aller Raumwünsche innerhalb eines kompakten Grundrisses auf einem kleinen Grundstück. Darüber hinaus wollten wir als Eltern von vier Kindern unser eigenes kleines Reich.
Was ist die wichtigste/grundlegende Frage zum Grundriss in 130 Zeichen zusammengefasst?
Scheitert unser Hauskonzept an unseren Budgetvorstellungen? Was würdet ihr anders machen und warum?
H
Hausbautraum2009.02.22 12:11Hallo,
wie hoch sind denn die ersten Angebote?
Ich kann nicht einschätzen, wie viel ihr streichen müsst.
Luxus finde ich das Elternbad neben dem Gäste-WC. Da könnte man eine Dusche ins Gäste-WC planen und evtl kriegt man sogar 2 Türen rein, sodass es vom Schlafzimmer zugänglich ist.
Spart vielleicht 10.000€.
Dann könnte man die Ankleide noch streichen und stattdessen kommt der Technikraum ins EG.
So könnte der ganze Keller gestrichen werden.
Jetzt aber ja die Frage, was mit der Oma ist?
Dazu müsstest du mehr erklären.
Muss/Soll/Kann sie mit einziehen?
Bringt sie Eigenkapital mit oder zahlt Miete?
wie hoch sind denn die ersten Angebote?
Ich kann nicht einschätzen, wie viel ihr streichen müsst.
Luxus finde ich das Elternbad neben dem Gäste-WC. Da könnte man eine Dusche ins Gäste-WC planen und evtl kriegt man sogar 2 Türen rein, sodass es vom Schlafzimmer zugänglich ist.
Spart vielleicht 10.000€.
Dann könnte man die Ankleide noch streichen und stattdessen kommt der Technikraum ins EG.
So könnte der ganze Keller gestrichen werden.
Jetzt aber ja die Frage, was mit der Oma ist?
Dazu müsstest du mehr erklären.
Muss/Soll/Kann sie mit einziehen?
Bringt sie Eigenkapital mit oder zahlt Miete?
Wenn ihr in die Kellerwohnung wandert (eigenes Reich ist für mich absolut nachvollziehbar), weil Oma gar nicht unbedingt mit muss (seniorengerecht sieht es sowieso nicht aus, alles sehr gestopft) und das Nicht-Dauer-Kind ins EG zieht, kann man den Grundriss doch noch ein wenig eindampfen, habt ihr das versucht?
Das Vollbad im EG könnte dadurch auch komplett entfallen, Badewanne kommt dann in das sowieso ziemlich leere Kinderbad.
Das Vollbad im EG könnte dadurch auch komplett entfallen, Badewanne kommt dann in das sowieso ziemlich leere Kinderbad.
K
Kristijan09.02.22 12:45Schon mal vielen Dank für die Anregungen.
@Hausbautraum20
Ich denke, wir haben im mittleren Preissegment der Anbieterbewegt. Unsere Angebote lagen im Bereich 520000-550000Euro ohne Erdarbeiten, Außenanlagen, Hausanschlusskosten, Carport, Terrasse, usw. Dann gab es noch ein paar Ausreißer nach oben.
Der grobe Plan ist, dass die Oma in die Einliegerwohnung einzieht und hier auch Miete zahlt. Hiermit ließen sich wohl die monatlichen Nebenkosten decken. Wir haben den Grundriss der Einliegerwohnung jedoch für einen beliebigen Mieter geplant, so dass es keine gegenseitigen Verpflichtungen/ Abhängigkeiten zwischen der Oma und uns gibt falls dieses Projekt "Oma im Haus" doch noch scheitern sollte.
@Tamstar
interessanter Gedanke. Das plane ich bei Gelegenheit mal nach.
Wobei wir auch im Hinterkopf haben, dass die Mieteinnahmen der Einliegerwohnung auch ein höheres Gesamtvolumen bringen und sich somit die Mehrkosten der Wohnung fast selbst tragen.
@Hausbautraum20
Ich denke, wir haben im mittleren Preissegment der Anbieterbewegt. Unsere Angebote lagen im Bereich 520000-550000Euro ohne Erdarbeiten, Außenanlagen, Hausanschlusskosten, Carport, Terrasse, usw. Dann gab es noch ein paar Ausreißer nach oben.
Der grobe Plan ist, dass die Oma in die Einliegerwohnung einzieht und hier auch Miete zahlt. Hiermit ließen sich wohl die monatlichen Nebenkosten decken. Wir haben den Grundriss der Einliegerwohnung jedoch für einen beliebigen Mieter geplant, so dass es keine gegenseitigen Verpflichtungen/ Abhängigkeiten zwischen der Oma und uns gibt falls dieses Projekt "Oma im Haus" doch noch scheitern sollte.
@Tamstar
interessanter Gedanke. Das plane ich bei Gelegenheit mal nach.
Wobei wir auch im Hinterkopf haben, dass die Mieteinnahmen der Einliegerwohnung auch ein höheres Gesamtvolumen bringen und sich somit die Mehrkosten der Wohnung fast selbst tragen.
Kristijan schrieb:
Wobei wir auch im Hinterkopf haben, dass die Mieteinnahmen der Einliegerwohnung auch ein höheres Gesamtvolumen bringen und sich somit die Mehrkosten der Wohnung fast selbst tragen.Wenn du im Forum querliest, sollte dir dieser Zahn vom einfachen Geld durch Einliegerwohnung schnell gezogen werden können 😉
K
Kristijan09.02.22 13:13Tamstar schrieb:
Wenn du im Forum querliest, sollte dir dieser Zahn vom einfachen Geld durch Einliegerwohnung schnell gezogen werden können 😉In meiner Milchmädchenrechnung haben die geschätzten 350 Euro Kaltmiete bei einem angenommenen Zinssatz von 2 % und einer ebenso hohen Tilgung ca. 100000 Euro zusätzliches Volumen generiert. Dies entspräche in etwa den Ausbaukosten des Kellergeschosses. Insofern bliebe die monatliche Belastung unter der Voraussetzung, dass mit einem Kellergeschoss plant ungefähr gleich. Anders sieht die Rechnung meiner Ansicht nach aus, wenn man auf den Keller verzichtete und auf Bodenplatte bauen würde. Dann bräuchte ich aber bei meinem Grundriss teure Kellerersatzräume und der Vorschlag von Hausbautraum20 mit dem Technikraum im EG könnte die Lösung sein.
Fraglich ist, ob unser Grundstück den Bau mit Bodenplatte hergibt. Ich befürchte, dass der Kostenvorteil der Bodenplatte durch die zusätzlichen Kosten des Garten-Landschaftsbauers aufgefressen werden könnten.
Ähnliche Themen