
zehn0813
Erschlossen wird über die 5,30m im Süd-Osten. Geradeaus kommt ein Stellplatz. Rechts vor der Haus (Osten) ein zweiter bzw in Verlängerung die Garage. Wenden könnte man im Wendehammer und rückwärts auf das Grundstück fahren. Andersherum geht's auch. Wir rechnen mit wenig bis gar keinem Verkehr (Sackgasse).
Im Süden grenzt direkt der Nachbar an. Wir gehen davon aus, dass dieser auf seine Nordgrenze (unsere Südgrenze) seine Garage bauen wird.
Die Überlegung war mit dem Tagesablauf der Sonne zu folgen. Küche im Osten. Esszimmer im Süden. Wohnzimmer im Westen. Dazu die Küche nach vorne zur Straße und das Wohnzimmer hinten zum Garten raus (Sonne von Südwest bis West).
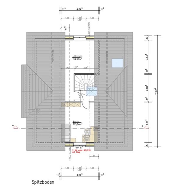
Ein kleines Büro kommt in den Spitzboden. Da ist noch Platz dafür.
Überschlagen sind es 180qm - ohne Spitzboden. Die 300.000€ sind nur für das Gebäude und die Garage. Nebenkosten, Grundstück und Honorar für den Architekten sind extra veranschlagt.
Ehrlicherweise habe ich mich auch etwas über die Schätzung des Architekten gewundert. Ich habe bisher mit ~ 1.800€ / qm beim 170qm Wohnfläche, plus 25.000€ für die Garage gerechnet. Das wird im weiteren Verlauf noch mal angesprochen, da die 300.000€ die ihm von uns genannte Baukostenobergrenze ist.
Gruß,
Sebastian
P.S.: Ich hab die Pläne nur als PDF. Dachte, wenn ich es hochladen darf, dann spare ich mir den Umweg über den Screenshot.
Im Süden grenzt direkt der Nachbar an. Wir gehen davon aus, dass dieser auf seine Nordgrenze (unsere Südgrenze) seine Garage bauen wird.
Die Überlegung war mit dem Tagesablauf der Sonne zu folgen. Küche im Osten. Esszimmer im Süden. Wohnzimmer im Westen. Dazu die Küche nach vorne zur Straße und das Wohnzimmer hinten zum Garten raus (Sonne von Südwest bis West).
Ein kleines Büro kommt in den Spitzboden. Da ist noch Platz dafür.
Überschlagen sind es 180qm - ohne Spitzboden. Die 300.000€ sind nur für das Gebäude und die Garage. Nebenkosten, Grundstück und Honorar für den Architekten sind extra veranschlagt.
Ehrlicherweise habe ich mich auch etwas über die Schätzung des Architekten gewundert. Ich habe bisher mit ~ 1.800€ / qm beim 170qm Wohnfläche, plus 25.000€ für die Garage gerechnet. Das wird im weiteren Verlauf noch mal angesprochen, da die 300.000€ die ihm von uns genannte Baukostenobergrenze ist.
Gruß,
Sebastian
P.S.: Ich hab die Pläne nur als PDF. Dachte, wenn ich es hochladen darf, dann spare ich mir den Umweg über den Screenshot.