Einfamilienhaus für 5 Personen: Grundrissplanung auf der Zielgeraden!?

4,10 Stern(e) 7 Votes
Zuletzt aktualisiert 08.10.2025
Sie befinden sich auf der Seite 5 der Diskussion zum Thema: Einfamilienhaus für 5 Personen: Grundrissplanung auf der Zielgeraden!?
>> Zum 1. Beitrag <<

zehn0813

zehn0813

Guten Abend zusammen!

Nachdem wir uns Gedanken gemacht haben, ist nun noch mal ein bisschen was verändert worden.

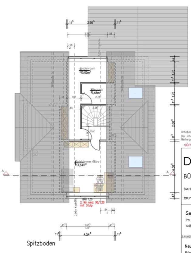
Das ist jetzt schon fast final. Klitzekleine Änderungen wird es noch geben. Insbesondere im Bereich der Südseite.



Draufsicht Grundriss des Spitzbodens im Dachgeschoss mit Treppen und Räumen

Dachgeschoss Grundriss eines Hauses mit Zimmern, Treppe und Bad

Grundriss eines Hauses im Erdgeschoss mit Wohnzimmer, Küche, Essbereich, Terrasse und Garage.


Wir freuen uns über euer Feedback.

Gruß,
Sebastian
 
Zuletzt aktualisiert 08.10.2025
Im Forum Grundrissplanung / Grundstücksplanung gibt es 2513 Themen mit insgesamt 87213 Beiträgen
Oben