Hallo Leute,
anbei die ersten Entwürfe.
Gerne möchte ich diese mit Euch Teilen.
Vielleicht habt Ihr noch Ideen und Anregungen.
Danke in Voraus!
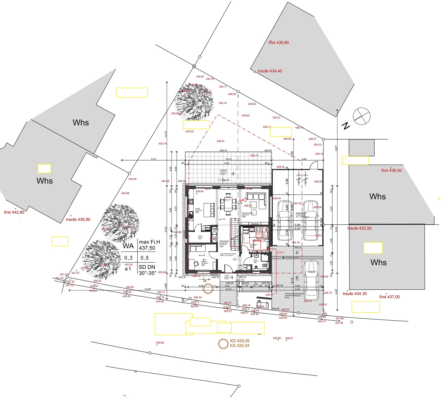
Bebauungsplan/Einschränkungen
Größe des Grundstücks: 550qm
Hang: ja, ca. 1,0 - 1,5m bzw. die Pläne.
Grundflächenzahl--0,3
Geschossflächenzahl--0,5
Anzahl Stellplatz: Doppelgarage 6x9 (statt 6x6 da wir die +3m zusätzlich als Stauraum nutzen möchten Fahrräder etc.) + Gartenhaus.
Geschossigkeit: 2
Dachform: Satteldach 35 DN. 20cm Dachvorung (finden wir Optisch besser. Nicht zu wenig? Risiko durch Auswirkungen der Witterung hält sich in Grenzen?)
Anforderungen der Bauherren
Stilrichtung, Dachform, Gebäudetyp
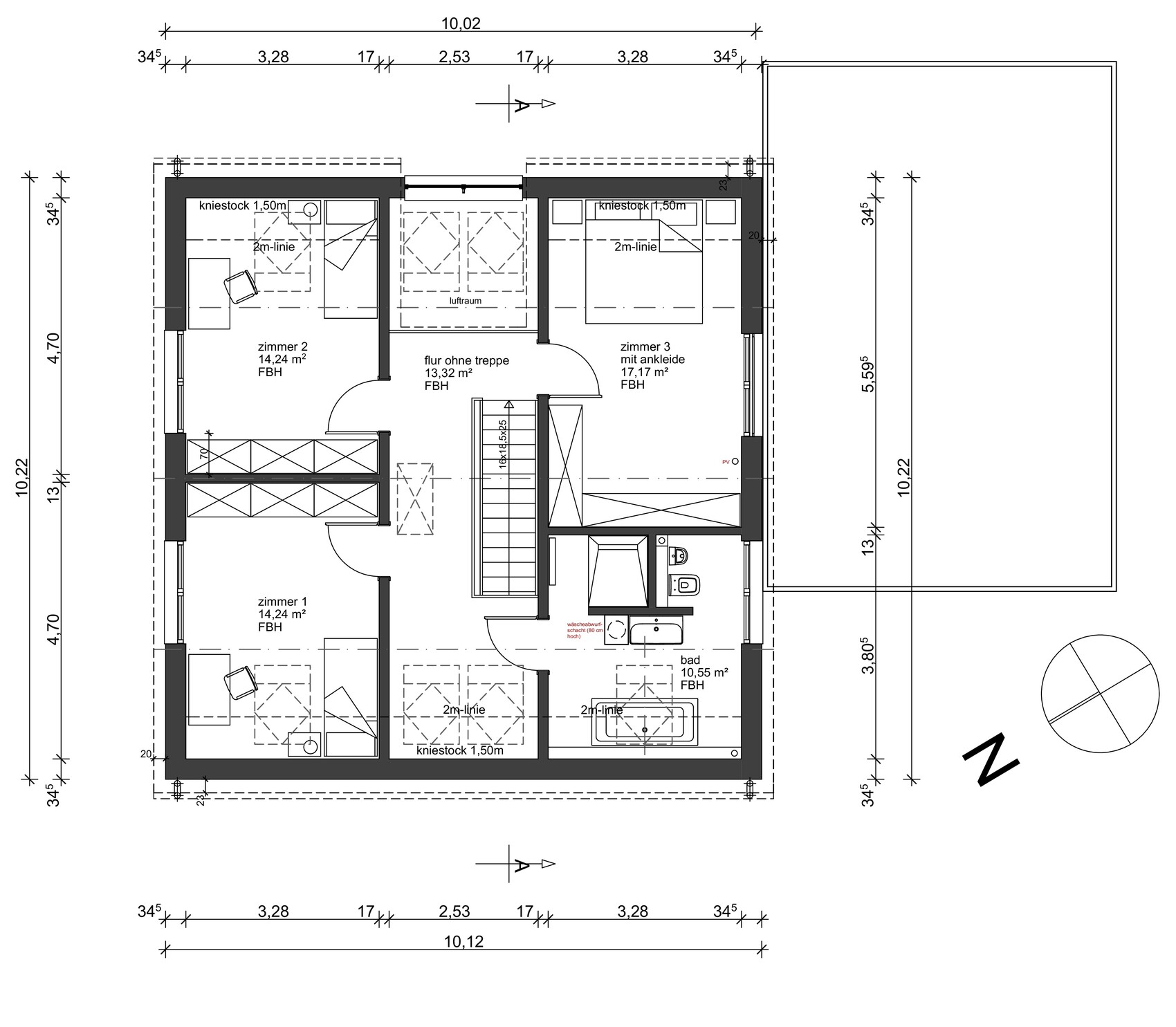
KfW40+, Geschosse 2
Anzahl der Personen, Alter 4: 1J. 5J. 35J. 35J.
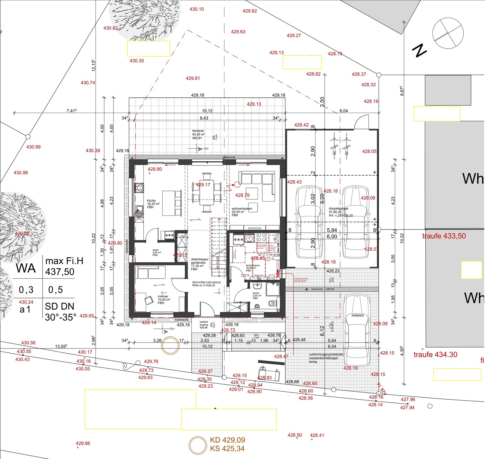
Raumbedarf im EG, OG
Büro: Familiennutzung mit Arbeitszimmer EG
Schlafgäste pro Jahr: 2-4x im Gäste/Bürozimmer im EG mit Klappcouch + Bürotisch ab und zu Homeoffice
offene Architektur
offene Küche, Kochinsel
Anzahl Essplätze 6-8
Kamin: nein
Doppelgarage.
Nutzgarten.
Smarthome.
Wäscheabwurf von DG-Bad -> Hauswirtschaftsraum.
Guter Spielplatz ist nur ca. 100m entfernt.
Hausentwurf
Von wem stammt die Planung:
-Architekt
Preisschätzung: Werkvertrag schon unterschrieben.
Persönliches Preislimit fürs Haus, inkl Ausstattung:
favorisierte Heiztechnik:Luft-Wasser-Wärmepumpe + Zentralle Lüftung + Photovoltaik+Speicher
Bodenplatte.
Baugrund / Bodengutachten: Laut Bodengutachten und Nachbarn guter Fester unproblematischer Untergrund. Bodenklasse 4-5. Zum Teil mit Sandsteinschichten durchzogener Baugrund.








anbei die ersten Entwürfe.
Gerne möchte ich diese mit Euch Teilen.
Vielleicht habt Ihr noch Ideen und Anregungen.
Danke in Voraus!
Bebauungsplan/Einschränkungen
Größe des Grundstücks: 550qm
Hang: ja, ca. 1,0 - 1,5m bzw. die Pläne.
Grundflächenzahl--0,3
Geschossflächenzahl--0,5
Anzahl Stellplatz: Doppelgarage 6x9 (statt 6x6 da wir die +3m zusätzlich als Stauraum nutzen möchten Fahrräder etc.) + Gartenhaus.
Geschossigkeit: 2
Dachform: Satteldach 35 DN. 20cm Dachvorung (finden wir Optisch besser. Nicht zu wenig? Risiko durch Auswirkungen der Witterung hält sich in Grenzen?)
Anforderungen der Bauherren
Stilrichtung, Dachform, Gebäudetyp
KfW40+, Geschosse 2
Anzahl der Personen, Alter 4: 1J. 5J. 35J. 35J.
Raumbedarf im EG, OG
Büro: Familiennutzung mit Arbeitszimmer EG
Schlafgäste pro Jahr: 2-4x im Gäste/Bürozimmer im EG mit Klappcouch + Bürotisch ab und zu Homeoffice
offene Architektur
offene Küche, Kochinsel
Anzahl Essplätze 6-8
Kamin: nein
Doppelgarage.
Nutzgarten.
Smarthome.
Wäscheabwurf von DG-Bad -> Hauswirtschaftsraum.
Guter Spielplatz ist nur ca. 100m entfernt.
Hausentwurf
Von wem stammt die Planung:
-Architekt
Preisschätzung: Werkvertrag schon unterschrieben.
Persönliches Preislimit fürs Haus, inkl Ausstattung:
favorisierte Heiztechnik:Luft-Wasser-Wärmepumpe + Zentralle Lüftung + Photovoltaik+Speicher
Bodenplatte.
Baugrund / Bodengutachten: Laut Bodengutachten und Nachbarn guter Fester unproblematischer Untergrund. Bodenklasse 4-5. Zum Teil mit Sandsteinschichten durchzogener Baugrund.
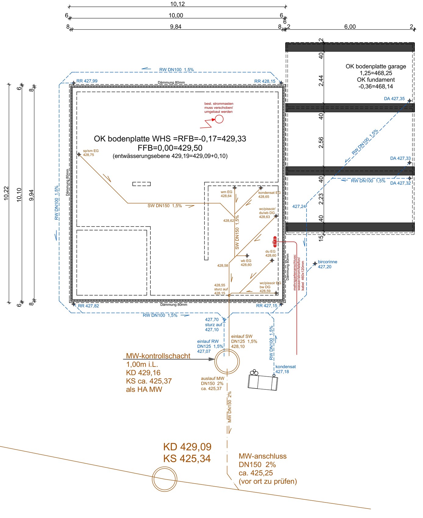
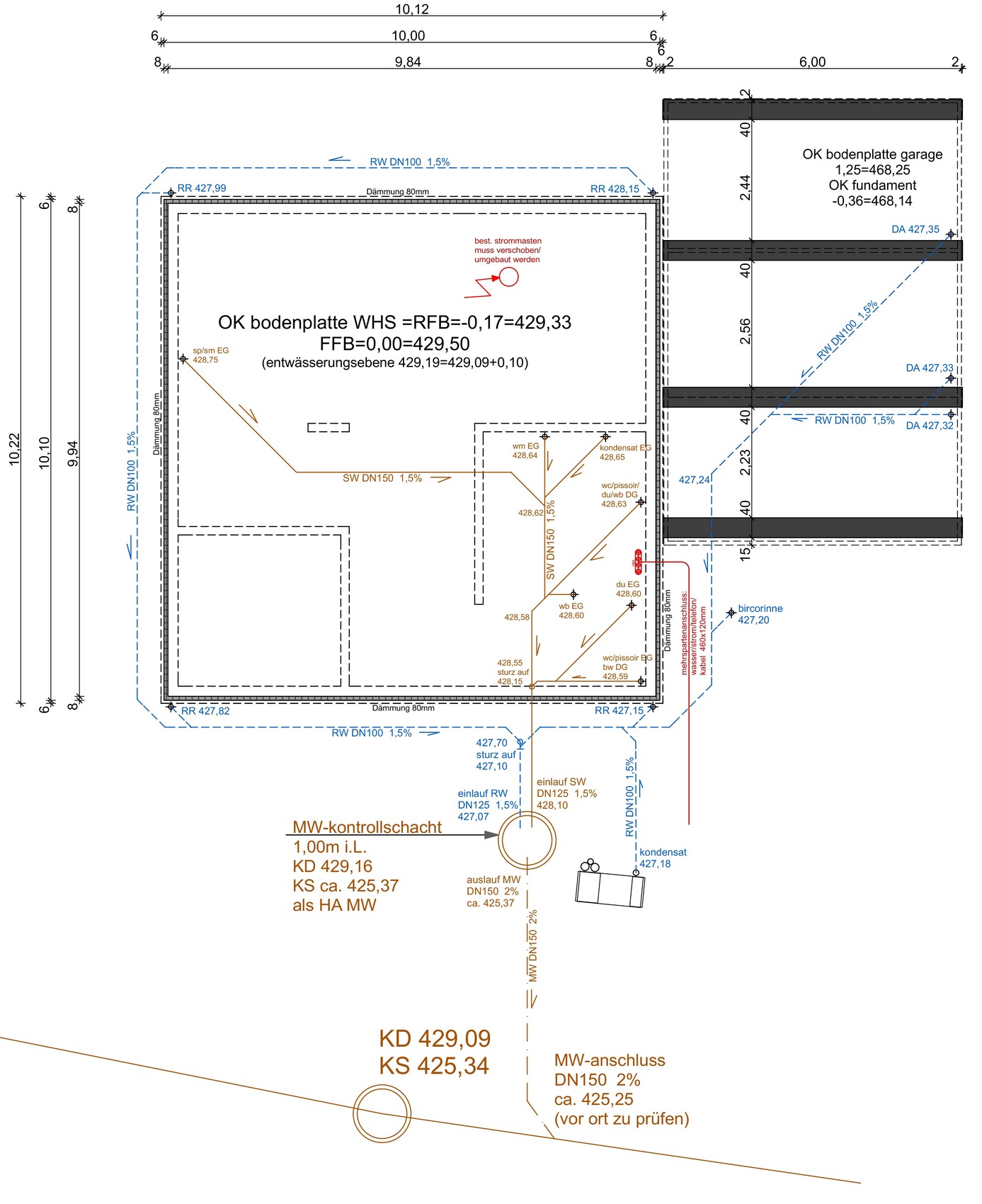
Schade, daß Du erstens Dir die Mühe machst, den Lageplan aus der Nordung rauszudrehen und zweitens nicht erwähnst, weshalb vorsätzlich über das Baufenster hinaus geplant wird.
https://www.instagram.com/11antgmxde/
https://www.linkedin.com/company/bauen-jetzt/
https://www.instagram.com/11antgmxde/
https://www.linkedin.com/company/bauen-jetzt/
11ant schrieb:
Lageplan aus der Nordung rauszudrehensorry, verstehe Deine Frage nicht. Wie meinst Du das?11ant schrieb:
[...]weshalb vorsätzlich über das Baufenster hinaus geplant[...]Um einfach mehr Wohnfläche zu erreichen.BenBaut schrieb:
sorry, verstehe Deine Frage nicht. Wie meinst Du das?Na, auf dem Lageplan sieht man doch an den Rändern, daß der ursprünglich mal genordet war; und dann hast Du ihn gedreht und nun ist Garten statt Norden "oben" und wir müssen alle unsere Laptops drehen um Deine Pläne in den Himmelrichtungen zu verstehen. Wenn das passiert, weil ein Ursprungsplan nicht genordet war, ist das wenigstens verzeihlich. Aber wozu entnordet man einen Plan extra ?BenBaut schrieb:
Um einfach mehr Wohnfläche zu erreichen.Das wollen alle. Was läßt Dich glauben, daß Du deswegen eine Befreiung bekommst - hast Du vor dem Spiegel den süßesten Hundeblick geübt ?https://www.instagram.com/11antgmxde/
https://www.linkedin.com/company/bauen-jetzt/
H
hampshire06.02.21 15:24Der Entwurf ist pfiffig auf das Gelände gezeichnet. Sicherlich habt Ihr beim Bauamt bereits ein Signal eingeholt, dass das Bauen außerhalb des Baufensters Genehmigungschancen hat.
Die Lage der Garage ist aufgrund der leichten Hanglage verständlich, ggfs. würde ich die Garage noch etwas tiefer setzen um mehr Licht in den Wohnbereich zu bekommen. Die Aufteilung der Räume finde ich ganz gut gelungen - sicher kostet die gerade Treppe etwas Platz, ist aber als zentrales Element am dunkelsten Ort des Hauses gut als Blickfang ausführbar. Zum Luftraum wirst Du hier unterschiedliches hören - Raumgefühl versus Geräuschdämmung. Gut, dass die Ankleide nicht als fester Raum geplant ist, sondern in das große Schlafzimmer bei Bedarf hineinmöbliert werden kann. Die Küchentheke direkt am Esstisch spricht mich nicht an - ist Geschmackssache. Ebenfalls die Positionierung des Sofas im Wohnraum, aber das ist für eine Bildschirmorientierte Freizeitgestaltung vermutlich ideal - wir unterhalten uns lieber lesen und gucken aus dem Fenster hinaus.
Lustig finde ich wie viele Architekturprogramme BMW Fahrzeuge zeigen - hier sind es E34er und in einer Frontansicht ist einer in einen E31 gewandelt. Das sind Fahrzeuge der 90er. War bei unserem Architekt übrigens ebenfalls so.
Die Lage der Garage ist aufgrund der leichten Hanglage verständlich, ggfs. würde ich die Garage noch etwas tiefer setzen um mehr Licht in den Wohnbereich zu bekommen. Die Aufteilung der Räume finde ich ganz gut gelungen - sicher kostet die gerade Treppe etwas Platz, ist aber als zentrales Element am dunkelsten Ort des Hauses gut als Blickfang ausführbar. Zum Luftraum wirst Du hier unterschiedliches hören - Raumgefühl versus Geräuschdämmung. Gut, dass die Ankleide nicht als fester Raum geplant ist, sondern in das große Schlafzimmer bei Bedarf hineinmöbliert werden kann. Die Küchentheke direkt am Esstisch spricht mich nicht an - ist Geschmackssache. Ebenfalls die Positionierung des Sofas im Wohnraum, aber das ist für eine Bildschirmorientierte Freizeitgestaltung vermutlich ideal - wir unterhalten uns lieber lesen und gucken aus dem Fenster hinaus.
Lustig finde ich wie viele Architekturprogramme BMW Fahrzeuge zeigen - hier sind es E34er und in einer Frontansicht ist einer in einen E31 gewandelt. Das sind Fahrzeuge der 90er. War bei unserem Architekt übrigens ebenfalls so.
11ant schrieb:
Na, auf dem Lageplan sieht man doch an den Rändern, daß der ursprünglich mal genordet war; und dann hast Du ihn gedreht und nun ist Garten statt Norden "oben" und wir müssen alle unsere Laptops drehen um Deine Pläne in den Himmelrichtungen zu verstehen. Wenn das passiert, weil ein Ursprungsplan nicht genordet war, ist das wenigstens verzeihlich. Aber wozu entnordet man einen Plan extra ?
Das wollen alle. Was läßt Dich glauben, daß Du deswegen eine Befreiung bekommst - hast Du vor dem Spiegel den süßesten Hundeblick geübt ?Verstehe - es war mir nicht klar, dass das Thema Nordung so wichtig und üblich ist.
Der Ursprungsplan war so.
Die Architektin ist von einer Befreieung bei der Baufesterüberschreibung sehr überzeugt. Auch mit der überschreitung der Max FH.
Ähnliche Themen