ᐅ Einfamilienhaus am Südhang mit UG+EG (150-160qm)
Erstellt am: 26.10.20 16:55
D
DaniMartinez26.10.20 16:55Hi,
nachdem unser erster Entwurf auch nach den ersten eingegangenen Angeboten vom Budget her nicht realistisch ist, haben wir den Plan mit Keller und integrierter Garage wieder verworfen.
Der neue Plan sieht vor an unserem Südhang ein UG mit Schlafzimmer, 2 Kinderzimmern, Familienbad sowie Hauswirtschaftsraum/Technik zu bauen. Dann gehts ins EG mit offenem Wohn-Essbereich, kleiner Speisekammer, Garderobe und einem Duschbad. Über das EG würde man dann in den Nordwestgarten und die Terrasse gehen. Der Hauseingang sollte im EG liegen. Den Spitzboden würden wir zum Ausbau vorbereiten oder wenn noch Budget über ist dort ein Büro integrieren. Das Büro kommt dann erstmal in das zweite Kinderzimmer ins UG, bis dieses dann gebraucht wird! Ein Carport/Garage sollte dann in den Süden oder falls noh möglich in den Osten kommen.
Hat hier jemand ein ähnliches Projekt realisiert oder ist grad in der Planung? Fotos/Ideen von einem Grundriss wären cool!
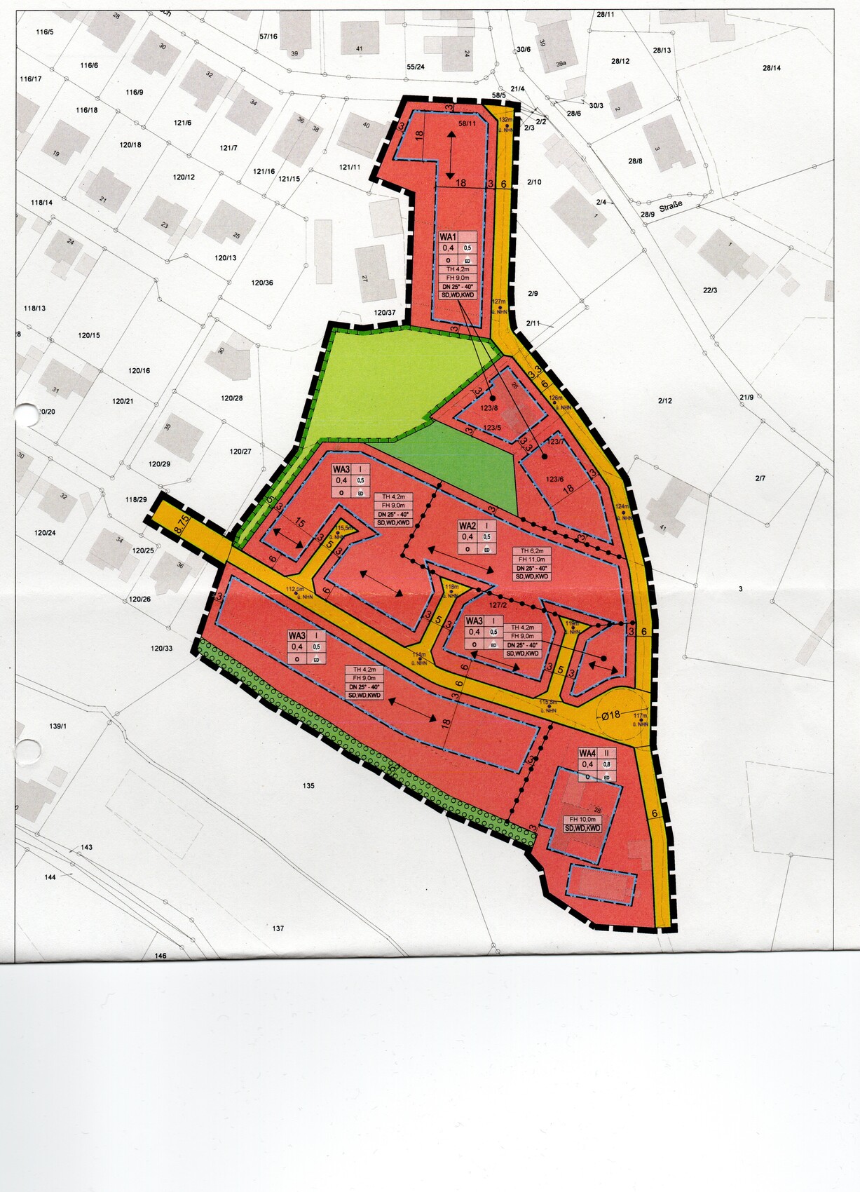
Wir würden uns für Feedback in jeglicher Form freuen. Anbei habe ich nochmal die Liste zum Grundstück sowie einen Lageplan eingefügt! Unser Grundstück ist die Nr. 6!
Bebauungsplan/Einschränkungen
Größe des Grundstücks: 557 qm
Hang: Ja (Nord-Süd-Gefälle ca. 3,20m)
Grundflächenzahl: 0,4
Geschossflächenzahl: 0,5
Baufenster, Baulinie und -grenze: 3 Meter zum Nachbargrundstück
Randbebauung:
Anzahl Stellplatz: 1 Garage/Carport
Geschossigkeit: 2 Geschosse
Dachform: Sattel-, Walm-, Krüppelwalmdach
Stilrichtung: eher modern
Ausrichtung: südwestlich
Maximale Höhen/Begrenzungen: TH 6,20m , FH 11m
weitere Vorgaben: Stadtvilla nicht erlaubt
Anforderungen der Bauherren
Stilrichtung, Dachform, Gebäudetyp: Satteldach
Keller, Geschosse: nein, eher UG mit Wohnraum und Kelleranteil
Anzahl der Personen, Alter: aktuell 2 Erwachsene (37+35) , 1Kind (3 jahre) und demnächst noch ein weiteres
Raumbedarf im EG, OG: zusammen knapp 150-160 qm
Büro: Familiennutzung oder Homeoffice? Homeoffice
Schlafgäste pro Jahr: wenige
offene oder geschlossene Architektur: offen
konservativ oder moderne Bauweise: modern
offene Küche, Kochinsel: offene Küche, Kochinsel kein muss
Anzahl Essplätze: 6-8
Kamin: nein
Musik/Stereowand:
Balkon, Dachterrasse: eventuell wenn das UG etwas größer geplant wird auf dem Überstand vom UG
Garage, Carport: ja im vorderen Grundstücksbereich
Nutzgarten, Treibhaus: nein
weitere Wünsche/Besonderheiten/Tagesablauf, gern auch Begründungen, warum dieses oder das nicht sein soll
Hausentwurf
Von wem stammt die Planung:
-Planer eines Bauunternehmens: nein
-Architekt: nein
-Do-it-Yourself: nein
Was gefällt besonders? Warum?:
Was gefällt nicht? Warum?
Preisschätzung lt Architekt/Planer:
Persönliches Preislimit fürs Haus, inkl Ausstattung: ohne Nebenkosten und Grundstück: 400.000 €
favorisierte Heiztechnik: Geothermie (ist vorgegeben durch die Gemeinde), Photovoltaikanlage wäre wünschenswert
Wenn Ihr verzichten müsst, auf welche Details/Ausbauten
-könnt Ihr verzichten:
-könnt Ihr nicht verzichten: Büro
Warum ist der Entwurf so geworden, wie er jetzt ist? ZB
Was ist die wichtigste/grundlegende Frage zum Grundriss in 130 Zeichen zusammengefasst?


nachdem unser erster Entwurf auch nach den ersten eingegangenen Angeboten vom Budget her nicht realistisch ist, haben wir den Plan mit Keller und integrierter Garage wieder verworfen.
Der neue Plan sieht vor an unserem Südhang ein UG mit Schlafzimmer, 2 Kinderzimmern, Familienbad sowie Hauswirtschaftsraum/Technik zu bauen. Dann gehts ins EG mit offenem Wohn-Essbereich, kleiner Speisekammer, Garderobe und einem Duschbad. Über das EG würde man dann in den Nordwestgarten und die Terrasse gehen. Der Hauseingang sollte im EG liegen. Den Spitzboden würden wir zum Ausbau vorbereiten oder wenn noch Budget über ist dort ein Büro integrieren. Das Büro kommt dann erstmal in das zweite Kinderzimmer ins UG, bis dieses dann gebraucht wird! Ein Carport/Garage sollte dann in den Süden oder falls noh möglich in den Osten kommen.
Hat hier jemand ein ähnliches Projekt realisiert oder ist grad in der Planung? Fotos/Ideen von einem Grundriss wären cool!
Wir würden uns für Feedback in jeglicher Form freuen. Anbei habe ich nochmal die Liste zum Grundstück sowie einen Lageplan eingefügt! Unser Grundstück ist die Nr. 6!
Bebauungsplan/Einschränkungen
Größe des Grundstücks: 557 qm
Hang: Ja (Nord-Süd-Gefälle ca. 3,20m)
Grundflächenzahl: 0,4
Geschossflächenzahl: 0,5
Baufenster, Baulinie und -grenze: 3 Meter zum Nachbargrundstück
Randbebauung:
Anzahl Stellplatz: 1 Garage/Carport
Geschossigkeit: 2 Geschosse
Dachform: Sattel-, Walm-, Krüppelwalmdach
Stilrichtung: eher modern
Ausrichtung: südwestlich
Maximale Höhen/Begrenzungen: TH 6,20m , FH 11m
weitere Vorgaben: Stadtvilla nicht erlaubt
Anforderungen der Bauherren
Stilrichtung, Dachform, Gebäudetyp: Satteldach
Keller, Geschosse: nein, eher UG mit Wohnraum und Kelleranteil
Anzahl der Personen, Alter: aktuell 2 Erwachsene (37+35) , 1Kind (3 jahre) und demnächst noch ein weiteres
Raumbedarf im EG, OG: zusammen knapp 150-160 qm
Büro: Familiennutzung oder Homeoffice? Homeoffice
Schlafgäste pro Jahr: wenige
offene oder geschlossene Architektur: offen
konservativ oder moderne Bauweise: modern
offene Küche, Kochinsel: offene Küche, Kochinsel kein muss
Anzahl Essplätze: 6-8
Kamin: nein
Musik/Stereowand:
Balkon, Dachterrasse: eventuell wenn das UG etwas größer geplant wird auf dem Überstand vom UG
Garage, Carport: ja im vorderen Grundstücksbereich
Nutzgarten, Treibhaus: nein
weitere Wünsche/Besonderheiten/Tagesablauf, gern auch Begründungen, warum dieses oder das nicht sein soll
Hausentwurf
Von wem stammt die Planung:
-Planer eines Bauunternehmens: nein
-Architekt: nein
-Do-it-Yourself: nein
Was gefällt besonders? Warum?:
Was gefällt nicht? Warum?
Preisschätzung lt Architekt/Planer:
Persönliches Preislimit fürs Haus, inkl Ausstattung: ohne Nebenkosten und Grundstück: 400.000 €
favorisierte Heiztechnik: Geothermie (ist vorgegeben durch die Gemeinde), Photovoltaikanlage wäre wünschenswert
Wenn Ihr verzichten müsst, auf welche Details/Ausbauten
-könnt Ihr verzichten:
-könnt Ihr nicht verzichten: Büro
Warum ist der Entwurf so geworden, wie er jetzt ist? ZB
Was ist die wichtigste/grundlegende Frage zum Grundriss in 130 Zeichen zusammengefasst?
DaniMartinez schrieb:
nachdem unser erster Entwurf auch nach den ersten eingegangenen Angeboten vom Budget her nicht realistisch ist,Oh, wäre da nicht weniger statt mehr Quadratmeter anzupeilen logischer ?Ergänze mal eine Grundstücksdarstellung mit Höhenangaben.
https://www.instagram.com/11antgmxde/
https://www.linkedin.com/company/bauen-jetzt/
D
DaniMartinez02.11.20 15:5011ant schrieb:
Oh, wäre da nicht weniger statt mehr Quadratmeter anzupeilen logischer ?
Ergänze mal eine Grundstücksdarstellung mit Höhenangaben.Ja aber vorher waren es mit Keller insgesamt über 200qm
Ich stelle jetzt mal den neuen Grundriss rein! Wobei wir den Entwurf besonders vom UG nicht gut finden. Wir würden das UG gerne verbreitern, damit der viel zu kleine Hauswirtschaftsraum und das Schlafzimmer größer werden! Das UG müsste dann nochmal komplett überarbeitet werden! Aber ich wollte erstmal eure Meinung zum Grundriss einholen!!
- An eurer Stelle würde ich mir das mit dem verbreitern gut überlegen, größer machen ist immer die "einfachste" Lösung, allerdings bringt das auch wieder einen Rattenschwanz an Kosten und die gesamte Symetrieachsen / Statik kann sich ändern. Ihr ändert damit ja das gesamte Haus und nicht nur das UG. Ich finde ihr habt genug Platz. Wir hatten auch die Überlegung, als uns unsere Räume zu klein waren, sind da schnell wieder weg von, das Grundstück ist auch nicht endlos groß.
- Wenn ihr im EG die Dusche im Gästebad weglasst und den Platz dem Abstellraum zuschlagt, spart ihr einiges und gewinnt Platz. Ich habe von vielen Bauherren das Feedback, das sie innerhalb von 1 Jahr vielleicht 2-3 mal im Gästebad duschen und das Ding im Prinzip verschenkter Platz ist den man zusätzlich putzen muss und teuer war.
- Im UG würde ich so schieben das die Zimmer links etwas größer werden, dafür werden die rechts natürlich etwas kleiner.
- Was ich nicht ganz verstehe sind 2x Wohn/Essbereich im EG + OG. Denkt ihr wirklich das ihr das Essen auf die Dauer auch ins OG zum Essen hochtragt? Da sehe ich dann eher Potential für weitere Gäste- /Freizeit- /Speicherräume. Genauso würde ich die Terrasse oben hinterfragen. Ihr habt ja im EG auch eine. (Kosten!) --> Ausbauoption allerdings vorbereiten.
D
DaniMartinez02.11.20 16:23Mr.T2000 schrieb:
- An eurer Stelle würde ich mir das mit dem verbreitern gut überlegen, größer machen ist immer die "einfachste" Lösung, allerdings bringt das auch wieder einen Rattenschwanz an Kosten und die gesamte Symetrieachsen / Statik kann sich ändern. Ihr ändert damit ja das gesamte Haus und nicht nur das UG. Ich finde ihr habt genug Platz. Wir hatten auch die Überlegung, als uns unsere Räume zu klein waren, sind da schnell wieder weg von, das Grundstück ist auch nicht endlos groß.
- Wenn ihr im EG die Dusche im Gästebad weglasst und den Platz dem Abstellraum zuschlagt, spart ihr einiges und gewinnt Platz. Ich habe von vielen Bauherren das Feedback, das sie innerhalb von 1 Jahr vielleicht 2-3 mal im Gästebad duschen und das Ding im Prinzip verschenkter Platz ist den man zusätzlich putzen muss und teuer war.
- Im UG würde ich so schieben das die Zimmer links etwas größer werden, dafür werden die rechts natürlich etwas kleiner.
- Was ich nicht ganz verstehe sind 2x Wohn/Essbereich im EG + OG. Denkt ihr wirklich das ihr das Essen auf die Dauer auch ins OG zum Essen hochtragt? Da sehe ich dann eher Potential für weitere Gäste- /Freizeit- /Speicherräume. Genauso würde ich die Terrasse oben hinterfragen. Ihr habt ja im EG auch eine. (Kosten!) --> Ausbauoption allerdings vorbereiten.
Hey cool und danke für das Feedback !! ALso das mit dem OG muss ich noch kurz erklären! Das soll quasi nur das Büro sein, welches dann offen in den Wohnbereich gehen wird... ich stell mal n Bild rein wie das ungefähr aussehen soll!!
Ähnliche Themen