ᐅ Grundriss - Planung Doppelhaushälfte fast 200 qm Wohnfläche
Erstellt am: 24.11.20 22:45
Hallo zusammen,
wir (ich und meine Frau) haben versucht, einen gewünschten Grundriss gemäß unserer Anforderung zu erstellen.
Wir stellen jedoch fest, dass Flur im OG wirklich groß ist (daher verschwendeter Platz). Wir möchten Ihre Verbesserungsvorschläge einholen.
Vielen Dank vorab schon einmal für eure ideen !
Bebauungsplan/Einschränkungen
Größe des Grundstücks - 500qm
Hang - nein
Grundflächenzahl - 0,3
Geschossflächenzahl - 0,4
Baufenster, Baulinie und -grenze - Baufenster 7,10x14m
Anzahl Stellplatz - 2 (nur Carport)
Geschossigkeit - 2 Vollgeschosse
Dachform - Sattel
Stilrichtung - modern
Maximale Höhen/Begrenzungen - 6,50m
Anforderungen der Bauherren
Stilrichtung, Dachform, Gebäudetyp - Satteldach
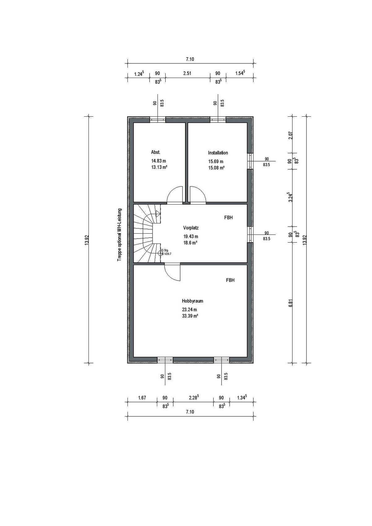
Keller, Geschosse - 2 Vollgeschosse und Keller
Anzahl der Personen, Alter - 5 Personen (38, 36, 10, 6, 1)
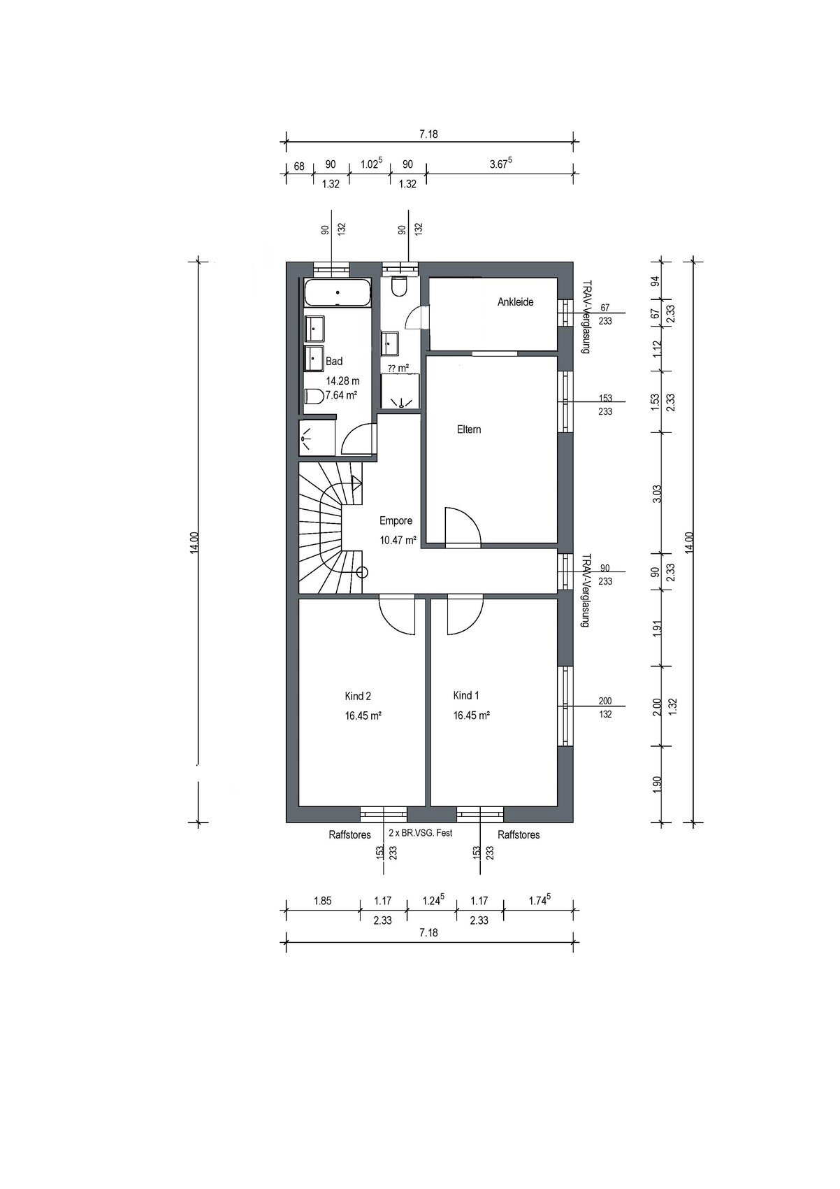
Raumbedarf im EG, OG - EG: Wohnen/essen, Geschlossene Küche, Arbeits-/Gästezimmer, WC/Bad. OG: Schlafzimmer/Ankleide/, 2 Kinderzimmer, Kinderbad
Büro: Familiennutzung oder Homeoffice? - Homeoffice, (platz im Keller )
Schlafgäste pro Jahr - 1 für 2-3 monat
offene oder geschlossene Architektur - offen
konservativ oder moderne Bauweise - modern
offene Küche, Kochinsel -nein
Anzahl Essplätze - 6-10
Kamin - nein
Musik/Stereowand - nein
Balkon, Dachterrasse - nein
Garage, Carport - Carport
Nutzgarten, Treibhaus - nein
Hausentwurf
Von wem stammt die Planung: Selber
Was gefällt besonders? Warum?
EG: Eingangsbereich/Gastzimmer
OG: Elternzimmer mit eigene WC/Bad, breit Diele
Was gefällt nicht? Warum?
Grundsätzlich: risisg groß Diele im OG
Preisschätzung lt Architekt/Planer: 500.000 (ohne Grundstück, ohne Baunebenkosten)
Persönliches Preislimit fürs Haus, inkl Ausstattung: 520.000
favorisierte Heiztechnik: Kfw 40
Wenn Ihr verzichten müsst, auf welche Details/Ausbauten
-könnt Ihr verzichten:
-könnt Ihr nicht verzichten: Geschlossene Küche, Gastzimmer
Warum ist der Entwurf so geworden, wie er jetzt ist?
Standardentwurf vom Planer? - nein
Entsprechende/Welche Wünsche wurden vom Architekten umgesetzt? -
sehr groß Diele im OG,
Was ist die wichtigste/grundlegende Frage zum Grundriss in 130 Zeichen zusammengefasst?
Sollten wir das Design der Treppe und des OG völlig anders überdenken?







wir (ich und meine Frau) haben versucht, einen gewünschten Grundriss gemäß unserer Anforderung zu erstellen.
Wir stellen jedoch fest, dass Flur im OG wirklich groß ist (daher verschwendeter Platz). Wir möchten Ihre Verbesserungsvorschläge einholen.
Vielen Dank vorab schon einmal für eure ideen !
Bebauungsplan/Einschränkungen
Größe des Grundstücks - 500qm
Hang - nein
Grundflächenzahl - 0,3
Geschossflächenzahl - 0,4
Baufenster, Baulinie und -grenze - Baufenster 7,10x14m
Anzahl Stellplatz - 2 (nur Carport)
Geschossigkeit - 2 Vollgeschosse
Dachform - Sattel
Stilrichtung - modern
Maximale Höhen/Begrenzungen - 6,50m
Anforderungen der Bauherren
Stilrichtung, Dachform, Gebäudetyp - Satteldach
Keller, Geschosse - 2 Vollgeschosse und Keller
Anzahl der Personen, Alter - 5 Personen (38, 36, 10, 6, 1)
Raumbedarf im EG, OG - EG: Wohnen/essen, Geschlossene Küche, Arbeits-/Gästezimmer, WC/Bad. OG: Schlafzimmer/Ankleide/, 2 Kinderzimmer, Kinderbad
Büro: Familiennutzung oder Homeoffice? - Homeoffice, (platz im Keller )
Schlafgäste pro Jahr - 1 für 2-3 monat
offene oder geschlossene Architektur - offen
konservativ oder moderne Bauweise - modern
offene Küche, Kochinsel -nein
Anzahl Essplätze - 6-10
Kamin - nein
Musik/Stereowand - nein
Balkon, Dachterrasse - nein
Garage, Carport - Carport
Nutzgarten, Treibhaus - nein
Hausentwurf
Von wem stammt die Planung: Selber
Was gefällt besonders? Warum?
EG: Eingangsbereich/Gastzimmer
OG: Elternzimmer mit eigene WC/Bad, breit Diele
Was gefällt nicht? Warum?
Grundsätzlich: risisg groß Diele im OG
Preisschätzung lt Architekt/Planer: 500.000 (ohne Grundstück, ohne Baunebenkosten)
Persönliches Preislimit fürs Haus, inkl Ausstattung: 520.000
favorisierte Heiztechnik: Kfw 40
Wenn Ihr verzichten müsst, auf welche Details/Ausbauten
-könnt Ihr verzichten:
-könnt Ihr nicht verzichten: Geschlossene Küche, Gastzimmer
Warum ist der Entwurf so geworden, wie er jetzt ist?
Standardentwurf vom Planer? - nein
Entsprechende/Welche Wünsche wurden vom Architekten umgesetzt? -
sehr groß Diele im OG,
Was ist die wichtigste/grundlegende Frage zum Grundriss in 130 Zeichen zusammengefasst?
Sollten wir das Design der Treppe und des OG völlig anders überdenken?
ypg schrieb:
Herzlichen Glückwunsch zum Grundstück!
probiere es mal mit einem Seiteneingang, dann bekommst Du einen griffigeren Flur im EG. Treppe 2-fach gewendelt, aber standardisierte Form.
Dein Bad über der Treppe funktioniert so eh nicht.vielen Dank !
Ich bin mir nicht sicher, ob ein Zugang von einer anderen Seite als Nord möglich ist, da laut Bebauungsplan Zwillingshäuser gebaut werden müssen
musik_de schrieb:
Sollten wir das Design der Treppe und des OG völlig anders überdenken?Wenn ich die Treppe auch nur ein kleines bißchen verstünde, könnte ich eventuell etwas dazu sagen ;-)musik_de schrieb:
Ich bin mir nicht sicher, ob ein Zugang von einer anderen Seite als Nord möglich ist, da laut Bebauungsplan Zwillingshäuser gebaut werden müssenDa hingegen bin ich klar zuversichtlich.https://www.instagram.com/11antgmxde/
https://www.linkedin.com/company/bauen-jetzt/
Ähnliche Themen