Einfamilienhaus ~200qm mit Doppelgarage auf trapezförmigem Grundstück

4,60 Stern(e) 8 Votes
Zuletzt aktualisiert 18.11.2025
Sie befinden sich auf der Seite 4 der Diskussion zum Thema: Einfamilienhaus ~200qm mit Doppelgarage auf trapezförmigem Grundstück
>> Zum 1. Beitrag <<

RomeoZwo

RomeoZwo

Das Grundstück hat fast dieselbe Ausrichtung wie unseres, evtl. sogar ein paar Grad mehr "Ostdrall". Bei der Anordnung musst du dir bewußt sein, dass ab ca. 17 Uhr keine Sonne mehr auf der Terrasse ist. Wir haben zum Glück nach Nord Nord West genug Platz für eine zweite Terrasse gehabt, die gerade im Frühling und Herbst viel genutzt wird. Klar, das Grundstück ist klein (wobei für münchner Verhältnisse eher groß) und es wird schwieriger, aber ich würde mal schauen ob ihr mit dem Haus etwas weiter nach Süden kommt um die 3m Garten nördlich nutzbar zu machen.
 
K a t j a

K a t j a

Ein schöner Entwurf. Auf den 2. Blick sind dann aber hier und da ein paar winzige Schönheitsfehler.
Am meisten würde mich die Anordnung der Küche stören. An der Insel steht man mit der Tür im Rücken und rennt dann jedes mal im Dreieck, wenn man was abspülen will. Da braucht es Rat vom Fachmann - auch ob der Schornstein inkl. Kamin dort sinnvoll ist.
Im OG würde mich wieder die Esse im Kinderzimmer stören. Neben Abwärme und mangelnder Stellfläche macht ein Schornstein auch immer ein bissl Geräusche. Deswegen würde ich ihn auf den Flur verbannen.
Bei dem anderen Kinderzimmer fehlen mir die Maße. Unter 3 m Tiefe würde ich nicht gehen, besser mehr. Eher tät ich dem Gast noch ein wenig Tiefe stehlen.
Die Tür im DG Schlafzimmer öffnet in die Schräge. Das mag ich nicht so. Andererseits sehe ich kaum attraktive Alternativen - da muss wohl ein Türstopper hin.
Im Außenbereich fehlen mir Abstellmöglichkeiten für Fahrräder und Co.
 
Y

ypg

Ich habe nochmal wegen der fehlenden Dachhöhe im Elternbereich geschaut:
Bad: man muss sich bewusst werden, dass man, auch wenn man nicht 1,90 groß ist, die Bodenfläche zwar optisch Fläche gibt, aber eben bei einer DN von 45 Grad nicht begehbar ist. Das Leben spielt sich in einem Streifen ab. Wenn man also zu zweit das Bad benutzt, dann gibt es Engstellen: der eine sitzt auf Toi, der andere erreicht dann nicht einfach so die Dusche. Da würde es Vorteile bringen, wenn man die Toi unter die Schräge bringt und abkoffert. Dachfenster mittig anpassen. Dann schiebt sich die Toi unter die Schräge, und die Fläche davor ist frei begehbar, ohne dass der Bewohner/Benutzer auf die Schräge achten muss.
Der Schacht, der vom Keller durch die Küche nach oben verläuft, im EG in die Garderobe verbannen, dann geht er durch die Bäder und ist im Dach irgendwo neben der Wanne zu finden. Ungefähr dort in meiner Skizze.
Die Gaube im Westen: die würde ich auch mittig anordnen.
Achtung: der geplante Kaminschlot nimmt Stellfläche weg.
Ich würde auch das Bett unter die Schräge setzen und auch hier abkoffern. Hier in die Raumdiagonale gehen.
schränke können offen und individuell in die Schräge gebaut werden.

Grundriss eines Innenraums mit Schrank, Schrankraum, Treppe, Zimmer 2 und 3 sowie Podest.
 
M

Mucuc18

Das Grundstück hat fast dieselbe Ausrichtung wie unseres, evtl. sogar ein paar Grad mehr "Ostdrall". Bei der Anordnung musst du dir bewußt sein, dass ab ca. 17 Uhr keine Sonne mehr auf der Terrasse ist. Wir haben zum Glück nach Nord Nord West genug Platz für eine zweite Terrasse gehabt, die gerade im Frühling und Herbst viel genutzt wird. Klar, das Grundstück ist klein (wobei für münchner Verhältnisse eher groß) und es wird schwieriger, aber ich würde mal schauen ob ihr mit dem Haus etwas weiter nach Süden kommt um die 3m Garten nördlich nutzbar zu machen.
Danke für die Erfahrungswerte. Den Nord-West Teil bekommen wir leider nicht nutzbar, da ist ein recht hoch gemauerter Carport vom Nachbar Richtung Westen und Richtung Norden größerer Baumbestand...
Ggf. verbreitern wir die Terrasse noch einen halben Meter nach links, um noch 1-2 mehr Sonnenstrahlen am Abend abzufangen die es nicht um die Hausecke rum schaffen.

Am meisten würde mich die Anordnung der Küche stören. An der Insel steht man mit der Tür im Rücken und rennt dann jedes mal im Dreieck, wenn man was abspülen will. Da braucht es Rat vom Fachmann - auch ob der Schornstein inkl. Kamin dort sinnvoll ist.
Im OG würde mich wieder die Esse im Kinderzimmer stören. Neben Abwärme und mangelnder Stellfläche macht ein Schornstein auch immer ein bissl Geräusche. Deswegen würde ich ihn auf den Flur verbannen.
Bei dem anderen Kinderzimmer fehlen mir die Maße. Unter 3 m Tiefe würde ich nicht gehen, besser mehr. Eher tät ich dem Gast noch ein wenig Tiefe stehlen.
Die Tür im DG Schlafzimmer öffnet in die Schräge. Das mag ich nicht so. Andererseits sehe ich kaum attraktive Alternativen - da muss wohl ein Türstopper hin.
Im Außenbereich fehlen mir Abstellmöglichkeiten für Fahrräder und Co.
Anordnung der Küche ist noch nicht wirklich entschieden, da müssen wir dann Mal in die Detailplanung gehen. Aber ja, sicherlich nicht ganz einfach, mit Kochen auf der Insel und Spüle am Fenster.
Ich glaube das was du als Kamin identifiziert hast, ist die Entwässerung aus dem DG-Bad. Der Kamin ist beim Eingang vom Wohnzimmer platziert und dementsprechend im Gästezimmer hinter der Türe im OG.
Kind 2 liegt die Tiefe grade so bei knappen 3m, könnte man durchaus überlegen ob man da noch ein paar cm vom Gast wegnimmt, gibts allerdings wieder eine Ecke in der bisher geraden Wand beim Gast. DG Schlafzimmertüre stört uns persönlich nicht. Fahrräder finden in der Doppelgarage Platz, zunächst steht da nur ein Auto drin.

Edit: einen Wäscheschacht würde ich bei 4 Etagen auf jeden Fall einplanen.
Der ist wahrscheinlich auch der Bild-Auflösung oä. zum Opfer gefallen. Der befindet sich im EG bei der Garderobe und in OG/DG im Bad runter ins KG zum Hauswirtschaftsraum

Bad: man muss sich bewusst werden, dass man, auch wenn man nicht 1,90 groß ist, die Bodenfläche zwar optisch Fläche gibt, aber eben bei einer DN von 45 Grad nicht begehbar ist. Das Leben spielt sich in einem Streifen ab. Wenn man also zu zweit das Bad benutzt, dann gibt es Engstellen: der eine sitzt auf Toi, der andere erreicht dann nicht einfach so die Dusche. Da würde es Vorteile bringen, wenn man die Toi unter die Schräge bringt und abkoffert. Dachfenster mittig anpassen. Dann schiebt sich die Toi unter die Schräge, und die Fläche davor ist frei begehbar, ohne dass der Bewohner/Benutzer auf die Schräge achten muss.
Danke erstmal fürs Aufzeichnen und die Ideen!
Das Bad benutzen wir ausschließlich alleine, außer vllt Mal zum Zähne putzen.
Nichtdestotrotz ist es vrmtl. etwas komfortabler wenn man geradeaus in die Dusche hechten kann ohne Kollisionen mit der Toilette zu befürchten.
Ich befürchte allerdings das geht sich mit dem Dachfenster nicht aus, der Rücksprung im Osten, und die dadurch entstehende Dachform, schränken die Fläche zu Replatzierung leider sehr deutlich ein. Wenn man es in der Höhe reduziert könnte es passen, dann wirds aber ggf. etwas dunkel im Bad...
Müssen wir uns Mal noch genauer anschauen, ob das vllt doch mit dem Fenster hinhaut - und abwägen, ob uns die fehlende Kopffreiheit bei der Toilette das Wert ist :)

Die Gaube im Westen: die würde ich auch mittig anordnen.
Das nehmen wir in jedem Fall mit, ist mir gar nicht aufgefallen, dass diese nicht bündig mit der Wand abschließt. Dafür gibts ja eigentlich keinen Grund.
Der Gaube täte es gut etwas nach unten gerückt zu werden. Oder falls wir bei der Urprungs-variante bleiben, täte es der Wand (bzw. der brenzligen Situation im Schlafzimmer) auch gut etwas nach oben gerückt zu werden (wobei sie statisch dann nicht mehr direkt über der entsprechenden OG-Wand liegt)

Ich würde auch das Bett unter die Schräge setzen und auch hier abkoffern. Hier in die Raumdiagonale gehen.
Das ist eine interessante Idee, werden wir Mal besprechen. Vorteil ist auf jeden Fall die Bewegungsfreiheit zum Bett. Nachteil wäre die Türe direkt vor dem Bett und der - durch die Abkofferung - etwas kleiner wirkende Raum.
 
H

hanghaus2023

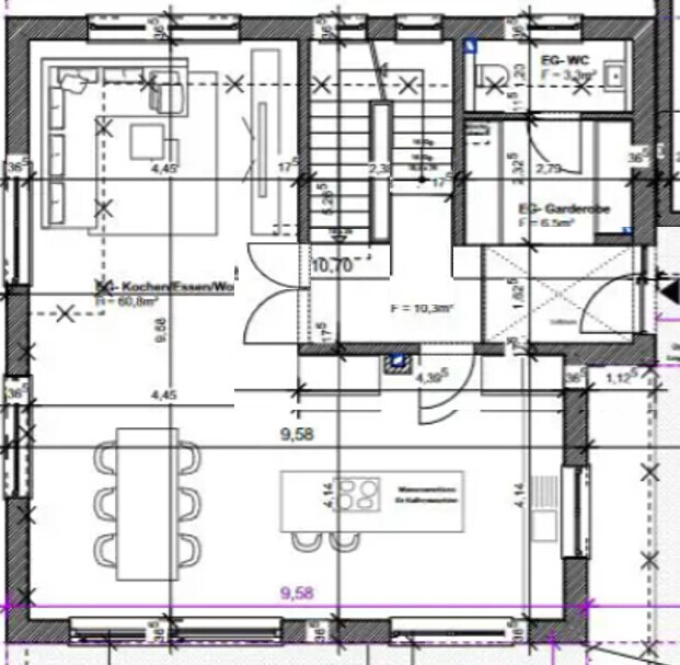
Im EG würde ich gern der Küche etwas mehr Raum geben. Bei der Treppe im Keller und EG jeweils ein Stufe mehr im Osten und jeweils eine weniger im Westen. Somit kann die Wand um 26cm verschoben werden. Dann hat man in der Küche 4,4m und die Garderobe wird um 26 cm kleiner. Dann würde ich zum WZ eine Doppeltür aus Glas vorsehen. Der Flur bleibt gleich.


Grundriss eines Hauses mit Küche, Essbereich, Wohnzimmer, Treppe, WC und Garderobe.
 
Zuletzt aktualisiert 18.11.2025
Im Forum Grundrissplanung / Grundstücksplanung gibt es 2536 Themen mit insgesamt 87961 Beiträgen


Ähnliche Themen zu Einfamilienhaus ~200qm mit Doppelgarage auf trapezförmigem Grundstück
Nr.ErgebnisBeiträge
1Grundrissplanung für schmales Grundstück 16
2130 m² Bungalow mit Doppelcarport bei 600m² Grundstück? - Seite 364
3Schuhe an der Terrasse; wohin damit? Wäre ein Schrank die Lösung? - Seite 228
4Einfamilienhaus ~190qm, drei Kinderzimmer, ohne Keller - Feedback wäre mega 19
5200m2 Einfamilienhaus für 4-5 Personen ohne Keller auf schmalem Grundstück - Seite 467
6Neubau Einfamilienhaus 160-170qm, 3 Kinderzimmer 39
7Aus Gewerbeobjekt wird ein Bungalow - Seite 562
8Grundriss Halboffene Küche mit großem Essbereich - Detailfragen 12
9Fenster / Türen / Garderobe 13
10Grundrissfrage. Grundstück 369qm. Hausgröße 9x9 Meter 20
11Grundrissplanung Wohnzimmer-Küche - Seite 218
12Grundrissplanung für schmales Grundstück, 2. Versuch. 14
13Einfamilienhaus mit 156 m² Grundfläche (2 Kinderzimmer + Homeoffice) 21
14Schmales Grundstück wg. Süd-Zuwegung nach hinten? 40
15Grundriss Bungalow 150qm geschlossene Küche, überdachte Terrasse 40
16Schornstein umnutzen - Ideen? 16
17Grundstück mit Einschnitt Stromstation / L-Form- Ideensuche - Seite 444
18Einfamilienhaus, 3 Kinderzimmer, 2 Bäder, ca. 10,5x10,5 m2 - Seite 331
19Planung Außenanlage - Terrasse positionieren 78
20Einfamilienhaus 160m2 mit Keller, 500m2 Grundstück - Seite 8108

Oben