Einfamilienhaus ~200qm mit Doppelgarage auf trapezförmigem Grundstück

4,60 Stern(e) 8 Votes
Zuletzt aktualisiert 06.10.2025
Sie befinden sich auf der Seite 6 der Diskussion zum Thema: Einfamilienhaus ~200qm mit Doppelgarage auf trapezförmigem Grundstück
>> Zum 1. Beitrag <<

H

hanghaus2023

Lass es DIr vom Architekten aufzeigen. Ich habe es mal versucht, geht irgendwie nicht wirklich, da das Bild als Grundlage bereits schief ist.


Zweistöckiges Haus mit Satteldach, zentraler Dachgaube, mehreren Fenstern an der Front und Garage.
 
H

hanghaus2023

Gibt es Fotos vom Bestand? Der Grundriss vom Abbruch schaut interessant aus. Warum musste man damals nicht die 0,8 H einhalten?
 
M

Mucuc18

Sieht tatsächlich etwas "Kopflastig" aus, evtl. gehen wir doch von den hier nun dargestellten 2,40 wieder auf 2m runter.

Südansicht eines Hauses mit Dachgaube, Fenstern und Terrassentuer – Architekturzeichnung



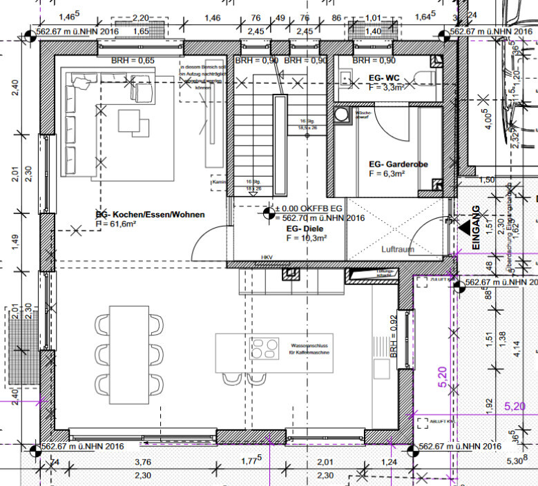
Haben uns zugunsten der besseren Planbarkeit der Küche (insb. für hochschränke) nun vorerst auch gegen eine Türe zwischen Diele und Küche entschieden. Gerade da auch im Eck in der Küche noch ein Schacht von stattlicher Größe für die Kontrollierte-Wohnraumlüftung-Rohre Einzug erhalten hat...

Grundriss EG: Offener Koch/Ess/Wohnen-Bereich, Esstisch, Kücheninsel, Treppe, Eingang.



Gibt es Fotos vom Bestand? Der Grundriss vom Abbruch schaut interessant aus. Warum musste man damals nicht die 0,8 H einhalten?
Die kann ich Mal raussuchen, der hervorstehende Gebäudeteil in Süd und West ist ein eingeschossiger Wintergarten, der dürfte im (damaligen) Bebauungsplan keine Abstandsflächen ausgelöst haben.
 
11ant

11ant

Gütige Göttin. Schau´ Dir ´mal die Kaminschacht-Halbschalen (ibs. ggü. dem HKV) an, und ebenso auch einige der Wandstrecken zwischen den Fenstern (da springen mich schon wieder die Pfuschertaschen an). Auch die grafisch-symbolische Textur der Dachziegelflächen in der Ansicht nährt die Befürchtung, an den Kontrolleursbesuchen hier "nicht sparen zu sollen" ;-)

Vermute ich recht, daß wir es hier mit einem nach seinem Selbstbild "Premium" GU zu tun haben ?
 
Zuletzt aktualisiert 06.10.2025
Im Forum Grundrissplanung / Grundstücksplanung gibt es 2510 Themen mit insgesamt 87172 Beiträgen


Ähnliche Themen zu Einfamilienhaus ~200qm mit Doppelgarage auf trapezförmigem Grundstück
Nr.ErgebnisBeiträge
1Wohnen/Essen/Küche: Wie wohnt ihr oder werdet ihr wohnen? - Seite 352
2Küche über ein Jahr vor Fertigstellung kaufen? - Seite 254
3Kombination Fliesen und Parkett im Wohnzimmer mit offener Küche - Seite 230
4Küche: geschlossen oder offen? Welche Raumaufteilung? - Seite 486
5Grobe Schnitzer im Grundriss? Küche zu klein? - Seite 239
6Parkett in der Küche - gute oder schlechte Erfahrungen? - Seite 321
7Holzparkett im Erdgeschoss und auch in der Küche zu empfehlen? 26
8Küche & Preis - Schnelle Einschätzung erwünscht!! - Seite 25165
9Esstisch in einer kleinen Küche - Seite 949
10Jährlicher Wertverlust Küche durchschnittlich? - Seite 422
11Grundrissplanung Wohnzimmer-Küche - Seite 418
12Heizkreise/Thermostate für Wohnen/Essen/Küche bei Fußbodenheizung/Wärmepumpe 35
13Wasseranschluss außen aus der Küche - möglich? - Seite 339
14Unsere neue erste Ikea Küche - Planung und Vorbereitung - Seite 669
15Neubau - Wann Küche bestellen? 10
16Beleuchtung in Diele und Küche: Deckeneinbau-Strahler benötigt? - Seite 219
17Kochfeld Elektro und Kohleherd in neuer Küche - Seite 532
18offene Küche: Abluft oder Umluft bei Kontrollierte-Wohnraumlüftung & KfW55 40
19Heizung in Küche "notwendig"? - Seite 535
20Nobilia-Küche Erfahrungen, Preise ok? 25

Oben