Einfamilienhaus ~200qm mit Doppelgarage auf trapezförmigem Grundstück

4,60 Stern(e) 8 Votes
M

Mucuc18

Servus liebe Hausbau-Forum-Gemeinde!

Nach fleißigem Mitlesen stelle ich nun gerne unseren aktuellen Entwurf zur konstruktiven Kritik.
Im Folgenden die üblichen Infos, Süden ist die Planunten im Lageplan:

Bebauungsplan/Einschränkungen
Größe des Grundstücks | 512qm
Hang | Nein
Grundflächenzahl | 160qm Grundfläche für Hauptgebäude mgl. (+140qm Überschreitung für sonstiges)
Anzahl Stellplatz | min. 1,5
Dachform | SD / WD oä. (Mansarddächer in Umgebung vorhanden)
Maximale Höhen/Begrenzungen| FH 9,4m | WH 6,5m
weitere Vorgaben | Abstandsflächen von 0,4H auf zwei Seiten, sonst 0,8H

Anforderungen der Bauherren
Stilrichtung, Dachform, Gebäudetyp | klassiches Mansard-Walmdach eher etwas moderner interpretiert
Keller, Geschosse | EG, OG, DG + Keller
Anzahl der Personen, Alter| 2 (30J,33J) + 1 (0J) + x
Raumbedarf im EG, OG | Ca. 80-90qm für jeweils EG und OG
Büro | 1 Büro notwendig für Homeoffice
Schlafgäste pro Jahr | tbd, teilw. jedoch auch längere Besuche
offene oder geschlossene Architektur | eher offen, jedoch mit entsprechendem Schallschutz und Privatsphäre
konservativ oder moderne Bauweise | Eher modern
offene Küche, Kochinsel | große offene Küche mit Insel wichtig
Anzahl Essplätze | 4-6 stetig verfügbar, mit Möglichkeit zur Erweiterung
Kamin | ja
Musik/Stereowand | nein, freies Hifi-System
Balkon, Dachterrasse | nein
Garage, Carport | Doppelgarage
Nutzgarten, Treibhaus | Garten mit Beeten und 2-3 Bäumen, Einfriedung mit Hecke

Hausentwurf
Von wem stammt die Planung: Architekt & eigene Ideen/Zeichnungen
Was gefällt besonders? Warum? Eigenes Elterngeschoss, großzügiger Allraum, gerade Treppe, Anzahl Zimmer im OG (Flexibilität), ausreichend Garderobenplatz, Treppe getrennt vom Wohnraum
Was gefällt nicht? Warum? Aufstellungsmöglichkeiten Wärmepumpen-Außengerät, DG ggf. mit etwas viel Platz, der nicht sinnvoll genutzt werden kann (Schrägen)
Preisschätzung lt Architekt/Planer: bisher keine getätigt
Preislimit Haus, inkl Ausstattung.: 1,4-1,5m
favorisierte Heiztechnik: Luft-Wasser-Wärmepumpe

Wenn Ihr verzichten müsst, auf welche Details/Ausbauten
-könnt Ihr verzichten: Kamin, Pool, ggf. Doppelgarage
-könnt Ihr nicht verzichten: Möglichst „großer“ Garten

Warum ist der Entwurf so geworden, wie er jetzt ist? ZB
Mischung aus eigenen Vorstellungen/Ideen und Architekt sowie einigen „Verbesserungsschleifen“ über die letzten Wochen. Prinzipiell vorherrschend ist hier der Versuch auf einem eher kleinen Grundstück möglichst viel zusammenhängende Gartenfläche zu erhalten. Daher mit Rücksprung im Osten geplant, um Abstandsflächen auf dem trapezförmigen Grundstück einzuhalten. 3 Geschosse + Keller sollen dafür sorgen, die Grundfläche des Hauses möglichst klein zu halten und den „Elternbereich“ etwas vom Kinder/Gast – Bereich zu trennen. Unsere Wünsche sehen wir im aktuellen Grundriss gut umgesetzt. Kleinere Details z.B. die Fenstermaße betreffend wollen wir noch anpassen (z.B. gleich große Fenster im OG Westen, ggf. etwas größere Hängeschiebetüre im EG, …)

Was ist die wichtigste/grundlegende Frage zum Grundriss in 130 Zeichen zusammengefasst?
Sehr ihr Verbesserungspotentiale, welche wir berücksichtigen sollten oder gar No-Gos welche wir nochmals überdenken sollten? Wir sind mit dem erreichten Stand recht zufrieden, freuen uns aber über Input, zu Themen, die wir ggfs. übersehen oder uns bisher "schöngeredet" haben

EG

Grundrissplan eines Hauses mit Garage, Terrasse und Garten.


OG

Grundriss Obergeschoss eines Hauses mit Flur, Gästezimmer, Arbeitszimmer, Bad und zwei Kinderzimmern.


DG

Grundriss Dachgeschoss: Flur/Ankleide, Schlafzimmer, Bad, Treppenhaus, Garagenbereich.


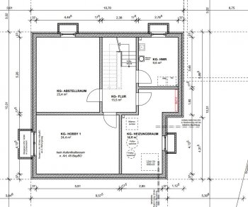
KG

Grundriss Kellergeschoss mit Abstellraum, Hobbyraum, Flur, Heizungsraum und HWR.


Schnitt

Querschnitt eines mehrstöckigen Hauses mit Treppen, Fluren und Räumen (Wohnen, Schlafen 1).

Ansicht Süd

Architektur-Rendering eines zweistöckigen Hauses mit Satteldach, Gaube, Fenstern und Garage


Ansicht Ost

Ostansicht eines zweigeschossigen Hauses mit Ziegeldach, Dachgauben, zentraler Eingang und Anbau


Ansicht West

Frontansicht eines Hauses mit Mansarddach, Gaube, drei Fenster oben und zwei Türen unten.
 
M

Müllerin

Sehr ihr Verbesserungspotentiale, welche wir berücksichtigen sollten oder gar No-Gos welche wir nochmals überdenken sollten?
zum Grundriss sag ich nix, da haben andere einen besseren Überblick.
Aber diese Dachform - die ist heutzutage echt ein No-Go, da passt ja fast gar kein Photovoltaik drauf.
 
11ant

11ant

zum Grundriss sag ich nix, da haben andere einen besseren Überblick.
Schön, daß Du auch mal wieder hier bist !
Aber diese Dachform - die ist heutzutage echt ein No-Go, da passt ja fast gar kein Photovoltaik drauf.
Endlich mal ein Mansarddach - und dann auch noch in beiden Dimensionen !
Daß es selten geworden ist, liegt eher an seiner faktischen Ausrottung durch gedankenlose Bebauungspläne. Vom Prinzip her ist diese Dachform gerade die bestoptimierbare für Photovoltaik.
 
Y

ypg

Preisschätzung lt Architekt/Planer: bisher keine getätigt
Das solltet ihr allerdings mal tun… das ist ja schon eine Marie: das Mansarddach zählt ja auch als vollständiger Ausbau der knappen 80qm.
Preislimit Haus, inkl Ausstattung.: 1,4-1,5m
Ach, das lese ich jetzt erst. Na, dann :)
Raumbedarf im EG, OG | Ca. 80-90qm für jeweils EG und OG
der Versuch auf einem eher kleinen Grundstück möglichst viel zusammenhängende Gartenfläche zu erhalten.
Bedenke, dass Eure mega Auffahrt auch wieder den Garten einschränkt.
No-Gos welche wir nochmals überdenken sollten?
Naja… das Dach man mögen. Passt aber zur Kaffeemühlenvilla. Modern würde ich es nicht bezeichnen.
Nogos wären für mich das Gäste-Klo hinter der Garderobe, die Wanne im Eltern- und nicht im Kinderbereich, eine Duschtür im Kinderbad (wer soll die putzen?) und schon irgendwie ein großer Planungsfehler: die fehlende Höhe im Schlafzimmer an einer Ecke (untere linke Bettecke und Dachschräge). Ein 1,90 großer Mann muss sich da schon einrücken, dass er da ohne Kopfnuss durchkommt.
 
kbt09

kbt09

Ich finde gerade die Dachform ausgesprochen apart und wg. Photovoltaik kann man ja auch mal überlegen die Photovoltaik quasi als "Dachziegel" ausführen zu lassen. Ein Budget war ja nicht genannt ;) ... @ypg hat es gerade entdeckt ... also ok vermutlich.

Grundriss gefällt mir. Nur bei der Küche würde ich mal konkret planen, die zerrissene Wand zum Flur sollte gut durchdacht werden. Und, den Luftraum würde ich sparen und lieber auf der "Kinder/Gastetage" Waschmaschine/Trockner ermöglichen.

Schlafzimmer Bettkante sehe ich wie Yvonne, allerdings würde ich da vermutlich das Bett einfach 90 ° drehen und mit dem kopfteil an die planrechte Wand stellen.

Badewanne nur im großen Bad finde ich nicht schlimm, weil das Bad über den Flur erschlossen ist. Duschtür im Kinderbad kann genauso gut ein Duschvorhang sein, ansonsten eben doch eine Duschtür. Die Phase Kinder und Badewanne ist nicht immer ausgesprochen lang und insbesondere in den ersten Jahren ohne Anwesenheit eines Elternteils eh nicht möglich.

Es ist halt sehr viel Platz ... gibt es soviel Hobby für soviel Keller?
 
Zuletzt aktualisiert 04.12.2025
Im Forum Grundrissplanung / Grundstücksplanung gibt es 2546 Themen mit insgesamt 88213 Beiträgen


Ähnliche Themen zu Einfamilienhaus ~200qm mit Doppelgarage auf trapezförmigem Grundstück
Nr.ErgebnisBeiträge
1Grundriss für Einfamilienhaus 210 m² + Keller - Eure Meinungen 16
2Grundriss Einfamilienhaus mit Keller und Garage 50
3Grundriss, Hausanordnung EFW 150m2, Keller + Einliegerwohnung - Feedback erwünscht - Seite 967
4Entwurf Einfamilienhaus mit ca. 168m² Feedback 37
5Grundriss-Bewertung - was haltet ihr von dem ersten Grundriss? 15
6Einfamilienhaus ohne Keller - Diskussion Grundriss 19
7Kritik an Einfamilienhaus-Grundriss erwünscht (~175m2/0,9m Kniestock/Keller) 16
8Einfamilienhaus,Zwei Varianten Grundriss vom Architekt 39
9Grundriss Einfamilienhaus ohne Keller, 3 Kinderzimmer und Büro 18
10Grundriss Stadtvilla 180m², Keller, 3 Kinder - Eure Meinungen dazu? - Seite 751
11Grundriss 165 m² mit Keller eure Meinung - Seite 552
12Grundriss Einfamilienhaus ca. 190qm mit Keller auf Millimeterpapier 78
13Grundriss Einfamilienhaus 2 Stockwerke ohne Keller 11
14Grundriss Einfamilienhaus SW-Hang ca. 160qm Wohnfläche + Keller - Seite 211
15Hausbau 2.0 - erster Grundriss-Entwurf - Seite 13155
16Grundriss-Entwurf: Einfamilienhaus mit Keller; 560qm Grundstück - Seite 765
17Mal wieder ein Grundriss 15
18Doppelhaushälfte - Verbesserungen im Grundriss 15
19Stadtvilla 190m² mit Einfahrt & Garten zur Südseite 30
20Einfamilienhaus, ~160m², Bauhausstil; Erster Entwurf nach unseren Wünschen 420

Oben