ᐅ Einfamilienhaus 150qm - Ruhiges Dörfchen, Platz zu den Nachbarn
Erstellt am: 13.04.20 18:07
L
Lisa24Hallo ihr Lieben,
Wir haben zwar schon unsere Baugenehmigung, trotzdem würde es mich interessieren wie ihr es gemacht hättet, was ihr verändert hättet.
Bebauungsplan/Einschränkungen
Größe des Grundstücks: 1000m²
Randbebauung: erlaubt nur Garage ohne Fenster
Geschossigkeit: zwei Vollgeschosse
Dachform: Satteldach
Stilrichtung: modern
Ausrichtung: Nord-Ost, damit Garten in SW
Anforderungen der Bauherren
Wir wollten Platz aber keinen Raum her schenken, wie manche mit z.B. einer Galerie. Großer Wohn-Essbereich, da wir uns dort am meisten aufhalten. Das Büro soll zwingend ins EG und wir wollten auch 2 „Bäder“ unten, da wir wenn wir alt sind nur noch im EG wohnen wollen. Keller ist im Budget und den Platz brauchen wir auch durch Pelletheizung und Pelletlager. Wir sind eine Familie mit später 2 Kindern. Die Familienplanung ist mit dem 2. Kind abgeschlossen.
Stilrichtung, Dachform, Gebäudetyp: modern, Satteldach
Keller, Geschosse: Keller, zwei Vollgeschosse
Anzahl der Personen, Alter: 2 Erwachsene, später mal 2 Kinder: 27,31 Jahre alt
Raumbedarf im EG, OG: jeweils ca. 75 m²
Büro: Homeoffice
Schlafgäste pro Jahr: 2-4
offene oder geschlossene Architektur: eher offen
konservativ oder moderne Bauweise: modern
offene Küche, Kochinsel: offene Küche mit Insel
Anzahl Essplätze: 6
Kamin: nein
Musik/Stereowand: nein
Balkon, Dachterrasse: kein Balkon, später mal überdachte Terrasse
Garage, Carport: Garage
Nutzgarten, Erholungsgarten, Naschgarten
weitere Besonderheiten
Photovoltaikanlage
Hausentwurf
Von wem stammt die Planung:
-Planer eines Bauunternehmens
Was gefällt besonders? Warum?
Der Grundriss gefällt uns schon sehr gut.
Was gefällt nicht? Warum?
evlt. zu viel Platz verschenkt?? Wohn-Esszimmer zu eng?
Preisschätzung lt Architekt/Planer: 450.000€
Persönliches Preislimit fürs Haus, inkl Ausstattung: 530 000€
Heiztechnik: Pelletheizung und Fußbodenheizung, Heizstab damit die Photovoltaikanlage auch das Wasser mit Strom erwärmen kann
Wenn Ihr verzichten müsst, auf welche Details/Ausbauten
-könnt Ihr nicht verzichten:
EG Bad, Büro
Warum ist der Entwurf so geworden, wie er jetzt ist?
Individuelle Planung
Was ist die wichtigste/grundlegende Frage zum Grundriss in 130 Zeichen zusammengefasst?
Bitte um Meinungen zur Raumaufteilung und Grundrissgestaltung
Viele Grüße
Lisa & Udo
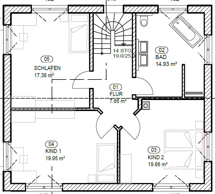
Im Norden liegt die Einfahrt,
Im Süden das Wohn-Esszimmer-Küche
EG + Garage mit Überdachung des Durchgangs

OG

Wir haben zwar schon unsere Baugenehmigung, trotzdem würde es mich interessieren wie ihr es gemacht hättet, was ihr verändert hättet.
Bebauungsplan/Einschränkungen
Größe des Grundstücks: 1000m²
Randbebauung: erlaubt nur Garage ohne Fenster
Geschossigkeit: zwei Vollgeschosse
Dachform: Satteldach
Stilrichtung: modern
Ausrichtung: Nord-Ost, damit Garten in SW
Anforderungen der Bauherren
Wir wollten Platz aber keinen Raum her schenken, wie manche mit z.B. einer Galerie. Großer Wohn-Essbereich, da wir uns dort am meisten aufhalten. Das Büro soll zwingend ins EG und wir wollten auch 2 „Bäder“ unten, da wir wenn wir alt sind nur noch im EG wohnen wollen. Keller ist im Budget und den Platz brauchen wir auch durch Pelletheizung und Pelletlager. Wir sind eine Familie mit später 2 Kindern. Die Familienplanung ist mit dem 2. Kind abgeschlossen.
Stilrichtung, Dachform, Gebäudetyp: modern, Satteldach
Keller, Geschosse: Keller, zwei Vollgeschosse
Anzahl der Personen, Alter: 2 Erwachsene, später mal 2 Kinder: 27,31 Jahre alt
Raumbedarf im EG, OG: jeweils ca. 75 m²
Büro: Homeoffice
Schlafgäste pro Jahr: 2-4
offene oder geschlossene Architektur: eher offen
konservativ oder moderne Bauweise: modern
offene Küche, Kochinsel: offene Küche mit Insel
Anzahl Essplätze: 6
Kamin: nein
Musik/Stereowand: nein
Balkon, Dachterrasse: kein Balkon, später mal überdachte Terrasse
Garage, Carport: Garage
Nutzgarten, Erholungsgarten, Naschgarten
weitere Besonderheiten
Photovoltaikanlage
Hausentwurf
Von wem stammt die Planung:
-Planer eines Bauunternehmens
Was gefällt besonders? Warum?
Der Grundriss gefällt uns schon sehr gut.
Was gefällt nicht? Warum?
evlt. zu viel Platz verschenkt?? Wohn-Esszimmer zu eng?
Preisschätzung lt Architekt/Planer: 450.000€
Persönliches Preislimit fürs Haus, inkl Ausstattung: 530 000€
Heiztechnik: Pelletheizung und Fußbodenheizung, Heizstab damit die Photovoltaikanlage auch das Wasser mit Strom erwärmen kann
Wenn Ihr verzichten müsst, auf welche Details/Ausbauten
-könnt Ihr nicht verzichten:
EG Bad, Büro
Warum ist der Entwurf so geworden, wie er jetzt ist?
Individuelle Planung
Was ist die wichtigste/grundlegende Frage zum Grundriss in 130 Zeichen zusammengefasst?
Bitte um Meinungen zur Raumaufteilung und Grundrissgestaltung
Viele Grüße
Lisa & Udo
Im Norden liegt die Einfahrt,
Im Süden das Wohn-Esszimmer-Küche
EG + Garage mit Überdachung des Durchgangs
OG
H
hampshire13.04.20 18:23Lisa24 schrieb:
Die Familienplanung ist mit dem 2. Kind abgeschlossen.Das ist lustig. Ich kenne 2 Familien mit Drillingen und eine weitere, da waren die letzten beiden Zwillinge. wir haben immer gesagt es wird gefüttert was kommt, 2 wären klasse und hatten Glück mit Anzahl und "Ausführung".Lisa24 schrieb:
evlt. zu viel Platz verschenkt?Der Eingang nimmt viel Raum ohne wirklich Garderobenplatz zu bieten. Wenn der Sinn dahinter ist, dass man im Büro doppelt getrennt vom Wohnbereich ist - OK. Anderenfalls vielleicht Lage des Bades mit dem Büro tauschen, einen kürzeren Eingang mit Garderobe wählen und die Treppe etwas in Richtung Haustüre schieben. Das "Schlafzimmer" oben hält eine Verkleinerung aus (zumal es ja auch nur ein Bett hat )Du kannst überlegen ob es unten Gästetoilette und Bad braucht oder die Gästetoilette verzichtbar ist. Das würde Raum schaffen.
Lisa24 schrieb:
Wohn-Esszimmer zu eng?Ja, das kommt mir eng vor. Der Esstisch wird so aufgestellt im Weg stehen und die Couchgarnitur scheint von der sehr kompakten Sorte zu sein. Diese Möbel scheinen mir doch etwas knapp bemessen zu sein.Was ist schon "zu eng" - wir Häuslebauer hier leben alle sehr privilegiert wenn man sich mal in der Welt so umsieht. Also "zu eng" ist das natürlich nicht. Wenn ich es aber schon selbst gestalten kann würde ich da etwas mehr Großzügigkeit einbringen wollen.
hampshire schrieb:
Das ist lustig. Ich kenne 2 Familien mit Drillingen und eine weitere, da waren die letzten beiden Zwillinge. wir haben immer gesagt es wird gefüttert was kommt, 2 wären klasse und hatten Glück mit Anzahl und "Ausführung".Ich weiß planen kann man viel dann wird aus dem Büro ein drittes Kinderzimmer und der Mann muss in den Keller, zur Not später auch mal ein Kind oder die Kinder müssen sich ein Zimmer teilen. Egal wie viele Kinder, alle werden geliebt
hampshire schrieb:
Der Eingang nimmt viel Raum ohne wirklich Garderobenplatz zu bieten. Wenn der Sinn dahinter ist, dass man im Büro doppelt getrennt vom Wohnbereich ist - OK. Anderenfalls vielleicht Lage des Bades mit dem Büro tauschen, einen kürzeren Eingang mit Garderobe wählen und die Treppe etwas in Richtung Haustüre schieben. Das "Schlafzimmer" oben hält eine Verkleinerung aus (zumal es ja auch nur ein Bett hat )
Du kannst überlegen ob es unten Gästetoilette und Bad braucht oder die Gästetoilette verzichtbar ist. Das würde Raum schaffen.Oben haben wir eig. genug Platz/bzw. die Zimmergrößen passen uns, nur unten war immer zu wenig. Wir hatten das Bad auch mal mit dem Büro getauscht, hat uns leider irgendwie nicht weitergebracht, separates WC ist notw.
hampshire schrieb:
Ja, das kommt mir eng vor. Der Esstisch wird so aufgestellt im Weg stehen und die Couchgarnitur scheint von der sehr kompakten Sorte zu sein. Diese Möbel scheinen mir doch etwas knapp bemessen zu sein.
Was ist schon "zu eng" - wir Häuslebauer hier leben alle sehr privilegiert wenn man sich mal in der Welt so umsieht. Also "zu eng" ist das natürlich nicht. Wenn ich es aber schon selbst gestalten kann würde ich da etwas mehr Großzügigkeit einbringen wollen.Leider können wir die Grundmaße/Außenmaße nicht ändern, ich offe wir kommen mit dem Wohn-Esszimmer/Küche zurecht, hm.....
ypg schrieb:
Du willst es nicht wissen!
Wenn eine Baugenehmigung schon da ist, will man nicht die Nachteile bzw Verbesserungen wissen, die man hätte...Doch genau die will ich wissen. Jeder ist anders und mag anderes, findet anderes toll. Wir haben jetzt ewig (Jahre ) daran gebastelt und für UNS passt er soweit.
Natürlich wenn das Budget unbegrenzt wäre.....
ypg schrieb:
Du willst es nicht wissen!
Wenn eine Baugenehmigung schon da ist, will man nicht die Nachteile bzw Verbesserungen wissen, die man hätte...Wieso? Innen kann er doch noch Wände schieben, wie er lustig ist.Die Eingangs-Überdachung würde ich an der Hinterseite schließen, weil es dort sonst ganz schön durch pfeift. Leider kennen wir das Grundstück nicht, so dass wir nicht wissen, wie die Lage genau ist.
Lisa24 schrieb:
separates WC ist notw. Das kann es ja auch sein. Aber dann könnte man im Bad das WC weglassen und dort Platz sparen. So habt Ihr praktisch 2 WC's nebeneinander und ein drittes oben. Wer soll die alle putzen? Badaufteilung oben find ich sehr schön, unten dagegen häßlich.
Der Allraum ist schon etwas knuffig - ich find das aber noch ok.
Fenster in der Straßenansicht sind nicht symmetrisch, oder verguck ich mich da? Das würde ich noch ändern - da bin ich spießig. Fenster hinterm Bett ist auch nicht so der Brüller aber damit könnt ich leben.
Ähnliche Themen