Badezimmergestaltung - Wir bleiben bei der T-Lösung

4,30 Stern(e) 4 Votes
Zuletzt aktualisiert 22.11.2025
Sie befinden sich auf der Seite 3 der Diskussion zum Thema: Badezimmergestaltung - Wir bleiben bei der T-Lösung
>> Zum 1. Beitrag <<

Y

ypg

Also so?:

Anhang anzeigen 17726

Hier schaut man dann aber aus der Badewanne auch wieder auf das WC.
...
Irgendwas ist immer, hab ich das Gefühl :-(
Ich habe damit auch kein Problem, das waren andere hier [emoji6]
Ich weiß ja nicht, was Du so in der Wanne machst, aber ich halte meinen Kopf meist im Nacken und habe die Augen zu. Dann und wann sitze ich auch, aber da habe ich meist Schaum im Auge. Und wenn ich schaue, dann gewiss nicht kontrolliert zur Toilette.
Bei mir ist aber auch der Deckel zu... und drinnen sauber [emoji23]
Was ich aber weiß: bei der Wanne braucht man Ablage, und dafür ist die 2,80 zu knapp.

Die Forumsmeinung ist auch nicht bestimmend, insofern solltest Du Dich an _der_ Antwort orientieren, in der Du Dich siehst.
 
RobsonMKK

RobsonMKK

Letztes Bild, Tö um 90 Grad drehen und an der Wand auf 100 cm Mitteln. Von dort aus eine Wand nach links ziehen um ein L zu formen, fertig ist das Bad.
 
N

NanDe

Das letzte sieht gut aus. War ja auch meine Idee. Leider kann ich hier gerade nicht malen, aber m.E. fehlt da nur der Feinschliff.

Was für eine Duschtasse kommt da hin und wie ist die Türe von der Dusche geplant.

Kann ich den Plan mal bemaßt haben? Dann male ich was mit meinen Paint Skills auf Lv. -6.
Wir möchten eine bodentiefe geflieste offene Dusche ohne Tür. Die Duschtasse habe ich nur zur Darstellung ausgewählt. Ich habe leider keinen vermassten Plan. Es steht nur 4 x 2,8 fest. Das Fenster und die Tür ist noch änderbar
 
T

toxicmolotof

...bodentiefe geflieste offene Dusche ohne Tür.
Okay, bodentief passt, kein Problem. Ohne Tür? Vergiss dass mit deinen Maßen. Dir wird die Suppe bis zum Klo laufen. Okay, die Formulierung war jetzt etwas radikal, aber ich weiß wovon ich spreche. Die Theorie, dass Wasser sich auf 100x100cm verteilt und dort bleibt funktioniert nur so lange, wie kein Körper drin steht.

Ich rate dir dringend dazu, mindestens 120, wenn nicht sogar 140 cm zu nehmen. Oder vielleicht doch eine Glastüre. Mit 4x2,8 kann man schon jede Menge reißen.

Hier mal mein Vorschlag, aber bitte darauf achten, dass die Nische fürs WC nicht zu klein wird. So könnte es dann aber mit dem "ohne Tür" klappen.

Im Prinzip könntet ihr sogar den Waschtisch samt blauer Wand noch 20-30 cm in den Raum nach unten ziehen. Das ist dann eine riesige Dusche.


Grundriss eines Zimmers: Gelbes Bettgestell mit rotem Rand und blauem Sockel; linke Badewanne.


Sorry für die Überskills.


Vielleicht fällt mir noch was ein, was man machen könnte. Eigentlich kann man mit dem Platz sehr viel machen. Auch sowas, oder etwas mit einer leicht (oder stark) schrägen Wanne links oben...


Raumplan: linke Ablage und Schrank, gelbes Möbelstück rechts, roter U-förmiger Ständer




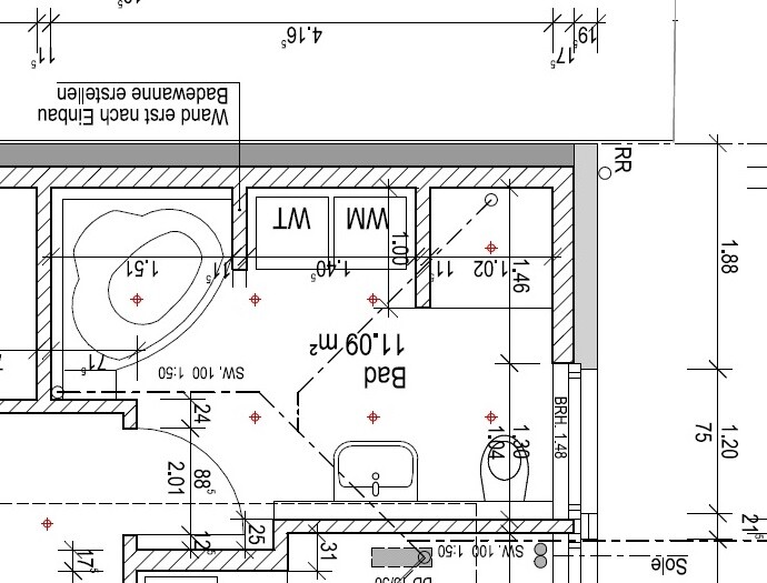
Ach, hier übrigens ein Bad mit ähnlichen Maßen, wenn auch etwas mehr Ecken...


Grundriss eines Badezimmers mit Badewanne links, Waschbecken Mitte, Toilette rechts, Maße.
 
T

toxicmolotof

Die obere Variante hat ein T, nur nenne ich es so eben L. Und die untere Variante hat ein das T auseinandergerissen. Nun sind es zwei I. Vielleicht ergänzt... Das rote I gibt's au in halb hoch. Quasi nicht I sondern i.
 
Zuletzt aktualisiert 22.11.2025
Im Forum Sanitär / Bad / WC gibt es 1379 Themen mit insgesamt 14422 Beiträgen


Ähnliche Themen zu Badezimmergestaltung - Wir bleiben bei der T-Lösung
Nr.ErgebnisBeiträge
1Walk-In Dusche, Spritzwasser, brauche ich eine Tür? 35
2Nachträglicher Einbau Wanne oder Dusche? 27
3Grundriss Bad mit Dusche 11
4Anschlagrichtung und Position Tür im Bad OG 14
5Badplanung bei einem kleinen Bad mit Walkinn Dusche 22
6Hauptbadezimmer (10qm) mit offener Dusche, Ideen? - Seite 1384
7Dusche auf Podest und Schubfach 13
8größere Dusche im Grundriss unterbringen - Welche Größe wählen? - Seite 638
9Grundrissplanung: Badezimmer Dusche 47
10Größe begehbare Dusche - Seite 430
11Walk-in Dusche, welche Breite für den Zugang - Seite 643
12Dusche 2 Seiten offen - Seite 526
13Bodentiefe offene Dusche, welche Größe? - Seite 316
14Kleine Walk-in-Dusche möglich? - Seite 211
15Offene Dusche - Wie tief? 28
16Unterputzarmaturen Wanne mit Handbrause - Seite 211
17Badplanung - Dusche und Badewanne tauschen? - Seite 224
18Dusche Gefälle in falsche Richtung 36
19Bad-Grundriss 8,7qm, mit Dusche und Badewanne - Seite 216
20Badgrundrissplanung schwierig - Wer hat Ideen? 16

Oben