Après presque exactement 3 mois, je reviens ici avec des nouvelles.
D'abord, beaucoup de choses ont changé, c'est pourquoi je tiens à m'excuser d'avoir publié des plans déjà à un stade très précoce de notre projet, qui ont ensuite été complètement abandonnés à plusieurs reprises.
Cependant, nous avons eu un rendez-vous chez notre architecte en début de semaine et depuis, il travaille sur les plans pour la demande de permis de construire.
Comme je n'ai pas encore les plans, mais que je veux pouvoir demander des modifications tôt, je vous montre maintenant mes plans. Cela correspond également à l'état qui sera demandé.
Je vous demande donc de pardonner cette présentation et ces cotes un peu approximatives.
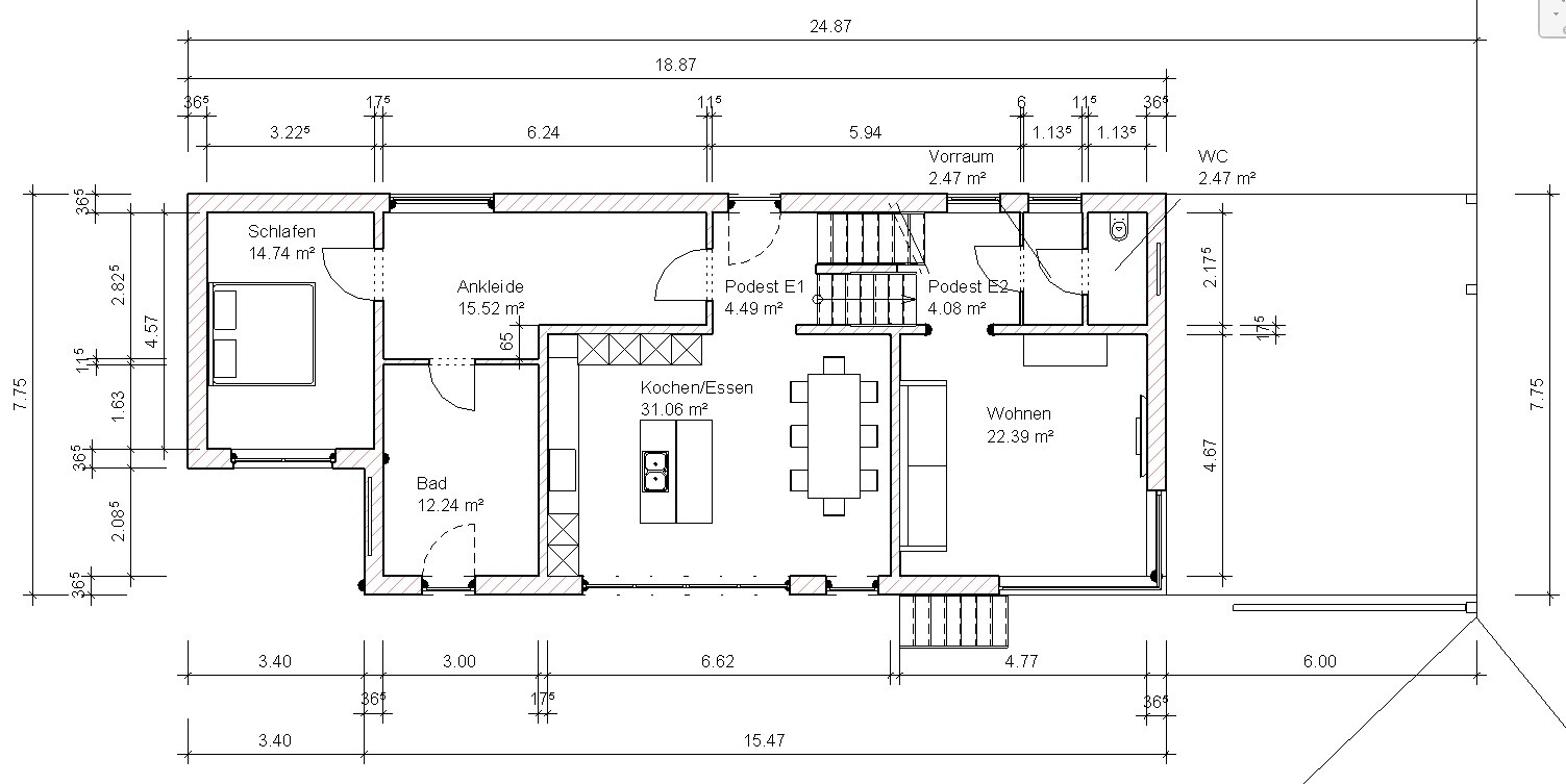
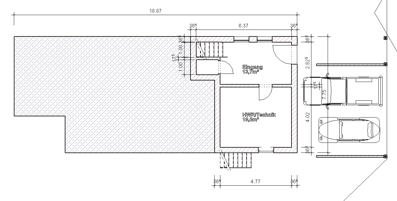
Nous aurons une maison split-level que nous allons aussi entrer par le bas, même si nous ne le voulions pas à l'origine.
Un autre accès est possible par la terrasse nord, mais pour vraiment en profiter, il faudrait construire une sorte de rampe au nord de la maison pour pouvoir monter aussi en voiture. Cela engendrerait des coûts énormes et en plus, nous aurions alors une entrée avec une pente de 15 %, que nous devrions monter ou descendre en marche arrière à chaque fois.
Ainsi, nous devons porter toutes les courses une demi-niveau plus haut, mais nous pouvons le faire à l'abri des intempéries. De plus, avec la planification actuelle, nous ne devrons pas déneiger un seul mètre, car nous n’aurons sous cette forme aucun trottoir extérieur.
Comme terrasse, une grande est prévue au sud et une plus petite au nord pour le plein été.
Les deux sont à proximité immédiate de la cuisine.
Pour la terrasse sur le toit, nous avons maintenant une sorte de sas dans lequel nous pourrons en hiver stocker les meubles de jardin et les plantes sans devoir tout descendre au sous-sol (la pièce sera un jour sacrifiée pour un sauna).
De plus, il devrait y avoir de la place pour une petite kitchenette avec réfrigérateur, pour que la terrasse sur le toit s’intègre mieux dans la vie quotidienne.
Nous aurions souhaité des chambres d'enfants un peu plus grandes, mais avec la géométrie du bâtiment, cela n'est possible qu'avec des sobres dépassants.
Nous réfléchissons encore à savoir s'il serait judicieux de déplacer le mur sud des chambres d'enfant un petit peu vers le sud pour agrandir un peu les pièces.
Cela créerait certes un dépassement, mais celui-ci jouerait aussi au rez-de-chaussée son rôle de protection solaire en été + une partie de la terrasse sud serait couverte.
Nous devons encore clarifier cela, pour l’instant cela ne semble pas le cas.
Nous voulions absolument que les toilettes invités au rez-de-chaussée aient 2 portes les séparant du séjour, pour avoir une sas anti-odeurs et anti-bruit.
La proposition de l'architecte serait de faire le mur de la plateforme vers le sas en verre.
L'alternative serait de réunir la zone du sas et les toilettes en une seule pièce, mais nous n’aurions alors qu’une seule porte entre les toilettes et le séjour.
Cuisine/salle à manger et salon sont reliés par une sorte de galerie, qui reste ouverte grâce à une rambarde en verre.
Nous n'avons pas encore défini l'aménagement de la salle de bain, cela viendra plus tard.
Qu'est-ce qui vous frappe encore ? Je me suis vraiment creusé la tête ces 3 derniers mois, mais à un moment donné on ne voit plus la forêt à cause des arbres.
Je serais donc très reconnaissant pour vos retours !
Salutations !
