Wie das Haus auf dem Grundstück platzieren?

4,60 Stern(e) 7 Votes
Zuletzt aktualisiert 07.01.2026
Sie befinden sich auf der Seite 2 der Diskussion zum Thema: Wie das Haus auf dem Grundstück platzieren?
>> Zum 1. Beitrag <<

Y

ypg

Ich würde Räume nach Bedürfnissen ausrichten. So macht man es „eigentlich“. Aufenthaltsräume Rtg Süd und West, Nebenräume gen Nord.
Wo dann Giebel oder Traufe landen, ist doch schnuppe, außer Du willst unbedingt mit Strom (Photovoltaik) Dein Taschengeld aufbessern.
 
H

haydee

Südfenster und keine Südterrasse schließt sich nicht aus.
Südterrassen sind doch meist zu warm. Im Westen ist der Garten.

Warum willst du die ganze Straßenfront für Parken nutzen? Carports verdunkeln die Fenster am Haus
 
C

cyberosti

Das hört sich nach einem konkreten Hausmodell an - das hat doch dann bestimmt auch eine konkrete Aufteilung (und Räume, denen ihre Fensterseite/n nicht gleichgültig ist/sind).

... was für mich nach einer niedrigen Wahrscheinlichkeit klingt, den Faktor Höhenspiel vernachlässigen zu können.

Auf dieser halben Faktenbasis kann meine Antwort treffendstenfalls "42" lauten ;-)
Die Außenmaße stehen nicht zu hundert prozent fest. Wir sind innen variabel. Aber das Haus wird am Ende etwa diese Maße haben. Deine zweite Antwort mit dem Höhenspiel verstehe ich nicht :). Photovoltaikanlage soll es schon irgendwann mal sein allerdings ist meine Information, dass dafür eine Westausrichtung des Daches ebensogut geeignet ist wie eine Südausrichtung.
 
C

cyberosti

Südfenster und keine Südterrasse schließt sich nicht aus.
Südterrassen sind doch meist zu warm. Im Westen ist der Garten.

Warum willst du die ganze Straßenfront für Parken nutzen? Carports verdunkeln die Fenster am Haus
Falls du eine bessere Idee hast was Pkw-Stellflächen angeht bin ich für alles offen :).
 
C

cyberosti

Was sagt der Bebauungsplan?
Wie ist der Grundriss
Wenn es Maße gibt gibt es doch einen.
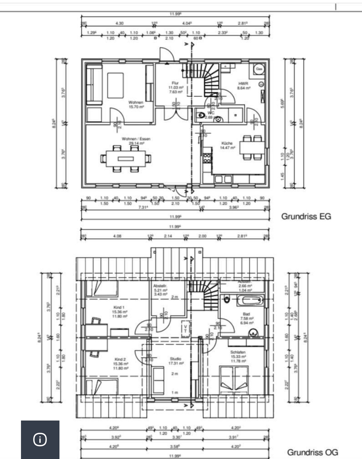
Der Bebauungsplan ist uralt. Ich kann auf deutsch gesagt so ziemlich machen was ich will. Grundriss liegt anbei. Dieser ist aber noch nicht absolut fix. Je nach Ausrichtung des Hauses könnte ich die Küche auch mit dem Bereich „Wohnen“ tauschen. Dann würden sich Küche und Hauswirtschaftsraum praktisch durch den Flur getrennt gegenüberliegen. Bei dieser Variante würde das Haus dann (gespiegelt) mit der Dachseite zur Straße zeigen. Ich möchte nämlich die Küche generell im Südosten haben und den Wohnbereich daran angrenzend im Süden / Westen.

Grundriss eines Hauses: EG mit Wohnen, Essen, Küche; OG mit Schlafzimmern und Bad.
 
Zuletzt aktualisiert 07.01.2026
Im Forum Grundrissplanung / Grundstücksplanung gibt es 2565 Themen mit insgesamt 88780 Beiträgen


Ähnliche Themen zu Wie das Haus auf dem Grundstück platzieren?
Nr.ErgebnisBeiträge
1Grundriss Halboffene Küche mit großem Essbereich - Detailfragen - Seite 212
2Wie findet ihr diesen Grundriss? - Seite 211
3Grundriss: Bitte um Meinungen Erdgeschosstwurf - Seite 214
4Bitte um ehrliche Meinung zu unserem Grundriss!! 29
5Grundriss die IV! :-) 18
6Meinungen zum Grundriss EG 10
7Grundriss Stadtvilla - Danke für euer Feedback - Seite 215
8Eure Meinung zum Grundriss für das EG 28
9Meinung zum Grundriss eines geplanten Bauhauses - Seite 323
10Hilfe beim Grundriss des Hauses, Verbesserungsvorschläge? 28
11Stadtvilla -> Eure Meinung zum Grundriss, Vorschläge - Seite 321
12Grundriss Bungalow, sucht wertvolle Tipps / Bemerkungen 24
13Unser Grundriss von 120qm auf 469qm Grundstück - Seite 1273
14Grundriss Einfamilienhaus mit Doppelgarage und Terrasse - Seite 219
15Grundriss für Einfamilienhaus 12
16Eure Meinungen zu unserem Grundriss und Angebot - Seite 322
17Vorplanung mit dem Architekten - eigener Grundriss sinnvoll? 18
18Grundriss Einfamilienhaus. Bitte um Feedback bzw Ideen :-) - Seite 325
19Grundriss - Anregungen für 140m² Einfamilienhaus 19
20Grundriss Stadtvilla eines Massivhausanbieters - Bitte Feedback 28

Oben