Wie das Haus auf dem Grundstück platzieren?

4,60 Stern(e) 7 Votes
Zuletzt aktualisiert 21.11.2025
Sie befinden sich auf der Seite 6 der Diskussion zum Thema: Wie das Haus auf dem Grundstück platzieren?
>> Zum 1. Beitrag <<

C

cyberosti

Ist ja gut. Ich bin lernfähig. Ist meine erste Hausplanung. Und hoffentlich die letzte ;)!Fragebogen kommt!
Vielen Dank!!
 
O

Oetzberger

Mir stellt sich allerdings die Frage ob ich mir das dann am Ende noch leisten kann. :rolleyes:
Ein paar größere Fenster an der richtigen Stelle und ein offenerer Grundriss lassen auch eine kleine Quadratmeterzahl weniger beengt wirken. Du baust nicht in die typische beengte 420m2 Haus neben Haus Neubausiedlung, sondern auf ein richtig großes Grundstück, das dir noch dazu sämtliche planerischen Freiheiten lässt. Nutze diesen Vorteil, das geht auch sehr Budget-effizient. Da würden sogar einige Standard Grundrisse gut funktionieren, je nach Anforderungen.
 
Yaso2.0

Yaso2.0

Ich verstehe was ihr meint und werde mich mal
an den Fragebogen machen. Mir stellt sich allerdings die Frage ob ich mir das dann am Ende noch leisten kann. :rolleyes:
Es geht hier nicht darum, dein Budget zu sprengen oder so, sondern darum, aus den Gegebenheiten das beste raus zu holen.

Hier ist nämlich keiner daran interessiert, dich mit nem 0815 Grundriss abzutun und „leichtes“ Geld zu verdienen.
 
C

cyberosti

Bebauungsplan/Einschränkungen
Größe des Grundstücks: 1304qm (Flurstücke 19/452 und 19/448)
Hang: nein
Grundflächenzahl: 0,4 (gilt aufgrund des Bebauungsplanes von 1962 allerdings „nur“ für das Haupthaus)
Geschossflächenzahl: 0,4
Baufenster, Baulinie und -grenze: siehe Dokumente
Randbebauung: ?
Anzahl Stellplatz: 2 (mindestens 1 Carport, Parken an der Straße ist möglich)
Geschossigkeit: 1,5
Dachform: offen (alles außer Flachdach)
Stilrichtung: unbestimmt
Ausrichtung: Westen oder Süden
Maximale Höhen/Begrenzungen: ?
weitere Vorgaben: keine

Anforderungen der Bauherren
Stilrichtung, Dachform, Gebäudetyp: Holzhaus, ökologisch, keine „Stadtvilla“
Keller, Geschosse: kein Keller
Anzahl der Personen, Alter: derzeit 3; 38, 30, 0 + 2 Hunde (2.Kind soll noch kommen)
Raumbedarf im EG, OG: insgesamt schon 135qm als Untergrenze, 150qm wäre toll, kostenabhängig
Büro: Familiennutzung oder Homeoffice: Familiennutzung, Homeoffice unklar, meine Frau studiert noch, bei mir kein Homeoffice
Schlafgäste pro Jahr: 0
offene oder geschlossene Architektur: offen
konservativ oder moderne Bauweise: ?
offene Küche, Kochinsel: offene Küche, Kochinsel schön, aber nicht zwingend notwendig
Anzahl Essplätze: 6-8
Kamin: wünschenswert
Musik/Stereowand: nein
Balkon, Dachterrasse: nein
Garage, Carport: 1 Carport (wenn möglich Doppelcarport)
Nutzgarten, Treibhaus: Nutzgarten
weitere Wünsche/Besonderheiten/Tagesablauf, gern auch Begründungen, warum dieses oder das nicht sein soll: Wir möchten im OG eine Gaube in Rtg. Garten, weiterhin bietet uns das Grundstück durch die Form und den angrenzenden Stichweg die Möglichkeit, dieses nochmals zu teilen und ggf. später nochmals zu bebauen bzw. einen Teil zu verkaufen. Wir sind uns noch unschlüssig ob wir irgendwann evtl. ein drittes Kind haben wollen. Möglichkeit dann anzubauen?

Hausentwurf
Von wem stammt die Planung:
-Planer eines Bauunternehmens: ja
-Architekt: nein
-Do-it-Yourself: nein
Was gefällt besonders? Warum? Viel Grundfläche zu akzeptablen Kosten, Es handelt sich um ein Schwedenhaus, was wir sehr schön finden
Was gefällt nicht? Warum? „Standardgrundriss“
Preisschätzung lt Architekt/Planer: 300.000
Persönliches Preislimit fürs Haus, inkl Ausstattung: Wir haben ein Gesamtbudget von ca. 500.000€ für das gesamte Bauprojekt. Nach Abzug des Grundstückes bleiben 400.000€ über. Damit würden wir gern auskommen. Das heißt alles inbegriffen (Baukosten, Nebenkosten, Außenanlagen)
favorisierte Heiztechnik: Luft-Wasser-Wärmepumpe, Photovoltaik- Anlage oder zumindest Vorbereitung

Wenn Ihr verzichten müsst, auf welche Details/Ausbauten
-könnt Ihr verzichten: Ankleide, Fußbodenheizung oben (außer Bad), Kamin, Wärmepumpentechnik, Photovoltaikanlage, Außentür Hauswirtschaftsraum, Badewanne,weiterer Büroraum zusätzlich zu 3 Schlafräumen. Weiterhin würden wir im Notfall das Grundstück teilen und ca. 500qm verkaufen, so dass dann noch etwa 800qm für uns blieben. Die 500qm würden uns vmtl. ca. 60.000-70.000€ einbringen.
-könnt Ihr nicht verzichten: 12 echte qm pro Kinderzimmer, Gaube im OG, Hauswirtschaftsraum in akzeptabler Größe (10-15qm), zusätzliche Dusche im Gäste-WC, einen großen Garten für unsere Tiere

Warum ist der Entwurf so geworden, wie er jetzt ist? ZB
Standardentwurf vom Planer? Ja, Möglichkeit eines weiteren Schafraums im EG wurde berücksichtigt
Entsprechende/Welche Wünsche wurden vom Architekten umgesetzt?
Ein Gemisch aus vielen Beispielen aus div. Magazinen...
Was macht ihn in Euren Augen besonders gut oder schlecht?

Was ist die wichtigste/grundlegende Frage zum Grundriss in 130 Zeichen zusammengefasst?

Wir möchten die Möglichkeiten des Baugrundstückes in einem Altbestand möglichst gut und effizient ausnutzen, da wir kostentechnisch mit 500.000€ Gesamtbudget begrenzt sind. Ein großer Garten ist das wichtigste für uns. Das Haus daher so groß wie eben nötig ohne „verschwendete“ qm.

Bau- und Flächenplan mit grünen Flächen, roten und blauen Umrissen.


Katastralplan: rosa Parzellen mit roten Nummern (z. B. 19/452) entlang Birkenweg, grüne Flächen.


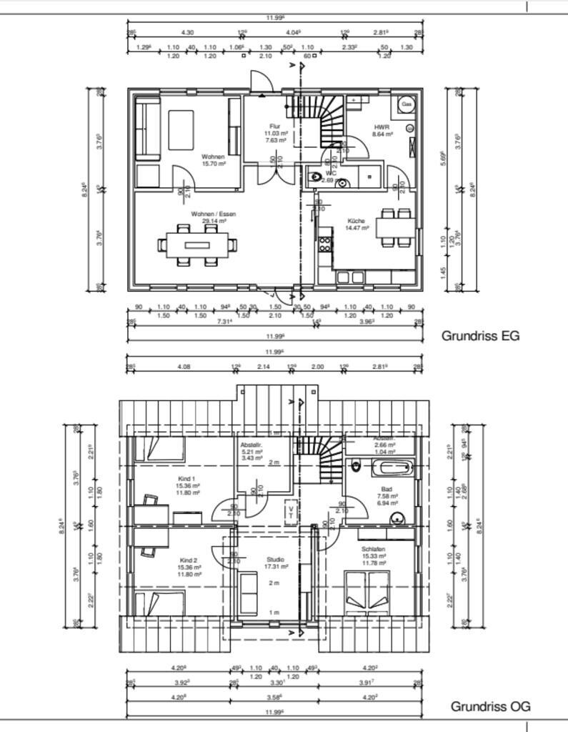
Zweistöckiger Grundriss: EG mit Wohnen, Küche, Essen; OG mit Schlafzimmer, Kind, Studio, Bad.


Schematische Planzeichnung: Begrenzungen, Hecke, Freiflächen, Gebäudelage, Schmutzwasserleitung.


Scan eines Bauplanungsdokuments mit Nutzungsarten und Flächenangaben.


Lageplan eines Grundstücks mit Parzellen 19/452 und 19/448 am Birkenweg.
 
Y

ypg

gern auch Begründungen,
Wir möchten im OG eine Gaube in Rtg. Garten,
Warum teure Gaube?
Ja, Möglichkeit eines weiteren Schafraums im EG wurde berücksichtigt
Wo und wozu? Wenn es der Schlafraum im Alter sein soll: wende Deinem Fokus mal dem EG-Duschbad zu - das ist nicht alterstauglich. Alltagstauglich auch nur bedingt.
könnt Ihr nicht verzichten: 12 echte qm pro Kinderzimmer, Gaube im OG, Hauswirtschaftsraum in akzeptabler Größe (10-15qm), zusätzliche Dusche im Gäste-WC, einen großen Garten für unsere Tiere
Notfall das Grundstück teilen und ca. 500qm verkaufen, so dass dann noch etwa 800qm für uns blieben. Die 500qm würden uns vmtl. ca. 60.000-70.000€ einbringen.
Wieviel qm hat denn der Architekt da geplant? Ich sehe Euer Preisziel nicht, deshalb mache ich es kurz: erstmal Teilgrundstück verkaufen, jetzt das Sahnestück aussuchen und gleich entspannter bauen.
 
11ant

11ant

Es geht hier nicht darum, dein Budget zu sprengen oder so, sondern darum, aus den Gegebenheiten das beste raus zu holen.
Hier ist nämlich keiner daran interessiert, dich mit nem 0815 Grundriss abzutun und „leichtes“ Geld zu verdienen.
In den Musterhausausstellungen kann allerdings schon leicht passieren, daß man außer durch 08/15-Häuser auch durch 4711-Häuser geht und dort auf teure Geschmäcker kommt. Ich glaube auch nicht, daß solche Ausstellungen immer gut sind: Planungsgefühl kann man dort nicht lernen, sondern nur Beispiele sehen (die einem aber ohne das Planungsgefühl wenig nützen können). gar nicht selten gehen Bauherren da bis über beide Ohren mit Verliebtsein in Gerade Treppen, Kapitänsgiebel, Kamine etcetera aufgeladen wieder hinaus und der Bänker piekst dann in diesen Ballon. Wenn der Schock verflogen ist, gehen sie zu einem GU, lassen sich ein Flair wenigstens symbolisch zum Jette umstylen und haben dabei freundlich gesagt nichts gewonnen.
 
Zuletzt aktualisiert 21.11.2025
Im Forum Grundrissplanung / Grundstücksplanung gibt es 2535 Themen mit insgesamt 87982 Beiträgen


Ähnliche Themen zu Wie das Haus auf dem Grundstück platzieren?
Nr.ErgebnisBeiträge
1Einfamilienhaus,Zwei Varianten Grundriss vom Architekt 39
2Grundriss für Einfamilienhaus 210 m² + Keller - Eure Meinungen 16
3Grundriss Einfamilienhaus 133qm Grundstück 850qm 16
4Grundriss Einfamilienhaus mit Keller und Garage 50
5Grundriss-Entwurf: Einfamilienhaus mit Keller; 560qm Grundstück - Seite 865
6Planung Einfamilienhaus - ca. 170m2 ohne Keller 13
7Grundriss Bungalow - Was gibt es zu beachten? - Seite 6164
8Kommentare zur Grundriss-Planung erwünscht - Seite 10344
9Grundriss-Bewertung - was haltet ihr von dem ersten Grundriss? 15
10Grundriss Einfamilienhaus ca. 180 qm - Seite 462
11Erster Grundriss Einfamilienhaus - Eure Ideen auch zum Grundstück - Seite 533
12Einfamilienhaus 220qm mit Keller auf 700qm Grundstück 41
13Grundriss Bungalow auf schon genutztem Grundstück 108
14Grundriss Stadtvilla 180m², Keller, 3 Kinder - Eure Meinungen dazu? - Seite 251
15Grundriss Einfamilienhaus, 2 Vollgeschosse ca. 180qm, 600qm Grundstück - Seite 756
16Planung Grundriss Doppelhaus, kleines Grundstück, Bauhausstil 34
17Grundriss Einfamilienhaus ca. 190qm mit Keller auf Millimeterpapier 78
18Bebauung Grundstück - Keller ja oder nein? 75
19Besonderer Grundriss oder langweilig mit Keller? - Seite 220
20Grundriss Einfamilienhaus ca. 200qm mit Keller - Hinterbebauung 20

Oben