Hausbau - Ratgeber
Bauherrenhilfe
- Bauherrenhilfe vor Vertragsabschluss
-- Warum einen unabhängigen Baubetreuer?
-- Vertragsgrundlagen
-- Bausumme
-- Zahlungsplan zur Kostenkontrolle
-- Pflichten des Bauherren vor Vertragsabschluss
-- Unterlagen beim Hausbau vor Vertragsabschluss
- Bauherrenhilfe nach Vertragsabschluss
-- Bauantrag bei Behörden
-- Bau-Genehmigungsverfahren bei Baubehörden
-- Bauspezifische Versicherungen
-- Bauzeitenplan
-- Baubeginn - die Letzten Pflichten der Bauherrschaft
- Bauherrenhilfe während der Bauzeit
- Gewährleistungsansprüche
- Bauabnahme
Baufinanzierung
- Baufinanzierung - Allgemeine Fragen
- Kreditarten
- Kredit-Konditionen
- Bausparen
- Staatliche Förderungen
- Verkehrswert
- Haushaltsrechnung und Bonität
Hausbau Planung
- Haustypen
- Hausbau Vorbereitungsarbeiten
- Das Baugrundstück
- Baugrund beim Hausbau
- Baurecht
- Gebäudeschutz
- Erdarbeiten und Wasserhaltung
- Stützmauern
- Einfriedung
- Untergeschoss
- Kanalisation
- Tragende Elemente
- Nichttragende Innenwände
- Fundation / Fundament
- Deckenkonstruktionen
- Dächer
- Kaminanlagen
- Treppen Rampen Leitern
- Dachbeläge und Spengler
- Fenster
- Sonnen und Wetterschutz
- Aussenputze
- Einbauten, Küchen, Türen
- Bodenbeläge und Unterlagsböden
- Parkett
- Gips, Wand, Decke
Haustechnik und Energie
- Heiztechnik
- Lüftung und Klimatechnik
- Sanitärtechnik
- Elektrotechnik
- Erneuerbare Energie
Whirlpools / Jacuzzi
Hausbau Magazin
- Baufinanzierung trotz Krise?
- Das Blockhaus
- Moderne Dämmstoffe im Vergleich
- Erker Vor- und Nachteile
- Glasflächen beim Hausbau
- Günstig ein Haus Bauen
- Mediterraner Hausbaustil
- Mehrgenerationenhaus
- Moderne Architektur
- Gartengestaltung leicht gemacht
- Traditioneller Ziegelbau
- Villa als höchster Traum
- Im Eigenheim Ruhestand geniessen
- Altbau sanieren
- Kauf einer Holzgarage
- Immobilienmakler
- Arbeitshandschuhe für den Winter
- Zuhause verschönern
- Outdoor-Plissees
- Schlafzimmer planen
- Terrassenüberdachung
- Wohngebäudeversicherung
- Zaunarten und Eigenschaften
- Hauseingang gestalten
- Der perfekte Grundriss
- Sparsamer heizen im Altbau
- Einfamilienhaus smart finanzieren
- Planung einer PV-Anlage
- Neues Haus
- Immobilienfinanzierung
- Installation einer Photovoltaikanlage
- Asbest erkennen und entfernen
- Gartenpflege im Frühling – worauf achten
- Sauna im Fokus - Wellness zuhause
- Erfolgreich vermieten
- Die perfekte Winterbekleidung
- Das Niedrigenergiehaus
- Der April und seine Stürme
- Architektonische Vielfalt
- Ökologisch und nachhaltig bauen
- Das perfekte Schlafzimmer
- Nachhaltige Energieversorgung
- Zukunftsorientiert bauen
- Nachhaltigkeit beim Hausbau
- Tiny Houses
- Wärmepumpen als nachhaltige Heizvariante
- Maßgeschneiderten Kleiderschrank
- Der richtige Baukredit
- Ratgeber für erfolgreichen Hausbau
- Haus als Altersvorsorge
Do-it-yourself Anleitungen
- Verlegeanleitung für Bodenbeläge und Parkett
- Bodenbeläge und Parkett reinigen und pflegen
- Malerarbeiten am Haus
- Garten Tipps
- Umzug und Reinigung

ᐅ Vorstellung Bauvorhaben, Kritik erwünscht, mediterrane Terrasse.

Erstellt am: 10.04.15 09:37
D
DaGoodness
D
DaGoodness
10.04.15 09:37
Hallo,

nachdem ich hier schon ein wenig mitgelesen habe und es bei uns nun auch immer konkreter wird, möchte ich hier unser Bauvorhaben einmal vorstellen. Kommentare, Hinweise und Anregungen sind natürlich sehr erwünscht.

Wir warten gerade auf den Kaufvertrag für unser Grundstück im Rheinland.
Insgesamt 475qm² (18m breit... 28m bzw. 23m tief... hinten verläuft das Grundstück schräg) zu 110€/qm².
Kosten für das Grundstück inklusive Nebenkosten also ca. 60.000€.

Gebaut wird mit einer Architektin, welche auch die komplette Bauleitung übernimmt.
Einige Infos zum Haus:
- 1 1/2 geschossig
- Satteldach
- voll verklinkert
- 4x9m Garage
- Luftwärmepumpe inkl. Kontrollierte-Wohnraumlüftung (Kombigerät)
- Fußbodenheizung
- elektrische Rollläden

Kosten komplett inklusive aller Baunebenkosten ca. 250.000€.

Außerdem ist noch eine neue Küche für ca. 9.000€-10.000€ geplant.

Was noch nicht berücksichtigt wurde sind allerdings die Außenanlagen.
Diese werden erst mal außen vor gelassen.

Geplant ist aber eine Terrasse im mediterranen Stil, vorne großflächig gepflastert, ansonsten ausschließlich Rasenfläche.

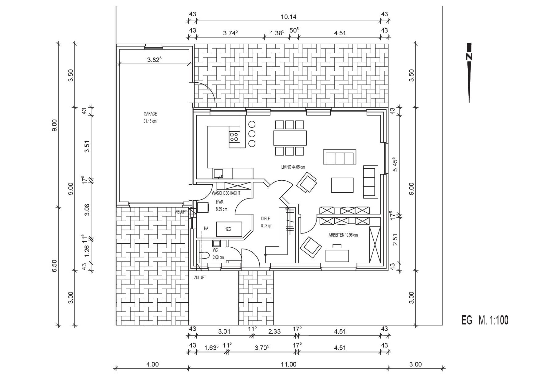
Anbei noch die Grundrissplanungen.

Grundriss eines Hauses: Garage links, offener Küchen-/Wohnbereich, Arbeitszimmer, Flur, Eingang.


Grundriss-Dachgeschoss: Elternschlafzimmer, Kinderzimmer, Bad, Flur, Ankleide, Wäsche, Möbel
B
Bauexperte
10.04.15 10:29
Hallo,
DaGoodness schrieb:

Kosten komplett inklusive aller Baunebenkosten ca. 250.000€.
Darauf würde ich mich an Deiner Stelle nicht verlassen; die genannte Summe für den reinen Hausbau im Rheinland ist - nach meiner Erfahrung - viel zu gering angesetzt.

Grüße, Bauexperte
W
Wastl
10.04.15 10:31
Ich finde euren Grundriss ehr interessant - gerade oben ist es mal was anderes - mir würde es trotz (oder gerade wegen) der vielen schrägen Wände so gefallen.
Der Eingangsbereich könnte sehr klein werden, weil die Treppe fast in die Haustüre rein ragt - daran kann man sich aber gewöhnen.
Ich persönlich würde auf die Tür im Hauswirtschaftsraum verzichten, dafür ist dieser zu klein und ihr braucht den Platz zum Abstellen / Technik. Dann lieber die 4 Meter ums Haus herumlaufen zur Garage.
In der Küche würde ich, angesichts des kleinen Budgets, auf die teure Variante "Kochinsel" verzichten und die Kochplatten lieber nach links an die Garagenwand setzen. Dafür habt ihr dann einen schönen Abstell/Krempel/Tresenplatz.
Ich hoffe ihr kommt mir den 250€ inkl. Baunebenkosten hin. Dies scheint sehr knapp bemessen zu sein, gerade bei Architekten, wo man ja keinen Festpreis bekommt,....
D
DaGoodness
10.04.15 10:44
Danke für die ersten Rückmeldungen.

Bei den Kosten muss ich erst mal davon ausgehen, dass wir damit hinkommen. Sollte es sich im Laufe des Baus herausstellen, dass es doch nicht hinhaut, werden wir einige Gewerke nachher in Eigenleistung machen um im Budget zu bleiben. Die Erfahrungen von einigen Bekannten, die ebenfalls mit dieser Architektin gebaut haben, zeigen aber bislang, dass die Kosten immer gut gepasst haben, von daher verlasse ich mich jetzt erst mal darauf.

Zum Grundriss: Die schrägen Wände waren der Wunsch meiner Frau. Sie wollte diese unbedingt, da sie nur gerade Wände zu langweilig findet :P
Beim Hauswirtschaftsraum haben wir auch ein wenig Bedenken, aber auf die Tür zur Garage möchten wir eigentlich nicht verzichten. Der Wäscheschacht im Hauswirtschaftsraum kommt noch ganz oben rechts in die Ecke und Waschmaschine und Trockner daneben. Ein Regal wird es nicht geben, wie eigentlich auf dem Plan dargestellt. Wir hoffen, dass wir dann alles einigermaßen vernünftig unterbekommen.
Die Kochinsel wird es auch definitiv nicht geben. Das hat die Architektin jetzt nur so eingezeichnet. Das Kochfeld kommt nach links und der Tresen bleibt frei.
Y
ypg
10.04.15 23:23
Ich würde mal über den Wechsel von Ankleide und Schlafzimmer nachdenken, dann klappt es auch mit der Belichtung dieses Zimmer ohne teuren Velux (Velux Dachfenster), wo durch man eh nichts sehen kann. Außerdem habt Ihr dann einen Schallpuffer zum Kinderzimmer.

Die schrägen Wände sind auch nicht meins... Die sehen immer so aus, als wenn Architekt keine Lust mehr hatte, es gängig mit 90-Grad-Wänden zu planen
M
marv45
11.04.15 02:26
Ich finde den Eingangsbereich einigermaßen unglücklich. Man öffnet die Tür und fällt förmlich gegen eine schräge Wand, einladend ist das nicht. Und wo soll hier eine Garderobe hin ?
Das Arbeitszimmer im EG soll doch sicher auch als Gästezimmer fungieren. Wo duschen die dann, bei euch im OG ? Apropos, ihr seid dann zu viert und habt nur eine Dusche ? Dann lieber das WC im EG etwas größer gestalten, zu Lasten des "Living"-Bereiches.
Das man immer durchs Wohnzimmer laufen muß, um in das Arbeitszimmer zu kommen, finde ich auch nicht passend. Wenn jemand Besuch hat und der andere sich zurückziehen möchte, muss er jedes Mal an allen vorbei.
Die Tür von der Garage zum Hauswirtschaftsraum ist sicher geplant, um die eingekauften Lebensmittel dort zu lagern (in der Küche könnte der Platz knapp werden). Viel Sinn macht das aber nicht, da der Weg von der Küche zum Hauswirtschaftsraum immer recht weit ist. Insofern kann man die Sachen auch durch die Haustür reinbringen.
veluxhauswirtschaftsraumgarageküchewändetürgrundstückarchitektinbaunebenkostengrundriss