ᐅ Eure Meinungen zu unserem Grundriss und Angebot
Erstellt am: 27.11.13 18:53
Hallo, meine Frau und ich wollen im kommenden Jahr bauen lassen und haben ein passendes Grundstück (704qm, 18,5m breit mit Südlage) auf dem wir nur 1 geschossig bauen dürfen.
Als Hausidee haben wir ein Satteldach mit einem möglichst hohen Drempel (ca. 150cm, 25 Grad Winkel) und einem Zwerchgiebel zum Süden und in den Garten.
Wir haben jetzt einen Anbieter gefunden der uns folgendes Angebot mit folgendem Grundriss gemacht hat mit folgenden Daten:
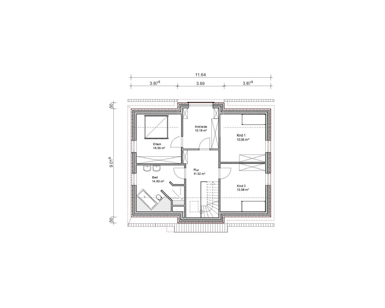
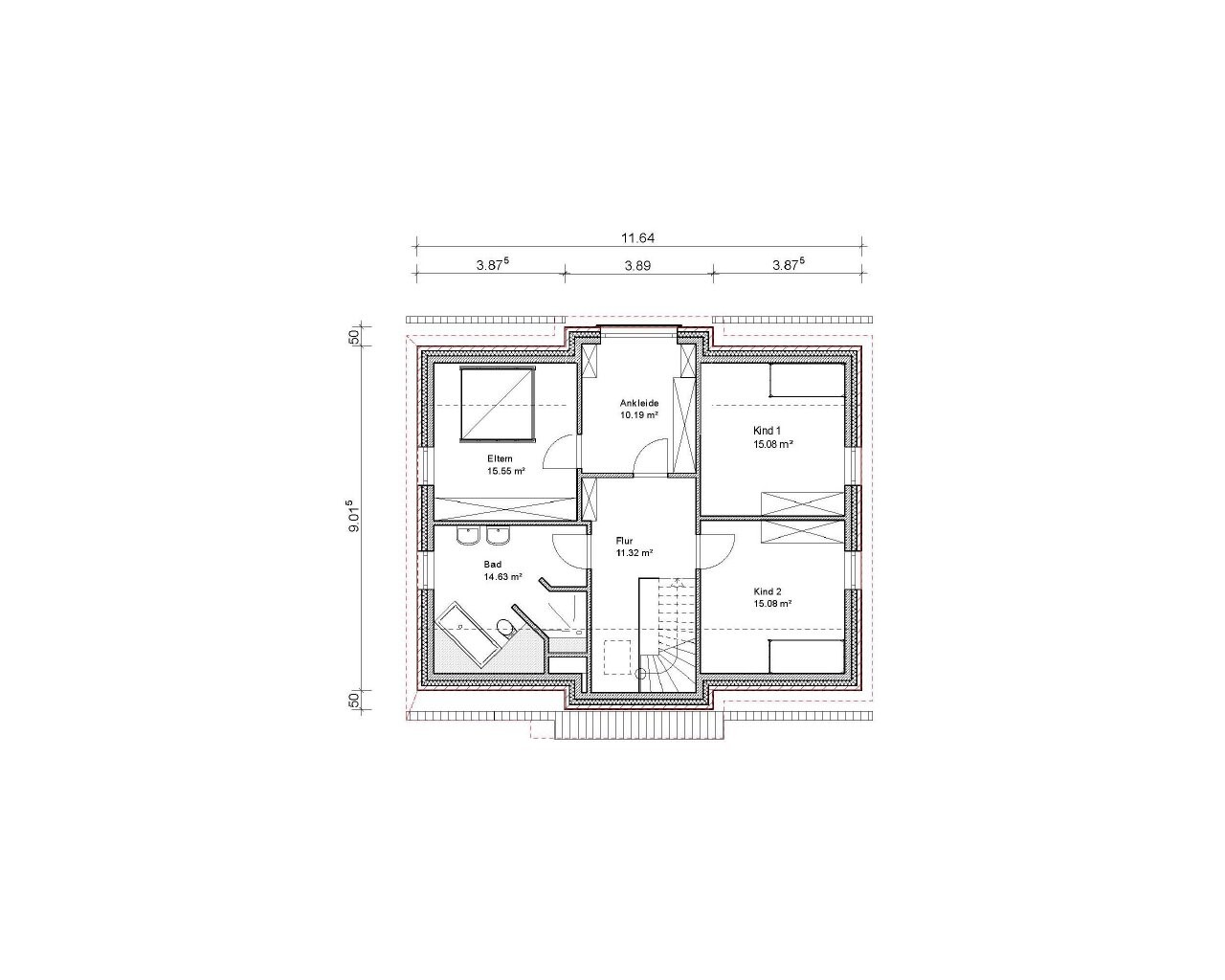
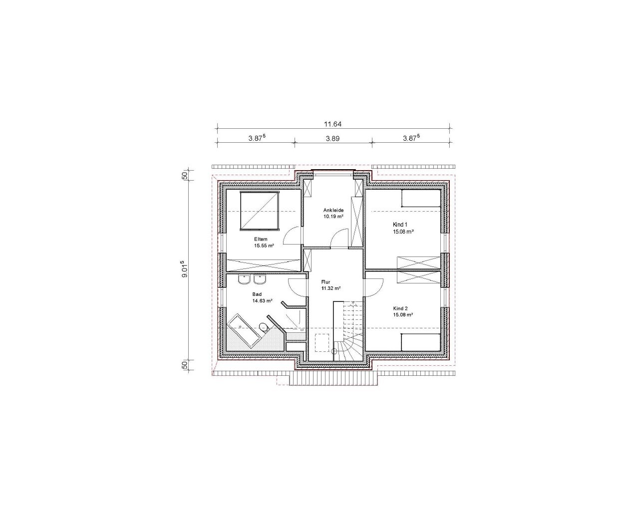
-Einfamilienhaus mit ca. 170qm Wohnfläche
-OG bodentiefe Fenster
-Hauswirtschaftsraum mit Eingangstür
-doppelflügelige Tür zum WZ
-Dachüberstände an der Traufe ca. 80 cm und am Giebel ca. 30 cm
-Dämmung nach Kfw70 Standard (2schalig, 45cm Wandstärke mit Klinker)
-Fenster mit 3fach Verglasung, außen farbig, uG = 0,7 W/m²K
-Rollläden in den Schlafräumen elektrisch
-Gäste-WC als Duschbad
-Dacheindeckung mit engobierten Tondachpfannen Nelskamp F 7
-Terrassentüren mit Neubauschwelle
-Fußbodenheizung im Erd- und Dachgeschoss
-Lüftungsanlage mit Wärmerückgewinnung und zentralen
Wärmetauscher Vallox Typ Kontrollierte-Wohnraumlüftung - SC mit integrierten Sommerbypass im Hauswirtschaftsraum,
4-Stufenschalter Vallox VSS, Rohrleitungssystem für Zu- und Abluft
-Velux (Velux Dachfenster)
... sonst Fliesen in den üblichen Räumen, Maler und andere Bodenbelagsarbeiten kommen zusätzlich. Kosten soll uns das Haus 195.000 Euro!
Folgende Fragen hätte ich:
Könnt ihr etwas zu dem Preis sagen, fällt euch etwas auf? (ich weiß, es ist keine komplette Auflistung)
Brauche ich eine Solaranlage für Brauchwasser (ist auch im Kaufpreis drin) oder kann ich diese rausnehmen und auch so auf KfW70 Standard kommen?
Hier noch die Grundrisse:


Freu mich über Kommentare ...
Als Hausidee haben wir ein Satteldach mit einem möglichst hohen Drempel (ca. 150cm, 25 Grad Winkel) und einem Zwerchgiebel zum Süden und in den Garten.
Wir haben jetzt einen Anbieter gefunden der uns folgendes Angebot mit folgendem Grundriss gemacht hat mit folgenden Daten:
-Einfamilienhaus mit ca. 170qm Wohnfläche
-OG bodentiefe Fenster
-Hauswirtschaftsraum mit Eingangstür
-doppelflügelige Tür zum WZ
-Dachüberstände an der Traufe ca. 80 cm und am Giebel ca. 30 cm
-Dämmung nach Kfw70 Standard (2schalig, 45cm Wandstärke mit Klinker)
-Fenster mit 3fach Verglasung, außen farbig, uG = 0,7 W/m²K
-Rollläden in den Schlafräumen elektrisch
-Gäste-WC als Duschbad
-Dacheindeckung mit engobierten Tondachpfannen Nelskamp F 7
-Terrassentüren mit Neubauschwelle
-Fußbodenheizung im Erd- und Dachgeschoss
-Lüftungsanlage mit Wärmerückgewinnung und zentralen
Wärmetauscher Vallox Typ Kontrollierte-Wohnraumlüftung - SC mit integrierten Sommerbypass im Hauswirtschaftsraum,
4-Stufenschalter Vallox VSS, Rohrleitungssystem für Zu- und Abluft
-Velux (Velux Dachfenster)
... sonst Fliesen in den üblichen Räumen, Maler und andere Bodenbelagsarbeiten kommen zusätzlich. Kosten soll uns das Haus 195.000 Euro!
Folgende Fragen hätte ich:
Könnt ihr etwas zu dem Preis sagen, fällt euch etwas auf? (ich weiß, es ist keine komplette Auflistung)
Brauche ich eine Solaranlage für Brauchwasser (ist auch im Kaufpreis drin) oder kann ich diese rausnehmen und auch so auf KfW70 Standard kommen?
Hier noch die Grundrisse:
Freu mich über Kommentare ...
T
toxicmolotof27.11.13 19:17Mit welchen weiteren Kosten kalkuliert ihr denn noch? Ich denke da so an Bodenarbeiten, Bodenplatte, Hausanschlüsse und so Späße. Ich denke so 40-60 TEUR kommen da noch zu. Die Kosten und Nebenkosten für das Grundstück sind ja vermutlich klar.
T
toxicmolotof27.11.13 19:23Und seid ihr euch sicher, ob ihr mit dem Grundriss im OG die Eingeschossigkeit behaltet?
Weder bin ich Architekt, noch kenne ich das Baurecht in NDS, aber ich sehe das irgendwie kritisch.
Weder bin ich Architekt, noch kenne ich das Baurecht in NDS, aber ich sehe das irgendwie kritisch.
Ich finde es schade, dass der schönste Raum die Ankleide ist ... 🙁
Ansonsten finde ich den Grundriss ganz schön (wobei ich nicht verstehe, wieso man in der Küche noch einen Essplatz braucht, wenn 2 m weiter das Esszimmer ist).
Soll die Badezimmer-Anordnung so bleiben?
Zum Preis: Irgendetwas kann da nicht stimmen, wenn Du für ein Haus mit Klinker und 170 qm unter 200.000,- € zahlst. Da kommt noch etwas hinzu, oder?
Ansonsten finde ich den Grundriss ganz schön (wobei ich nicht verstehe, wieso man in der Küche noch einen Essplatz braucht, wenn 2 m weiter das Esszimmer ist).
Soll die Badezimmer-Anordnung so bleiben?
Zum Preis: Irgendetwas kann da nicht stimmen, wenn Du für ein Haus mit Klinker und 170 qm unter 200.000,- € zahlst. Da kommt noch etwas hinzu, oder?
toxicmolotow schrieb:
Mit welchen weiteren Kosten kalkuliert ihr denn noch? Ich denke da so an Bodenarbeiten, Bodenplatte, Hausanschlüsse und so Späße. Ich denke so 40-60 TEUR kommen da noch zu. Die Kosten und Nebenkosten für das Grundstück sind ja vermutlich klar.Bodenarbeiten sind ausreichend in der Baubeschreibung mit drin, ist ein Neubaugebiet und lt. Bodengutachten ist das stimmig ... Hausanschlüsse liegen bei 5000 Euro, ich habe an anderen Nebenkosten wie Baugenehmigung, das Bodengutachten und Baustrom nochmal 5000 Euro gerechnet, Architektenleistungen etc sind mit drin ...
Ähnliche Themen